ᐅ Feedback zu Einfamilienhaus Grundriss 200 m² Stadtvilla mit Walmdach o
Erstellt am: 28.12.18 15:03
S
Seb0907ypg schrieb:
Die Änderung des EG bringt eine Änderung der Treppe einher.Weshalb siehst Du die sich zwingend verschieben ?https://www.instagram.com/11antgmxde/
https://www.linkedin.com/company/bauen-jetzt/
Ok, erst mal vielen Dank soweit für den Input!
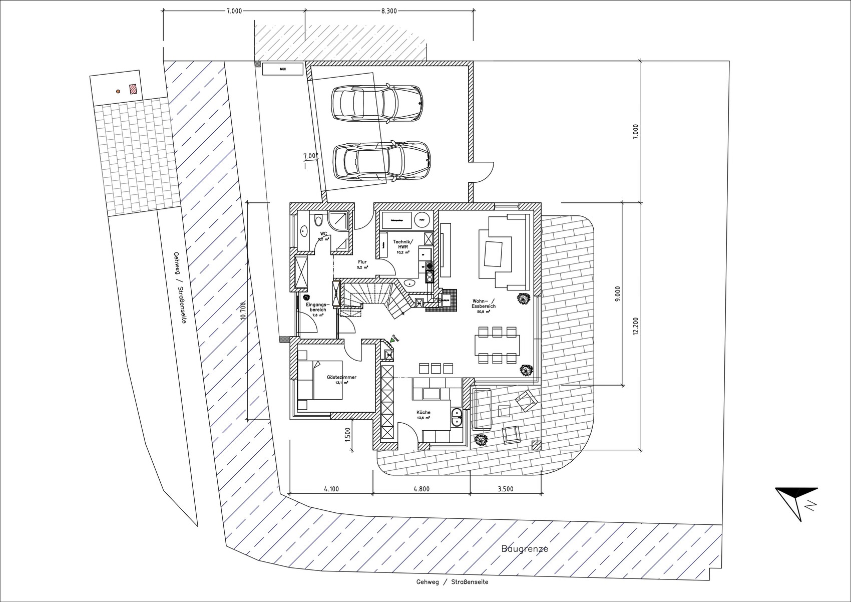
Ich habe mir die Kritikpunkte heute von vorne bis hinten durchgedacht, geschoben und auch mal den Eingangsbereich real abgesteckt um die Größe zu erahnen. Ich habe mir auch noch mal überlegt wo der Fokus des Hauses lag und warum die Aufteilung Eingangs/Wohnbereich so aussieht.
Es ist schon so, dass ein großer Fokus des Hauses im großen Wohnbereich liegt, hier halten wir (und Gäste.. die sperren wir tatsächlich auch selten in die Garage ) uns ja überwiegend auf. Der Eingangsbereich liegt auch bewusst in dieser Position um bereits von dort bis hinten durchsehen zu können, ich denke dadurch entsteht auch ein gewisser "repräsentativer" Eindruck. Ich denke, dass ich hier versuche aufgrund eurer Inputs das maximal mögliche aus dem Platz rauszuholen, evtl. die Türe noch mal weiter nach Außen setze, und dann bin ich zufrieden. Der Eingangsbereich ist kein Tanzsaal, aber ich fand das beim Abstecken ehrlich gesagt mit 1,80 auf 2,60 Metern nun auch nicht so "klein", außerdem hört der Blick des Gastes ja nicht am Eingang zum Wohnbereich auf, hier ist als Trennung zwischen beiden Bereichen wenn überhaupt nur eine Glastüre vorgesehen um den Blick zu ermöglichen.
Ich bin wirklich sehr dankbar wie kritisch ihr darauf und auch auf den Garagenzugang eingegangen seid. Was diesen betrifft, ist auch das etwas was ich sehr vermissen würde, diese Idee war bereits in den allerersten Plänen eingezeichnet und ist mir wichtig.
Letztendlich ist es wie ypg ja vorher schon geschrieben hat Geschmackssache. Aber natürlich beschäftigt mich das trotzdem. Daher möchte ich nur für's bessere Verständnis mal umgedreht fragen.. welche Größe an Eingangsbereich würde hier denn eher euren Vorstellungen für dieses Haus entsprechen?
PS: Ich habe mal die aktuellen Raumgrößen berechnet und angehängt..


Ich habe mir die Kritikpunkte heute von vorne bis hinten durchgedacht, geschoben und auch mal den Eingangsbereich real abgesteckt um die Größe zu erahnen. Ich habe mir auch noch mal überlegt wo der Fokus des Hauses lag und warum die Aufteilung Eingangs/Wohnbereich so aussieht.
Es ist schon so, dass ein großer Fokus des Hauses im großen Wohnbereich liegt, hier halten wir (und Gäste.. die sperren wir tatsächlich auch selten in die Garage ) uns ja überwiegend auf. Der Eingangsbereich liegt auch bewusst in dieser Position um bereits von dort bis hinten durchsehen zu können, ich denke dadurch entsteht auch ein gewisser "repräsentativer" Eindruck. Ich denke, dass ich hier versuche aufgrund eurer Inputs das maximal mögliche aus dem Platz rauszuholen, evtl. die Türe noch mal weiter nach Außen setze, und dann bin ich zufrieden. Der Eingangsbereich ist kein Tanzsaal, aber ich fand das beim Abstecken ehrlich gesagt mit 1,80 auf 2,60 Metern nun auch nicht so "klein", außerdem hört der Blick des Gastes ja nicht am Eingang zum Wohnbereich auf, hier ist als Trennung zwischen beiden Bereichen wenn überhaupt nur eine Glastüre vorgesehen um den Blick zu ermöglichen.
Ich bin wirklich sehr dankbar wie kritisch ihr darauf und auch auf den Garagenzugang eingegangen seid. Was diesen betrifft, ist auch das etwas was ich sehr vermissen würde, diese Idee war bereits in den allerersten Plänen eingezeichnet und ist mir wichtig.
Letztendlich ist es wie ypg ja vorher schon geschrieben hat Geschmackssache. Aber natürlich beschäftigt mich das trotzdem. Daher möchte ich nur für's bessere Verständnis mal umgedreht fragen.. welche Größe an Eingangsbereich würde hier denn eher euren Vorstellungen für dieses Haus entsprechen?
PS: Ich habe mal die aktuellen Raumgrößen berechnet und angehängt..
Seb0907 schrieb:
welche Größe an Eingangsbereich würde hier denn eher euren Vorstellungen für dieses Haus entsprechen?Die passende Größe für den Eingangsbereich sehe ich von den Menschen abhängig, die ihn frequentieren: ich zum Beispiel bin ein "zügiger Durchschreiter" - aber es gibt auch Leute, die (ohne das geringste Schuldbewußtsein !) mit ihrem Hundertmalstehenbleiben in jeder Drehtür eine Massenkarambolage verursachen. Die Mischung zwischen diesen Benutzertypen will bei der Kapazitätsbemessung eines Durchganges berücksichtigt sein https://www.instagram.com/11antgmxde/
https://www.linkedin.com/company/bauen-jetzt/
Manche Sachen kann ich gar nicht nachvollziehen. Zum Beispiel ist das "Durchgucken" vom Eingang bis in den Garten doch eher ungemütlich für den, der im WZ am Tisch sitzt. Jeder Postbote sieht immer gleich, was hier so gekocht wird. Wer will das schon?
Der Flur oder Eingangsbereich ist sozusagen der Empfangssaal von Dir, der Familie und allen anderen. In einer 200qm-Villa erwarte ich eine angemessenen Vorraum, wo ich in Ruhe eintreten kann, ohne gegen eine Wand zu prallen, weil der nächste mir schon in die Hacken läuft. Wie Du siehst, geht ja gerade mal die Eingangstür auf, dann kommt schon gleich die erste Wand. Man kann noch in den engen und dunklen Mäusegang zur Garage flüchten - aber da stapeln sich dann Familie und Gäste wie in einem Labyrinth. Da wär mein "repräsentativer Eindruck" ein ganz anderer.
Über die Frage, ob Du die Treppe wirklich im Wohnraum haben willst, habe ich noch gar nichts gelesen. Es gibt dazu einige Beiträge erfahrener Eltern hier, wobei man sagen kann, das gefühlt 80% so etwas nie wieder bauen würden mit Kindern.
Zum Schluss noch die Frage, warum Du nicht einfach mal einen Profi an die Sache ran lässt? Einen Architekten brauchst Du sowieso und musst Du definitiv bezahlen. Also warum soll der nicht auch was tun für sein Geld?
Der Flur oder Eingangsbereich ist sozusagen der Empfangssaal von Dir, der Familie und allen anderen. In einer 200qm-Villa erwarte ich eine angemessenen Vorraum, wo ich in Ruhe eintreten kann, ohne gegen eine Wand zu prallen, weil der nächste mir schon in die Hacken läuft. Wie Du siehst, geht ja gerade mal die Eingangstür auf, dann kommt schon gleich die erste Wand. Man kann noch in den engen und dunklen Mäusegang zur Garage flüchten - aber da stapeln sich dann Familie und Gäste wie in einem Labyrinth. Da wär mein "repräsentativer Eindruck" ein ganz anderer.
Über die Frage, ob Du die Treppe wirklich im Wohnraum haben willst, habe ich noch gar nichts gelesen. Es gibt dazu einige Beiträge erfahrener Eltern hier, wobei man sagen kann, das gefühlt 80% so etwas nie wieder bauen würden mit Kindern.
Zum Schluss noch die Frage, warum Du nicht einfach mal einen Profi an die Sache ran lässt? Einen Architekten brauchst Du sowieso und musst Du definitiv bezahlen. Also warum soll der nicht auch was tun für sein Geld?
S
Schlenk-Bär31.12.18 10:41kaho674 schrieb:
Einen Architekten brauchst Du sowieso und musst Du definitiv bezahlen. Also warum soll der nicht auch was tun für sein Geld?Wonach richtet sich die Höhe der Vergütung für einen Architekten habe ich mich gefragt. Geht es immer nach dem Wert des Hauses, ähnlich wie beim Anwalt um den Streitwert? Oder nach Zeitaufwand, oder ist dies individuell? Der von uns kontaktierte Architekt hat etwa 10% vom Wert des Hauses angesetzt. Leider hat er dies nicht genauer begründet.Ähnliche Themen