ᐅ Eure Ideen und Anregungen / Verbesserungen zu unserer Doppelhaushälfte
Erstellt am: 04.06.13 12:23
A
Alex80
Hallo Häuslebauer und Fachleute (Bauexperte - verstecktes Kompliment)
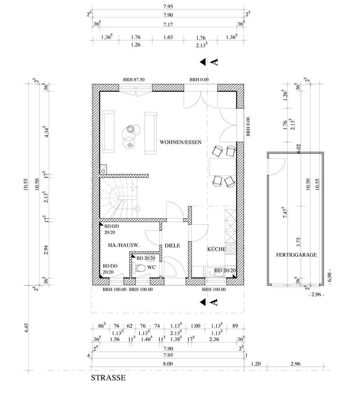
das ist evtl. noch nicht ganz, nur so ca. zu 95% das EG unserer Doppelhaushälfte.
Der Eingang ist zur Strasse hin, zw. Garder. und WC sichtbar.
Der Raum unter der Treppe soll im Hauswirtschaftsraum noch für z.B. Waschmaschine genutzt werden.
Kamin ist nur eine Idee.
Eher wird es aus Kostengründen ohne Kamin sein. Hausmasse 7,5-8m auf 10,5-11m.
Uns geht es hier im EG rein um die Aufteilung. Eure Ideen, auch Sachen an die wir bis jetzt noch nicht gedachte haben.
Würde mich über Rückmeldungen freuen.Danke.
das ist evtl. noch nicht ganz, nur so ca. zu 95% das EG unserer Doppelhaushälfte.
Der Eingang ist zur Strasse hin, zw. Garder. und WC sichtbar.
Der Raum unter der Treppe soll im Hauswirtschaftsraum noch für z.B. Waschmaschine genutzt werden.
Kamin ist nur eine Idee.
Eher wird es aus Kostengründen ohne Kamin sein. Hausmasse 7,5-8m auf 10,5-11m.
Uns geht es hier im EG rein um die Aufteilung. Eure Ideen, auch Sachen an die wir bis jetzt noch nicht gedachte haben.
Würde mich über Rückmeldungen freuen.Danke.
Mit Verlaub, ich gebe ypg Recht. Das müßte wirklich maßstabsgetreu gezeichnet werden, mit Millimeterpapier. Die Innentüren sind nur kleine Widerhaken im Vergleich zur Eingangstür und wenn der Essplatz ca. 3 m breit ist, bleiben noch ca. 3,5 m für das Wohnzimmer. Da hätten die ganzen Möbel in dieser Form nicht annähernd so viel Raum.
Ein so offener Grundriss ist Geschmacksache, aber wenigstens eine Windfangtür ist zweckmäßig, damit im Winter nicht gleich die ganze Bude kalt wird, wenn einer ins Haus kommt. Die Treppe ist so keine....
Als ganz grobe Skizze ok, aber mehr auch nicht.
Ein so offener Grundriss ist Geschmacksache, aber wenigstens eine Windfangtür ist zweckmäßig, damit im Winter nicht gleich die ganze Bude kalt wird, wenn einer ins Haus kommt. Die Treppe ist so keine....
Als ganz grobe Skizze ok, aber mehr auch nicht.
B
Bauexperte05.06.13 01:07Hallo,
Wenn Du Deinen Wunschgrundriss umsetzen möchtest, mußt Du Minimum auf 11.00 m Breite gehen.
Grüße, Bauexperte

Alex80 schrieb:Es geht weniger darum, ob Du Jemanden überzeugen möchtest. Vielmehr darum, daß einer - in diesem Fall wieder mal ich - den Buhmann geben muß. Ich habe Dir ein EG 8.00 m x 10.50 m angehängt; daraus kannst Du schon erkennen, daß Deine Ideen im Eingang nicht funktionieren. Selbst hier ist der Hauswirtschaftsraum eigentlich zu klein - ich weiß, was heute Alles darin untergebracht ist; es war echt eine Zentimeterleistung. Und diese Doppelhaushälfte ist für 2 Personen geplant; kommen auch keine weiteren hinzu :-)
@Bauexperte. Danke wie immer. Ich hatte in älteren Beiträgen deine Tipps gelesen und dachte mir, Fragen kostet ja nichts :-) Ich bin zudem für Anregungen stets dankbar, warum kann man hier nur verlieren? Ich will ja niemanden davon überzeugen, wie toll unsere Idee ist, sondern einfach über den Austausch an Kleinigkeiten feilen. 🙄
Wenn Du Deinen Wunschgrundriss umsetzen möchtest, mußt Du Minimum auf 11.00 m Breite gehen.
Alex80 schrieb:Irgendwo muß ja das Gewicht des DG abgefangen werden; das ist ziemlich schwierig, wenn im EG keine Wand steht. Daher muß ein Träger - sichtbar oder auch unsichtbar - verbaut werden, die Last des DG abzufangen. Wird Dir der Statiker schon noch sagen :-)
Ich weiß leider nicht was ich unter dem Unterzug verstehen kann.
Grüße, Bauexperte
Alex80 schrieb:
Hallo ypg. Ich verstehs nicht. Was wird nicht funktionieren? Meinst du das wir zu viele Innenwände haben werden? GrußDie Anzahl der Innenwände ist es nicht, sondern die Dicke der Innenwände. Die Speis hast Du 1 * 2 m geplant. Du musst davon allerdings mindestens 30 cm (2 * 15 cm) an jeder Seite abziehen. Dann hast Du nicht mehr 2qm Speis, sondern nur 1,19 qm! Das ist ein gewaltiger Unterschied und funktioniert so nicht.
Auch mal eben 50 cm größer zeichnen, weil es "so ungefähr" hinkommt, ist nicht. Die Räume werden durch die Wände schmaler. Ist einfach so.
Mal für denjenigen, der sich ohne Hintergrundwissen (Statik) und Basis einen Grundriss malt:
40cm Außenmauer
60cm Küchenzeile
120cm Arbeitsraum
100cm Tiefe Tresenecke
120cm Durchgang
15cm Mauer
100cm Raum (Garderobe,Speis)
15cm Mauer
160cm Flur
15cm Mauer
130cm WC
15cm Mauer
150cm Breite Hauswirtschaftsraum-Nische
40cm Außenmauer
= 10,80 Meter Breite für die Hausfront
.. so wie es Bauexperte und Jaydee schon geschrieben haben...
40cm Außenmauer
60cm Küchenzeile
120cm Arbeitsraum
100cm Tiefe Tresenecke
120cm Durchgang
15cm Mauer
100cm Raum (Garderobe,Speis)
15cm Mauer
160cm Flur
15cm Mauer
130cm WC
15cm Mauer
150cm Breite Hauswirtschaftsraum-Nische
40cm Außenmauer
= 10,80 Meter Breite für die Hausfront
.. so wie es Bauexperte und Jaydee schon geschrieben haben...
@ Bauexperte und ypg und andere. stark. danke. Diese Skizze war ja grob, mit irgendwas muss ich ja starten. Aber nun nähern wir uns durch eure Beiträge den richtigen Raum/Hausgrößen an. D.h. für uns eig. die Planung nochmal überdenken. evtl. seitlicher Eingang...
Wir werden "nur" ungefähr 8x11 m bauen können,wenn ich bei den bevorzugten Räumen bleibe wirds eng, ist mir nun klar. Ideen wie ich es anders lösen kann? 😕
Wir werden "nur" ungefähr 8x11 m bauen können,wenn ich bei den bevorzugten Räumen bleibe wirds eng, ist mir nun klar. Ideen wie ich es anders lösen kann? 😕
Ähnliche Themen