ᐅ Erster Grundriss-Entwurf ~200qm Einfamilienhaus
Erstellt am: 20.04.22 23:05
B
Bockwurst120.04.22 23:05Hallo zusammen,
wir haben die Zusage für ein Grundstück im "Einheimischenmodell" in eher ländlicher Gegend ca. 50km von München entfernt bekommen und planen darauf ein Vollholzhaus zu bauen. Vom entsprechenden Zimmermann haben wir den angehängten ersten Vorschlag bekommen, der zu einem guten Teil auf unseren Vorgaben + Zeichnung beruht. Wir werden noch einige Änderungen vorschlagen, aber bin schonmal auf Meinungen gespannt. Der Innenausbau soll hauptsächlich an bekannte Handwerker vergeben werden, Fenster/Parkett/Küche/Tür/Schreinerarbeiten werden von einem Familienmitglied in Eigenleistung erbracht.
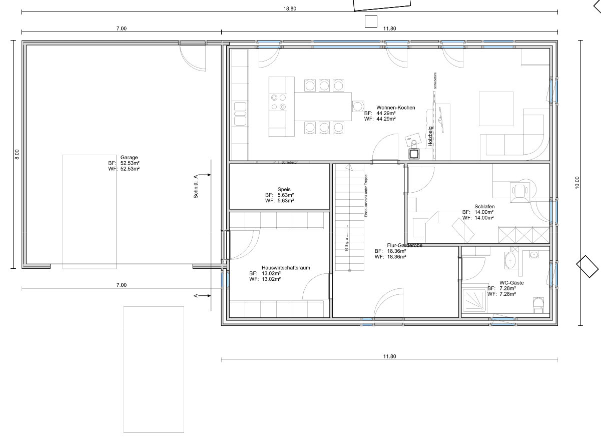
Zur Zeichnung: Zur Südseite (auf Zeichnung oben) haben wir Blick auf den Garten.
Bebauungsplan/Einschränkungen
Größe des Grundstücks 560qm
Hang nein
Baufenster, Baulinie und -grenze
Randbebauung
Anzahl Stellplatz 2
Dachform: 0.5m Giebel, min. 23° Dachneigung
Stilrichtung: rote Dachziegel
Maximale Höhen: 6,50m Traufe
Anforderungen der Bauherren
Stilrichtung, Dachform, Gebäudetyp: flaches Dachneigung, Photovoltaik; EG+Garage verputzt, OG/Giebel Holzsverschalung
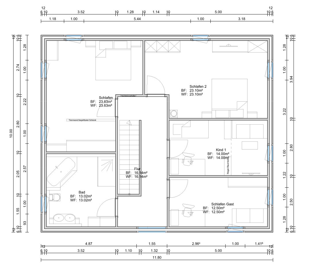
Keller, Geschosse: kein Keller, hoher Kniestock oder 2 Vollgeschosse (aktuell 2 Vollgeschosse)
Anzahl der Personen, Alter: 2 Erwachsene, bisher keine Kinder (später 2-3), aktuell beide Vollzeit, später Vollzeit + Teilzeit
Raumbedarf im EG, OG: Später soll eine Abtrennung des Obergeschosses als Einliegerwohnung möglich sein, unteres Büro/Gästezimmer soll dann das Schlafzimmer werden
Büro: Familiennutzung oder Homeoffice?: Geplant ist 1-3 Tage Homeoffice pro Woche für mindestens eine Person
Schlafgäste pro Jahr: 1-2 Mal jeweils für 1 Woche
offene oder geschlossene Architektur: Vor allem nach Süden+Westen (zum Garten) relativ offen
konservativ oder moderne Bauweise: Bebauungplan gibt eher klassische Hausform vor, Innenausbau soll eher modern werden. Allerdings keine zu offene Bauweise, zb. keine Treppe vom Wohnraum aus. Küche soll durch Schiebetür vom Wohnraum abtrennbar sein, Kochinsel gewünscht.
Anzahl Essplätze: 6 im Wohn-/essbereich
Kamin: zunächst nicht eingeplant, Schornstein wird allerdings schon eingebaut
Musik/Stereowand: keine Priorität
Balkon, Dachterrasse: nein
Garage, Carport: Garage, da zwei Autos und kein Keller. Wird vom Zimmermann in gleichen Zug wie das Haus aus Holz gebaut.
weitere Wünsche/Besonderheiten/Tagesablauf, gern auch Begründungen, warum dieses oder das nicht sein soll:
Hausentwurf
Von wem stammt die Planung: großteils selbst entworfen, vom Planer/Zimmermann mit kleineren Änderungen gezeichnet
Was gefällt besonders? Warum?
Was gefällt nicht? Warum? Außenansicht ist noch recht langweilig, im Obergeschoss möchten wir die bodentiefen Fenster noch durch länglichliche Querfenster ersetzen.
Preisschätzung lt Architekt/Planer: Grundstück 150.000€ (Zusage von der Gemeinde, noch ohne fixe Preiszusage), Haus geschätzt bisher 400-450.000€
Persönliches Preislimit gesamt, inkl Ausstattung: 650.000€
favorisierte Heiztechnik: Wärmepumpe (Erdsonde oder Luft-Wasser noch unklar) mit Speicher
Wenn Ihr verzichten müsst, auf welche Details/Ausbauten
-könnt Ihr verzichten: späterer Ausbau Bad/Kinderzimmer 1. Stock, Außenanlagen, Holzschalung 1. Stock.
-könnt Ihr nicht verzichten: Küche, Garage sollte möglichst erhalten bleiben




wir haben die Zusage für ein Grundstück im "Einheimischenmodell" in eher ländlicher Gegend ca. 50km von München entfernt bekommen und planen darauf ein Vollholzhaus zu bauen. Vom entsprechenden Zimmermann haben wir den angehängten ersten Vorschlag bekommen, der zu einem guten Teil auf unseren Vorgaben + Zeichnung beruht. Wir werden noch einige Änderungen vorschlagen, aber bin schonmal auf Meinungen gespannt. Der Innenausbau soll hauptsächlich an bekannte Handwerker vergeben werden, Fenster/Parkett/Küche/Tür/Schreinerarbeiten werden von einem Familienmitglied in Eigenleistung erbracht.
Zur Zeichnung: Zur Südseite (auf Zeichnung oben) haben wir Blick auf den Garten.
Bebauungsplan/Einschränkungen
Größe des Grundstücks 560qm
Hang nein
Baufenster, Baulinie und -grenze
Randbebauung
Anzahl Stellplatz 2
Dachform: 0.5m Giebel, min. 23° Dachneigung
Stilrichtung: rote Dachziegel
Maximale Höhen: 6,50m Traufe
Anforderungen der Bauherren
Stilrichtung, Dachform, Gebäudetyp: flaches Dachneigung, Photovoltaik; EG+Garage verputzt, OG/Giebel Holzsverschalung
Keller, Geschosse: kein Keller, hoher Kniestock oder 2 Vollgeschosse (aktuell 2 Vollgeschosse)
Anzahl der Personen, Alter: 2 Erwachsene, bisher keine Kinder (später 2-3), aktuell beide Vollzeit, später Vollzeit + Teilzeit
Raumbedarf im EG, OG: Später soll eine Abtrennung des Obergeschosses als Einliegerwohnung möglich sein, unteres Büro/Gästezimmer soll dann das Schlafzimmer werden
Büro: Familiennutzung oder Homeoffice?: Geplant ist 1-3 Tage Homeoffice pro Woche für mindestens eine Person
Schlafgäste pro Jahr: 1-2 Mal jeweils für 1 Woche
offene oder geschlossene Architektur: Vor allem nach Süden+Westen (zum Garten) relativ offen
konservativ oder moderne Bauweise: Bebauungplan gibt eher klassische Hausform vor, Innenausbau soll eher modern werden. Allerdings keine zu offene Bauweise, zb. keine Treppe vom Wohnraum aus. Küche soll durch Schiebetür vom Wohnraum abtrennbar sein, Kochinsel gewünscht.
Anzahl Essplätze: 6 im Wohn-/essbereich
Kamin: zunächst nicht eingeplant, Schornstein wird allerdings schon eingebaut
Musik/Stereowand: keine Priorität
Balkon, Dachterrasse: nein
Garage, Carport: Garage, da zwei Autos und kein Keller. Wird vom Zimmermann in gleichen Zug wie das Haus aus Holz gebaut.
weitere Wünsche/Besonderheiten/Tagesablauf, gern auch Begründungen, warum dieses oder das nicht sein soll:
Hausentwurf
Von wem stammt die Planung: großteils selbst entworfen, vom Planer/Zimmermann mit kleineren Änderungen gezeichnet
Was gefällt besonders? Warum?
Was gefällt nicht? Warum? Außenansicht ist noch recht langweilig, im Obergeschoss möchten wir die bodentiefen Fenster noch durch länglichliche Querfenster ersetzen.
Preisschätzung lt Architekt/Planer: Grundstück 150.000€ (Zusage von der Gemeinde, noch ohne fixe Preiszusage), Haus geschätzt bisher 400-450.000€
Persönliches Preislimit gesamt, inkl Ausstattung: 650.000€
favorisierte Heiztechnik: Wärmepumpe (Erdsonde oder Luft-Wasser noch unklar) mit Speicher
Wenn Ihr verzichten müsst, auf welche Details/Ausbauten
-könnt Ihr verzichten: späterer Ausbau Bad/Kinderzimmer 1. Stock, Außenanlagen, Holzschalung 1. Stock.
-könnt Ihr nicht verzichten: Küche, Garage sollte möglichst erhalten bleiben
Die Baukörperkomposition Schuhkartongarage mit Chalet ist von allen Seiten ein Kulturschock :-(
https://www.instagram.com/11antgmxde/
https://www.linkedin.com/company/bauen-jetzt/
https://www.instagram.com/11antgmxde/
https://www.linkedin.com/company/bauen-jetzt/
Alles unnötig groß und verschwenderisch.
Von der Garage über die riesigen Schlafzimmer.
Ist aber nicht schlimm, Ihr müsst das Ganze eh nochmal umplanen und deutlich verkleinern.
Mit 450.000€ baut Ihr Euch in Bayern keine 200qm.
Streicht mal nice to haves zusammen (Garage, 24qm Schlafzimmer, Speisekammer, Erdsonde, ...) und schaut, auf was ihr reduzieren könnt. Generell sehe ich das Projekt eher bei 150qm mit dem Budget, als bei 200qm.
Von der Garage über die riesigen Schlafzimmer.
Ist aber nicht schlimm, Ihr müsst das Ganze eh nochmal umplanen und deutlich verkleinern.
Mit 450.000€ baut Ihr Euch in Bayern keine 200qm.
Streicht mal nice to haves zusammen (Garage, 24qm Schlafzimmer, Speisekammer, Erdsonde, ...) und schaut, auf was ihr reduzieren könnt. Generell sehe ich das Projekt eher bei 150qm mit dem Budget, als bei 200qm.
Nachtrag: Wir habt Ihr Euch die Abtrennung des OG als Einliegerwohnung vorgestellt?
Euer Flur / Diele unten ist doch komplett nicht abgetrennt und die Zimmer gehen von dort ab.
Wo soll oben die Küche hin?
Insgesamt alles nicht durchdacht und die Planung sieht mir eher nach WünschDirWas aus, als nach Planung.
Euer Flur / Diele unten ist doch komplett nicht abgetrennt und die Zimmer gehen von dort ab.
Wo soll oben die Küche hin?
Insgesamt alles nicht durchdacht und die Planung sieht mir eher nach WünschDirWas aus, als nach Planung.
Ähnliche Themen