Hausbau - Ratgeber
Bauherrenhilfe
- Bauherrenhilfe vor Vertragsabschluss
-- Warum einen unabhängigen Baubetreuer?
-- Vertragsgrundlagen
-- Bausumme
-- Zahlungsplan zur Kostenkontrolle
-- Pflichten des Bauherren vor Vertragsabschluss
-- Unterlagen beim Hausbau vor Vertragsabschluss
- Bauherrenhilfe nach Vertragsabschluss
-- Bauantrag bei Behörden
-- Bau-Genehmigungsverfahren bei Baubehörden
-- Bauspezifische Versicherungen
-- Bauzeitenplan
-- Baubeginn - die Letzten Pflichten der Bauherrschaft
- Bauherrenhilfe während der Bauzeit
- Gewährleistungsansprüche
- Bauabnahme
Baufinanzierung
- Baufinanzierung - Allgemeine Fragen
- Kreditarten
- Kredit-Konditionen
- Bausparen
- Staatliche Förderungen
- Verkehrswert
- Haushaltsrechnung und Bonität
Hausbau Planung
- Haustypen
- Hausbau Vorbereitungsarbeiten
- Das Baugrundstück
- Baugrund beim Hausbau
- Baurecht
- Gebäudeschutz
- Erdarbeiten und Wasserhaltung
- Stützmauern
- Einfriedung
- Untergeschoss
- Kanalisation
- Tragende Elemente
- Nichttragende Innenwände
- Fundation / Fundament
- Deckenkonstruktionen
- Dächer
- Kaminanlagen
- Treppen Rampen Leitern
- Dachbeläge und Spengler
- Fenster
- Sonnen und Wetterschutz
- Aussenputze
- Einbauten, Küchen, Türen
- Bodenbeläge und Unterlagsböden
- Parkett
- Gips, Wand, Decke
Haustechnik und Energie
- Heiztechnik
- Lüftung und Klimatechnik
- Sanitärtechnik
- Elektrotechnik
- Erneuerbare Energie
Whirlpools / Jacuzzi
Hausbau Magazin
- Baufinanzierung trotz Krise?
- Das Blockhaus
- Moderne Dämmstoffe im Vergleich
- Erker Vor- und Nachteile
- Glasflächen beim Hausbau
- Günstig ein Haus Bauen
- Mediterraner Hausbaustil
- Mehrgenerationenhaus
- Moderne Architektur
- Gartengestaltung leicht gemacht
- Traditioneller Ziegelbau
- Villa als höchster Traum
- Im Eigenheim Ruhestand geniessen
- Altbau sanieren
- Kauf einer Holzgarage
- Immobilienmakler
- Arbeitshandschuhe für den Winter
- Zuhause verschönern
- Outdoor-Plissees
- Schlafzimmer planen
- Terrassenüberdachung
- Wohngebäudeversicherung
- Zaunarten und Eigenschaften
- Hauseingang gestalten
- Der perfekte Grundriss
- Sparsamer heizen im Altbau
- Einfamilienhaus smart finanzieren
- Planung einer PV-Anlage
- Neues Haus
- Immobilienfinanzierung
- Installation einer Photovoltaikanlage
- Asbest erkennen und entfernen
- Gartenpflege im Frühling – worauf achten
- Sauna im Fokus - Wellness zuhause
- Erfolgreich vermieten
- Die perfekte Winterbekleidung
- Das Niedrigenergiehaus
- Der April und seine Stürme
- Architektonische Vielfalt
- Ökologisch und nachhaltig bauen
- Das perfekte Schlafzimmer
- Nachhaltige Energieversorgung
- Zukunftsorientiert bauen
- Nachhaltigkeit beim Hausbau
- Tiny Houses
- Wärmepumpen als nachhaltige Heizvariante
- Maßgeschneiderten Kleiderschrank
- Der richtige Baukredit
- Ratgeber für erfolgreichen Hausbau
- Haus als Altersvorsorge
Do-it-yourself Anleitungen
- Verlegeanleitung für Bodenbeläge und Parkett
- Bodenbeläge und Parkett reinigen und pflegen
- Malerarbeiten am Haus
- Garten Tipps
- Umzug und Reinigung

ᐅ Erstentwurf vom Bauzeichner für unser Einfamilienhaus

Erstellt am: 12.02.18 10:08
J
Julia.86
S
Sondelgeher12
06.03.18 08:18
Ich bin auf diesen Thread gestoßen da ich mich auch für das Thema Hangbebauung interessiere...

Habe mir die verschiedenen Posts in denen Vergleiche herangezogen werden einmal angesehen....leider kann ich daraus überhaupt und garkeine Informationen ziehen. Es ist doch überhaupt nicht vergleichbar wenn der Hang andersherum verläuft oder die Straße nicht im Norden ist....

Ich finde den am Anfang des Posts gezeigten Vorschlag nicht gut....ich würde weder gerne einen abfallenden Hanggarten im Norden haben wollen, noch im Süden wo es schön hell ist das Treppenhaus....
11ant06.03.18 15:48
Sondelgeher12 schrieb:
Habe mir die verschiedenen Posts in denen Vergleiche herangezogen werden einmal angesehen....leider kann ich daraus überhaupt und garkeine Informationen ziehen. Es ist doch überhaupt nicht vergleichbar wenn der Hang andersherum verläuft oder die Straße nicht im Norden ist....
Wenn ich Fragesteller an meinem Gedächtnis für ähnlichartige Threads teilhaben lasse, denke ich daß es auch dann nützlich sein kann, wenn es sich bei den verlinkten Problemstellungen freilich nicht um exakte Klone handelt. Manchmal sind es mehr einzelne Textfakten, mal eher bildlich ähnliche Situationen und manchmal auch die dortigen Diskussionsverläufe, die mich zu den Hinweisen animieren. Der Nutzen für Mitleser steht dabei nicht primär in meinem Fokus.
https://www.instagram.com/11antgmxde/
https://www.linkedin.com/company/bauen-jetzt/
J
Julia.86
06.03.18 20:01
@11ant : das sehe ich genauso genau den gleichen Fall ein 2. Oder gar 3. Mal beschrieben zu finden ist auch fast unmöglich.

@Sondelgeher12 : für mich passen die Posts vielleicht schon was z.B. die Ausrichtung der Räume betrifft, kann man sich das ja an die eigene Situation transferieren.

@alle:
Wir hatte jetzt 2 weitere Gespräche (eins mit GU den wir schon auf einer Messe sehr ansprechend fanden und auch Hanghäuser im Repertoire hat; das andere mit Architekt) und warten gespannt auf die Entwürfe
Ende der Woche treffen wir uns noch einmal mit dem ersten Planer um unser Feedback zu besprechen, bin mal gespannt wie er mit unserer Kritik umgeht

Keller ist übrigens noch nicht komplett abgeschrieben. Alleine schon wegen der schöneren Aussicht wenn wir auf bzw. leicht über Straßenniveau liegen. Wir überlegen momentan eher, unser Budget höher anzusetzen (etwas Spielraum haben wir noch) und die Wohnfläche etwas zu verkleinern.
J
Julia.86
21.04.18 13:12
Huhu,
da bin ich wieder

Mittlerweile sind wir mit unserer Planung ein gutes Stück weitergekommen (finden wir zumindest, wenn ich auch "befürchte" dass ihr das anders sehen könntet *lach*)

Der aktuelle Stand sieht folgendermaßen aus:
- wir werden mit Einliegerwohnung bauen, welche Ersteinmal fremdvermietet wird (sehr gängig in unserem Bauort aufgrund vieler Hanggrundstücke) und wenn Schwiegermama später doch zu uns möchte, darf sie das dann natürlich gerne
- unser Budget haben wir entsprechend aufgestockt, bis 450.000 dürfte das "Häuschen" jetzt kosten (inkl. Erdarbeiten, Sonderausstattungen...)
- KfW55 haben wir gestrichen, das hat uns die KFW-Bank zu unrentabel gemacht mit ihren Änderungen
-Um mehr Abstellfläche zu erhalten werden wir 2 Fertigteilgaragen aufeinanderstapeln. Somit sparen wir uns das Aufschütten und können die untere Garage für Grill, Rasenmäher, Autoreifen etc. nutzen.
-Da die Tür von der Garage ins Haus oft Diskussionsthema hier ist: Die ist gesetzt. Da lässt mein Freund nicht mit sich diskutieren

In der engeren Auswahl sind jetzt noch 2 Anbieter übriggeblieben. Ein GU ( im Weiteren "S" genannt) aus dem Saarland mit etwa 100 Häusern im Jahr und ein kleiner regionaler Anbieter (im Weiteren "G" genannt) mit ca. 5 Häusern im Jahr.

Unser Bauchgefühl geht momentan Richtung des kleinen Anbieters, da er auch die Erdarbeiten mitkoordinieren würde und schneller anfangen könnte. Preislich und vom Inhalt der Bauleistungsbeschreibung sind sie sich sehr ähnlich, das macht es nicht gerade einfach für uns. Nächste Woche werden wir eine aktuelle Baustelle mit Anbieter "S" besichtigen. Von Anbieter "G" haben wir Kontaktdaten von ehemaligen Bauherren bekommen, die ähnlich gebaut haben wie wir es planen, zwecks Austausch und Besichtigung. Vielleicht hilft das in der Entscheidung weiter.

Ich stelle einfach mal beide Grundrisse rein, erläutere unsere Pros und Contras und bin dann mal gespannt, was von euch so kommt. =D

Beginnen wir mit Anbieter S:

+ wir hätten einen Kellerraum
- dadurch wird die Einliegerwohnung sehr klein. wir könnten uns vorstellen, dass diese dann schwer zu vermieten wäre
+L-Treppe anstatt U-Treppe
+größere Kinderzimmer
+Größe der Küche
-Bad im OG komisch geschnitten mit der Ecke

Im Treppenbereich EG würden wir noch ein schmales, senkrechtes Lichtband einfügen, um zum einen mehr Licht hereinzulassen, zum anderen sieht die Wand von außen nicht so "leer" aus.
Ob ein Luftraum da Sinn macht und überhaupt wirken kann, wissen wir nicht so recht..

Zur besseren Übersicht packe ich den den 2. Anbieter in einen neuen Post

Grundriss eines Obergeschosses: Schlafzimmer, Kinderzimmer, Ankleide, Bad, Galerie und Treppenhaus.
.
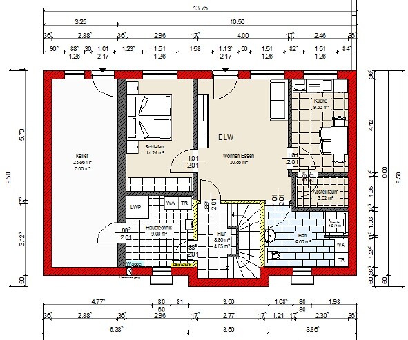
Grundriss eines Hauses mit Wohnzimmer, Küche, Schlafen, Bad, Flur, Keller und Garage.

Grundriss eines Hauses mit Wohnen/Essen, Küche, Arbeiten/Gast, Diele, Bad, HWR und Garage.



Zweistöckiges Haus mit dunklem Satteldach, grauer Fassade, Garage links und mehreren Fenstern

Frontansicht eines zweistöckigen Hauses mit weißer Fassade und Kamin

Frontansicht eines Einfamilienhauses mit Garage und schräger Zufahrt

Zweistöckiges Haus mit dunklem Dach, grauer Fassade, Eingangstür, Fenster und Garage.
J
Julia.86
21.04.18 13:36

Weißes Einfamilienhaus mit dunklem Satteldach, Terrasse mit Möbeln, Garage und Garten

Weißes zweistöckiges Haus mit Terrasse und Glasgeländer; roter Pkw daneben.

Grundriss eines Hauses: offenes Wohn-Esszimmer, Küche, Flur, Bad, Diele, Terrasse.

Grundriss eines Hauses (Obergeschoss): Schlafzimmer, zwei Kinderzimmer, Bad, Flur, Treppe.

Grundriss eines Hauses mit Keller, Schlafzimmer, Wohn-/Essbereich, Küche und Bad.


So, jetzt bin ich auf euer Feedback gespannt =)
11ant21.04.18 14:57
Ich würde sagen: in diesem Fall hat es sich ´mal gelohnt, Äpfel mit Birnen zu vergleichen, statt einfach G. nach seinem Preis für denselben Entwurf wie S. zu fragen.

Der Planer von G. hat seinen Kopf nicht bloß für die Mütze, zusätzlich finde ich seinen Entwurf auch ästhetisch überzeugender. Ich spekuliere ´mal dreist: bei G. entwirft ein Architekt und bei S. ein Bauzeichner.

Und ich setze noch einen darauf: G. ist inhabergeführt von einem Maurermeister. Da weiß der Chef selber, wie man das bauen muß. Nimm´ den, der ist so gut wie der von Nordlys, sagt mein Gefühl.

Und zwar auch so wie hier geplant - also mit der Einzelgarage nur oben, und dem Abstellraum unter der Terrasse. Aber vergiß´ die Zwischentür, die macht bei einer Bauwichgarage keinen Spaß.
https://www.instagram.com/11antgmxde/
https://www.linkedin.com/company/bauen-jetzt/
architektplanereinliegerwohnungerdarbeitengaragetreppeentwurf