ᐅ Grundriss, Bauen mit Baum, Einliegerwohnung und Altbestand
Erstellt am: 21.02.23 20:48
B
BucheOnBoardEinen haben wir noch. Mit dem Rücksprung - allerdings etwas kleiner. Da habe ich jetzt nicht gerechnet, wie es mit der Eingeschossigkeit aussieht. Da soll sich der Planer den Kopf zerbrechen. Auf jeden Fall auch 1,50m Kniestock und einem weiteren Rücksprung im Treppenhaus für eine spektakuläre Licht-Orgie. Dazu das Murkelnest ganz oben, da offenbar Herzenswunsch. Die Carportfrage bleibt allerdings knifflig.



ypg schrieb:
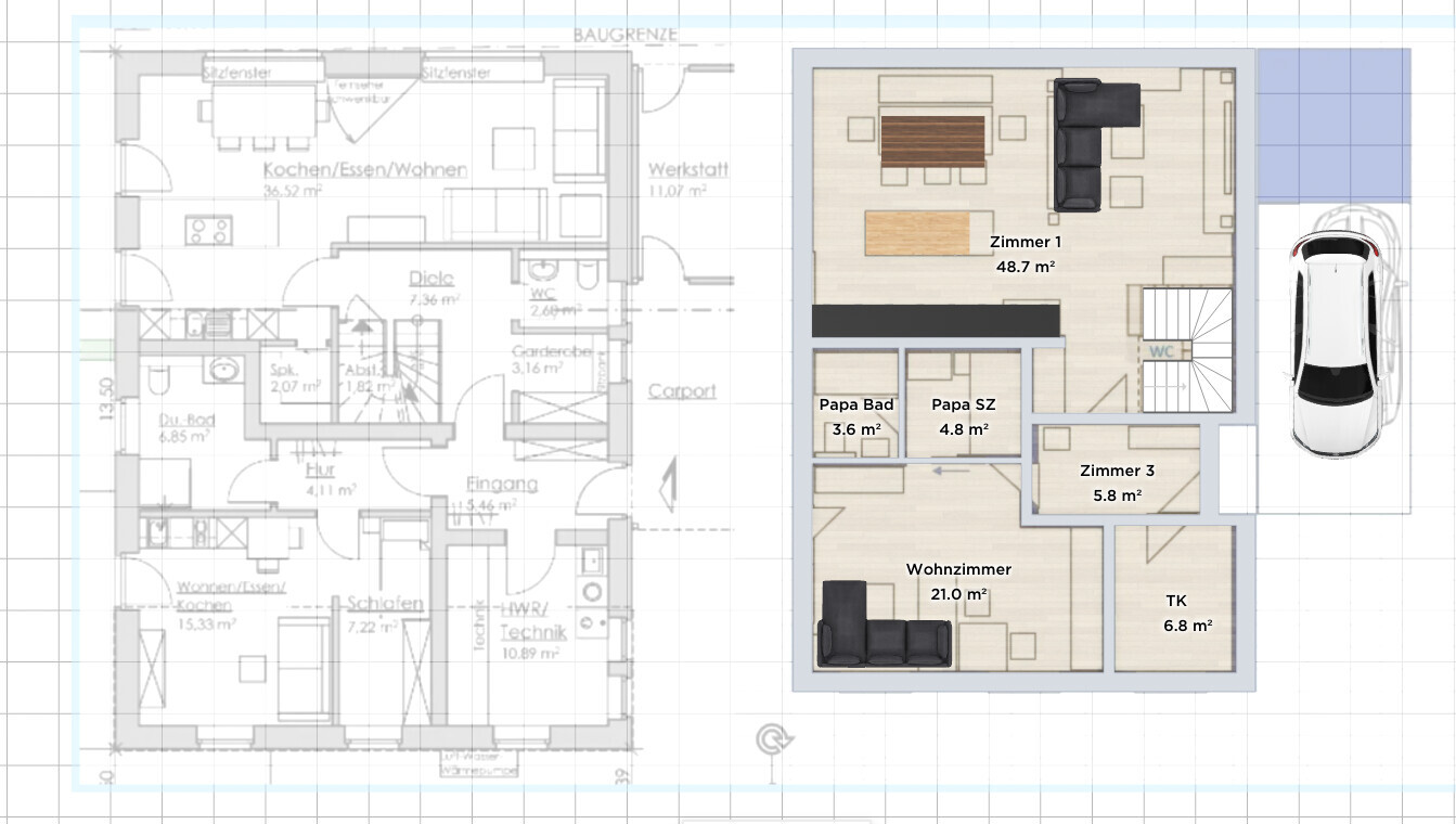
Das Haus ist mit einem besetzten Carport gar nicht erreichbar, weil das Auto die Eingangstür blockiertIch nehme das mal als Antwort auf meine Frage: ein Architekt ohne Anführungsstriche war es demnach nicht.hanghaus2023 schrieb:
trotz das mein Entwurf viel kleiner ist [...], sind die nutzbaren Räume größer.Die Maurer kriegen schon´mal weniger Eckenprämie ;-)Dazu vielleicht einmal für alle Selberplaner als Grundrißqualitäts-Schnelltest: als ersten Indikator einfach alle Stellen rot ankringeln, wo eine Wand nach weniger als 2m schon eine Richtungsänderung macht.
https://www.instagram.com/11antgmxde/
https://www.linkedin.com/company/bauen-jetzt/
hanghaus2023 schrieb:
@ypg trotz das mein Entwurf viel kleiner ist (135m2/112,5m2), sind die nutzbaren Räume größer.Ich weiß ja nicht, was Dir für Maße in Deinem Programm angezeigt werden, aber bei mir sieht es nach knappen 90qm aus. Kann es sein, dass die Werkstatt/der Carport bei Dir mitberechnet wurde? Als Referenz habe ich die 13,50 von dem Ursprungsplan links genommen.
Aber mal davon abgesehen: jeder hat hier seine Erfahrungen und Meinungen, die der ein oder andere hier kundtut. In vielen Bereichen liegen wir oft auf eine Wellenlänge. Gerade wenn es um Kritik geht. Fehler werden schnell gesehen. So richtig behoben ohne eine andere Engstelle zu kreieren werden sie oft nie.
Kompromisse muss man meist immer in einem Hausentwurf machen. Da spielen die verschiedenen Prioritäten eines jeden eine grosse Rolle. Diejenigen, die 3 Kinder haben, legen mindestens Wert auf eine zweite Dusche, andere haben Hobbys und wollen diese auch im Haus weiterführen. Wellnessliebende legen Wert auf ein Bad, andere ziehen sich nur allein in einer Ankleide aus.
Viele haben den Wunsch, im Alter nach unten zu ziehen und denken, in ihrem 4qm-Dusch-WC plus 8qm Büro glücklich zu werden. Oft wird das auch begründet kritisiert. Zumindest ich halte nichts davon, jegliche Kompromisse auf Prio Alter zu setzen, wenn man gerade anfängt, eine Familie zu gründen. Dazwischen liegen oft 40/50 Jahre und eventuell ein Arbeitsplatzwechsel, zwei Scheidungen, drei Krankheiten, vier Hochzeiten und fünf Enkel 😉
In diesem Fall gibt es die Einliegerwohnung, die nicht nur wegen der Förderung, sondern aufgrund des Familienbestand generiert werden muss. Denn ohne die wird es diesen Hausbau nicht geben.
Wenn ich dann aber so etwas sehe, dass man den barrierearmen Wunsch umsetzt mit Räumen, in denen man sich an allen Wänden fast gleichzeitig abstützen kann, sodass man keinen Stock mehr braucht, dann übe ich dahingehend Kritik. Ich glaube auch nicht, dass der TE seinen Papa soviel übel nimmt, dass er diese Schlaf- und Waschlöcher für ihn bauen wird. So ein Allkoven-Bett mag für Kinder oder im Urlaub ganz nett sein, zur Not auch noch für Studenten, hat aber nichts mit altersgerechtem Wohnen zu tun.
Ich wette, wenn jmd anderes hier in nächster Zeit mit diesen Maßen in seinem Entwurf ankommt, wird das berechtigt kritisiert.
Das gleiche gilt im Übrigen für den direkten Blick auf das Sofa, wen man die Hauptwohnung betritt und den Blick auf die Treppe, wenn man im WZ sitzt. Oder die Sofanähe zur Garderobe, das dann - auch bei disziplinierten Erwachsenen - schneller mal als Ablage für Schal und co genutzt wird als erst einmal die Tür vom garderobenschrank zu öffnen. Die Toi unter der Treppe ist auch eher eine Notlösung im Bestand als eine kluge Neubauidee. Allerdings passt dann schon die Idee, den Verbindungsflur auch zu nutzen.
BucheOnBoard schrieb:
Raumbedarf im Dachboden: 2x „Rückzugsort“ für die Erwachsenen, im Zweifel lagern wir dort halt einen Schaukelstuhl mit Leselampe und eine Nähmaschine auf der einen Seite und einen Spiele-PC auf der anderen Seite.Jetzt aber mal zu dem ausgebauten Dachboden: ich glaube mittlerweile auch (außer hier kommt jmd noch mit dem richtig innovativen Entwurf), dass man eher auf den Ausbau verzichten sollte als die ganze Grundfläche vom EG im Dachgeschoss zu nutzen.
Und zwar deshalb, weil Ihr @BucheOnBoard Euch im Spitzboden einen Rückzugsort schaffen wollt. Da geht doch nochmal in Euch. Euer Kind ist ein Jahr alt, eventuell kommt ein zweites. Wie stellt Ihr Euch das mit einem Rückzugsort vor, wenn man eigentlich in der Nähe des oder der Kinder sein müsste. Irgendwann kommt das Kind abends ins Bett und ihr könnt danach chillen. Da werdet ihr wahrscheinlich gar keine Lust haben, nach ganz oben zu gehen, sondern bleibt beim Getränk im EG, bevor Ihr selbst ins Schlafzimmer geht. Und ja, auch das Schlafzimmer ist dann Rückzug, aber ein viel bequemerer. Alternative wäre, das Büro, also Gästezimmer auch für Euch wohnlich zu gestalten.
Und wenn das nicht reichen sollte, dann kann man ja eben ein weiteres Zimmer mit der ausgenutzten Grundfläche im Dachgeschoss generieren. Vielleicht ist im Süden eine schöne Gaube finanziell noch drin, wo ihr den Sessel mit Stehlampe stellen könnt und ein Wandschrank die Nähmaschine beherbergt?
Letztendlich hattet Ihr den Wunsch zum Keller. Der ist zu teuer.
Mal schauen:
BucheOnBoard schrieb:
Raumbedarf im Keller (Zugang durch gemeinsamen Flur+ zusätzlicher Außeneingang): Technik/HAR mit Wärmepumpe, Lüftung, Elektroverteilung, Wechselrichter, Server; Holz-Heimwerker-Werkstatt; Waschküche; 2x Hobbykeller für großformatige Sammlungen - Lego und Bierdosen, no Kink-Shaming please 😉, 1x „Lager“ für Deko, Koffer, Campingzeugs und so. Muss also beheizt (und belüftet) sein, aber einfachst gefliest und Aufputzinstallation reichenIch sehe da eher den Dachboden als Kellerersatzraum. Erst einmal als Lager und dann für Eure Sammlungen. Ich sage Euch aber zu, dass dafür kaum noch Zeit bleibt 😉BucheOnBoard schrieb:
Carport/Dachüberstand direkt am Gebäude wäre schon gut, aber eher für Fahrräder und in (mittelferner) Zukunft für ein E-Auto.…BucheOnBoard schrieb:
mit dem Wunsch auch für beide Eltern (also mich+Frau) einen eigenen Raum zu haben, der eben nicht die Küche und das Arbeitszimmer sind, einen Raum, den man nicht aufräumen muss, von dem man die Tür knallen kann, wenn man glaubt das sei nötig.Euer eigener Raum wäre das Schlafzimmer mit einer Tür zum Knallen.Ich denke, es ist ungefähr klar, wohin die Reise führt: klare Struktur für die Einliegerwohnung, mind. 30qm für die Förderung, Flur braucht es nicht, dafür etwas Bewegungsfreiheit für möbel, über die man nicht stolpern sollte.
Gemeinsamer Flur, der auch gemeinsam für Garderobe genutzt wird. Kleine zusätzliche Garderobe für die Hauptwohnung, falls mal _irgendwann später_ fremd vermietet wird. (Ich rate dennoch dazu, die Technik in der Nordhälfte zu belassen, also auch das Bad der Einliegerwohnung)
Eine Treppe, die fest in den Dachboden führt, dort mindestens Lagerfläche. Im Dachgeschoss ein Allzweckzimmer, der von den Kinderzimmer getrennt ist, damit dort auch abends die Nadel der guten Singer tanzen kann.
Und wer in Iserbrook baut, der sollte sich mit mind 48 Grad Dachneigung arrangieren 🙂
B
BucheOnBoard21.10.23 23:55Ich versuche mich mal durch die ganzen Posts des Tages und meine Gedanken zu wühlen...
Also es ist ein Architekt ohne Anführungszeichen und ja, auch wir sind damit nicht zufrieden und haben das Gefühl von Anführungszeichen - es sind eben alle Räume drin, die wir wollen, aber irgendwie nur aneinandergereiht, was in großen Flurflächen o.Ä. resultiert. Das dann am Ende der Wohnzimmer-Teil des Allraums schmaler ist als der jetzige ist natürlich auch nicht das, was man sich von einem Neubau erträumt, vor allem nicht, wenn der Architekt in selbigem Wohnzimmer schon saß. Das z.B. die vordere Terrasse bis in die Buche hineingezeichnet ist, ist dann zwar eigentlich eine Kleinigkeit, aber sorgt eben auch für keine so gute Laune. Dass im Carport kein Auto stehen soll sondern vielleicht irgendwann mal eines geladen werden soll hatten wir aber auch so kommuniziert, DARAN würde ich also die Anführungszeichen keinesfalls festmachen.
Die Buche ist aber auch der Hauptgrund für den Rücksprung: Ansonsten käme man der Krone sehr nah und müsste vor allem jährlich zurückschneiden, weil eben kaum Platz für den jährlichen Wuchs wäre. Gesagt hatten wir, dass dafür ein Erker (jedenfalls ein Vorsprung nicht über die ganze Hausbreite) ja ganz praktisch sein könnte. Daraus ist nun das mehr oder weniger "plumpe Abhacken des OG" geworden - was zusätzlich so nicht funktioniert, weil eben die Süd-Ost-Ecke zu nah am Stamm ist. Wir haben das gestern nochmal mit "unserem" Baumpfleger besprochen, der davon ausgeht dass es so nicht durchgehen würde oder die Baumpflege-Auflagen exorbitant aufwändig wären. Er würde uns dazu raten, die Bestandskellerwände (das Bestandshaus ist in der vorderen Hälfte unterkellert, allerdings sehr feucht und niedrig) der Ecke stehen zu lassen und dann auf der Südseite eigentlich nicht mehr als 11m zu bauen, den Arbeitsraum muss man beim Wurzelschutz auch beachten. Dafür könnte die Nordseite natürlich länger werden, was aber natürlich den Baukörper aufwändiger und damit tendenziell teurer macht. Ich habe mal ein Foto mit Blick von der Straße aus angehängt, um die Ausmaße der Buche zu verbildlichen.
Ansonsten hat @ypg in ihrem letzten Post viel schönes geschrieben: Die Einliegerwohnung ist eben nicht nur für Förderung, da soll schon auch jemand drin wohnen. Leider möchte man vor allem seine Ruhe haben und sich nicht in den Bauprozess einbringen, aber Platz im Bad und ums Bett sind da schon wichtig, ein Sofa wird es hingegen in der Einliegerwohnung nicht geben. Und Treppe im Allraum würden wir auch sehr gern vermeiden...
Resultierend aus dem eh notwendigen "Erker"/"Anbau" dachten wir dann, die gewonnenen Quadratmeter für die Geschossanzahl-Berechnung könnte man dann ja gut in mehr Kniestock investieren - was eben dem OG und auch dem Dachboden als Kellerersatz zu Gute käme. Und ein Spitzboden mit aktuell 3,20m von Boden bis Decke (ja, natürlich nur genau in der Mitte) ist auf jeden Fall ein schöner Raum. Finde ich. Stehe ich auch zu. Daher wird er auch ausgebaut, bei beiden favorisierten Anbietern wäre eh das ganze Dach gedämmt, und von innen zu, Strom vorhanden und ein (einfacher) Boden drin. Mein Herz hängt dabei nicht an der riesigen Treppe nach oben, aber mehr als eine Raumspartreppe mit abwechselnden Stufen sollte es halt schon sein. Wieviel Zeit wir dann haben, um es zu nutzen weiß ich nicht und vielleicht bleibt es auch nur ein Sehnsuchtsort und wird nur Lager. Aber ohne Keller brauchen wir den Platz ja nun mal auch irgendwie.
Und der Plan für die Abriss-/Neubauzeit ist tatsächlich eine Zwischenmietlösung, entweder Haus oder Wohnung. Ist (relativ) großzügig im Baubudget eingeplant, weil halt Hamburg...
Und ich hoffe das alles morgen irgendwie in eine Skizze zu bekommen...

Also es ist ein Architekt ohne Anführungszeichen und ja, auch wir sind damit nicht zufrieden und haben das Gefühl von Anführungszeichen - es sind eben alle Räume drin, die wir wollen, aber irgendwie nur aneinandergereiht, was in großen Flurflächen o.Ä. resultiert. Das dann am Ende der Wohnzimmer-Teil des Allraums schmaler ist als der jetzige ist natürlich auch nicht das, was man sich von einem Neubau erträumt, vor allem nicht, wenn der Architekt in selbigem Wohnzimmer schon saß. Das z.B. die vordere Terrasse bis in die Buche hineingezeichnet ist, ist dann zwar eigentlich eine Kleinigkeit, aber sorgt eben auch für keine so gute Laune. Dass im Carport kein Auto stehen soll sondern vielleicht irgendwann mal eines geladen werden soll hatten wir aber auch so kommuniziert, DARAN würde ich also die Anführungszeichen keinesfalls festmachen.
Die Buche ist aber auch der Hauptgrund für den Rücksprung: Ansonsten käme man der Krone sehr nah und müsste vor allem jährlich zurückschneiden, weil eben kaum Platz für den jährlichen Wuchs wäre. Gesagt hatten wir, dass dafür ein Erker (jedenfalls ein Vorsprung nicht über die ganze Hausbreite) ja ganz praktisch sein könnte. Daraus ist nun das mehr oder weniger "plumpe Abhacken des OG" geworden - was zusätzlich so nicht funktioniert, weil eben die Süd-Ost-Ecke zu nah am Stamm ist. Wir haben das gestern nochmal mit "unserem" Baumpfleger besprochen, der davon ausgeht dass es so nicht durchgehen würde oder die Baumpflege-Auflagen exorbitant aufwändig wären. Er würde uns dazu raten, die Bestandskellerwände (das Bestandshaus ist in der vorderen Hälfte unterkellert, allerdings sehr feucht und niedrig) der Ecke stehen zu lassen und dann auf der Südseite eigentlich nicht mehr als 11m zu bauen, den Arbeitsraum muss man beim Wurzelschutz auch beachten. Dafür könnte die Nordseite natürlich länger werden, was aber natürlich den Baukörper aufwändiger und damit tendenziell teurer macht. Ich habe mal ein Foto mit Blick von der Straße aus angehängt, um die Ausmaße der Buche zu verbildlichen.
Ansonsten hat @ypg in ihrem letzten Post viel schönes geschrieben: Die Einliegerwohnung ist eben nicht nur für Förderung, da soll schon auch jemand drin wohnen. Leider möchte man vor allem seine Ruhe haben und sich nicht in den Bauprozess einbringen, aber Platz im Bad und ums Bett sind da schon wichtig, ein Sofa wird es hingegen in der Einliegerwohnung nicht geben. Und Treppe im Allraum würden wir auch sehr gern vermeiden...
Resultierend aus dem eh notwendigen "Erker"/"Anbau" dachten wir dann, die gewonnenen Quadratmeter für die Geschossanzahl-Berechnung könnte man dann ja gut in mehr Kniestock investieren - was eben dem OG und auch dem Dachboden als Kellerersatz zu Gute käme. Und ein Spitzboden mit aktuell 3,20m von Boden bis Decke (ja, natürlich nur genau in der Mitte) ist auf jeden Fall ein schöner Raum. Finde ich. Stehe ich auch zu. Daher wird er auch ausgebaut, bei beiden favorisierten Anbietern wäre eh das ganze Dach gedämmt, und von innen zu, Strom vorhanden und ein (einfacher) Boden drin. Mein Herz hängt dabei nicht an der riesigen Treppe nach oben, aber mehr als eine Raumspartreppe mit abwechselnden Stufen sollte es halt schon sein. Wieviel Zeit wir dann haben, um es zu nutzen weiß ich nicht und vielleicht bleibt es auch nur ein Sehnsuchtsort und wird nur Lager. Aber ohne Keller brauchen wir den Platz ja nun mal auch irgendwie.
Und der Plan für die Abriss-/Neubauzeit ist tatsächlich eine Zwischenmietlösung, entweder Haus oder Wohnung. Ist (relativ) großzügig im Baubudget eingeplant, weil halt Hamburg...
Und ich hoffe das alles morgen irgendwie in eine Skizze zu bekommen...
BucheOnBoard schrieb:
aber es ist halt auch der erste Entwurf… und den ersten nimmt man nicht.Sagt dem Architekt, was missfällt. Er wird in seiner Kostenschätzung für sein Honorar mehrere Änderungen inkludiert haben.
Vielleicht wird ja noch ein guter Entwurf in die Mitte geworfen?!
BucheOnBoard schrieb:
Und ich hoffe das alles morgen irgendwie in eine Skizze zu bekommen...Warum Du jetzt? Und warum der Termin zu morgen?Die Buche: ich habe mir schon gedacht, dass der Rücksprung etwas damit zu tun hat.
Sind das echte Sandsteinklinker?
Ähnliche Themen