Hausbau - Ratgeber
Bauherrenhilfe
- Bauherrenhilfe vor Vertragsabschluss
-- Warum einen unabhängigen Baubetreuer?
-- Vertragsgrundlagen
-- Bausumme
-- Zahlungsplan zur Kostenkontrolle
-- Pflichten des Bauherren vor Vertragsabschluss
-- Unterlagen beim Hausbau vor Vertragsabschluss
- Bauherrenhilfe nach Vertragsabschluss
-- Bauantrag bei Behörden
-- Bau-Genehmigungsverfahren bei Baubehörden
-- Bauspezifische Versicherungen
-- Bauzeitenplan
-- Baubeginn - die Letzten Pflichten der Bauherrschaft
- Bauherrenhilfe während der Bauzeit
- Gewährleistungsansprüche
- Bauabnahme
Baufinanzierung
- Baufinanzierung - Allgemeine Fragen
- Kreditarten
- Kredit-Konditionen
- Bausparen
- Staatliche Förderungen
- Verkehrswert
- Haushaltsrechnung und Bonität
Hausbau Planung
- Haustypen
- Hausbau Vorbereitungsarbeiten
- Das Baugrundstück
- Baugrund beim Hausbau
- Baurecht
- Gebäudeschutz
- Erdarbeiten und Wasserhaltung
- Stützmauern
- Einfriedung
- Untergeschoss
- Kanalisation
- Tragende Elemente
- Nichttragende Innenwände
- Fundation / Fundament
- Deckenkonstruktionen
- Dächer
- Kaminanlagen
- Treppen Rampen Leitern
- Dachbeläge und Spengler
- Fenster
- Sonnen und Wetterschutz
- Aussenputze
- Einbauten, Küchen, Türen
- Bodenbeläge und Unterlagsböden
- Parkett
- Gips, Wand, Decke
Haustechnik und Energie
- Heiztechnik
- Lüftung und Klimatechnik
- Sanitärtechnik
- Elektrotechnik
- Erneuerbare Energie
Whirlpools / Jacuzzi
Hausbau Magazin
- Baufinanzierung trotz Krise?
- Das Blockhaus
- Moderne Dämmstoffe im Vergleich
- Erker Vor- und Nachteile
- Glasflächen beim Hausbau
- Günstig ein Haus Bauen
- Mediterraner Hausbaustil
- Mehrgenerationenhaus
- Moderne Architektur
- Gartengestaltung leicht gemacht
- Traditioneller Ziegelbau
- Villa als höchster Traum
- Im Eigenheim Ruhestand geniessen
- Altbau sanieren
- Kauf einer Holzgarage
- Immobilienmakler
- Arbeitshandschuhe für den Winter
- Zuhause verschönern
- Outdoor-Plissees
- Schlafzimmer planen
- Terrassenüberdachung
- Wohngebäudeversicherung
- Girokonto für Bauherren finden
- Hauseingang gestalten
- Zaunarten und Eigenschaften
- Der perfekte Grundriss
- Sparsamer heizen im Altbau
- Einfamilienhaus smart finanzieren
- Planung einer PV-Anlage
- Neues Haus
- Immobilienfinanzierung
- Installation einer Photovoltaikanlage
- Asbest erkennen und entfernen
- Gartenpflege im Frühling – worauf achten
- Sauna im Fokus - Wellness zuhause
- Erfolgreich vermieten
- Die perfekte Winterbekleidung
- Das Niedrigenergiehaus
- Der April und seine Stürme
- Architektonische Vielfalt
- Ökologisch und nachhaltig bauen
- Das perfekte Schlafzimmer
- Nachhaltige Energieversorgung
- Zukunftsorientiert bauen
- Nachhaltigkeit beim Hausbau
- Tiny Houses
- Wärmepumpen als nachhaltige Heizvariante
- Maßgeschneiderten Kleiderschrank
- Der richtige Baukredit
- Ratgeber für erfolgreichen Hausbau
- Haus als Altersvorsorge
Do-it-yourself Anleitungen
- Verlegeanleitung für Bodenbeläge und Parkett
- Bodenbeläge und Parkett reinigen und pflegen
- Malerarbeiten am Haus
- Garten Tipps
- Umzug und Reinigung

ᐅ Erfahrungen zum Eingang im UG

Erstellt am: 13.02.14 21:38
K
Kisska86
Hallo alle zusammen,
ich bin's mal wieder. Aber jetzt wird's konkret. Wir haben tatsächlich UNSER Grundstück gefunden und vermessen lassen. Der Vorvertrag liegt schon hier. 🙂
Jetzt fertigt uns der Architekt gerade den ersten Entwurf an, nachdem ich am Dienstag mit ihm alles geklärt habe. Er hat uns bei diesem Grundstück auch vorgeschlagen den Eingang ins UG zu packen und macht jetzt auch die Planung danach... Ich finde die Idee auch sehr interessant. Mein Mann ist da eher skeptisch. Wie seht ihr das? Praktisch oder eher umständlich oder wie? Hat jemand schon so geplant oder wohnt vielleicht schon so und kann Erfahrungen beisteuern?
Zum Grundstück: Es ist ein 700qm Grundstück, ca. 17m breit und 42m lang. Es ist nach hinten hin als Hang aufsteigend. Über die volle Länge ca. 4-5m. Wobei die ersten 3m Höhenunterschied direkt im ersten drittel ansteigen. Es ist ein Südhang, d.h. der Garten wird hinten im Norden sein (das stört uns bei der Länge des Grundstücks gar nicht und auch eine Nordterrasse empfinden wir als angenehm). Wir haben dann auch nur einen direkt Nachbarn rechts neben uns (Osten). Links (Westen) ist komplett unverbaut und hinten (Norden) der Nachbar ist ca. 100m oder noch weiter. Die Straße, also die Einfahrt und der geplante Eingang sind dann vorne (Süden).
Hausidee: Das Haus auf volle Baufensterbreite von 11m auszunutzen und da eine Doppelgarage für uns ein Muss ist, diese ins UG zu packen. D.h. das Haus quasi unterkellern wobei man von der Straße ebenerdig in die Garage fährt. Daneben will der Architekt jetzt den Haupteingang planen und eine schöne Diele mit Treppe hoch. Im UG sollen sonst nur noch Abstellräume sein und erst oben dann Wohnzimmer, Küche etc. Von da geht's dann auch hinten eben in den Garten.

Ich würde mich über ein paar Erfahrungen und Kritik hören.
Kisska8622.02.14 11:38
Hallo liebe Forummitglieder,
unsere Planung ist nun etwas konkreter geworden und mit dem aktuellen Grundriss sind wir schon ganz zufrieden.
Vielleicht finden sich ja doch noch ein paar Freiwillige, die etwas zu bemerken haben.
LG


Grundrissplan mit Garage für zwei Autos rechts und angrenzenden Wohn- und Nebenräumen links.


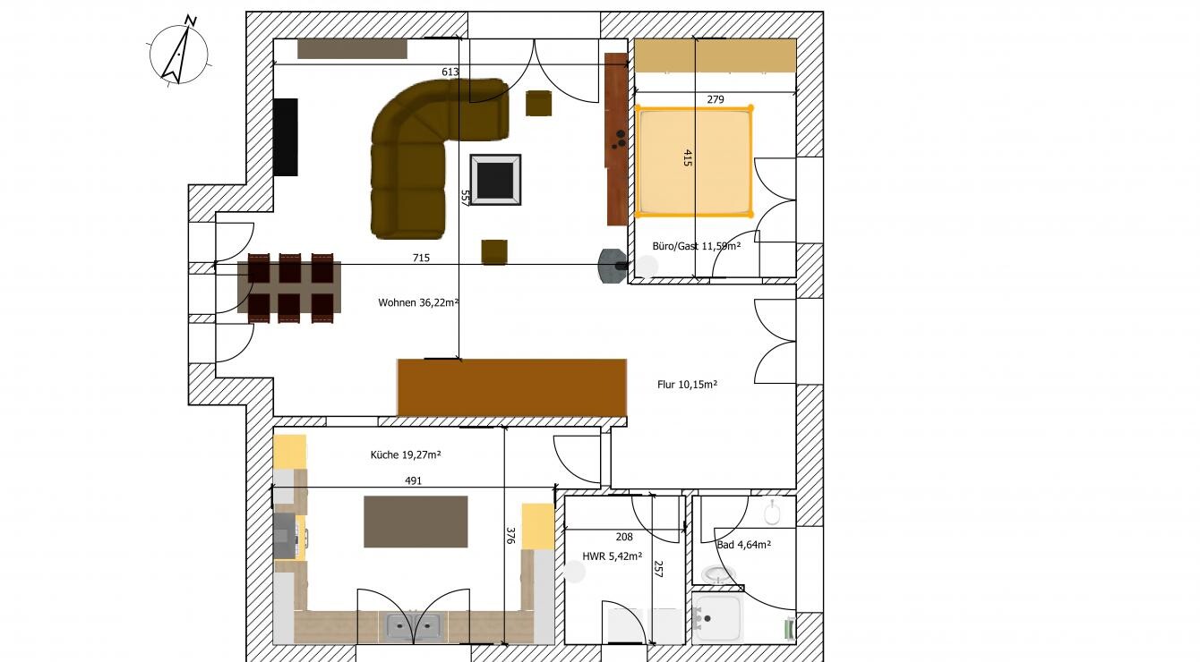
Detaillierter Grundriss eines Hauses mit Wohnzimmer, Küche, Essbereich, Büro und Bad


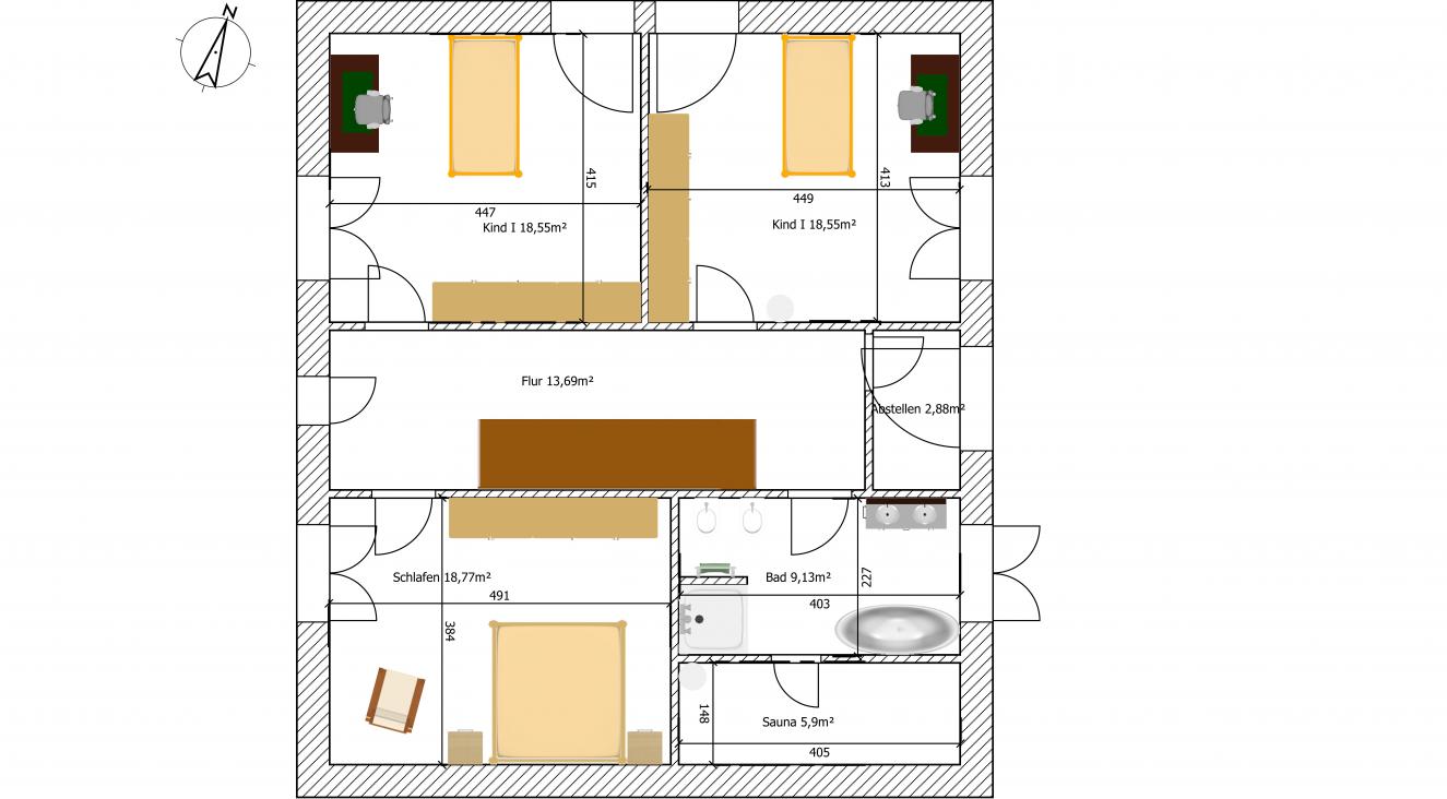
2D-Hausgrundriss mit Schlafzimmern Bad Sauna Flur und Küche
Kisska8622.02.14 11:54
Ach, hier vielleicht noch ein paar Ansichten zur besseren Orientierung.


3D-Modell eines roten Ziegelhauses mit Garage, Vorderansicht


Vorderansicht eines roten Hauses mit Satteldach vor blauem Himmel.


Kleines 3D-Hausmodell mit rotem Ziegeldach und großen Fenstern vor hellem Hintergrund


Dreidimensionales Hausmodell mit rotem Ziegeldach vor hellem Hintergrund
WildThing25.02.14 13:17
Hallo Kisska,

ich finde die Ausrichtung immer noch nicht so ganz gelungen ehrlich gesagt. Jetzt hast du im UG ja doch das Bad und Küche im Süden und das Wohnzimmer im Nord-Westen...
Im EG ist es ebenfalls so das ihr Schlafzimmer und Bad Richtung Süden habt. D. h. es wird schön warm im Schlafzimmer und die Sonne im Badezimmer ist auch "verschenkt". ICh fände es besser im OG die Seiten zu tauschen und den Kindern mehr Licht zu geben. Die müssen/sollen ja schließlich mal Hausaufgaben in ihren zimmern machen oder spielen unter Tags in den Kinderzimmern. Nord-West oder Nord-Ost Ausrichtung ist da vielleicht nicht so schön.

Und welchen Grund hat diese "halb"-Unterkellerung? Ist das günstiger als eine komplette Unterkellerung?

Viel Glück
WildThing
WildThing25.02.14 13:19
Noch eine Frage vergessen: Wo ist dem im Kellergeschoss die Eingangstüre? Und warum kann man von der Garage nicht ins Haus gehen? Müsst ihr dann immer außenrum gehen um ins Haus zu gelangen?
WildThing25.02.14 13:21
Aber ich find den Entwurf auf jeden Fall besser als den ersten :-) So ist es schonmal besser ausgenutzt und auf Westen ausgerichtet als beim ersten Entwurf... :-)
Kisska8625.02.14 15:44
Danke WildThink für die Kommentare.
An der Ausrichtung ist leider nicht viel zu machen. Es ist nun mal ein Nordgrundstück. Wobei die Kinderzimmer haben Freunde von uns sehr ähnlich und auf Grund der großen Fenster und de Gaube ist es überhaupt nicht dunkel. Unser Büro in der Wohnung jetzt ist auch Nord-West und hat zwei große bodentiefe Fenster und es ist gar nicht dunkel. Richtige Südzimmer haben wir ja nicht, da die Firstausrichtung Süd-Nord ist. Naja, un das Wohnzimmer Richtung Süden macht halt keinen Sinn. Was sollen wir denn auch die ganze Zeit auf die Straße gucken, bei dem schönen Garten. 🙂

Die Teilunterkellerung ist bei uns erheblich günstiger. Es ist ein Hanggrundstück und dann muss kaum was ausgehoben werden vorne für das UG. Und eigentlich wollten wir gar keinen Keller. So ist es ein ausreichender Kompromiss.

Die EinganstUr die direkt neben der Garage. Durch die Garage gehts nicht rein wegen Kältebrücke. Da ist auch eine doppelte Dämmung zwischen Garage und Haus. Wir wollten die Kälte und Feuchtigkeit aus der Garage nicht direkt im Haus haben.
garagewohnzimmerschlafzimmerunterkellerungentwurffenster