Hallo zusammen,
wir stecken gerade noch im Frühstadium der Hausplanungen und haben inzwischen den ersten Entwurf soweit fertig und möchten ihn hier gerne zur Diskussion stellen, bevor wir in 2 Wochen das Gespräch mit einem befreundeten Architekten suchen.
Es würde uns freuen, wenn Ihr uns Eure Gedanken mitteilen könntet und wenn ihr noch Potential seht, die Hausbaukosten noch zu verringern.
Herzlich Dank vorab und schönen Gruß!
Grundsätzliches:
- Es soll ein Massivholzhaus bzw. soweit erschwinglich ein Doppelblockhaus werden.
- Das Haus soll am Waldrand errichtet werden (im Norden vom Haus ist Wald)
- Die Grundrisspläne sind eingenordet.
- Terrasse und Carport sind noch nicht eingezeichnet. Die Terrasse soll an der Süd-West-Ecke des Hauses entstehen (siehe Terrassentüre); Der Doppelcarport östlich vom Haus.
Bebauungsplan/Einschränkungen
Größe des Grundstücks: 1.200 m²
Hang: Ja, leicht nach Süden hin abfallend
Grundflächenzahl: 0,4
Geschossflächenzahl: 0,8
Baufenster, Baulinie und -grenze: Die angegebenen Außenmaße stellen kein Problem dar.
Randbebauung: ?
Anzahl Stellplatz: geplant ist ein Doppelcarport östlich vom Haus, weil die Zufahrtsstraße östl. vom Gebäude nach Norden führt.
Geschossigkeit: EG + OG
Dachform: Satteldach
Ausrichtung: perfekt südexponiert
Maximale Höhen/Begrenzungen: keine relevanten
weitere Vorgaben: keine
Anforderungen der Bauherren
Stilrichtung, Dachform, Gebäudetyp: Blockhaus, Satteldach, Kniestockhaus, offener Dachstuhl
Keller, Geschosse: EG+OG, kein Keller
Anzahl der Personen, Alter: 2 Personen, Ende 30, keine Kinder geplant
Raumbedarf im EG, OG
Büro: Familiennutzung oder Homeoffice?: Homeoffice, ja.
Schlafgäste pro Jahr: Mehrmals jährlich junge Familien zu Besuch
offene oder geschlossene Architektur: Offen!
konservativ oder moderne Bauweise: Blockhaus, praktisch, kein Firlefanz.
offene Küche, Kochinsel: ja
Anzahl Essplätze: Standard 6 => Bis zu 10
Kamin: ja
Musik/Stereowand: Nein
Balkon, Dachterrasse: Nein
Garage, Carport: Doppelcarport östlich vom Haus.
Nutzgarten, Treibhaus: ja
weitere Wünsche/Besonderheiten/Tagesablauf: Leben im EG, Sport + Schlafen im OG (weil kein Keller). evtl. zweites Fernseh-Eck im OG.
Hausentwurf
Von wem stammt die Planung:
-Do-it-Yourself von uns
Was gefällt besonders? Mit EG sind wir im Grunde sehr zufrieden => weil offen
Was gefällt nicht?: Am OG basteln wir die ganze Zeit herum. Wir wollen 2 Schlafzimmer im OG + Bad + einem offenen Bereich für Sport/Lesen/Fernsehen als eine Art Galerie in die Abends das Licht aus dem Westen hineinscheint. Sollten doch noch Kinder hinzukommen oder das Haus verkauft werden, soll aus dem offenen Bereich im OG ein weiteres Schlafzimmer entstehen können.
Preisschätzung lt Architekt/Planer: noch keine
Persönliches Preislimit fürs Haus, inkl Ausstattung: 250 T€
favorisierte Heiztechnik: Holzofen im Wohnzimmer mit Wassertaschen, der die Wärme zu > 80% in den Pufferspeicher einspeist und damit Bodenheizung und Brauchwasser erwärmt. In der Übergangszeit / Sommer soll das Brauchwasser über Photovoltaik mit Heizstab oder Solarthermie erwärmt werden.
Wenn Ihr verzichten müsst, auf welche Details/Ausbauten
-könnt Ihr verzichten: Keine?
-könnt Ihr nicht verzichten: Offenes EG, Holzdecken, offener Dachstuhl
Womit wir so unser Problem haben:
- Kniestockhöhe von ~1,9 Meter und den damit verbundenen schmalen Fenstern in Richtung Süden im OG.
- Vermutlich mit dem Preis des ganzen Gebäudes








wir stecken gerade noch im Frühstadium der Hausplanungen und haben inzwischen den ersten Entwurf soweit fertig und möchten ihn hier gerne zur Diskussion stellen, bevor wir in 2 Wochen das Gespräch mit einem befreundeten Architekten suchen.
Es würde uns freuen, wenn Ihr uns Eure Gedanken mitteilen könntet und wenn ihr noch Potential seht, die Hausbaukosten noch zu verringern.
Herzlich Dank vorab und schönen Gruß!
Grundsätzliches:
- Es soll ein Massivholzhaus bzw. soweit erschwinglich ein Doppelblockhaus werden.
- Das Haus soll am Waldrand errichtet werden (im Norden vom Haus ist Wald)
- Die Grundrisspläne sind eingenordet.
- Terrasse und Carport sind noch nicht eingezeichnet. Die Terrasse soll an der Süd-West-Ecke des Hauses entstehen (siehe Terrassentüre); Der Doppelcarport östlich vom Haus.
Bebauungsplan/Einschränkungen
Größe des Grundstücks: 1.200 m²
Hang: Ja, leicht nach Süden hin abfallend
Grundflächenzahl: 0,4
Geschossflächenzahl: 0,8
Baufenster, Baulinie und -grenze: Die angegebenen Außenmaße stellen kein Problem dar.
Randbebauung: ?
Anzahl Stellplatz: geplant ist ein Doppelcarport östlich vom Haus, weil die Zufahrtsstraße östl. vom Gebäude nach Norden führt.
Geschossigkeit: EG + OG
Dachform: Satteldach
Ausrichtung: perfekt südexponiert
Maximale Höhen/Begrenzungen: keine relevanten
weitere Vorgaben: keine
Anforderungen der Bauherren
Stilrichtung, Dachform, Gebäudetyp: Blockhaus, Satteldach, Kniestockhaus, offener Dachstuhl
Keller, Geschosse: EG+OG, kein Keller
Anzahl der Personen, Alter: 2 Personen, Ende 30, keine Kinder geplant
Raumbedarf im EG, OG
Büro: Familiennutzung oder Homeoffice?: Homeoffice, ja.
Schlafgäste pro Jahr: Mehrmals jährlich junge Familien zu Besuch
offene oder geschlossene Architektur: Offen!
konservativ oder moderne Bauweise: Blockhaus, praktisch, kein Firlefanz.
offene Küche, Kochinsel: ja
Anzahl Essplätze: Standard 6 => Bis zu 10
Kamin: ja
Musik/Stereowand: Nein
Balkon, Dachterrasse: Nein
Garage, Carport: Doppelcarport östlich vom Haus.
Nutzgarten, Treibhaus: ja
weitere Wünsche/Besonderheiten/Tagesablauf: Leben im EG, Sport + Schlafen im OG (weil kein Keller). evtl. zweites Fernseh-Eck im OG.
Hausentwurf
Von wem stammt die Planung:
-Do-it-Yourself von uns
Was gefällt besonders? Mit EG sind wir im Grunde sehr zufrieden => weil offen
Was gefällt nicht?: Am OG basteln wir die ganze Zeit herum. Wir wollen 2 Schlafzimmer im OG + Bad + einem offenen Bereich für Sport/Lesen/Fernsehen als eine Art Galerie in die Abends das Licht aus dem Westen hineinscheint. Sollten doch noch Kinder hinzukommen oder das Haus verkauft werden, soll aus dem offenen Bereich im OG ein weiteres Schlafzimmer entstehen können.
Preisschätzung lt Architekt/Planer: noch keine
Persönliches Preislimit fürs Haus, inkl Ausstattung: 250 T€
favorisierte Heiztechnik: Holzofen im Wohnzimmer mit Wassertaschen, der die Wärme zu > 80% in den Pufferspeicher einspeist und damit Bodenheizung und Brauchwasser erwärmt. In der Übergangszeit / Sommer soll das Brauchwasser über Photovoltaik mit Heizstab oder Solarthermie erwärmt werden.
Wenn Ihr verzichten müsst, auf welche Details/Ausbauten
-könnt Ihr verzichten: Keine?
-könnt Ihr nicht verzichten: Offenes EG, Holzdecken, offener Dachstuhl
Womit wir so unser Problem haben:
- Kniestockhöhe von ~1,9 Meter und den damit verbundenen schmalen Fenstern in Richtung Süden im OG.
- Vermutlich mit dem Preis des ganzen Gebäudes
Hmm .. warum ist der Kniestock auf 190 cm begrenzt? Da dürfte Oberkante der Fenster dann bei max. ca. 160 bis 170 liegen... wie ich finde eine ganz blöde Höhe.
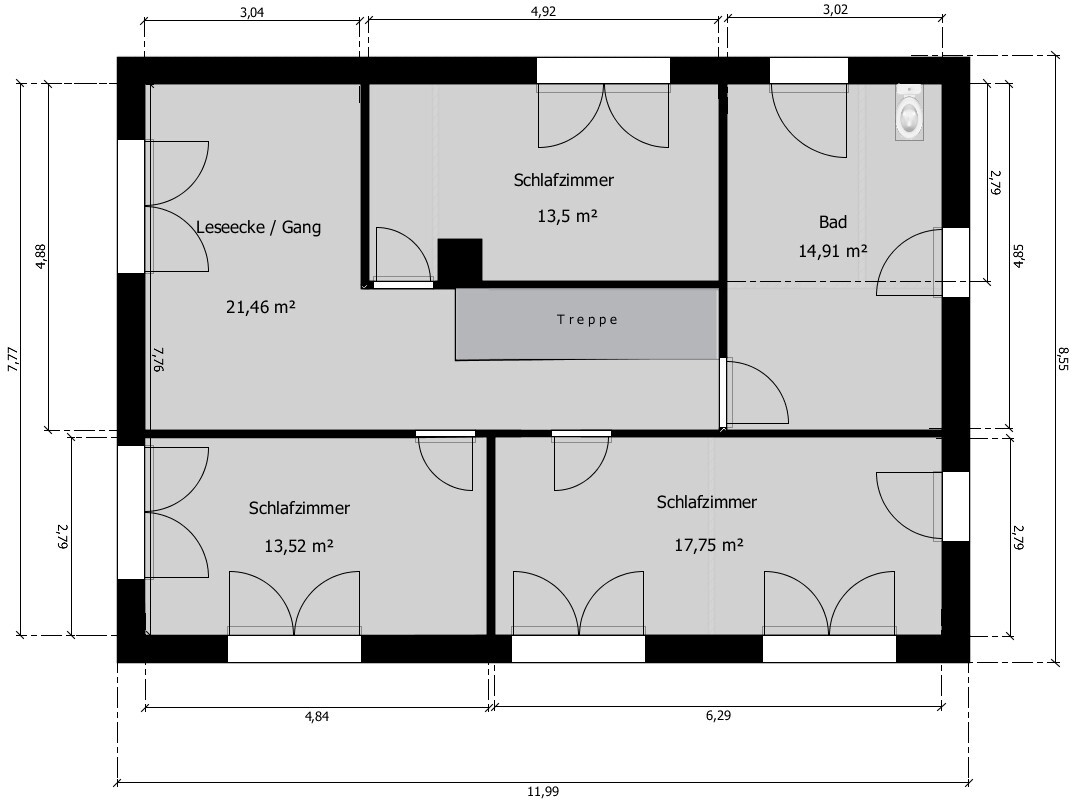
Schlafzimmer, keines der Schlafzimmer erlaubt einen 300 cm Schrank (Im Falle 2 Kinder oder so). Die FEnster sind direkt an der Trennwand, da sollten mind 65 cm Abstand zur Wand sein, damit da mal ein Schrank stehen könnte. 279 cm Rohbautiefe von den Räumen ist grenzwertig. Ein Bett mit Rahmen muss man schon mit 210 Länge rechnen. Der Kaminschacht in dem einen Schlafzimmer direkt am Eingang ist auch nicht so schön.
Treppenhaus im OG ca. 206 cm breit, man darf nicht vergessen, dass das Treppenloch auch noch mit einem Geländer gesichert werden muss, was dann Flurbreite kostet.
Im EG fehlen tragende Wände. Ich denke mit nur 12 cm dicken Wänden läßt sich das Haus so nicht bauen.
Es hilft ungemein ein gutes Raumgefühl zu bekommen, wenn man die Räume, auch im OG realistisch mit Möbeln bestückt.
Vielleicht wäre der Lageplan mit eingezeichnetem Baufenster doch mal recht sinnvoll.
Zur Hausform .. offener Dachstuhl, also in den OG-Räumen jeweils offen nach oben? Wird das in den Schlafräumen wirken? Im offenen Bereich kann ich es mir vorstellen.
Schlafzimmer, keines der Schlafzimmer erlaubt einen 300 cm Schrank (Im Falle 2 Kinder oder so). Die FEnster sind direkt an der Trennwand, da sollten mind 65 cm Abstand zur Wand sein, damit da mal ein Schrank stehen könnte. 279 cm Rohbautiefe von den Räumen ist grenzwertig. Ein Bett mit Rahmen muss man schon mit 210 Länge rechnen. Der Kaminschacht in dem einen Schlafzimmer direkt am Eingang ist auch nicht so schön.
Treppenhaus im OG ca. 206 cm breit, man darf nicht vergessen, dass das Treppenloch auch noch mit einem Geländer gesichert werden muss, was dann Flurbreite kostet.
Im EG fehlen tragende Wände. Ich denke mit nur 12 cm dicken Wänden läßt sich das Haus so nicht bauen.
Es hilft ungemein ein gutes Raumgefühl zu bekommen, wenn man die Räume, auch im OG realistisch mit Möbeln bestückt.
Vielleicht wäre der Lageplan mit eingezeichnetem Baufenster doch mal recht sinnvoll.
Zur Hausform .. offener Dachstuhl, also in den OG-Räumen jeweils offen nach oben? Wird das in den Schlafräumen wirken? Im offenen Bereich kann ich es mir vorstellen.
- WC ist mit 1.1 m etwas schmal für die Anordnung des Waschbeckens
- 2.79 lässt sich schlecht möblieren für ein doppelbett
- Wenn da wirklich wer fern schaut beschallt er die Schlafenden
- Der schönste Raum ist das Bad im OG - schade eigentlich.
- Flur im OG ist grenzwertig schmal
- 2.79 lässt sich schlecht möblieren für ein doppelbett
- Wenn da wirklich wer fern schaut beschallt er die Schlafenden
- Der schönste Raum ist das Bad im OG - schade eigentlich.
- Flur im OG ist grenzwertig schmal
Ich musste gerade überall recht oft nicken ... das sind schon hilfreiche Hinweise, danke.
- Kniestock ist derzeit 1,90 hoch, weil wir gedacht haben, damit Kosten sparen zu können. Es ist aber kein Problem, den auf 2,20 zu erhöhen.
- Die Stellfläche für kleiderschränke werden wir checken
- Den Flur haben wir bewusst recht schmal geplant, weil er nur tote/verlorene Verkehrsfläche ist und man auf einem Meter gut aneinander vorbeikommt. Den Platzbedarf des Treppengeländers haben wir zugegebenermaßen übersehen.
- Die Rohbautiefe von 2,80 checken wir auch nochmal. evtl. verbreitern wir das Haus doch noch ein wenig.
- Der Kaminschacht im Schlafzimmer stört uns nicht. Ist ein guter Sichtschutz 😉
- Bitte bedenkt, dass es sich um ein Blockhaus aus massiven Holzbalken handeln soll. Damit lassen sich größere Distanzen überbrücken als bei Steinbauten. Zur Unterstützung der Statik steht an der Kochinsel ein kleiner Holzpfosten.
- Auch sind die knapp 10 cm breiten Innenwände aus massivem Holz absolut ausreichend, das Haus zu tragen.
- Die Räume werden wir noch mit Möbeln bestücken.
- Zum WC mit 1,10 Meter breite: Unser jetziges Gäste-WC hat eine Breite von 78 cm, daher dachten wir 1,10 wäre riesig! Die Wand ist schnell verschoben, danke.
Ich fang mal ganz woanders an:
Ich finde das EG im Groben auch ganz gut. Ich würde - wenn - eventuell Büro als Technik/Abstell machen, da eine Nische für einbauschränke als Garderobe im Eingangsbereich. Jetzigen Abstellraum teilen in Hauswirtschaftsraum und Büro.
Büro würde ich nicht so sonnig gestalten, da Wärme bzw Sonne für beständiges Arbeiten nicht angenehm ist. Kochinsel in das L etwas einziehen, sodass ein angenehmer Abstand zwischen den Arbeitsfeldern vorhanden ist (sieht jetzt doch etwas weit aus)
Aber:
Mit diesen Informationen würde ich ganz anders planen.
Entweder:
Privaträume nach oben und ein adäquates Gästezimmer mit Dusch-WC nach unten. Erfordert eine größere Grundfläche im EG und etwas weniger im OG.
Oder:
Schlafzimmer nach unten mit Bad und sonstige Räume inkl. Gast und Bad nach oben.
Erfordert auch eine größere Grundfläche im EG und etwas weniger im OG.
Im Prinzip ist es egal, wie man es nennt, aber bei Infos wie Ende 30, zu zweit, Platz für Gast und Sport macht anderes mM nach keinen Sinn.
Nehmen wir erstere Alternative, dann könnt Ihr später die Gasträume im EG selbst noch im Alter benutzen. Eventuell kann man Gast und Büro auch zusammenlegen.
Oben kann man Schlafzimmer mit Ankleide im Osten planen, mittig die Treppe mit Flur, Abstell (oder Fitness) und Bad, im Westen offen lassen für (Fitnessgerät und) TV-Wohnen/abends (beim Umbau Platz für weitere 2 Zimmer)
Ich denke aber eher, dass da mehr Wunsch des unkonventionellen Wohnen ist und/oder der Platz, der im OG zu viel ist, einem Namen gegeben werden muss, aber im Alltag der zweite Wohnbereich kaum genutzt werden wird.
Sicherlich ist es heutzutage bei einer mehr-köpfigen Familie und kleinen Grundstücken Absicht, soviel Platz wie möglich auf kleiner Fläche zu bekommen und somit sinnvoll, den Kniestock auf das möglichst höchste Niveau zu bekommen, aber nicht unbedingt, wenn man mehr Grundfläche im EG als im OG benötigt.
Ich denke, hier wird letztendlich falsch geplant: ein Haus für 2 Personen im mittleren Alters deckt nicht die Anforderungen an ein Haus für eine (junge) Familie. Sicherlich kann man das ein oder andere berücksichtigen (zB. für den Fall einer Bedürfnisänderung, unter Anderem bei Verkauf), aber nicht jeder Situation gerecht werden.
Deshalb würde ich auf einen grossen Drempel verzichten, eher das Dach tiefer setzten und den niedrigen Kniestock entweder ab“mauern“ oder als Abstellräume nutzen.
Auch für die Zimmeranordnungen bzw Fensterlagen im OG braucht man hier keinen hohen Drempel, wenn man die Schlafräume gen Osten und Westen plant, in der Mitte den Treppenbereich mit Abstellräumen unter den Schrägen.
Pi mal Daumen haben wir hier im EG 86qm, das gleiche dann noch oben, macht eine Wohnfläche für 2 Personen von 170qm.
Zugleich wird aber von einem preisbewussten Haus geredet. Das beisst sich.
Das Argument, alles schön grosszügig zu bekommen, erreicht man für 2 Personen auch mit 40qm weniger... und die 130qm sind dann immer noch ausreichend für eine kleine Familie. Und es gibt beim Verkauf eine mittlerweile stetig wachsende Zielgruppe: 2 Personen!
Wir haben übrigens selbst 86qm im EG, im OG durch versetzte Pultdächer nur ~50qm. Es ist grosszügig, wir haben im OG einen 2ten Hauswirtschaftsraum, im EG ein Zimmer, welches zur Zeit Büro/Gast ist und später mal als Schlafzimmer dienen kann. Wenn ein Verkauf ansteht, kann dieses Zimmer auch als Kinder-/Jugendzimmer dienen und die Eltern haben wie wir ihren Bereich im OG.
Das kann grosszügig und gleichzeitig ungemütlich wirken! Wir haben es in unserem Reihenhaus offen nach oben gehabt bei einem Kniestock von +- 2 Metern, am höchsten Punkt des Raumes hatten wir 3,40cm: Im Bürozimmer war es nice to have, im grossen Schlafzimmer kam keine Gemütlichkeit auf. Dennoch würde ich es immer vom Einzelfall abhängig machen, da es sehr auf Schnitt, Höhe bzw Dachneigung und Nutzen des Raumes abhängig ist.
Gruß Yvonne
Thorn schrieb:
Mit EG sind wir im Grunde sehr zufrieden
Ich finde das EG im Groben auch ganz gut. Ich würde - wenn - eventuell Büro als Technik/Abstell machen, da eine Nische für einbauschränke als Garderobe im Eingangsbereich. Jetzigen Abstellraum teilen in Hauswirtschaftsraum und Büro.
Büro würde ich nicht so sonnig gestalten, da Wärme bzw Sonne für beständiges Arbeiten nicht angenehm ist. Kochinsel in das L etwas einziehen, sodass ein angenehmer Abstand zwischen den Arbeitsfeldern vorhanden ist (sieht jetzt doch etwas weit aus)
Aber:
Thorn schrieb:
Anzahl der Personen, Alter: 2 Personen, Ende 30, keine Kinder geplant
Thorn schrieb:
Schlafgäste pro Jahr: Mehrmals jährlich junge Familien zu Besuch
Thorn schrieb:
weitere Wünsche/Besonderheiten/Tagesablauf: Leben im EG, Sport + Schlafen im OG (weil kein Keller). evtl. zweites Fernseh-Eck im OG.
Thorn schrieb:
Wir wollen 2 Schlafzimmer im OG + Bad + einem offenen Bereich für Sport/Lesen/Fernsehen als eine Art Galerie in die Abends das Licht aus dem Westen hineinscheint. Sollten doch noch Kinder hinzukommen oder das Haus verkauft werden, soll aus dem offenen Bereich im OG ein weiteres Schlafzimmer entstehen können.
Mit diesen Informationen würde ich ganz anders planen.
Entweder:
Privaträume nach oben und ein adäquates Gästezimmer mit Dusch-WC nach unten. Erfordert eine größere Grundfläche im EG und etwas weniger im OG.
Oder:
Schlafzimmer nach unten mit Bad und sonstige Räume inkl. Gast und Bad nach oben.
Erfordert auch eine größere Grundfläche im EG und etwas weniger im OG.
Im Prinzip ist es egal, wie man es nennt, aber bei Infos wie Ende 30, zu zweit, Platz für Gast und Sport macht anderes mM nach keinen Sinn.
Nehmen wir erstere Alternative, dann könnt Ihr später die Gasträume im EG selbst noch im Alter benutzen. Eventuell kann man Gast und Büro auch zusammenlegen.
Oben kann man Schlafzimmer mit Ankleide im Osten planen, mittig die Treppe mit Flur, Abstell (oder Fitness) und Bad, im Westen offen lassen für (Fitnessgerät und) TV-Wohnen/abends (beim Umbau Platz für weitere 2 Zimmer)
Ich denke aber eher, dass da mehr Wunsch des unkonventionellen Wohnen ist und/oder der Platz, der im OG zu viel ist, einem Namen gegeben werden muss, aber im Alltag der zweite Wohnbereich kaum genutzt werden wird.
kbt09 schrieb:
Hmm .. warum ist der Kniestock auf 190 cm begrenzt? Da dürfte Oberkante der Fenster dann bei max. ca. 160 bis 170 liegen... wie ich finde eine ganz blöde Höhe.
Sicherlich ist es heutzutage bei einer mehr-köpfigen Familie und kleinen Grundstücken Absicht, soviel Platz wie möglich auf kleiner Fläche zu bekommen und somit sinnvoll, den Kniestock auf das möglichst höchste Niveau zu bekommen, aber nicht unbedingt, wenn man mehr Grundfläche im EG als im OG benötigt.
Ich denke, hier wird letztendlich falsch geplant: ein Haus für 2 Personen im mittleren Alters deckt nicht die Anforderungen an ein Haus für eine (junge) Familie. Sicherlich kann man das ein oder andere berücksichtigen (zB. für den Fall einer Bedürfnisänderung, unter Anderem bei Verkauf), aber nicht jeder Situation gerecht werden.
Deshalb würde ich auf einen grossen Drempel verzichten, eher das Dach tiefer setzten und den niedrigen Kniestock entweder ab“mauern“ oder als Abstellräume nutzen.
Auch für die Zimmeranordnungen bzw Fensterlagen im OG braucht man hier keinen hohen Drempel, wenn man die Schlafräume gen Osten und Westen plant, in der Mitte den Treppenbereich mit Abstellräumen unter den Schrägen.
Pi mal Daumen haben wir hier im EG 86qm, das gleiche dann noch oben, macht eine Wohnfläche für 2 Personen von 170qm.
Zugleich wird aber von einem preisbewussten Haus geredet. Das beisst sich.
Das Argument, alles schön grosszügig zu bekommen, erreicht man für 2 Personen auch mit 40qm weniger... und die 130qm sind dann immer noch ausreichend für eine kleine Familie. Und es gibt beim Verkauf eine mittlerweile stetig wachsende Zielgruppe: 2 Personen!
Wir haben übrigens selbst 86qm im EG, im OG durch versetzte Pultdächer nur ~50qm. Es ist grosszügig, wir haben im OG einen 2ten Hauswirtschaftsraum, im EG ein Zimmer, welches zur Zeit Büro/Gast ist und später mal als Schlafzimmer dienen kann. Wenn ein Verkauf ansteht, kann dieses Zimmer auch als Kinder-/Jugendzimmer dienen und die Eltern haben wie wir ihren Bereich im OG.
kbt09 schrieb:
Zur Hausform .. offener Dachstuhl, also in den OG-Räumen jeweils offen nach oben? Wird das in den Schlafräumen wirken? Im offenen Bereich kann ich es mir vorstellen.
Das kann grosszügig und gleichzeitig ungemütlich wirken! Wir haben es in unserem Reihenhaus offen nach oben gehabt bei einem Kniestock von +- 2 Metern, am höchsten Punkt des Raumes hatten wir 3,40cm: Im Bürozimmer war es nice to have, im grossen Schlafzimmer kam keine Gemütlichkeit auf. Dennoch würde ich es immer vom Einzelfall abhängig machen, da es sehr auf Schnitt, Höhe bzw Dachneigung und Nutzen des Raumes abhängig ist.
Gruß Yvonne
Yvonne hat das wieder mal gut in Worte gefasst, was mir auch noch so durch den Kopf gegangen ist.
Ich stolpere z. B. über
Ich stolpere z. B. über
Thorn schrieb:und dann die 2 Schlafzimmer im OG .. soll eines davon das Gästezimmer sein? Junge Familien, das stelle ich mir 2 Erwachsene und 1 bis 2 Kinder vor. Oder sollen die Schlafzimmer für euch sein, weil ihr getrennt schlaft und die Gäste schlafen im großen Allzweckraum?
Schlafgäste pro Jahr: Mehrmals jährlich junge Familien zu Besuch
Ähnliche Themen