ᐅ Einliegerwohnung für Eltern: 210 m² Einfamilienhaus und 80 m² Einliegerwohnung
Erstellt am: 22.04.17 18:22
S
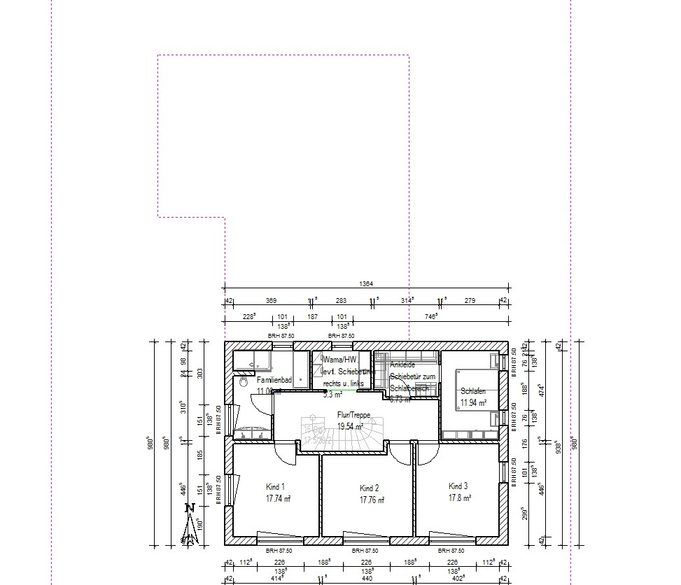
schustrikWo ist denn die Sauna?
Und, der Wohn-Ess-Kochbereich der Einliegerwohnung ist schon arg klein, genauso wie die 300 cm im Einliegerwohnung-Schlafzimmer. Da bleibt nicht viel Platz neben dem Bett.
Dafür eine Riesendiele im Haupthaus, die praktisch keinerlei Garderobenplatz bietet. Auch die Diele der Einliegerwohnung birgt kaum Platz für Garderobe
Der Weg des Autos direkt vor der Haustür dürfte kritisch sein ... und leider baut man da quasi viel Straße auf dem eigenen Grundstück. Wird der Platz vor der Einliegerwohnung als Terrasse genutzt, kommt ein Auto nicht mehr durch.
Und, der Wohn-Ess-Kochbereich der Einliegerwohnung ist schon arg klein, genauso wie die 300 cm im Einliegerwohnung-Schlafzimmer. Da bleibt nicht viel Platz neben dem Bett.
Dafür eine Riesendiele im Haupthaus, die praktisch keinerlei Garderobenplatz bietet. Auch die Diele der Einliegerwohnung birgt kaum Platz für Garderobe
Der Weg des Autos direkt vor der Haustür dürfte kritisch sein ... und leider baut man da quasi viel Straße auf dem eigenen Grundstück. Wird der Platz vor der Einliegerwohnung als Terrasse genutzt, kommt ein Auto nicht mehr durch.
S
schustrik09.08.17 19:3111ant schrieb:
Die erste Stufe zu "überbauen" ist schon o.k. so.Wie meinst du das mit der ersten Stufe? im OG im Kinderzimmer hinter der Treppe ist doch eine lücke.11ant schrieb:
Der Bauordnung bzw. dem Bebauungsplan wird es reichen, und bei einem Sektionaltor auch in der Praxis. Ich meine damit ob es ausreichen würde 5,5 Meter Abstand von der Strasse zu halten oder ob es da Erfahrungen gibt das man es eventuell länger macht.11ant schrieb:
Wo willst Du im EG die Teilung vornehmen, daß oben eine separate Wohnung entstehen könnte ?Eingang für das OG durch den Haupteingang und dann die Treppe "abmauern" oder auch sofort statt einer Holztreppe eine Betontreppe machen und für die Wohnung im EG wäre dann der Eingang über den jetzigen Nebeneingang ODER auch durch den Haupteingang und das man dann dort eine weitere Tür nachträglich einbaut nach dem ende der Stufen der Treppe.11ant schrieb:
Beides. Ein bißchen weniger Katastrophe als bisher vielleicht. Was bleibt, ist Deine m.E. unglückliche Herangehensweise. Irgendwie scheinst Du mir da mit einem Mousepadhorizont dranzugehen. Und für den Fetisch mit der möglichst symmetrischen Vorderansicht springen an jeder Menge Stellen harmonische Proportionen über die Klinge. Ästhetisch könnte das genau das verhindern, was Du eigentlich zu erreichen versuchst (?)An welcher stelle springen den harmonische Proportionen über die Klinge?11ant schrieb:
Das Möbel-Mindestmaß-Arrangement scheint sich ganz langsam ein wenig zu entkrampfen, aber der Weg ist insgesamt noch weit.Die ganzen Schränke sind meistens mit dem maiximalmass eingetragen, also wo ein Schrank steht von 300 cm könnte man auch einen mit 200 cm hinstellen.ypg schrieb:
Du hast für Deine Symmetrie vergessen, bei der Einliegerwohnung ein Garagentor ins Wohnzimmer zu bauen Ach stimmt kbt09 schrieb:
Wo ist denn die Sauna?Die könnte auch jetzt mittlerweile ganz weg aber da im Bad im OG doch noch etwas Platz ist würden wir sie dort unterbringen.kbt09 schrieb:
Und, der Wohn-Ess-Kochbereich der Einliegerwohnung ist schon arg klein, genauso wie die 300 cm im Einliegerwohnung-Schlafzimmer. Da bleibt nicht viel Platz neben dem Bett.Ja davor die Planung hatt 350 qm und diese hat 245 qm und dadurch muss die Einliegerwohnung kleiner werden, Das Einliegerwohnung Schlafzimmer hatte ich auch erst etwas größer gezeichnet aber dann wäre das Einliegerwohnung Bad kleiner. kbt09 schrieb:
Dafür eine Riesendiele im Haupthaus, die praktisch keinerlei Garderobenplatz bietet. Auch die Diele der Einliegerwohnung birgt kaum Platz für GarderobeJa die "Riedendiele" in dem Einfamilienhaus ergibt sich so wenn man die Zimmer so anordnet, Kommode könnte neben der Küchentür und bei der Treppe sein so wie jetzt eingezeichnet. kbt09 schrieb:
Der Weg des Autos direkt vor der Haustür dürfte kritisch sein ... und leider baut man da quasi viel Straße auf dem eigenen Grundstück. Wird der Platz vor der Einliegerwohnung als Terrasse genutzt, kommt ein Auto nicht mehr durch. Ja das war ja nur eine Überlegung.~~~~~~~~~~~~~~~~~~~~~~~~~
Da diese Planung nicht die allergrösse Katastrophe ist meiner Meinung, könntet ihr mir da einige Ideen geben wie man es besser machen könnte?
Was ich auch gut finde ist, dass man das Bürozimmer im EG auch als Zimmer für die Einliegerwohnung nutzen könnte nach bedarf. So bleibt die Zimmeraufteilung etwas flexibel und was auch wichtig ist das das Ganze bei 246 qm schon an der Maximalgrenze ist. Hinzu kommt noch die Garage und der Abstellraum dahinter.
Einfamilienhaus EG: 102 qm
Einfamilienhaus OG: 91 qm
Einliegerwohnung: 53 qm (Für Eltern, sie sind 70 und 78 Jahre)
= 246 qm
Garage und Abstellraum wären noch mal + 45 qm
Na ja, Sauna im OG ... kein Gartenzugang? Das Bad sieht nicht so aus, als wenn da eine Sauna, außer einer Mini-Sitzsauna, überhaupt noch Platz hat. Putz und Fliesen usw. haben übrigens auch noch eine gewisse Materialstärke.
Eine Kommode als Garderobenplatz für 5 Leute und Gäste? Nicht dein Ernst - oder?
Was sagen denn die Eltern zu der doch recht kleinen Wohnung und vor allem zum Schlafzimmer? Da sind 50 cm rechts und links vom Bett. Mit einer leichten Behinderung wird es da schon schwer ... Betten machen etc. bringt da auch wenig Spaß. Und auch die Küchenzeile mit 300 cm .. das ist die Standard-Anfangszeile aus dem Küchenprospekt. Sieh dir die mal an, kaum Arbeitsfläche, kaum Unterschrank-Stauraum, da ja Geschirrspüler, Backofen, Kühlschrank, Spülenschrank mit Müll untergebracht werden wollen.
Und, was jetzt noch gar nicht zum Tragen gekommen ist ... Sonne und Licht im EG .. Südwest, Abendsonne etc. ist für den Wohnbereich ausgesperrt.
...............
Scheinbar soll ja jetzt alles etwas kleiner werden, dennoch möchte ich mal an meinen Entwurf erinnern. Gesamt ca. 45 qm mehr als dein letzter Entwurf.
85 Einliegerwohnung
114 EG
107 OG
30 für Garage
--------------------

Einliegerwohnung-Wohnung privat und getrennt genug, um auch an Fremde zu vermieten.
OG ließe sich auch abtrennen, dann könnte man selber im EG mit Sauna etc. weiterleben .. mit einer richtigen Sauna.
Im OG ließe sich auch eine schöne Wohnung realisieren ... wenn man dort dann die Treppe hochkommt hat man im Hauswirtschaftsraum-Bereich einen schönen Garderobenplatz.
-----------------------------------------
Übrigens ... die Haustechnik beschränkt sich ja nicht nur auf einen Heizkessel oder so. Es gibt noch Elektro, Gasanschlüsse, Wasseranschlüsse usw.. Was ist mit Lüftungsanlage?
Eine Kommode als Garderobenplatz für 5 Leute und Gäste? Nicht dein Ernst - oder?
Was sagen denn die Eltern zu der doch recht kleinen Wohnung und vor allem zum Schlafzimmer? Da sind 50 cm rechts und links vom Bett. Mit einer leichten Behinderung wird es da schon schwer ... Betten machen etc. bringt da auch wenig Spaß. Und auch die Küchenzeile mit 300 cm .. das ist die Standard-Anfangszeile aus dem Küchenprospekt. Sieh dir die mal an, kaum Arbeitsfläche, kaum Unterschrank-Stauraum, da ja Geschirrspüler, Backofen, Kühlschrank, Spülenschrank mit Müll untergebracht werden wollen.
Und, was jetzt noch gar nicht zum Tragen gekommen ist ... Sonne und Licht im EG .. Südwest, Abendsonne etc. ist für den Wohnbereich ausgesperrt.
...............
Scheinbar soll ja jetzt alles etwas kleiner werden, dennoch möchte ich mal an meinen Entwurf erinnern. Gesamt ca. 45 qm mehr als dein letzter Entwurf.
85 Einliegerwohnung
114 EG
107 OG
30 für Garage
--------------------
Einliegerwohnung-Wohnung privat und getrennt genug, um auch an Fremde zu vermieten.
OG ließe sich auch abtrennen, dann könnte man selber im EG mit Sauna etc. weiterleben .. mit einer richtigen Sauna.
Im OG ließe sich auch eine schöne Wohnung realisieren ... wenn man dort dann die Treppe hochkommt hat man im Hauswirtschaftsraum-Bereich einen schönen Garderobenplatz.
-----------------------------------------
Übrigens ... die Haustechnik beschränkt sich ja nicht nur auf einen Heizkessel oder so. Es gibt noch Elektro, Gasanschlüsse, Wasseranschlüsse usw.. Was ist mit Lüftungsanlage?
Du drehst Dich im Kreis.
Bei ü200qm Wohnfläche sollten vernünftige Räume herauskommen.
Die Einliegerwohnung ist mit Durchgangszimmer noch nicht einmal mehr eine subventionierbare Einliegerwohnung...
Die Prioritäten scheinen bei Dir auf Symmetrie aus der Vogelperspektive und den Nebenräumen zu liegen, wodurch die bewohnbaren Zimmer leiden.
Schon allein die Nische im Kinderzimmer und das Schlafzimmer der Eltern sind Grund genug zu erkennen, dass "irgendwas" an der Entwurfstaktik nicht stimmt.
Die Treppe scheint auch zu kurz... muss man auch mögen, eine Treppe, die Links und rechts von zwei Wänden verschlossen wird...
Bei ü200qm Wohnfläche sollten vernünftige Räume herauskommen.
Die Einliegerwohnung ist mit Durchgangszimmer noch nicht einmal mehr eine subventionierbare Einliegerwohnung...
Die Prioritäten scheinen bei Dir auf Symmetrie aus der Vogelperspektive und den Nebenräumen zu liegen, wodurch die bewohnbaren Zimmer leiden.
Schon allein die Nische im Kinderzimmer und das Schlafzimmer der Eltern sind Grund genug zu erkennen, dass "irgendwas" an der Entwurfstaktik nicht stimmt.
Die Treppe scheint auch zu kurz... muss man auch mögen, eine Treppe, die Links und rechts von zwei Wänden verschlossen wird...
schustrik schrieb:
An welcher stelle springen den harmonische Proportionen über die Klinge?Aus meiner Sicht an kaum weniger als allen. Symmetrie kann Proportion nicht ersetzen. Wer das nicht "spürt", sieht es leider oft erst am fertigen Objekt.https://www.instagram.com/11antgmxde/
https://www.linkedin.com/company/bauen-jetzt/
Ähnliche Themen