ᐅ Einfamilinehaus Stadtvilla in Südhessen
Erstellt am: 21.12.2023 13:05
HungrigerHugo 21.12.2023 13:05
Hallo Zusammen,
wir planen gerade den Bau einer Stadtvilla und waren bisher mit zwei Holztafel Unternehmen (Streif Haus und Weberhaus) sowie einem Massivbauer (Massivhaus Mittelrhein) in Kontakt. Am Wochenende haben wir noch ein Gespräch mit Weberhaus, bisher tendieren wir allerdings zu Massivhaus Mittelrhein.
Die groben Eckdaten:
Stilrichtung: Stadtvilla
Dachform: Walmdach
Gebäudetyp: Einfamilienhaus
Keller: Nein
Geschosse: 2
Grundstück vollständig eben, Bodengutachten ist i.O.
Hausentwurf
Von wem stammt die Planung:
-Planer eines Bauunternehmens
-11*10 Meter -> Nettogrundfläche ca. 175 qm.
"Zusatzausstattung"
-Erhöhung EG um 25cm
-Duschbad im EG
-Raffstores im Wohn-, Ess- und Küchenbereich
-Erker 4*1,5m
-ausgeflieste Duschen
-Erdwärmepumpe mit Bohrung, wobei bei uns max. Flächen oder Ringkollektoren gehen. <- Das würde mir prinzipiell richtig gut gefallen.
-6 qm Luftraum
-Farbig folierte Fenster innen und außen
Preisschätzung laut Architekt/Planer: ca. 505.000€ (ohne Photovoltaikanlage)
Dieser Entwurf wurde jetzt nicht speziell für uns Entworfen sondern stammt von einem anderen Kundenhaus. Wir werden gerne im EG das Büro und den Technikraum vertauschen und eventuell etwas die QM Zahl dieser Räume ändern. Falls wir uns für den Erker entscheiden, würden wir diesen vermutlich auf die andere Seite oder in die Mitte schieben. Wenn es Budgettechnisch passt, könnten wir uns auch vorstellen auf den Erker zu verzichten und 11x11 zu bauen. Ein weiterer Punkt ist die Schiebetür, diese würden wir gerne durch eine Festverglasung ersetzen. Wir würden auch gerne eine Verglasung bei der Fernsehwand im Entwurf einfügen, allerdings könnte das Wohnzimmer dann zu offen sein?
Wir sind für Tipps und Ratschläge super dankbar.


wir planen gerade den Bau einer Stadtvilla und waren bisher mit zwei Holztafel Unternehmen (Streif Haus und Weberhaus) sowie einem Massivbauer (Massivhaus Mittelrhein) in Kontakt. Am Wochenende haben wir noch ein Gespräch mit Weberhaus, bisher tendieren wir allerdings zu Massivhaus Mittelrhein.
Die groben Eckdaten:
Stilrichtung: Stadtvilla
Dachform: Walmdach
Gebäudetyp: Einfamilienhaus
Keller: Nein
Geschosse: 2
Grundstück vollständig eben, Bodengutachten ist i.O.
Hausentwurf
Von wem stammt die Planung:
-Planer eines Bauunternehmens
-11*10 Meter -> Nettogrundfläche ca. 175 qm.
"Zusatzausstattung"
-Erhöhung EG um 25cm
-Duschbad im EG
-Raffstores im Wohn-, Ess- und Küchenbereich
-Erker 4*1,5m
-ausgeflieste Duschen
-Erdwärmepumpe mit Bohrung, wobei bei uns max. Flächen oder Ringkollektoren gehen. <- Das würde mir prinzipiell richtig gut gefallen.
-6 qm Luftraum
-Farbig folierte Fenster innen und außen
Preisschätzung laut Architekt/Planer: ca. 505.000€ (ohne Photovoltaikanlage)
Dieser Entwurf wurde jetzt nicht speziell für uns Entworfen sondern stammt von einem anderen Kundenhaus. Wir werden gerne im EG das Büro und den Technikraum vertauschen und eventuell etwas die QM Zahl dieser Räume ändern. Falls wir uns für den Erker entscheiden, würden wir diesen vermutlich auf die andere Seite oder in die Mitte schieben. Wenn es Budgettechnisch passt, könnten wir uns auch vorstellen auf den Erker zu verzichten und 11x11 zu bauen. Ein weiterer Punkt ist die Schiebetür, diese würden wir gerne durch eine Festverglasung ersetzen. Wir würden auch gerne eine Verglasung bei der Fernsehwand im Entwurf einfügen, allerdings könnte das Wohnzimmer dann zu offen sein?
Wir sind für Tipps und Ratschläge super dankbar.
11ant 21.12.2023 13:27
HungrigerHugo schrieb:
Wir würden auch gerne eine Verglasung bei der Fernsehwand im Entwurf einfügen,Füge doch erst´mal das Grundstück und den ausgefüllten Fragebogen ein ;-) HungrigerHugo 21.12.2023 13:43
Bebauungsplan: "Kaisergärten" in Babenhausen
Die markierte 1 ist unser Grundstück.
Größe des Grundstücks: 18*31,3 = 564 QM
Hang -> Nein
Grundflächenzahl 0,4
Geschossflächenzahl 0,8
Baufenster: 18*17,5
Randbebauung: Nein
Anzahl Stellplatz: 1
Geschossigkeit: bis zu 2 Vollgeschosse
Stilrichtung Keine Einschränkung
Ausrichtung Keine Einschränkung
Maximale Höhen/Begrenzungen: Bei WD, 9,5m Geb. Ok
Walmdach: 15-25 Grad Neigung
Anforderungen der Bauherren
Stilrichtung: Stadtvilla
Dachform: Walmdach
Gebäudetyp: Einfamilienhaus
Keller: Nein
Geschosse: 2
Anzahl der Personen: 3
Alter 34, 31, 1
Raumbedarf im EG, OG
Büro: Familiennutzung oder Homeoffice - Beides
Schlafgäste pro Jahr: Im Durchschnitt 1x Monat
offene Architektur
moderne Bauweise
offene Küche, Kochinsel
Anzahl Essplätze - 6-8
Kamin: Nein
Musik/Stereowand-Nein
Balkon, Dachterrasse - Muss nicht
Garage, Carport - Garage

Die markierte 1 ist unser Grundstück.
Größe des Grundstücks: 18*31,3 = 564 QM
Hang -> Nein
Grundflächenzahl 0,4
Geschossflächenzahl 0,8
Baufenster: 18*17,5
Randbebauung: Nein
Anzahl Stellplatz: 1
Geschossigkeit: bis zu 2 Vollgeschosse
Stilrichtung Keine Einschränkung
Ausrichtung Keine Einschränkung
Maximale Höhen/Begrenzungen: Bei WD, 9,5m Geb. Ok
Walmdach: 15-25 Grad Neigung
Anforderungen der Bauherren
Stilrichtung: Stadtvilla
Dachform: Walmdach
Gebäudetyp: Einfamilienhaus
Keller: Nein
Geschosse: 2
Anzahl der Personen: 3
Alter 34, 31, 1
Raumbedarf im EG, OG
Büro: Familiennutzung oder Homeoffice - Beides
Schlafgäste pro Jahr: Im Durchschnitt 1x Monat
offene Architektur
moderne Bauweise
offene Küche, Kochinsel
Anzahl Essplätze - 6-8
Kamin: Nein
Musik/Stereowand-Nein
Balkon, Dachterrasse - Muss nicht
Garage, Carport - Garage
Schorsch_baut 21.12.2023 13:56
Wurde die Preisschätzung aus dem fertiggestellten Projekt übernommen? Oder beteits auf aktuelle Preise angepasst? Mir kommt die Summe eher niedrig vor.
HungrigerHugo 21.12.2023 13:58
Schorsch_baut schrieb:
Wurde die Preisschätzung aus dem fertiggestellten Projekt übernommen? Oder beteits auf aktuelle Preise angepasst? Mir kommt die Summe eher niedrig vor.Der Preis ist aktuell, ab bzw. inkl. Bodenplatte. Es kommen natürlich noch die Nebenkosten hinzu.
Schorsch_baut 21.12.2023 14:02
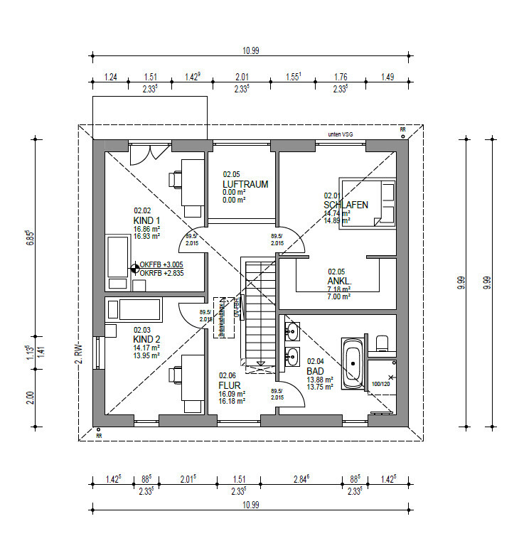
Ich würde die Treppe drehen, dann könnte man den Luftraum im OG wenigstens für eine schöne Galerie nutzen. So ist es nur ein Loch in der Decke im Durchgangsbereich. Eigentlich würde ich den weglassen - ohne Keller seid ihr dankbar für jeden Stauraum.
Ähnliche Themen