B
Bauexperte06.10.14 11:30Hallo,
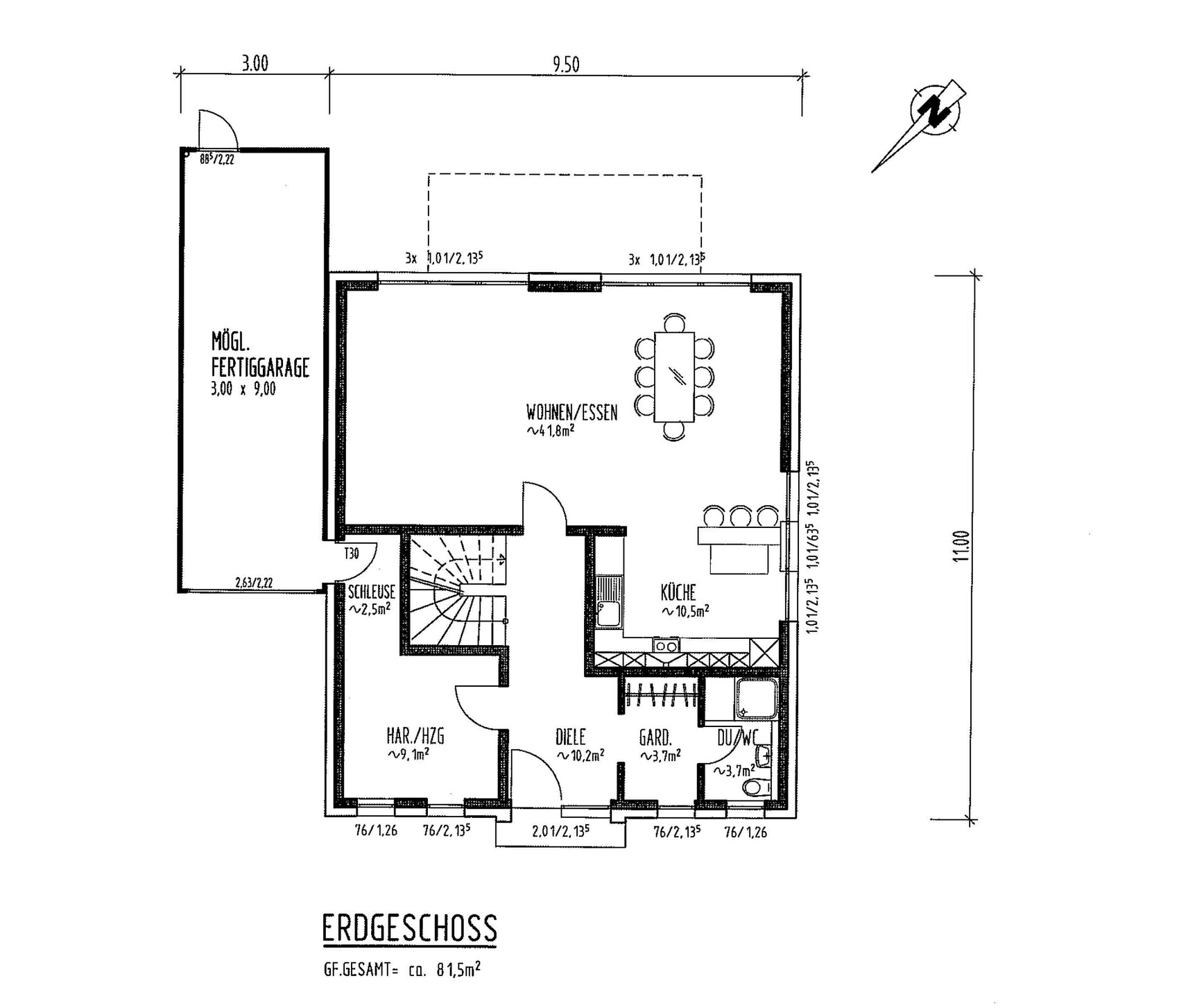
Das eine ist der Zugang über die, als Speis getarnte Schleuse; das andere die Raumanordnung ´Schlafen, Ankleide & Bad`. Einer meiner Architekten baut gerne mal ne Schleuse zwischen Garage und Hauswirtschaftsraum ein und ich kann mich gut daran erinnern, daß ich - bei einem Entwurf, den ich Dir angehängt habe (die Interessenten hatten allerdings größere Kinder) - tagelang zwischen kreativem und ausführendem Architekt vermittelt habe. Ich fand - und btw. finde - die Idee immer noch gut, allerdings hat unser Architekt die Schleuse praktikabler ausgeführt und nicht mit einer weiteren Türe/einem Durchlaß über Eck versehen. Hier wirst Du - sobald Kinder da sind, feststellen, daß Deine Lösung nicht die beste Idee ist. Egal, ob volle Einkaufstüten oder Kinderwagen - Du wirst stets gezwungen sein, einen Stopp in der Speis einzulegen; vmtl. schon weit vorher in der Garage ... sofern der PkW Platz dafür läßt.
Das andere ist die Raumsituation oben im OG. Du schreibst, daß Deine Frau und Du gleichlaufende Tagesabläufe haben; soweit so gut. Was aber ist, wenn einer von euch krank wird, die Urlaubstage nicht zueinander passen? Oder - sofern Kinder da sind - eines der Kinder krank ist und im Elternschlafzimmer schläft? Meinereiner wird vom husten einer Fliege wach ... der würde mir etwas anderes erzählen, könnte er endlich mal ausschlafen und ich würde um ihn herum wuseln 😉 Du hast bei Deinem BV sehr viel Platz und damit sehr viele Möglichkeiten, die Situation im OG zu ändern, ohne "eure" Vorstellungen des perfekten Hauses nennenswert zu verleugnen ...
Das leidige Thema Garderobe; hier bin ich ganz bei "Jaydee"; nicht selten beschleicht mich der Gedanke, daß einige Häuser der hier schreibenden User um eine Garderobe herum gebaut werden. Kann man so sehen, muß man aber nicht. Ich habe 2, mittlerweile erwachsene Babies und als diese noch klein waren und ich nicht arbeiten konnte, bis zu 5 Pflegekinder parallel betreut. In diesen Jahren hatten wir kein Eigentum und ergo entsprachen die jeweiligen Garderoben/Flure der Häuser dem Geschmack der jener Zeit vorherrschenden Meinung, nicht zu viel Platz für das Entree zu verschwenden. Natürlich "knubbelte" sich der Krimskrams der Kinder zu gewissen Zeiten, ich kann jedoch nicht behaupten, daß ich Platz "vermißt" hätte; letztlich ist es eine Frage der Organisation und auch der Erziehung.
Und ganz ehrlich - meine Mutter hatte einen Aufräumfimmel, zu meinen Kindertagen gab es noch das "gute Wohnzimmer" und auch All- bzw. Sonntagsklamotten. Wenn meine Kinder mich btw. heutzutage foppen wollen, machen sie einen Knick in die kleinen Kissen ... könnte ich alleine beim Gedanken daran platzen. Ich LEBE in unserem Haus und habe kein Mausoleum, alles wird benutzt ... es gibt auch kein "besonderes" Geschirr für Verwandtschaft/Gäste und wenn der Puppenwagen meiner Enkelin im Flur steht, dann ist das eben so ... davon geht die Welt nicht unter; ganz sicher nicht meine ... 😀
Man muß auch die Kirche im Dorf lassen ... oder, wie der Rheinländer sagt: "wat dem eene sing Üühl is, is dem angere sing Nachtigall"
Grüße, Bauexperte

Projekt schrieb:Wenn ich es richtig erinnere, gibt es bei Deinem Grundriss für mich "nur" 2 Dinge, welche Du imho noch mal gut überdenken solltest.
Und wahrscheinlich wirds so bleiben wie es ist, weil wir persönlich die hier in den Raum geworfenen Nachteile für uns nicht erkennen.
Das eine ist der Zugang über die, als Speis getarnte Schleuse; das andere die Raumanordnung ´Schlafen, Ankleide & Bad`. Einer meiner Architekten baut gerne mal ne Schleuse zwischen Garage und Hauswirtschaftsraum ein und ich kann mich gut daran erinnern, daß ich - bei einem Entwurf, den ich Dir angehängt habe (die Interessenten hatten allerdings größere Kinder) - tagelang zwischen kreativem und ausführendem Architekt vermittelt habe. Ich fand - und btw. finde - die Idee immer noch gut, allerdings hat unser Architekt die Schleuse praktikabler ausgeführt und nicht mit einer weiteren Türe/einem Durchlaß über Eck versehen. Hier wirst Du - sobald Kinder da sind, feststellen, daß Deine Lösung nicht die beste Idee ist. Egal, ob volle Einkaufstüten oder Kinderwagen - Du wirst stets gezwungen sein, einen Stopp in der Speis einzulegen; vmtl. schon weit vorher in der Garage ... sofern der PkW Platz dafür läßt.
Das andere ist die Raumsituation oben im OG. Du schreibst, daß Deine Frau und Du gleichlaufende Tagesabläufe haben; soweit so gut. Was aber ist, wenn einer von euch krank wird, die Urlaubstage nicht zueinander passen? Oder - sofern Kinder da sind - eines der Kinder krank ist und im Elternschlafzimmer schläft? Meinereiner wird vom husten einer Fliege wach ... der würde mir etwas anderes erzählen, könnte er endlich mal ausschlafen und ich würde um ihn herum wuseln 😉 Du hast bei Deinem BV sehr viel Platz und damit sehr viele Möglichkeiten, die Situation im OG zu ändern, ohne "eure" Vorstellungen des perfekten Hauses nennenswert zu verleugnen ...
Das leidige Thema Garderobe; hier bin ich ganz bei "Jaydee"; nicht selten beschleicht mich der Gedanke, daß einige Häuser der hier schreibenden User um eine Garderobe herum gebaut werden. Kann man so sehen, muß man aber nicht. Ich habe 2, mittlerweile erwachsene Babies und als diese noch klein waren und ich nicht arbeiten konnte, bis zu 5 Pflegekinder parallel betreut. In diesen Jahren hatten wir kein Eigentum und ergo entsprachen die jeweiligen Garderoben/Flure der Häuser dem Geschmack der jener Zeit vorherrschenden Meinung, nicht zu viel Platz für das Entree zu verschwenden. Natürlich "knubbelte" sich der Krimskrams der Kinder zu gewissen Zeiten, ich kann jedoch nicht behaupten, daß ich Platz "vermißt" hätte; letztlich ist es eine Frage der Organisation und auch der Erziehung.
Und ganz ehrlich - meine Mutter hatte einen Aufräumfimmel, zu meinen Kindertagen gab es noch das "gute Wohnzimmer" und auch All- bzw. Sonntagsklamotten. Wenn meine Kinder mich btw. heutzutage foppen wollen, machen sie einen Knick in die kleinen Kissen ... könnte ich alleine beim Gedanken daran platzen. Ich LEBE in unserem Haus und habe kein Mausoleum, alles wird benutzt ... es gibt auch kein "besonderes" Geschirr für Verwandtschaft/Gäste und wenn der Puppenwagen meiner Enkelin im Flur steht, dann ist das eben so ... davon geht die Welt nicht unter; ganz sicher nicht meine ... 😀
Man muß auch die Kirche im Dorf lassen ... oder, wie der Rheinländer sagt: "wat dem eene sing Üühl is, is dem angere sing Nachtigall"
Grüße, Bauexperte
Ähnliche Themen