D
doolittle16.08.22 10:35Hallo zusammen,
wir sind mit der Hausplanung schon gut fortgeschritten, einzig unser Hauptbad im OG lässt uns noch bisschen grübeln. Vielleicht habt ihr Ideen, wie wir das Bad noch ein wenig umgestalten könnten?
Herzlichen Dank für eure Ideen und Anregungen 😉
Hier die Fakten:
Bebauungsplan/Einschränkungen
Größe des Grundstücks --- 600qm
Hang --- ja
Anzahl Stellplatz --- 3
Anforderungen der Bauherren
Stilrichtung, Dachform, Gebäudetyp --- Walmdach Einfamilienhaus
Keller, Geschosse --- ja 3 KG, EG, OG
Anzahl der Personen, Alter --- 2+2 (Kinder) bzw. 2+3 (Kinder)
Raumbedarf im EG, OG
Büro: Familiennutzung oder Homeoffice? --- Homeoffice
Schlafgäste pro Jahr --- selten
konservativ oder moderne Bauweise --- eher konservativ
offene Küche, Kochinsel --- Küche mit Flügeltür getrennt zum Esszimmer, Kochinsel
Anzahl Essplätze --- mind. 6
Kamin --- ja im Wohnzimmer
Balkon, Dachterrasse --- wir haben uns bewusst für den Flur mit Tür im Westen im OG entschieden, da wir eine Möglichkeit offen lassen wollten dort auch noch eine Dachterrasse zu erweitern
Garage, Carport --- Doppelgarage
Hausentwurf
Von wem stammt die Planung: --- Architekt
Was gefällt besonders? Warum? --- Wir sind mit dem Plan schon sehr zufrieden
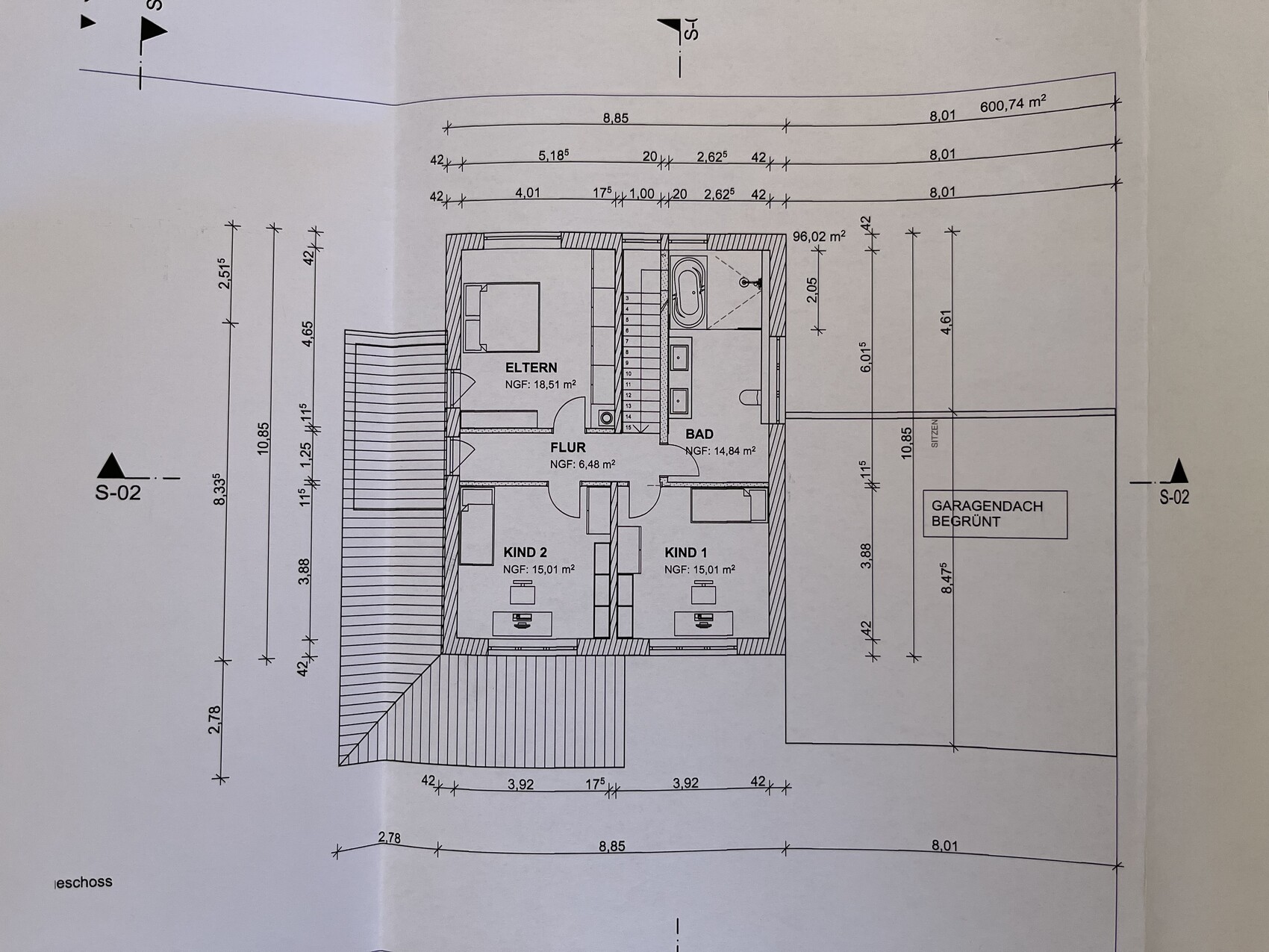
Was gefällt nicht? Warum? --- Einzig das Bad im OG würden wir gerne noch optimieren. Aktuell sind die Badewanne und Dusche im Norden ausgerichtet und dies finden wir bisschen gequetscht. Wir haben uns eigentlich immer eine freistehende Badewanne im Norden mit Panoramafenster in den Norden gewünscht, dort haben wir einen unverbaubaren Blick auf Felder. Hat jemand eine Idee wie wir das Bad besser anordnen können? Das wird unser Hauptbadezimmer (für alle Familienmitglieder) sein.
Vielen Dank schon einmal für eure Ideen und Anregungen

wir sind mit der Hausplanung schon gut fortgeschritten, einzig unser Hauptbad im OG lässt uns noch bisschen grübeln. Vielleicht habt ihr Ideen, wie wir das Bad noch ein wenig umgestalten könnten?
Herzlichen Dank für eure Ideen und Anregungen 😉
Hier die Fakten:
Bebauungsplan/Einschränkungen
Größe des Grundstücks --- 600qm
Hang --- ja
Anzahl Stellplatz --- 3
Anforderungen der Bauherren
Stilrichtung, Dachform, Gebäudetyp --- Walmdach Einfamilienhaus
Keller, Geschosse --- ja 3 KG, EG, OG
Anzahl der Personen, Alter --- 2+2 (Kinder) bzw. 2+3 (Kinder)
Raumbedarf im EG, OG
Büro: Familiennutzung oder Homeoffice? --- Homeoffice
Schlafgäste pro Jahr --- selten
konservativ oder moderne Bauweise --- eher konservativ
offene Küche, Kochinsel --- Küche mit Flügeltür getrennt zum Esszimmer, Kochinsel
Anzahl Essplätze --- mind. 6
Kamin --- ja im Wohnzimmer
Balkon, Dachterrasse --- wir haben uns bewusst für den Flur mit Tür im Westen im OG entschieden, da wir eine Möglichkeit offen lassen wollten dort auch noch eine Dachterrasse zu erweitern
Garage, Carport --- Doppelgarage
Hausentwurf
Von wem stammt die Planung: --- Architekt
Was gefällt besonders? Warum? --- Wir sind mit dem Plan schon sehr zufrieden
Was gefällt nicht? Warum? --- Einzig das Bad im OG würden wir gerne noch optimieren. Aktuell sind die Badewanne und Dusche im Norden ausgerichtet und dies finden wir bisschen gequetscht. Wir haben uns eigentlich immer eine freistehende Badewanne im Norden mit Panoramafenster in den Norden gewünscht, dort haben wir einen unverbaubaren Blick auf Felder. Hat jemand eine Idee wie wir das Bad besser anordnen können? Das wird unser Hauptbadezimmer (für alle Familienmitglieder) sein.
Vielen Dank schon einmal für eure Ideen und Anregungen
K
K a t j a16.08.22 12:19Das schmale Nordfenster - darf das noch größer, damit man dann auch wirklich den ultimativen Nordausblick genießen kann? So ist es viel zu dürftig.
Wenn ihr da eine freistehende Badewanne wollt, dann muss das Fenster auch größer werden. Allerdings denke ich das freistehend dennoch eher gequetscht aussieht, dann vielleicht eine dort in der Ecke eingebaute mit gefliesten Ablagen!? Freistehend würde sich bei 2,60m Breite aber wohl auch ausgehen oder eine an die Wand angesetzte Variante?!
Die Dusche müsste dann ja aber entweder an die Wand zur Treppe rutschen mit Glasscheibe als Abtrennung nach vorne und genug Raum fürs Spritzwasser zu den Seiten oder aber in die Ecke zum Kinderzimmer. Viel mehr Möglichkeiten sehe ich kaum. Aber es ist natürlich auch die Frage, wo es möglich ist das Abwasser abzuführen?
Der jetztige Vorschlag ist aber was Dusche/Badewanne angeht sehr gequetscht und das Fenster eben auch etwas klein.
Die Dusche müsste dann ja aber entweder an die Wand zur Treppe rutschen mit Glasscheibe als Abtrennung nach vorne und genug Raum fürs Spritzwasser zu den Seiten oder aber in die Ecke zum Kinderzimmer. Viel mehr Möglichkeiten sehe ich kaum. Aber es ist natürlich auch die Frage, wo es möglich ist das Abwasser abzuführen?
Der jetztige Vorschlag ist aber was Dusche/Badewanne angeht sehr gequetscht und das Fenster eben auch etwas klein.
M
Myrna_Loy16.08.22 13:08K
K a t j a16.08.22 13:20Ein Raum mit 6m (!) Länge und nur 2,60m Breite - ziemlich schwach für einen Neubau. Sicher, dass die Treppe unbedingt dort hin muss?
K a t j a schrieb:
Ein Raum mit 6m (!) Länge und nur 2,60m Breite - ziemlich schwach für einen Neubau. Sicher, dass die Treppe unbedingt dort hin muss?Sehe ich auch so. 1/3 kann dadurch nicht sinnvoll genutzt werden. Und die „Schüssel“ direkt im Blick, wenn die Türe aufgeht.Hinzu kommt, das ist für 4 Nasen (evtl sogar 5).
Für freistehend taugen Breite und qm nicht.
Wenn die Wanne oben bleiben soll, passt die Dusche eigentlich nirgends hin. Deshalb, Dusche oben, Wanne bei Waschbecken oder noch weiter runter Richtung Türe.
Ich lese auch Homeoffice? Wo?
Gibt das ein Wohnkeller?
Ähnliche Themen