Liebe Forenmitglieder,
wir haben im April ein wirklich kleines Grundstück gekauft. (315qm)
Darauf kommt nun bald ein Einfamilienhaus mit begehbarem Gründach-Carport. Durch die Hanglage wird der Strassenseitige Keller wohnlich für Schlafräume und Bad genutzt werden.
Der Eingang wird seitlich direkt in die Wohnebene führen.
Die Baugenehmigung liegt inzwischen vor. Mit ein paar kleinen Auflagen. Damit haben wir aber gerechnet, da unser Grundstück planungsrechtlich im Außenbereich liegt und zudem im Wasser- und Landschafrsschutzgebiet.
Wir bauen ein Massivhaus in monolithischer Bauweise (Poroton) ohne Schnickschnack und gänzlich unmodern (kleine Räume, keine bodentiefen Fenster und die auch noch in weiß) aber schlüsselfertig über GÜ.
Am 06.01. wird das Grundstück gerodet und nachdem der Vermesser abgesteckt hat, geht es los.
Vorher werden wir bei den direkten Nachbarn eine Karte in den Kasten werfen, mit einem kleinen Überlebenspaket für Bauherren-Nachbarn. (Watte als Schallschutz, was Süßes als Nervennahrung und ein gemaltes Bild von unserer Tochter als Fensterschmuck für schönere Aussicht statt Baustelle.)
Wir bebauen eine kleine Baulücke in einem alten Dörfchen, deswegen darf es ruhig etwas persönlicher sein.
Jetzt hoffen wir, dass sich der Buddelbereich mit Bodenklasse 6/7 in Grenzen hält.
Liebe Grüße und schöne Feiertage,
Anolca




wir haben im April ein wirklich kleines Grundstück gekauft. (315qm)
Darauf kommt nun bald ein Einfamilienhaus mit begehbarem Gründach-Carport. Durch die Hanglage wird der Strassenseitige Keller wohnlich für Schlafräume und Bad genutzt werden.
Der Eingang wird seitlich direkt in die Wohnebene führen.
Die Baugenehmigung liegt inzwischen vor. Mit ein paar kleinen Auflagen. Damit haben wir aber gerechnet, da unser Grundstück planungsrechtlich im Außenbereich liegt und zudem im Wasser- und Landschafrsschutzgebiet.
Wir bauen ein Massivhaus in monolithischer Bauweise (Poroton) ohne Schnickschnack und gänzlich unmodern (kleine Räume, keine bodentiefen Fenster und die auch noch in weiß) aber schlüsselfertig über GÜ.
Am 06.01. wird das Grundstück gerodet und nachdem der Vermesser abgesteckt hat, geht es los.
Vorher werden wir bei den direkten Nachbarn eine Karte in den Kasten werfen, mit einem kleinen Überlebenspaket für Bauherren-Nachbarn. (Watte als Schallschutz, was Süßes als Nervennahrung und ein gemaltes Bild von unserer Tochter als Fensterschmuck für schönere Aussicht statt Baustelle.)
Wir bebauen eine kleine Baulücke in einem alten Dörfchen, deswegen darf es ruhig etwas persönlicher sein.
Jetzt hoffen wir, dass sich der Buddelbereich mit Bodenklasse 6/7 in Grenzen hält.
Liebe Grüße und schöne Feiertage,
Anolca
P
Pinkiponk22.12.19 09:55Anolca* schrieb:
Vorher werden wir bei den direkten Nachbarn eine Karte in den Kasten werfen, mit einem kleinen Überlebenspaket für Bauherren-Nachbarn. (Watte als Schallschutz, was Süßes als Nervennahrung und ein gemaltes Bild von unserer Tochter als Fensterschmuck für schönere Aussicht statt Baustelle.)Das ist eine schöne Anregung, die wir übernehmen werden, wenn es so weit ist. Wir haben nach dem Grundstückskauftermin beim Notar in der Straße in jeden Briefkasten ein "Vorstellungsschreiben" mit Infos über uns selbst und das geplante Haus eingeworfen.P
Pinkiponk22.12.19 11:04Ich freue mich für Euch und werde Deinem Beitrag sehr interessiert folgen.
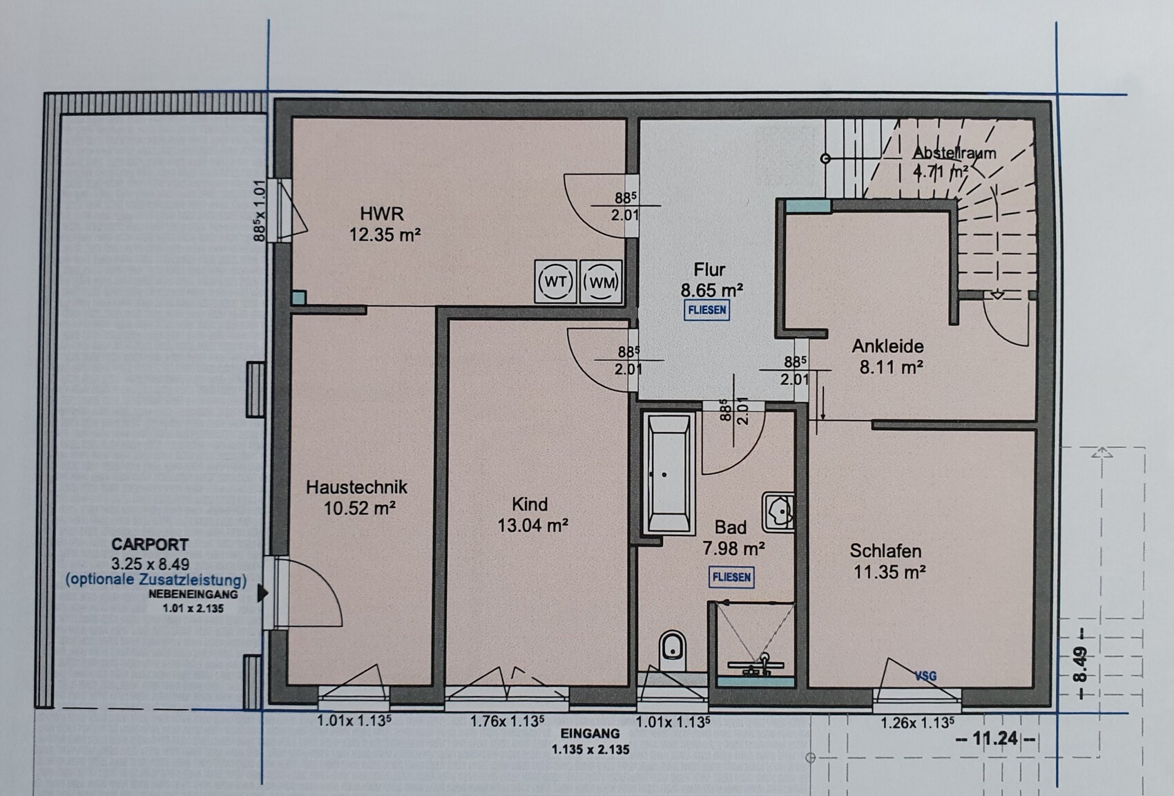
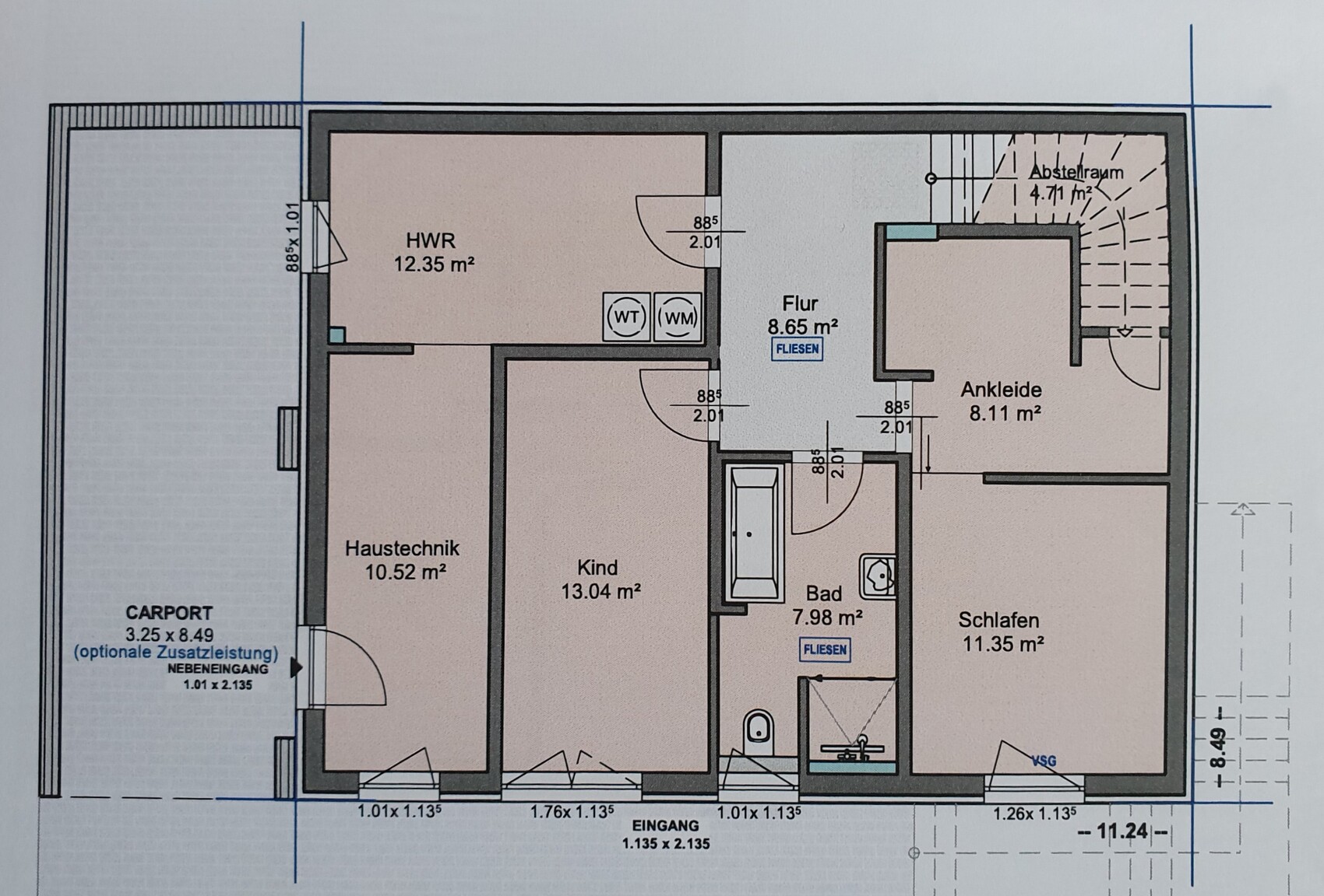
Eine Frage, keine Kritik. Welchen Grund hat es, dass Ihr im EG zwei Hausseiten ohne Fenster/Fenstertüren geplant habt? Ich frage deshalb, weil wir bis jetzt das Gegenteil vorhaben haben und alles mit Fenstern/Fenstertüren "zupflastern", deshalb ist es interessant für mich zu erfahren, weshalb andere das nicht tun.
Eine Frage, keine Kritik. Welchen Grund hat es, dass Ihr im EG zwei Hausseiten ohne Fenster/Fenstertüren geplant habt? Ich frage deshalb, weil wir bis jetzt das Gegenteil vorhaben haben und alles mit Fenstern/Fenstertüren "zupflastern", deshalb ist es interessant für mich zu erfahren, weshalb andere das nicht tun.
Pinkiponk schrieb:
Ich freue mich für Euch und werde Deinem Beitrag sehr interessiert folgen.
Eine Frage, keine Kritik. Welchen Grund hat es, dass Ihr im EG zwei Hausseiten ohne Fenster/Fenstertüren geplant habt? Ich frage deshalb, weil wir bis jetzt das Gegenteil vorhaben haben und alles mit Fenstern/Fenstertüren "zupflastern", deshalb ist es interessant für mich zu erfahren, weshalb andere das nicht tun.Das EG ist quasi das Kellergeschoss und steckt hinten in der Erde. Deshalb sind da keine Fenster. Das Gärtchen wird quasi auf dem Niveau des begehbaren und begrünten Carportdaches liegen.haydee schrieb:
Super Idee
Mit der Vorstellung
Zum Grundriss
Habt ihr schon mal Möbel im Maßstab eingezeichnet?
Bauantrag ist schon gestellt oder
Daumen sind gedrückt? Bodenklasse 6/7 ist etwas hartJa.. die Möbel passen alle. Wir mögen es eher klein und kuschelig. Die derzeit so angesagten Riesen Wohnräume sind nichts für uns. Wegen des "kuschelig"- Faktors haben wir auch keine bodentiefen Fenster eingeplant oder so ein Glasteil neben der Haustüre. Die Baugebehmigung ist schon da... in KW 2 geht's voraussichtlich los.
Wegen der Bodenklasse: Ja wir hoffen es hält sich in Grenzen. Im Virderen Bereich haben wir 3-5... ich hoffe der Fels ist nur ein kleiner Brocken.
@all: Danke für den netten Empfang.
Bei 6 hatte der Bagger gestreikt. Ist schon hart und Steinig. Von unserem Terrassenaushub hat ein Bekannter eine Mauer gesetzt
Finde Bodentief, großzügig und kuschelig nicht unbedingt widersprüchlich. Kommt darauf an wo Bodentief? Im WC oder Ankleide nicht. Interieur macht viel mehr aus wie gemütlich ein Raum wirkt.
So klein sind eure Räume auch nicht. Euer Elternbereich sind fast 20 qm.
Ich hätte nur manches anders angeordnet
Finde Bodentief, großzügig und kuschelig nicht unbedingt widersprüchlich. Kommt darauf an wo Bodentief? Im WC oder Ankleide nicht. Interieur macht viel mehr aus wie gemütlich ein Raum wirkt.
So klein sind eure Räume auch nicht. Euer Elternbereich sind fast 20 qm.
Ich hätte nur manches anders angeordnet
Ähnliche Themen