ᐅ Einfamilienhaus mit 190 m2 und 55 m2 Einliegerwohnung im UG in leichter Hanglage
Erstellt am: 01.11.25 13:04
A
AndixxxDas geht auf keine Kuhhaut, was ich hier alles nicht verstehe:
Das Haus seht den Bildern zufolge allein auf freiem Feld, laut Lageplan aber in einer Baulücke, die erst durch den Abriss des Nachbargebäudes bildrechts entsteht; so daß deren Hälfte der Grundstücksbreite dann frei bleibt ???
Der Entwurf ist von Dir "mit Hinweisen des Architekten", der inzwischen auch beauftragt sei. Dessen Entwürfe überzeugen Euch nicht, was es jedoch nicht hilfreicher macht, sie auch uns nicht zu zeigen.
Das Geneigtdach soll aufgrund einer fehlenden Betondecke teurer sein, auch da kann ich nichtestens folgen.
Groß werden soll die ganze Bude 190 + 55 qm, also 245 qm. Ziehen wir den Laienplanungsaufschlag ab, also wird es mit einem Profi wohl etwa 40 qm kleiner werden können und dann etwa 615 k teuer.
Was hast Du Dir davon versprochen, in die Planung gleich mit einem Doppelfehler (erst zeichnen, dann planen; und den Architekten mit einer Eigenplanung kreativ impfen / kontaminieren) zu starten ?
Architekt und Ausschreibung finde ich gut, die Vorfestlegung auf Einzelvergabe jedoch ungeschickt, und Gedanken über Fassadengestaltung erheblichst zu früh. Was der heutzutage technisch unzeitgemäße Schornstein optisch für ein Wolkenkratzer ist, siehst Du ja selbst - zumindest diesen Vorzug sollte die Visualisiererei ja immerhin haben.
Ich würde Dir trotzdem raten: zerknülle den ganzen Quatsch, lege zunächst vor dem Neubeginn eine Teigruhephase zur Abstandgewinnung und zum geistigen Tafelwischen ein, bevor Du den Architekten wechselst (weil Du diesen ja leider "verseucht" hast), und starte dann mit einem neuen Architekten fachgerecht mit dem "Modul A" (siehe: "Ein Hausbau-Fahrplan, auch für Sie: das Phasenmodell der HOAI!"); danach gehst Du erneut in die normale Teigruhe (ggf. auch ohne Weichenstellung, soweit das Gelände ein steinernes zumindest UG mehr oder weniger "vorgibt").
Die Forencommunity wird sich freuen, wenn Du auch die Dich nicht ansprechenden Entwürfe abenfalls zeigst - mindestens aber das Grundstück mit Höhenlinien oder -meßpunkten.
https://www.instagram.com/11antgmxde/
https://www.linkedin.com/company/bauen-jetzt/
Das Haus seht den Bildern zufolge allein auf freiem Feld, laut Lageplan aber in einer Baulücke, die erst durch den Abriss des Nachbargebäudes bildrechts entsteht; so daß deren Hälfte der Grundstücksbreite dann frei bleibt ???
Der Entwurf ist von Dir "mit Hinweisen des Architekten", der inzwischen auch beauftragt sei. Dessen Entwürfe überzeugen Euch nicht, was es jedoch nicht hilfreicher macht, sie auch uns nicht zu zeigen.
Das Geneigtdach soll aufgrund einer fehlenden Betondecke teurer sein, auch da kann ich nichtestens folgen.
Groß werden soll die ganze Bude 190 + 55 qm, also 245 qm. Ziehen wir den Laienplanungsaufschlag ab, also wird es mit einem Profi wohl etwa 40 qm kleiner werden können und dann etwa 615 k teuer.
Was hast Du Dir davon versprochen, in die Planung gleich mit einem Doppelfehler (erst zeichnen, dann planen; und den Architekten mit einer Eigenplanung kreativ impfen / kontaminieren) zu starten ?
Architekt und Ausschreibung finde ich gut, die Vorfestlegung auf Einzelvergabe jedoch ungeschickt, und Gedanken über Fassadengestaltung erheblichst zu früh. Was der heutzutage technisch unzeitgemäße Schornstein optisch für ein Wolkenkratzer ist, siehst Du ja selbst - zumindest diesen Vorzug sollte die Visualisiererei ja immerhin haben.
Ich würde Dir trotzdem raten: zerknülle den ganzen Quatsch, lege zunächst vor dem Neubeginn eine Teigruhephase zur Abstandgewinnung und zum geistigen Tafelwischen ein, bevor Du den Architekten wechselst (weil Du diesen ja leider "verseucht" hast), und starte dann mit einem neuen Architekten fachgerecht mit dem "Modul A" (siehe: "Ein Hausbau-Fahrplan, auch für Sie: das Phasenmodell der HOAI!"); danach gehst Du erneut in die normale Teigruhe (ggf. auch ohne Weichenstellung, soweit das Gelände ein steinernes zumindest UG mehr oder weniger "vorgibt").
Die Forencommunity wird sich freuen, wenn Du auch die Dich nicht ansprechenden Entwürfe abenfalls zeigst - mindestens aber das Grundstück mit Höhenlinien oder -meßpunkten.
https://www.instagram.com/11antgmxde/
https://www.linkedin.com/company/bauen-jetzt/
Ok,
also ich muss erst einmal sagen, dass man tatsächlich einiges mehrmals anschauen muss, um die Bilder reflektieren um umsetzen zu können.
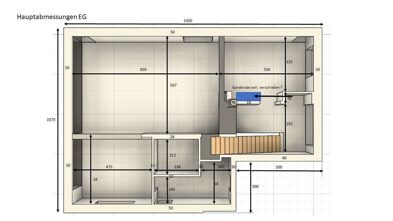
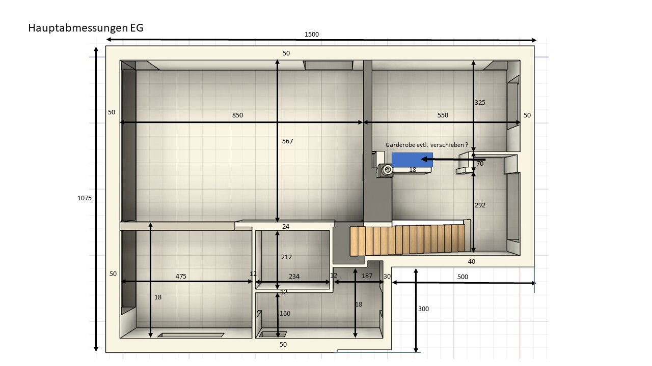
Es fehlen eben die Übersichten und Lageplan mit Bemaßung.
So ist der Carport wohl gar nicht anzufahren, weil er sich auf UG-Niveau befindet*, die Straße aber weiterhin mehr oder weniger ohne Neigung ist? Wie weit ist also der Carport von der Straße entfernt? 6 Meter? Neigung der Zufahrt? Das ist zu steil, viel zu steil. Auch wenn die Straße sich etwas in Richtung Osten neigen würde.. Wenn es nicht so sein sollte, dann liegt das nicht an meinem mangelnden Verständnis, sondern an der schlechten Vorlage.
Dann sind die Versorgungsleitungen mit der Garage bzw dem Haus überbaut. Das ist in NRW auch nicht erlaubt. Das ist quasi in jedem Bundesland unzulässig, da man an diese nicht mehr herankommt bei Störung, Wartung und Reparatur.
Wenn man mal von den Leitungen absieht, die hier fälschlicherweise in den Wänden liegen und nicht außen vor, dann sehe ich keine tragende Möglichkeit für die Satteldachkonstruktion. Ich plane ja auch selbst, aber so etwas sollte man immer im Hinterkopf haben. Wenn man selbst kein Statiker ist oder Fachkenntnisse hat, dann sollte man Möglichkeiten einfach und notfalls mit doppeltem Boden gestalten.
Statisch halt hier und jetzt eine große Hausnummer. Man kann feststellen, dass kaum eine Wand im UG übernommen wurde. Und dann ist das OG ja als Staffelgeschoss weiter nach innen gesetzt. Das ist nicht einfach. Außerdem birgt das Gefahr vor Wassereintritt. Muss nicht sein, aber ein Risiko ist es immer, wo Dach und Außenwand aufeinander treffen.
In NRW gilt ein VG, wenn es mehr als 3/4 vom EG über 2,30 Höhe hat. Die Grundfläche vom OG sieht mir mehr als 3/4 aus. Wenn Du ein Flachdach planst, dann ist das ein VG. Wenn man einen Kalksandstein plant, dann geht Dusche oder die Schränke der Ankleide nicht.
Zum inneren Entwurf, Grundriss:
Wenn die Einliegerwohnung nur für Gäste dienlich sein sollte, dann ist die Innentür erklärt. Allerdings finde ich den Flur in der Einliegerwohnung fraglich. Wenn Du außerdem auch noch hier das Bad innenliegend haben willst, dann ist auch das wie auch das innenliegende WC im EG nicht nachvollziehbar.
Den Knotenpunkt zwischen Treppenantritt zum Keller, Speis und Dusch-WC finde ich zu eng und gefährlich. Im Alter 50+ würde ich über Barrierearmut nachdenken, muss aber nicht. Ob man sich wohl fühlt, wenn das Sofa in der Sichtachse zur Straße geplant ist, stellt sich heraus. Grundsätzlich aber vermeiden viele dieses. Alle Türen sehen recht schmal aus..
Ankleide ist zu schmal, der Zutritt über das Schlafzimmer bzw von der Bettseite aus und das Schlafzimmer als Durchgagszimmer ist nicht partnerfreundlich und auch zu vermeiden. Wofür die Füllräume sind, weiss ich nicht.
*ich sehe gerade: das Carport ist auf halber Höhe, dann geht es natürlich mit der Anfahrt. Allerdings wäre es dann ja mehr oder weniger halb hoch an der SO-Wand im EG.
Also, die Visualisierung ist jetzt nicht wirklich gelungen. Dafür gibt es bessere Tools. Ich muss auch 10 mal auf vieles draufschauen. Und das liegt nicht an mir.
Insgesamt ist das Planen ein nettes Hobby und sollte es auch bleiben. Vertrau da mal dem Architekten und lass ihn ein Haus ohne aufwändiger Statik entwerfen, das dann auch von Eurem Budget bezahlbar ist.
Ich persönlich würde einen seitlichen Eingang wählen, damit im Süden (und Westen) der Aufenthaltsraum geplant werden kann.
also ich muss erst einmal sagen, dass man tatsächlich einiges mehrmals anschauen muss, um die Bilder reflektieren um umsetzen zu können.
Es fehlen eben die Übersichten und Lageplan mit Bemaßung.
Andixxx schrieb:Die Zahlen kann man leider nicht erkennen.
In der Gesamtansicht mit dem zu veräußernden Grundstück sieht man den Höhenverlauf der Grundstücke.
So ist der Carport wohl gar nicht anzufahren, weil er sich auf UG-Niveau befindet*, die Straße aber weiterhin mehr oder weniger ohne Neigung ist? Wie weit ist also der Carport von der Straße entfernt? 6 Meter? Neigung der Zufahrt? Das ist zu steil, viel zu steil. Auch wenn die Straße sich etwas in Richtung Osten neigen würde.. Wenn es nicht so sein sollte, dann liegt das nicht an meinem mangelnden Verständnis, sondern an der schlechten Vorlage.
Dann sind die Versorgungsleitungen mit der Garage bzw dem Haus überbaut. Das ist in NRW auch nicht erlaubt. Das ist quasi in jedem Bundesland unzulässig, da man an diese nicht mehr herankommt bei Störung, Wartung und Reparatur.
Wenn man mal von den Leitungen absieht, die hier fälschlicherweise in den Wänden liegen und nicht außen vor, dann sehe ich keine tragende Möglichkeit für die Satteldachkonstruktion. Ich plane ja auch selbst, aber so etwas sollte man immer im Hinterkopf haben. Wenn man selbst kein Statiker ist oder Fachkenntnisse hat, dann sollte man Möglichkeiten einfach und notfalls mit doppeltem Boden gestalten.
Statisch halt hier und jetzt eine große Hausnummer. Man kann feststellen, dass kaum eine Wand im UG übernommen wurde. Und dann ist das OG ja als Staffelgeschoss weiter nach innen gesetzt. Das ist nicht einfach. Außerdem birgt das Gefahr vor Wassereintritt. Muss nicht sein, aber ein Risiko ist es immer, wo Dach und Außenwand aufeinander treffen.
In NRW gilt ein VG, wenn es mehr als 3/4 vom EG über 2,30 Höhe hat. Die Grundfläche vom OG sieht mir mehr als 3/4 aus. Wenn Du ein Flachdach planst, dann ist das ein VG. Wenn man einen Kalksandstein plant, dann geht Dusche oder die Schränke der Ankleide nicht.
Zum inneren Entwurf, Grundriss:
Wenn die Einliegerwohnung nur für Gäste dienlich sein sollte, dann ist die Innentür erklärt. Allerdings finde ich den Flur in der Einliegerwohnung fraglich. Wenn Du außerdem auch noch hier das Bad innenliegend haben willst, dann ist auch das wie auch das innenliegende WC im EG nicht nachvollziehbar.
Den Knotenpunkt zwischen Treppenantritt zum Keller, Speis und Dusch-WC finde ich zu eng und gefährlich. Im Alter 50+ würde ich über Barrierearmut nachdenken, muss aber nicht. Ob man sich wohl fühlt, wenn das Sofa in der Sichtachse zur Straße geplant ist, stellt sich heraus. Grundsätzlich aber vermeiden viele dieses. Alle Türen sehen recht schmal aus..
Andixxx schrieb:Mir fehlen hier Fenster in ausreichender Größe, um das Sonnenlicht im Aufenthaltsbereich zu haben.
Aufgrund der Sonnenausrichtung, geht im Garten auf und an der Straße unter und der Hanglage gute Positionierung der Räume und Aufteilung
Ankleide ist zu schmal, der Zutritt über das Schlafzimmer bzw von der Bettseite aus und das Schlafzimmer als Durchgagszimmer ist nicht partnerfreundlich und auch zu vermeiden. Wofür die Füllräume sind, weiss ich nicht.
*ich sehe gerade: das Carport ist auf halber Höhe, dann geht es natürlich mit der Anfahrt. Allerdings wäre es dann ja mehr oder weniger halb hoch an der SO-Wand im EG.
Also, die Visualisierung ist jetzt nicht wirklich gelungen. Dafür gibt es bessere Tools. Ich muss auch 10 mal auf vieles draufschauen. Und das liegt nicht an mir.
Insgesamt ist das Planen ein nettes Hobby und sollte es auch bleiben. Vertrau da mal dem Architekten und lass ihn ein Haus ohne aufwändiger Statik entwerfen, das dann auch von Eurem Budget bezahlbar ist.
Ich persönlich würde einen seitlichen Eingang wählen, damit im Süden (und Westen) der Aufenthaltsraum geplant werden kann.
Stell doch einmal die bemassten Grundrisse mit realistischen Möbeln ein. Dazu dann die Grundrisse des Architekten sowie die Erläuterung, warum ihr Zwei wie wohnen wollt. Generell mag ich Großzügigkeit ja aber nicht nur der puren Größe wegen, sondern wegen des besonderen Raumgefühles.
Du bist mMn schon vielzu weit geritten bei Klinkern und sonstwas.....
All das ist ja nicht schlimm und mitplanen macht auch Spass aber man verfestigt sich natürlich auch irgendwo und am Ende ist man eben nicht mehr als ein Laie; bislang sehe ich lediglich einen Riesenkasten mit unterschiedlicher Dachform.
Du bist mMn schon vielzu weit geritten bei Klinkern und sonstwas.....
All das ist ja nicht schlimm und mitplanen macht auch Spass aber man verfestigt sich natürlich auch irgendwo und am Ende ist man eben nicht mehr als ein Laie; bislang sehe ich lediglich einen Riesenkasten mit unterschiedlicher Dachform.
Ähnliche Themen