Einfamilienhaus Machbarkeit / Auswahl Anbieter

4,70 Stern(e) 12 Votes
Zuletzt aktualisiert 07.01.2026
Sie befinden sich auf der Seite 4 der Diskussion zum Thema: Einfamilienhaus Machbarkeit / Auswahl Anbieter
>> Zum 1. Beitrag <<

11ant

11ant

Wir haben das Grundstück gekauft. Unsere Nachbarn bauen ohne Keller und ohne Staffelgeschoss mit normaler Deckenhöhe, zusätzlich haben wir das Vorzugsrecht.
Aufgrund zahlreicher Gespräche und Angebote haben wir uns entschieden mit einem GU zu bauen, da wir mit einem Festpreis kalkulieren möchten und wenig Wert auf Individualität oder Flexibilität legen.
Was haltet Ihr von dem Angebot für 120 qm Flachdach 2 Vollgeschosse?
"Ein Doppelhaus hat ZWEI Hälften" (ist auch der Titel meines externen Grundsatzbeitrages). Man muß keine Spiegelklone bauen, aber man sollte - ibs. an der Kommunseite - auf die Abstimmung der Hausprofile achten. Mit einem (also gemeinsamen) GU zu bauen, ist dabei sehr hilfreich - zumindest im Rohbau, danach dürfen sich die Vergabewege gerne trennen. Ein gemeinsamer Planer ist aber noch wichtiger. Was soll das Vorzugsrecht bedeuten: eine Verabredung, welcher Nachbar anfängt ? - und eine "normale" Deckenhöhe ist was ?
Wenn die Nachbarn Ohnekellerer sein wollen, solltet Ihr es ihnen gleichtun oder ihr "müßt" zuerst bauen.
 
S

Simon1988

Danke für die Tipps, nehmen wir alles in die nächste Angebotsbesprechung mit.

Unsere Nachbarn bauen mit einem Architekten, mit dem wir nicht zusammenkommen, jedoch ohne Keller / Staffelgeschoss. Das Vorzugsrecht galt auf die Gebäudehöhe, hier haben wir uns aber bereits auf 2,50 m geeinigt.

Wir haben nun ein weiteres Angebot von einem GU aus dem ländlicheren Raum gefunden, der alle Positionen transparent aufführt (wir können jedes Gewerk rausnehmen). Es ließt sich ähnlich in der Bauleistungsbeschreibung, jedoch mit Garage und PV Batterie für 388 tsd - Positionen bauseits ähnlich wie im letzten Angebot.

Findet Ihr den folgenden Preis ok?

Vaillant WP 5 kW Arotherm plus VWL 55/8.1 A inkl. 300 Ltr. Trinkwasserspeicher
nebst miniHeinzugspuffer
sämtlichen Montagezubehör
liefern, montieren und in Betrieb nehmen

19.800 € netto

Hier eine Zusammenfassung (ich weiß ohne genauere Beschreibung kann man die Positionen nicht bewerten, vielleicht erscheint eine Position trotzdem besonders teuer) für 125 qm (kein KfW):

Baustelleneinrichtung 2500

Erd- und Entwässerungsarbeiten 15.625

Beton – und Stahlbetonarbeiten
Bodenplatte d=20-25 cm aus Beton C25/35 WU
Bodenplatte Wohnhaus 6700
Bodenplatte Garage 2115
Erdgeschoss 8705
Garage 2451
Obergeschoss 6742
Baustahl 10886

Mauerarbeiten
Porotonsteinen / Kalksandsteinen
Erdgeschoss 7615
Garage 3877
Obergeschoss 12259
Abdichtungs und Wärmedämmarbeiten 5815
Gerüstbauarbeiten 3200
Dach 24300
Fenster, Haustüre Rollladen 29661
Elektro einschl. PV 37319
Heizung, Lüftung und Sanitär 43139
Putzarbeiten Q2 12668
Estricharbeiten 3693
Trockenbauarbeiten 1260
Flisenarbeiten 16430
Naturstein, Fensterbänke 4457
Schreinerarbeiten, Innenarbeiten 9802
Schlosserarbeiten 9621
Wärmedämmverbundsystem Fassade 32283
Planung, Statik, Wärmebedarf 8800
Ausarbeitung der Baustellenpläne 2000
Vermessungsarbeiten 1835
Dichtigkeitsprüfung 500

Netto 326.000
Brutto 388.000

Bauseits
Hausanschlüsse
Außenanlage
Maler und Tapezierarbeiten
 
N

nordanney

Kurzer Check: 388k für 125qm inkl. Garage = 375 ohne Garage = 3k je qm Wohnfläche. = normaler Preis (wenn ich mal die Erdarbeiten durch Malerei substituiere). Was ist mit Böden (Fliesen im ganzen Haus im Preis drin?) und ggf. Mehraufwand Gründung?

Pauschal gesagt, ist es ein normaler Preis in Summe.
 
11ant

11ant

Unsere Nachbarn bauen mit einem Architekten, mit dem wir nicht zusammenkommen,
Das darfst Du gerne erläutern !
jedoch ohne Keller / Staffelgeschoss. Das Vorzugsrecht galt auf die Gebäudehöhe, hier haben wir uns aber bereits auf 2,50 m geeinigt.
Ich vermute einen Tippfehler: ZWÖLF Meter fünfzig (?)
Wir haben nun ein weiteres Angebot von einem GU aus dem ländlicheren Raum gefunden, der alle Positionen transparent aufführt (wir können jedes Gewerk rausnehmen). Es ließt sich ähnlich in der Bauleistungsbeschreibung, jedoch mit Garage und PV Batterie für 388 tsd - Positionen bauseits ähnlich wie im letzten Angebot.
Findet Ihr den folgenden Preis ok?
Anderer Architekt und dann auch noch anderer (Rohbau) GU, das klingt nach einer soliden Basis für eine Neuaufführung des Stückes "Die Leiden des Goalkeepers" :-(
Gewerke kann man meist nur ohne ihren Gewinnbeitrag herausnehmen (falls mit, blinkt es bei mir hektisch dunkelgelb), und empfehlenswert ist das nie. Die Preise (mit Einserstellen !) finde ich sehr merkwürdig (wie eigentlich auch schon die "Transparenz" des Angebotes überhaupt: entweder GU - dann Paketpreis - oder Einzelpositionen, dann ist das aus guten Gründen ungewöhnlich für einen GU und verbindet sich mit der Frage, worauf sich seine Preisgarantie bezieht). Könnt Ihr (Achtung: die Bank muß da mitziehen !) Euch wirklich leisten, daß das Projekt wegen Angebotsirrglauben bzw. -mißverständnissen gerne auch ´mal dreißig Prozent teurer wird als erwartet ?

Auf welcher Grundlage bietet der GU denn überhaupt, wenn es noch keinen Architekten und damit auch noch keine fachgerechte Ausschreibung gibt: etwa auf eine Eigenplanung, womöglich gar nur aus einer SH3D-Grundrissesammlung bestehend ?
Ein GU kommt übrigens am besten aus "Rufweite", d.h. dem Gebiet, in dem er auch weiterhin von seinem Ruf leben können muß. Einen GU vom Rande des Pendlerbereiches zu holen, weil in dessen Sitzkaff ein anderes Lohnniveau herrscht, taugt nicht wirklich.
 
S

Simon1988

Der Architekt der Nachbarn hat uns 2 Stunden erzählt wie toll er ist, wie schlecht alle anderen sind und nicht eine Frage an uns gestellt. Sein Honorar beträgt 60k. Seine Kalkulation erschien uns teilweise nicht schlüssig (einige Posten viel zu günstig kalkuliert). Seine Skizze wurde in anderen Foren schon schlecht geredet. Da wir nicht vom Fach sind, müssen wir auch nach unserem Gefühl gehen und hier hat es auch menschlich einfach nicht gepasst - sein letzter Satz war, das er uns das heutige Gespräch nicht in Rechnung stellt.

Sry, die 2,5 m beziehen sich auf die Deckenhöhe.

Anderer Architekt und anderer Rohbau - wir hätten auch gerne andere Voraussetzungen und du hast sicherlich zurecht davon abgeraten, jedoch passt der Rest für uns perfekt, sodass wir das Risiko bewusst eingegangen sind. Die "Leiden des Goalkeepers" ist auch ein extremes Negativbeispiel. Ich denke nach mehreren Gesprächen mit unseren Nachbarn werden wir zusammen Lösungen / Kompromisse finden.

Fliesen für das komplette Haus sind im Angebot mit drin - dies wäre das einzige, was wir evtl. fremd vergeben würden.

Im Angebot steht, wenn die Beschaffungskosten für Baustoffe sich nachweislich um mehr als 2 % erhöhen oder verringern, ändert sich der entsprechende Einheitspreis für das Material. Das gleiche gilt für die angebotenen Bauleistungen der Partnerfirmen. Das macht uns richtig Bauchschmerzen! Wir haben 50 k Puffer, 30 % Mehrkosten wären jedoch kaum zu stemmen.

Das Angebot wurde auf Grundlage der Nachbarskizze und einigen Angaben von uns kalkuliert. Uns wurde die Architektin des Bauunternehmens im persönlichen Umfeld empfohlen. Das Bauunternehmen sitzt 50 km vom Baugebiet entfernt und hat in dem Baugebiet bereits zwei weitere Projekte. Zudem hat jeder Ansprechpartner nur Gutes über dieses Bauunternhemen verloren. Auch im ersten Gespräch hat man uns ein gutes Gefühl vermittelt und preislich bekommen wir, zumindest nach unserem laienhaften Eindruck, mehr als bei allen bisherigen Anbietern.

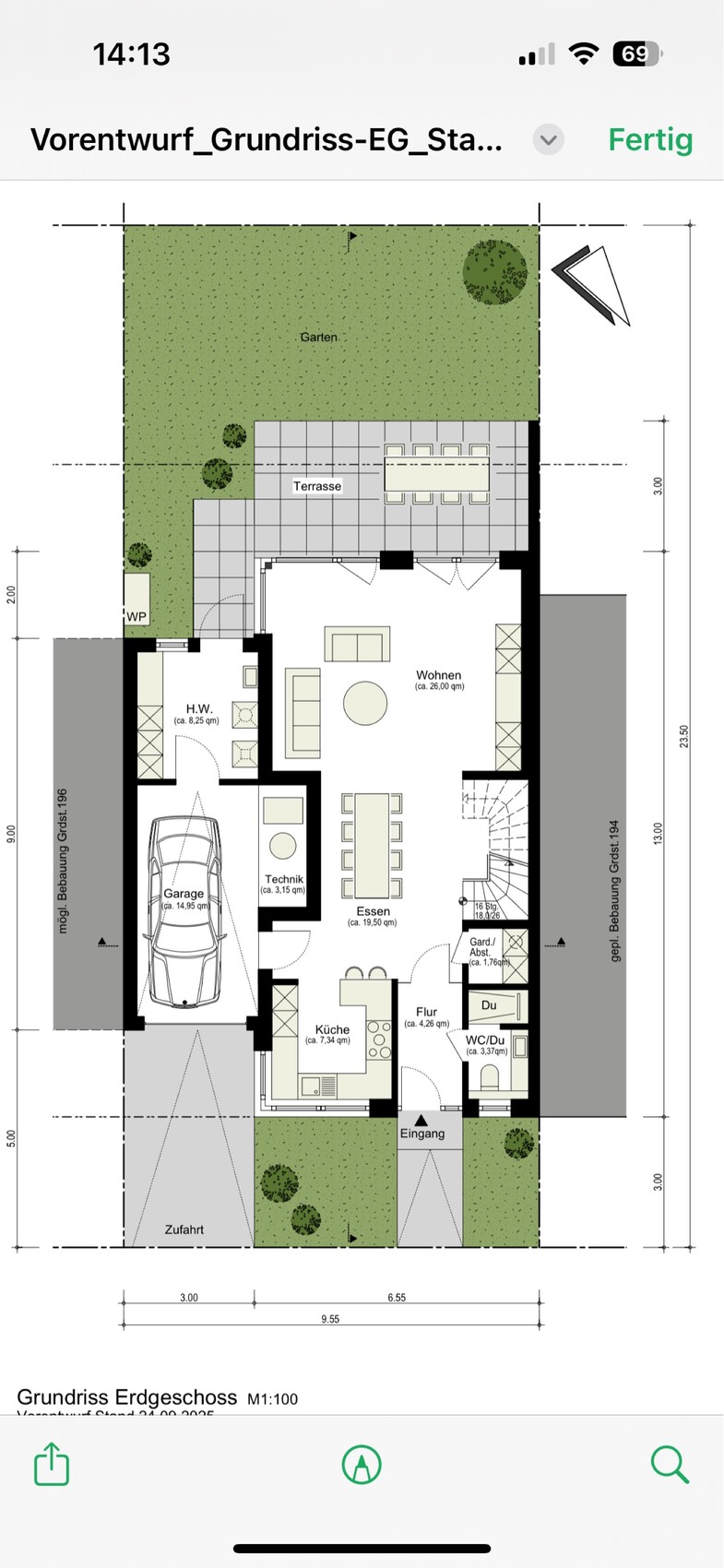
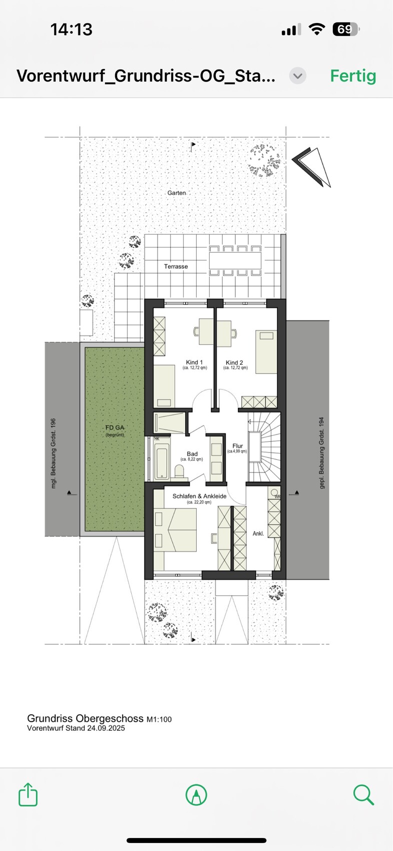
Hier die Skizze vom Nachbarn, nachdem das Angebot kalkuliert wurde:

Grundriss Erdgeschoss eines Hauses mit Garage, Küche, Wohnbereich, Terrasse und Garten.

Grundriss Obergeschoss mit Schlafen & Ankleide, Bad, Flur, Terrasse und Garten

Grundriss Erdgeschossplan mit Terrasse, Garten und Eingang
 
11ant

11ant

Der Architekt der Nachbarn hat uns 2 Stunden erzählt wie toll er ist, wie schlecht alle anderen sind und nicht eine Frage an uns gestellt. Sein Honorar beträgt 60k. Seine Kalkulation erschien uns teilweise nicht schlüssig (einige Posten viel zu günstig kalkuliert). Seine Skizze wurde in anderen Foren schon schlecht geredet. Da wir nicht vom Fach sind, müssen wir auch nach unserem Gefühl gehen und hier hat es auch menschlich einfach nicht gepasst - sein letzter Satz war, das er uns das heutige Gespräch nicht in Rechnung stellt.
Das klingt nach "@Gerddieter warnt" Architekt: Künstler, keine Bodenhaftung durch Bauleitung, normalerweise sind solche Typen beschränkt auf LP 1 bis 4, aber dafür klingt das Honorar hier unglaublich apothekös).
In diesem speziellen Fall ist dann wohl tatsächlich besser, verschiedene Architekten zu nehmen. Vielleicht sucht Ihr dann zumindest einen gemeinsamen (Rohbau) GU. Und nein, die Leiden des Goalkeepers sind kein Einzelfall, sondern eher ein #metoo Thema: nur wenige Betroffene reden darüber, durch die große Dunkelziffer entsteht dann der falsche Eindruck des Einzelschicksals.

Die Zeichnungen sehen mir nun so garnicht nach Doppelhaushälfte, sondern nach RMH aus (?)
Ich habe hier im übrigen den Eindruck, das werde Probleme mit überbauten Hauseinführungen geben !
Sry, die 2,5 m beziehen sich auf die Deckenhöhe.
Das ist wohl der unbrauchbarste Parameter, auf den man sich verständigen kann: als Geschosshöhe würde es als Maßstab noch taugen, müßte dann jedoch höher sein. Und als lichte Rohhöhe ist es m.E. ausreichend, jedoch dann nicht aussagekräftig (weil die Geschossdecken/Fußbodenaufbauten ja recht unterschiedlich ausfallen können).
Das Bauunternehmen sitzt 50 km vom Baugebiet entfernt und hat in dem Baugebiet bereits zwei weitere Projekte.
Ein GU mit 50 km Aktionsradius sollte auch mindestens so viele (eigene !) Beschäftigte haben und macht dann auch etwa so viele Häuser / Wohneinheiten pro Jahr, also wöhentlich eine(s). Trifft das zu ?
Im Angebot steht, wenn die Beschaffungskosten für Baustoffe sich nachweislich um mehr als 2 % erhöhen oder verringern, ändert sich der entsprechende Einheitspreis für das Material. Das gleiche gilt für die angebotenen Bauleistungen der Partnerfirmen. Das macht uns richtig Bauchschmerzen! Wir haben 50 k Puffer, 30 % Mehrkosten wären jedoch kaum zu stemmen.
Das klingt nach einer seriösen Gleitklausel. So hohe Mehrkosten wird es dadurch nicht geben, die entstehen eher durch solche "Angebote auf tönernen Füßen" und durch Verzögerungen durch Fremdvergaben und Eigenleistungen. Wollt Ihr die Fliesen wegen der Dekorauswahl herausnehmen (dann laßt sie besser drin), oder wegen des Wunsches nach Großformaten (dann rightsizt diese) ?
 
Zuletzt bearbeitet von einem Moderator:
Zuletzt aktualisiert 07.01.2026
Im Forum Liquiditätsplanung / Finanzplanung / Zinsen gibt es 3226 Themen mit insgesamt 71250 Beiträgen


Ähnliche Themen zu Einfamilienhaus Machbarkeit / Auswahl Anbieter
Nr.ErgebnisBeiträge
1Fliesen kaufen während Rohbau 24
2Hausfinanzierung - Haus, Garage und Bodenplatte ca. 290.000 EUR 11
3Fußboden Garage Fliesen oder 2K Anstrich - Seite 229
4Neubau Rohbau Auswahl: Unternehmen oder Architekten nehmen? 52
5Bodenplatte, Zu wenig Zement im Beton - Seite 219
6Bodenplatte dämmen - Deckenhöhe reicht nicht aus 14
7Fliesen auf Beton entfernen 16
8Gas,- Wasser, Strom,- Telefonleitungen überbauen mit Garage? 13
9Kosten Rohbau und Dacheindeckung/-Dämmung - Festpreisangebot ok? 25
10Gefälle der Garage - Welche Ausführung? - Seite 321
11Nur Estrich in der Garage - Befahren im Winter - Seite 211
12Garage nicht von Hausbaufirma - Optik - Seite 319
13Baukosten Rohbau/Schlüsselfertig Vergleich - Seite 239
14Kostenfrage zu Erdarbeiten bei Hanglage 22
15Einfamilienhaus mit >180qm / Keller / Garage - Seite 968
16Fliesen andere Hersteller finden / Bauträger Bemustern - Seite 213
17Kostenplanung Einfamilienhaus inkl. Grundstück, Nebenkosten, Architekten - Seite 532
18Haus durch GU oder Architekten planen lassen? - Seite 330
19Bodenplatte mit Mängeln? - Seite 222
20Einschätzung Kosten für Rohbau und Gesamtkosten (Putz, Estrich) - Seite 317

Oben