ᐅ Einfamilienhaus Grundstück gekauft Meinung zu Architekten Zeichnung
Erstellt am: 15.07.20 22:45
M
maleba89pagoni2020 schrieb:
Vlt. solltet ihr die Architektin einfach mal ganz "frei" ihren Plan entwerfen lassen, ohne ihr diese Dinge vorzugeben [...] Denn der Entwurf soll ja "neu" (also vlt. anders) sein und "frei" geplant.Genau, es wäre Wahnsinn, bei der Erwartung nach etwas Neuem immer wieder die alten Vorgaben ins Pflichtenheft zu schreiben.https://www.instagram.com/11antgmxde/
https://www.linkedin.com/company/bauen-jetzt/
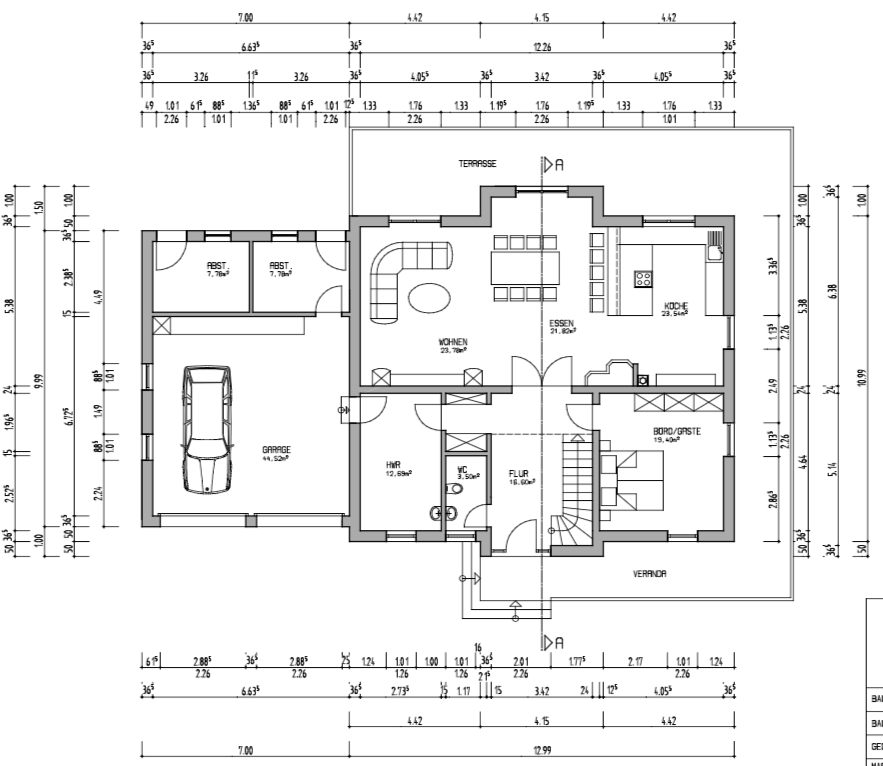
Anbei mal die neuen Grundrisse. EG gefällt uns jetzt eigentlich sehr gut.
OG gefällt uns auch ausser der Bereich Elternschlafzimmer Ankleide Bad da soll die Wand im Flur gerade runter gehen und den Bereich als ganzes vom Flur trennen. Kind 2 überlegen wir noch mit Büro zu tauschen.
Über der Haustür soll eine Spitzhaue sein und entweder über Elternschlafzimmer und Kind 1 jeweils eine Gaube oder nur über dem Büro eine Gaube.
Oder als letzte Option eine lange Gaube über alle drei Zimmer um somit von jedem Zimmer ein Fenster Richtung Garten zu haben.
Der Hauswirtschaftsraum wird so gebaut, dass man auch später unten eine Dusche erweitern könnte.
Die Einrichtung im Wohn Essbereich ist auch noch nicht korrekt an die Küchentheke sollen keine Stühle und der Tisch ist 90 Grad gedreht.


OG gefällt uns auch ausser der Bereich Elternschlafzimmer Ankleide Bad da soll die Wand im Flur gerade runter gehen und den Bereich als ganzes vom Flur trennen. Kind 2 überlegen wir noch mit Büro zu tauschen.
Über der Haustür soll eine Spitzhaue sein und entweder über Elternschlafzimmer und Kind 1 jeweils eine Gaube oder nur über dem Büro eine Gaube.
Oder als letzte Option eine lange Gaube über alle drei Zimmer um somit von jedem Zimmer ein Fenster Richtung Garten zu haben.
Der Hauswirtschaftsraum wird so gebaut, dass man auch später unten eine Dusche erweitern könnte.
Die Einrichtung im Wohn Essbereich ist auch noch nicht korrekt an die Küchentheke sollen keine Stühle und der Tisch ist 90 Grad gedreht.
Ich würde die Wand im OG vom Flur zur Ankleide weiter nach Links schieben, damit man Von der Ankleide aus ins Schlafzimmer und Bad geht.
Den Kamin könnte man mitschieben, wenn ich das im EG richtig sehe.
So ist die Ankleide kaum nutzbar.
Im Elternbad würde mich die Dusche und der Nassbereich davor direkt am Eingang stören.
Die Küche ist riesig und bietet Platz für eine besondere Lösung, die klassische U-Form mit ner Theke finde ich hier unpassend.
Die 2 Separaten Abstellräume bei der Garage verstehe ich nicht so recht, wozu soll das sein?
Den Kamin könnte man mitschieben, wenn ich das im EG richtig sehe.
So ist die Ankleide kaum nutzbar.
Im Elternbad würde mich die Dusche und der Nassbereich davor direkt am Eingang stören.
Die Küche ist riesig und bietet Platz für eine besondere Lösung, die klassische U-Form mit ner Theke finde ich hier unpassend.
Die 2 Separaten Abstellräume bei der Garage verstehe ich nicht so recht, wozu soll das sein?
Ich bin ja ein Fan von einer Feuerstelle und jammer ja immer ein bisserl rum, daß ich keine gekriegt habe, aber da wo der Kamin jetzt ist, finde ich ihn relativ nutzlos. In küchennähe braucht man keine Feuerstelle, die es einem beim Kochen noch extra einheizt und auch beim esstisch muß ich das nicht haben.
Ich würde überlegen, ob ich den nicht in den Wohnbereich verlegen kann und der Kamin läuft dann halt durch das Kinderbad.
Ich würde überlegen, ob ich den nicht in den Wohnbereich verlegen kann und der Kamin läuft dann halt durch das Kinderbad.
P
pagoni202008.09.20 21:30Der Erker im Esszimmer sollte mMn schon so sein, dass der Esstisch dort exakt vermittelt genutzt werden kann; so siehts weniger gut aus. Selbst wenn aus mir unverständlichen Gründen an der Theke keine Stühle sein werden wird dann dort doch Jemand stehen/lehnen. Wie auch immer sollte der Esstisch wirklich frei stehen und Platz haben. Ich tu mich schwer mir nem Erker, hier besonders. Wenn er breit genug wäre, dass darin quasi der Essplatz "verschwinden könnte, aber so steht er an der Ecke und wird auch nach dem Drehen keinen komfortablen Platz haben, befürchte ich. Also entweder etwas breiter oder ganz weg bzw. wie schon gfesagt, die Küche kleiner bzw. nicht so tief.
Einen passenden Platz für einen Kamin sehe ich bei dieser Möblierung gar nicht, evlt. wenn das WZ tiefer wäre an der Erkerseite, also dann als "Raumteiler" zw. WZ und Esszimmer.
Ich finde auch, dass Fensterflächen fehlen; aus dem Flur kommt kaum Licht.
Eingang Büro/Gast würd eich versuchen 60cm als Schrankstellfläche zu erhalten, damit man optisch nicht gg. die Schrankseite läuft.
Bad OG wirkt bislang lieblos aber da kommen bestimmt noch Ideen hier oder Du machst dafür nen eigenen Thread auf. Dusche steht wirklich direkt vor der Nase im Moment.
Die Dachterrasse ist riesig und ist ja nur vom Kinderbereich zugänglich. Damit dies nicht nur eine riesige Fläche wird muss dort etwas geschehen, damit es nicht unschön aussieht und auch als wirkliche, also schöne, Dachterrasse nutzbar wird. zu viel Fläche kann da auch ein Nachteil sein, dann wirkt es eben wie ein begehbares Garagendach und nicht wie eine Dachterrasse.
Einen passenden Platz für einen Kamin sehe ich bei dieser Möblierung gar nicht, evlt. wenn das WZ tiefer wäre an der Erkerseite, also dann als "Raumteiler" zw. WZ und Esszimmer.
Ich finde auch, dass Fensterflächen fehlen; aus dem Flur kommt kaum Licht.
Eingang Büro/Gast würd eich versuchen 60cm als Schrankstellfläche zu erhalten, damit man optisch nicht gg. die Schrankseite läuft.
matte1987 schrieb:sehe ich genauso, hier ist es ein kleines Räumlein und eine unnötige Tür mehr. Man geht in diese Ankeide rein und steht dann in dem kleinen abgeschlossenen Raum; auf mich wirkt das eher wie ein Abstellraum und die Tür nimmt weitere Stellmöglichkeit.
Ich würde die Wand im OG vom Flur zur Ankleide weiter nach Links schieben, damit man Von der Ankleide aus ins Schlafzimmer und Bad geht.
Bad OG wirkt bislang lieblos aber da kommen bestimmt noch Ideen hier oder Du machst dafür nen eigenen Thread auf. Dusche steht wirklich direkt vor der Nase im Moment.
Die Dachterrasse ist riesig und ist ja nur vom Kinderbereich zugänglich. Damit dies nicht nur eine riesige Fläche wird muss dort etwas geschehen, damit es nicht unschön aussieht und auch als wirkliche, also schöne, Dachterrasse nutzbar wird. zu viel Fläche kann da auch ein Nachteil sein, dann wirkt es eben wie ein begehbares Garagendach und nicht wie eine Dachterrasse.
Ähnliche Themen