ᐅ Einfamilienhaus Grundstück gekauft Meinung zu Architekten Zeichnung
Erstellt am: 15.07.20 22:45
M
maleba89pagoni2020 schrieb:
Wo ist das Bild ?gelöschtwir haben 2 Erker, jeweils 60cm tief, 1 x 180, 1 x 200cm breit, das Haus ist Baujahr '95, Heute ist sowas unmodern, würde nicht mehr planen.
Die besagten Fenster hatte mein Bruder in seinem Haus, Jahrgang '86, auch mit Erker. Wenn Fenster mit Sprossen, dann was Moderneres und eben nur an einer Stelle wie hier zB, wenn's was anderes sein soll.

Nein, man muss nicht jede Außenwand mit bodentiefen Fenstern/Terrassentüren zupflastern, wie es jetzt Mode ist.
Die besagten Fenster hatte mein Bruder in seinem Haus, Jahrgang '86, auch mit Erker. Wenn Fenster mit Sprossen, dann was Moderneres und eben nur an einer Stelle wie hier zB, wenn's was anderes sein soll.
Nein, man muss nicht jede Außenwand mit bodentiefen Fenstern/Terrassentüren zupflastern, wie es jetzt Mode ist.
maleba89 schrieb:
Was meinst du mit steinhausplanung? Wo liegt genau der UnterschiedZahlreiche Maße im Grundriss deuten auf eine Planung für eine Realisierung mit Steinwänden hin, was nur zweckmäßig wäre, wenn diese auch vorgesehen ist. Aber erstens nennst Du ein Vorbildhausmodell von einem Holzhausanbieter, und zweitens lassen Deine Beiträge hier (und anderswo auch explizit mittels des dort geschilderten Wandaufbaus) daran zweifeln, daß die Planung in Stein ausgeführt werden soll. Bestimmte Planungsraster und Maße sind in Stein so sinnvoll wie dargestellt, in Holz aber anders. Ob man das Haus aus Stein oder aus Holz umsetzen will, macht erhebliche Unterschiede in der statischen Konzeption.https://www.instagram.com/11antgmxde/
https://www.linkedin.com/company/bauen-jetzt/
Ausführung als Holzhaus, Holzständerbauweise, geschlossene Balkendecke, Zwischensparrendämmung, nur Pfetten sichtbar
Bebauungsplan/Einschränkungen
Größe des Grundstücks: 1700qm
Hang Grundstück fällt von Straße 1,2m zur Mitte hin ab über die ganze länge. Hinter dem Bach Richtung Feld Hang von ca 2,5m
Grundflächenzahl 0,4
Geschossflächenzahl 0,7
Baufenster, Baulinie und -grenze Baugrenze:
sind die Grundstücksgrenzen auf beiden Seiten des verrohrten Baches. Grenzbebauung erlaubt oder mind. 3m Abstand
Randbebauung: ja
Anzahl Stellplatz: 2 vor der Garage und 2 an der Grenze zum linken Nachbarn angrenzend an die Nachbargarage
Geschossigkeit: 2 Vollgeschosse erlaubt
Dachform: alles erlaubt
Stilrichtung alles erlaubt
Ausrichtung alles erlaubt, auch Schräg zur Straße
Maximale Höhen/Begrenzungen: nein
weitere Vorgaben
Anforderungen der Bauherren
Stilrichtung, Dachform, Gebäudetyp : Stilrichtung:
Schwedenhaus modern (Richtung New England, Vorbild: Eksjöhus Rosenhill, Fjorborg Stockholm
Raumaufteilung gefällt sehr gut bei dem Keitel-Haus Bad Vilbel
kein Keller, Geschosse 1 1/2 bis 2 Kniestock 1,4m
Anzahl der Personen : aktuell 2 , Alter 30/26 , zwei Kinder geplant
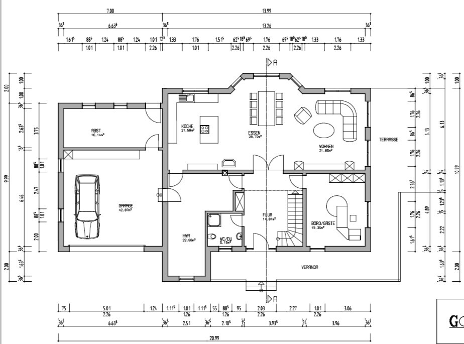
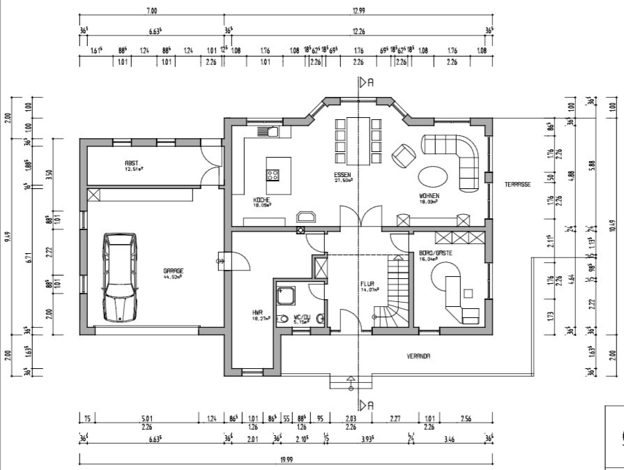
Raumbedarf im EG, OG:
EG (Wohnzimmer, Esszimmer, Küche, Hauswirtschaftsraum, Büro Frau, Gästebad;
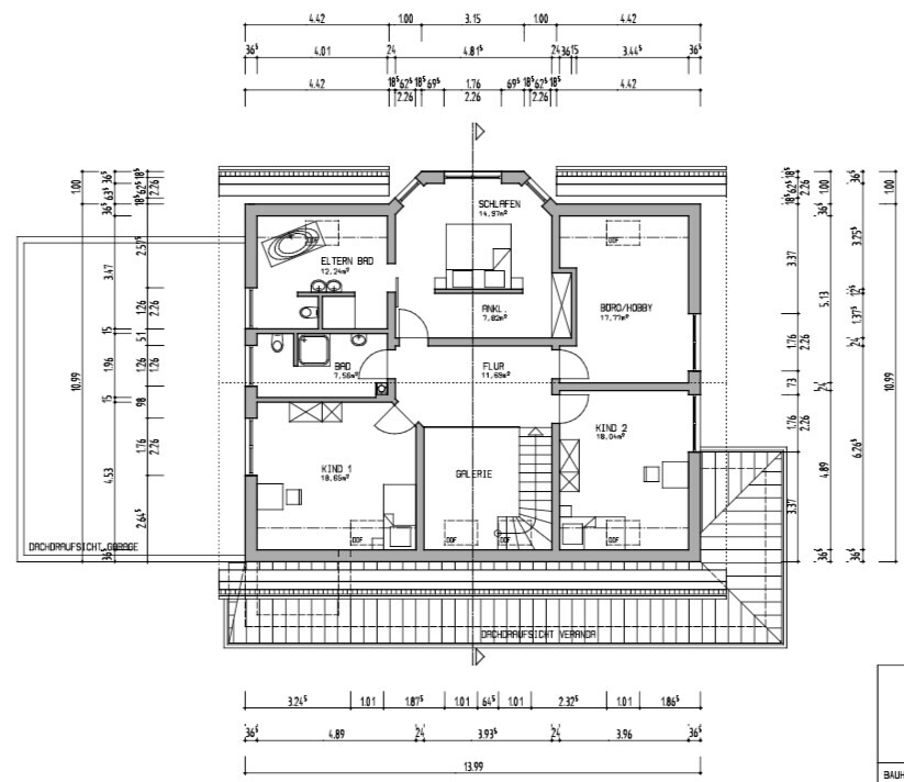
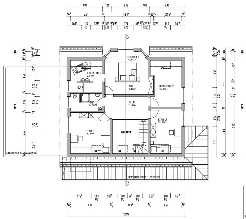
OG( Schlafzimmer Eltern,Ankleide, Kind 1, Kind2,Hobbyraum/Privatbüro,Badezimmer
Büro:
Büro unten nur für Frau, da selbstständig (keine Besucher) aber darf nur für die Arbeit genutzt werden, Hobbyraum oben als Famielienbüro
Schlafgäste pro Jahr:
2-3
offene oder geschlossene Architektur: offen
offene Küche, Kochinsel: ja
Anzahl Essplätze: 6-8
Kamin: ja
Musik/Stereowand: Wohnzimmer Heimkino mit Beamer LW Sourroundsystem
Balkon, Dachterrasse: auf Garage wenn
Garage, Carport: ja für 2 Autos plus Abstellraum und, Werkraum
weitere Wünsche/Besonderheiten/Tagesablauf, gern auch Begründungen, warum dieses oder das nicht sein soll
Zugang vom Hauswirtschaftsraum zu Garage und Flur und zur Küche wegen Lagerort,
Hausentwurf
Von wem stammt die Planung:
Vorzeichnung von uns, Entwurf von Architektin
Was gefällt besonders? Warum?
offener Wohnbereich, Treppe nicht im Wohnbereich, Schlafzimmer oben wegen Aussicht, helle Räume, Kinderzimmer nicht an Elternschlafzimmer, Garage an Hause, sodass man auch im Winter immer im trockenen ist, wir wohnen in einer Schneereichen Gegend auf 600m
Was gefällt nicht? Warum?
aktuell Hauswirtschaftsraum,Gästebadbereich ist nicht gut integriert, Garderobe zu klein (vllt, weglassen, Ausrichtung Terrasse, Frontseite wegen Verandadach zu nah an Hausdach (Überlegung Gaube in der Frontseite)
Preisschätzung lt Architekt/Planer: Haus groß 450000;Haus klein 360000 aber ohne Berücksichtigung der Eigenleistung welche sehr hoch ist
favorisierte Heiztechnik: Wärmepumpe Erdwärme und Fußbodenheizung ;Kontrollierte-Wohnraumlüftung mit Umluftwärmerückgewinnung
Wenn Ihr verzichten müsst, auf welche Details/Ausbauten
-könnt Ihr verzichten:
Kamin, Kinderbad oben wenn Famielienbad großzügig
-könnt Ihr nicht verzichten:
offener Wohnbereich, Wohnzimmer groß genug für Heimkino (ca 5x5m), Büro Frau, Ankleide Frau bzw. Ausreichend Kleiderschrank, Kinderzimmer nicht direkt an Elternschlafzimmer
Warum ist der Entwurf so geworden, wie er jetzt ist? ZB
Standardentwurf vom Planer? Eigenentwurf beim Architekten abgegeben und den Entwurf wie im Bild bekommen
Entsprechende/Welche Wünsche wurden vom Architekten umgesetzt?
offener Wohn Ess Kochbereich,Flurbereich, Veranda
Was ist die wichtigste/grundlegende Frage zum Grundriss in 130 Zeichen zusammengefasst?
Ist die Ausrichtung bzw. der Hausaufbau auf dem Grundstück gut integriert oder kann man es besser nutzen. Platz ist ja vorhanden.









Bebauungsplan/Einschränkungen
Größe des Grundstücks: 1700qm
Hang Grundstück fällt von Straße 1,2m zur Mitte hin ab über die ganze länge. Hinter dem Bach Richtung Feld Hang von ca 2,5m
Grundflächenzahl 0,4
Geschossflächenzahl 0,7
Baufenster, Baulinie und -grenze Baugrenze:
sind die Grundstücksgrenzen auf beiden Seiten des verrohrten Baches. Grenzbebauung erlaubt oder mind. 3m Abstand
Randbebauung: ja
Anzahl Stellplatz: 2 vor der Garage und 2 an der Grenze zum linken Nachbarn angrenzend an die Nachbargarage
Geschossigkeit: 2 Vollgeschosse erlaubt
Dachform: alles erlaubt
Stilrichtung alles erlaubt
Ausrichtung alles erlaubt, auch Schräg zur Straße
Maximale Höhen/Begrenzungen: nein
weitere Vorgaben
Anforderungen der Bauherren
Stilrichtung, Dachform, Gebäudetyp : Stilrichtung:
Schwedenhaus modern (Richtung New England, Vorbild: Eksjöhus Rosenhill, Fjorborg Stockholm
Raumaufteilung gefällt sehr gut bei dem Keitel-Haus Bad Vilbel
kein Keller, Geschosse 1 1/2 bis 2 Kniestock 1,4m
Anzahl der Personen : aktuell 2 , Alter 30/26 , zwei Kinder geplant
Raumbedarf im EG, OG:
EG (Wohnzimmer, Esszimmer, Küche, Hauswirtschaftsraum, Büro Frau, Gästebad;
OG( Schlafzimmer Eltern,Ankleide, Kind 1, Kind2,Hobbyraum/Privatbüro,Badezimmer
Büro:
Büro unten nur für Frau, da selbstständig (keine Besucher) aber darf nur für die Arbeit genutzt werden, Hobbyraum oben als Famielienbüro
Schlafgäste pro Jahr:
2-3
offene oder geschlossene Architektur: offen
offene Küche, Kochinsel: ja
Anzahl Essplätze: 6-8
Kamin: ja
Musik/Stereowand: Wohnzimmer Heimkino mit Beamer LW Sourroundsystem
Balkon, Dachterrasse: auf Garage wenn
Garage, Carport: ja für 2 Autos plus Abstellraum und, Werkraum
weitere Wünsche/Besonderheiten/Tagesablauf, gern auch Begründungen, warum dieses oder das nicht sein soll
Zugang vom Hauswirtschaftsraum zu Garage und Flur und zur Küche wegen Lagerort,
Hausentwurf
Von wem stammt die Planung:
Vorzeichnung von uns, Entwurf von Architektin
Was gefällt besonders? Warum?
offener Wohnbereich, Treppe nicht im Wohnbereich, Schlafzimmer oben wegen Aussicht, helle Räume, Kinderzimmer nicht an Elternschlafzimmer, Garage an Hause, sodass man auch im Winter immer im trockenen ist, wir wohnen in einer Schneereichen Gegend auf 600m
Was gefällt nicht? Warum?
aktuell Hauswirtschaftsraum,Gästebadbereich ist nicht gut integriert, Garderobe zu klein (vllt, weglassen, Ausrichtung Terrasse, Frontseite wegen Verandadach zu nah an Hausdach (Überlegung Gaube in der Frontseite)
Preisschätzung lt Architekt/Planer: Haus groß 450000;Haus klein 360000 aber ohne Berücksichtigung der Eigenleistung welche sehr hoch ist
favorisierte Heiztechnik: Wärmepumpe Erdwärme und Fußbodenheizung ;Kontrollierte-Wohnraumlüftung mit Umluftwärmerückgewinnung
Wenn Ihr verzichten müsst, auf welche Details/Ausbauten
-könnt Ihr verzichten:
Kamin, Kinderbad oben wenn Famielienbad großzügig
-könnt Ihr nicht verzichten:
offener Wohnbereich, Wohnzimmer groß genug für Heimkino (ca 5x5m), Büro Frau, Ankleide Frau bzw. Ausreichend Kleiderschrank, Kinderzimmer nicht direkt an Elternschlafzimmer
Warum ist der Entwurf so geworden, wie er jetzt ist? ZB
Standardentwurf vom Planer? Eigenentwurf beim Architekten abgegeben und den Entwurf wie im Bild bekommen
Entsprechende/Welche Wünsche wurden vom Architekten umgesetzt?
offener Wohn Ess Kochbereich,Flurbereich, Veranda
Was ist die wichtigste/grundlegende Frage zum Grundriss in 130 Zeichen zusammengefasst?
Ist die Ausrichtung bzw. der Hausaufbau auf dem Grundstück gut integriert oder kann man es besser nutzen. Platz ist ja vorhanden.
Ähnliche Themen