ᐅ Einfamilienhaus Grundriss mit Schwimmbad und Garage
Erstellt am: 30.06.15 11:10
M
maniac66930.06.15 11:10Nachdem ich hier schon einige Zeit mitlese dachte ich ich teile nun mal auch meinen Grundriss, er springt hier etwas aus dem Standard, da etwas größer aber bietet vielleicht ja Ideen für den einen oder anderen.
Das Haus ist schon mitten im Bau, siehe Foto.
Das ganze ging mit einem Architekten von statten der zum großen Teil meine Wünsche umgesetzt hat, also die Grundrisse sind so ziemlich auf meinem "Mist" gewachsen.
Schnick schnack den wir uns gegönnt haben:
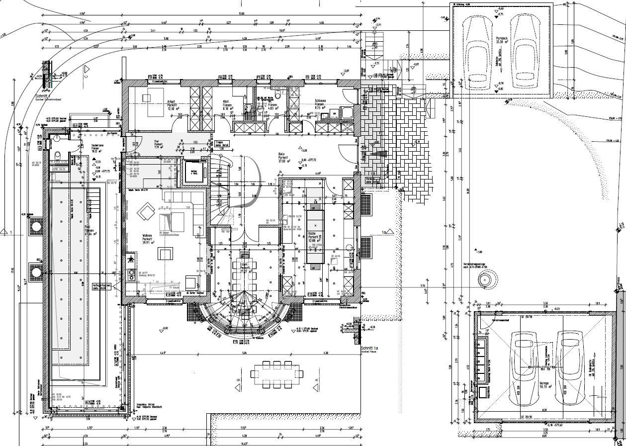
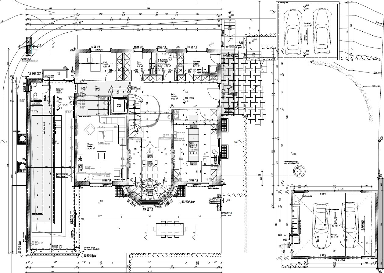
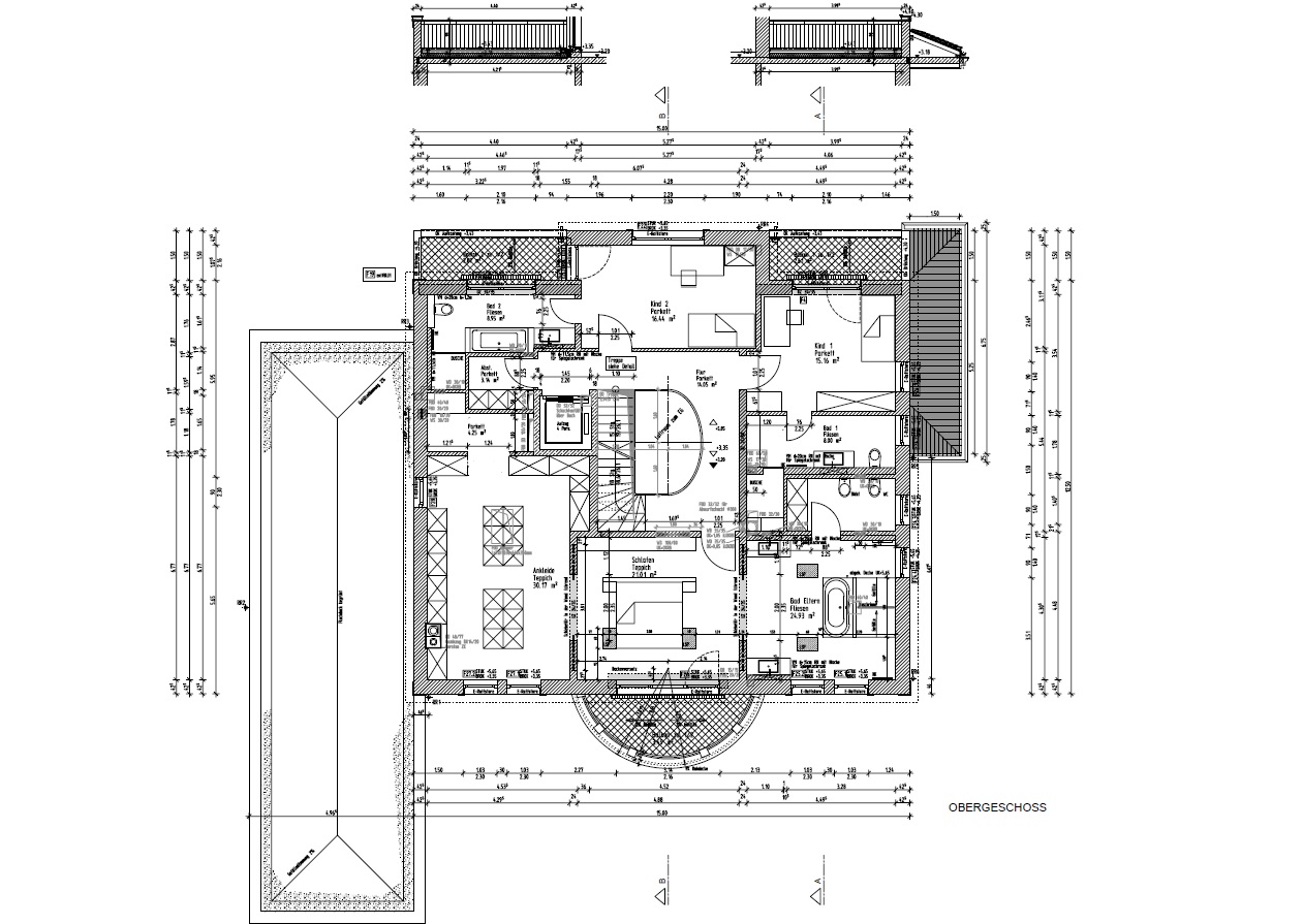
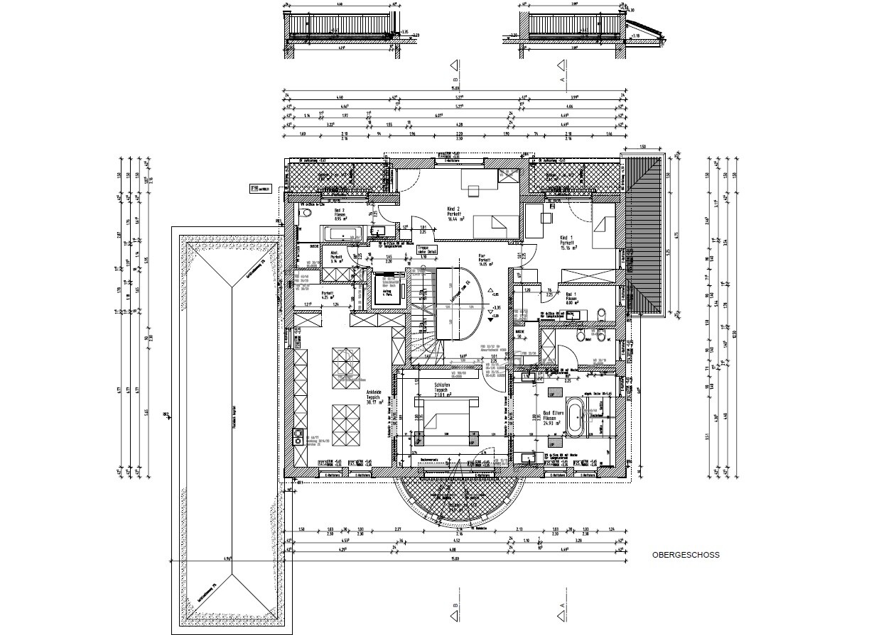
12 Meter langes Schwimmbad im EG mit Ausrichtung Garten (Süd West) - Fenster Front lässt sich auf einer gesamt Länge über eck von 12 Metern komplett aufschieben.
Wohnzimmer mit Heimkino und HausBar/Tresen inklusive Icemaker und kleinem Bier Kühlschrank (TV - 62 Zoll im Boden - also Keller - versenkbar, Leinwand und Beamer kommen aus der Decke)
Sound Anlage in Küche und Esszimmer über Sonos.
Eine Censys Anlage.
Auf Bus nach bisheriger Erfahrung verzichtet.
Warm und Kalt Wasser Anschluss im Garten inkl. Dusche, Bewässerungssystem für selbigen.
Indirekte Stuck Beleuchtung in den Haupträumen EG, Flur, Flur OG und Master Schlafzimmer.
Indirekte Beleuchtung Schwimmbad.
Ein Master Bad nach Vorbild vom Cheval Blanc Randheli.
Wäscheschacht mit Zugang von: Küche, Flur OG, Masterbad OG (im Waschtisch in der Schublade können die Klamotten direkt eingeworfen werden).
Ein großes Cabrio Dach Fenster im DG.
Ein sehr großzügiges Treppenhaus mit Flur.
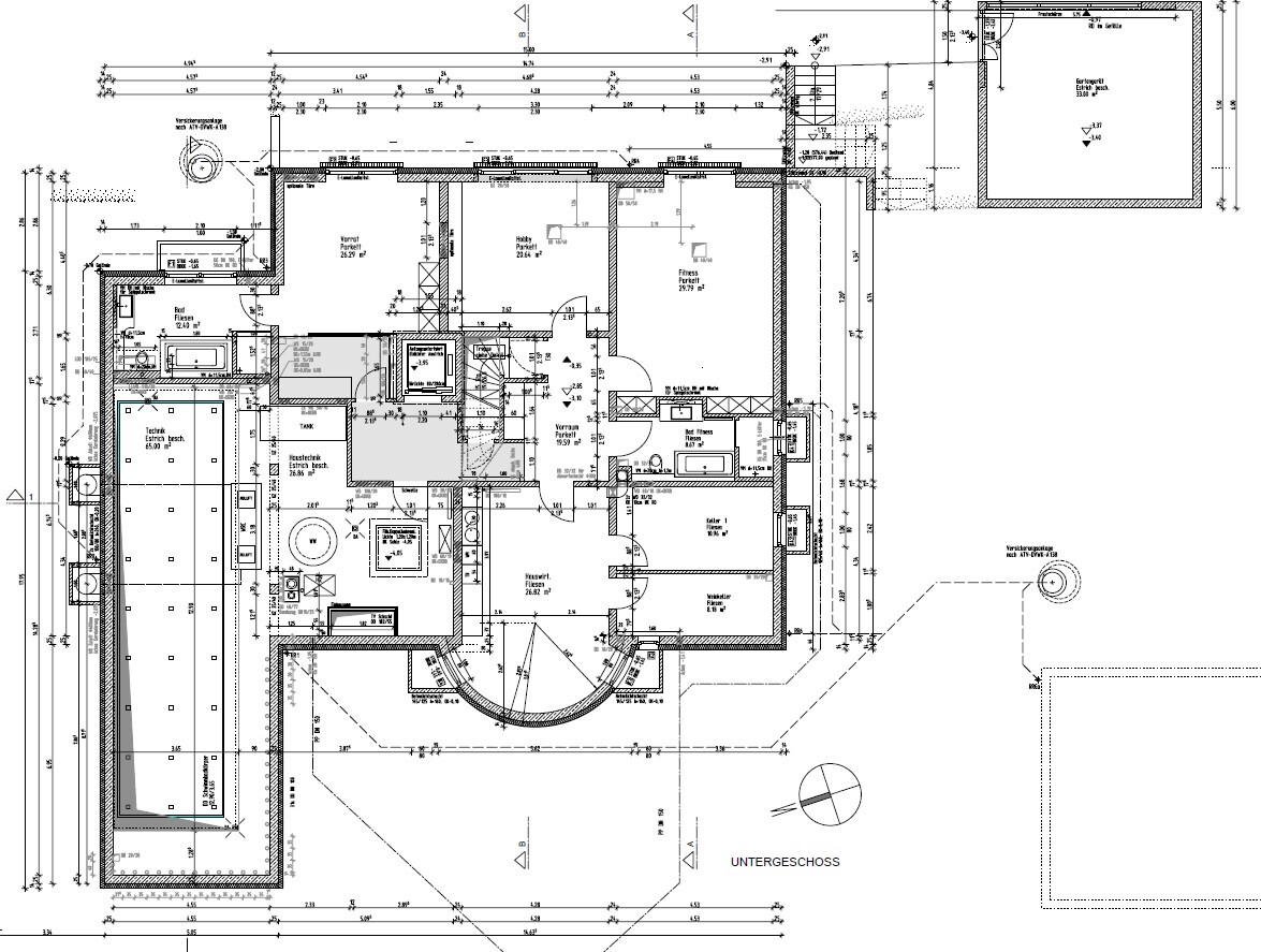
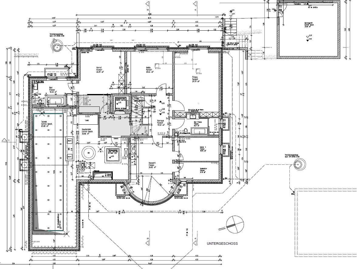
Eine Schleuse - (zweite Eingangsmöglichkeit ins Haus) - selbige verfügt über Schränke, Waschmaschine (Pferde zeug der Frau) und Dusche für die Hunde.
35qm Ankleide für die Frau inklusive "Abteil" für die Schuhe...
Lichte Deckenhöhe EG 3 Meter, OG 2,50. Sockelleisten mit Stuck Optik in 13 bzw. 10cm Höhe. Türen sind 2,20 bzw, 2,40 Hoch. Es werden Denkmalschutz Kassetten Türen verbaut.
Jede Etage hat eine Abstell/Hauswirtschaftskammer für alle Putz/Staubsauger etc Utensilien - von Staubsaugeranlagen halte ich nichts.
Klima im Master und Kinder Schlafzimmer sowie DG.
Keine Zentrale Lüftungsanlage (ich hasse zug und habe gerne die Fenster auf).
Das Haus ist in Massivbauweise erstellt und geheizt wird mit Gas (Fußboden Heizung im ganzen Haus).
Die Garage durften wir Baurechtlich nicht mit dem Haus verbinden. Daher ist Sie nun beidseitig befahrbar (kann also durchfahren) was das rangieren deutlich erleichtert.
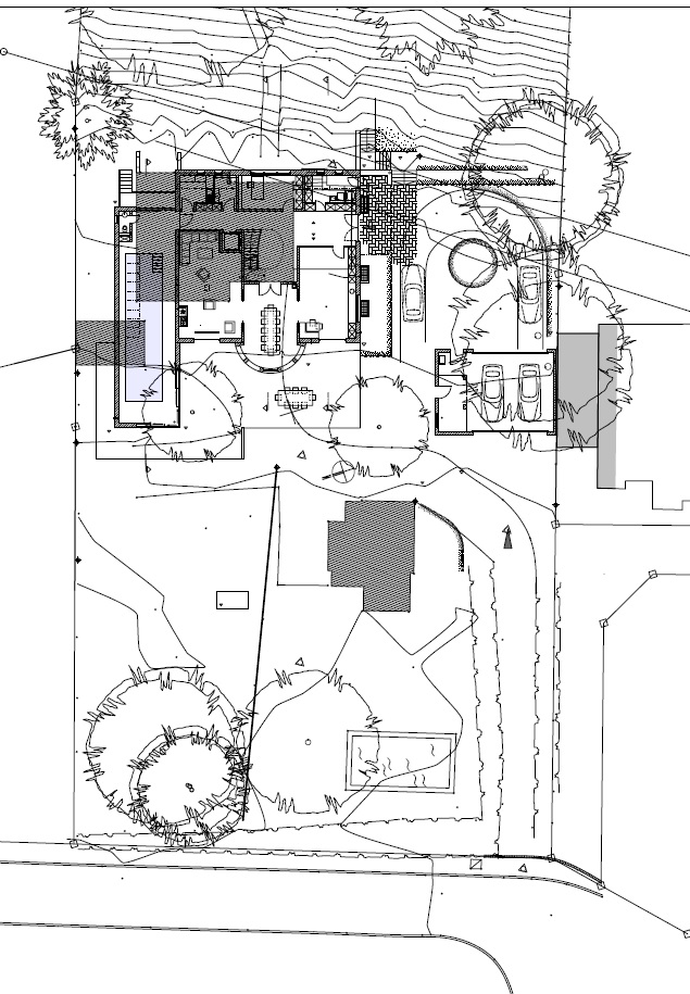
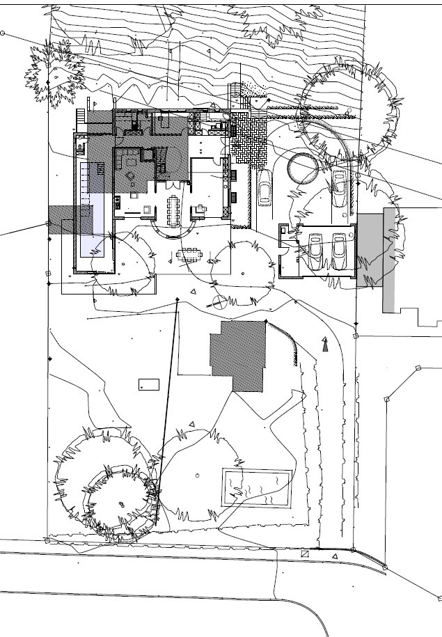
Das Grundstück hat eine Größe von 3800qm, wovon knapp 1000qm auf den Hang und eine darunter liegende kleine Fläche entfällt.
Da ich von der Morgen Sonne nichts habe haben wir das Haus in den Westen ausgerichtet.
Zwischen Zufahrt und Garten kommt eine entsprechend Hohe Hecke so das selbige nicht mehr sichtbar ist.






Das Haus ist schon mitten im Bau, siehe Foto.
Das ganze ging mit einem Architekten von statten der zum großen Teil meine Wünsche umgesetzt hat, also die Grundrisse sind so ziemlich auf meinem "Mist" gewachsen.
Schnick schnack den wir uns gegönnt haben:
12 Meter langes Schwimmbad im EG mit Ausrichtung Garten (Süd West) - Fenster Front lässt sich auf einer gesamt Länge über eck von 12 Metern komplett aufschieben.
Wohnzimmer mit Heimkino und HausBar/Tresen inklusive Icemaker und kleinem Bier Kühlschrank (TV - 62 Zoll im Boden - also Keller - versenkbar, Leinwand und Beamer kommen aus der Decke)
Sound Anlage in Küche und Esszimmer über Sonos.
Eine Censys Anlage.
Auf Bus nach bisheriger Erfahrung verzichtet.
Warm und Kalt Wasser Anschluss im Garten inkl. Dusche, Bewässerungssystem für selbigen.
Indirekte Stuck Beleuchtung in den Haupträumen EG, Flur, Flur OG und Master Schlafzimmer.
Indirekte Beleuchtung Schwimmbad.
Ein Master Bad nach Vorbild vom Cheval Blanc Randheli.
Wäscheschacht mit Zugang von: Küche, Flur OG, Masterbad OG (im Waschtisch in der Schublade können die Klamotten direkt eingeworfen werden).
Ein großes Cabrio Dach Fenster im DG.
Ein sehr großzügiges Treppenhaus mit Flur.
Eine Schleuse - (zweite Eingangsmöglichkeit ins Haus) - selbige verfügt über Schränke, Waschmaschine (Pferde zeug der Frau) und Dusche für die Hunde.
35qm Ankleide für die Frau inklusive "Abteil" für die Schuhe...
Lichte Deckenhöhe EG 3 Meter, OG 2,50. Sockelleisten mit Stuck Optik in 13 bzw. 10cm Höhe. Türen sind 2,20 bzw, 2,40 Hoch. Es werden Denkmalschutz Kassetten Türen verbaut.
Jede Etage hat eine Abstell/Hauswirtschaftskammer für alle Putz/Staubsauger etc Utensilien - von Staubsaugeranlagen halte ich nichts.
Klima im Master und Kinder Schlafzimmer sowie DG.
Keine Zentrale Lüftungsanlage (ich hasse zug und habe gerne die Fenster auf).
Das Haus ist in Massivbauweise erstellt und geheizt wird mit Gas (Fußboden Heizung im ganzen Haus).
Die Garage durften wir Baurechtlich nicht mit dem Haus verbinden. Daher ist Sie nun beidseitig befahrbar (kann also durchfahren) was das rangieren deutlich erleichtert.
Das Grundstück hat eine Größe von 3800qm, wovon knapp 1000qm auf den Hang und eine darunter liegende kleine Fläche entfällt.
Da ich von der Morgen Sonne nichts habe haben wir das Haus in den Westen ausgerichtet.
Zwischen Zufahrt und Garten kommt eine entsprechend Hohe Hecke so das selbige nicht mehr sichtbar ist.
B
Bautraum201530.06.15 11:23Wirklich Wahnsinn!!! Sehr herrschaftlich! Darf ich nach euren Berufen fragen?
M
maniac66930.06.15 11:32M
maniac66930.06.15 13:52Danke!
Um die 2,5.
Hohe Schlanke Bäume nicht, aber die Einfahrt bekommt rechts und links eine Hecke.
Bäume werden einzeln ein paar noch dazwischen/daneben verteilt.
Momentan überlegen wir es komplett zu pflastern statt Kies, noch nicht Final entschieden.
Um die 2,5.
Hohe Schlanke Bäume nicht, aber die Einfahrt bekommt rechts und links eine Hecke.
Bäume werden einzeln ein paar noch dazwischen/daneben verteilt.
Momentan überlegen wir es komplett zu pflastern statt Kies, noch nicht Final entschieden.
Ähnliche Themen