Einfamilienhaus Entwurf - ca. 160-170qm / Innovatives Satteldach

4,70 Stern(e) 10 Votes
Zuletzt aktualisiert 04.10.2025
Sie befinden sich auf der Seite 4 der Diskussion zum Thema: Einfamilienhaus Entwurf - ca. 160-170qm / Innovatives Satteldach
>> Zum 1. Beitrag <<

Entwurfe

  • Eher positiv

    Stimmen: 2 20,0%
  • Eher negativ

    Stimmen: 8 80,0%

  • Anzahl der Umfrageteilnehmer
    10
montessalet

montessalet

Berücksichtigt durch die drei Scheiben die sehr hohe Wärmeabgabe. Für Neubau eher ungeeignet. Da ist besser auf eine maximal zwei Sichtscheiben zu bauen. Und ordentlich Wärmespeicher einplanen.
Die Meinung teile ich nicht: Im aktuellen Haus haben wir auch auf drei Seiten Scheiben - und klar ist die Wärmeabgabe gut. Die Frage ist, was man mit dem Ofen will: Wir brauchen den vor allem in der Übergangszeit und an sehr kalten Wintertagen - ansonsten wird es zu heiss. Und da spielt es keine Rolle, ob 2 oder 3 Scheiben - die Hauptwärme kommt eh (bei uns) mit der Lüftung (Warmluft aufgrund des Ofens): Das macht deutlich mehr aus, als die Wärmeabgabe durch die Scheiben.

Als Raumteiler resp. -Abtrennung finde ich das nicht schlecht.
 
C

chand1986

In welcher Welt ist das ein Satteldach?

Muss der dreieckige Alibistummel da nur wegen der Vorschriften hin? Da wäre mir ein langweiliges Standarddach lieber, so sieht aus wie eigentlich nicht gewollt und ganz sicher nicht gekonnt. Sorry. Gibt es einen Alternativplan?
 
kaho674

kaho674

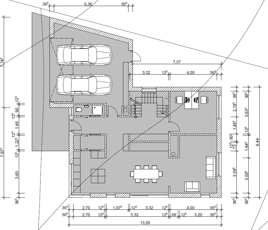
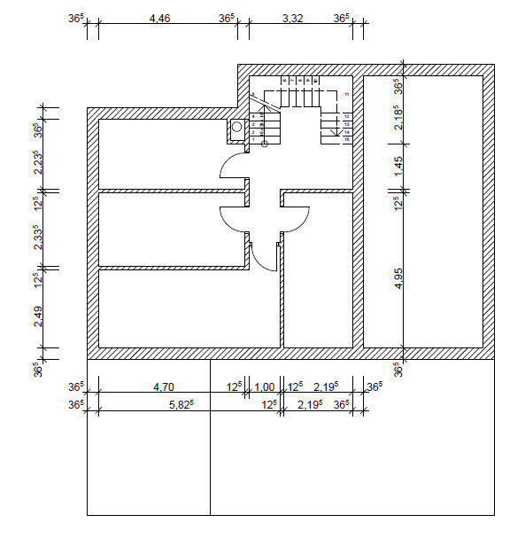
Neue genauere Pläne
Ich seh nur Verschlechterungen. Bad jetzt mit 2 Türen, obwohl das Schlafzimmer direkt daneben liegt. WC ist das erste, was man sieht, wenn man die Tür aufreißt - vom Flur aus.
Ankleide immer noch zu eng.
Flur oben ist größer als das Bad.
Dusche im EG ist zu eng und mit Schiebetür? Echt jetzt?
Wie kommt man denn in das Alibidach?
 
Zuletzt aktualisiert 04.10.2025
Im Forum Grundrissplanung / Grundstücksplanung gibt es 2509 Themen mit insgesamt 87148 Beiträgen


Ähnliche Themen zu Einfamilienhaus Entwurf - ca. 160-170qm / Innovatives Satteldach
Nr.ErgebnisBeiträge
1Treppe im Flur, Grundriss steht eigentlich schon :o( - Seite 320
2Hauseingang mit Flur oder ohne 15
3Welcher Bodenbelag im Eingang/Flur? Wer hat Erfahrungen? Bilder? 14
4Grundrissplanung Wohnzimmer und Flur zu schmal? - Seite 221
5Ausreichend Licht im Flur? Bitte um Meinung 12
6Grundrissplanung: Flur im EG breit genug? 57
7Lichtplanung mit LED Spots für Flur 13
8Fliesen oder Vinyl in Küche und Flur 19
9Anzahl Einbauspots im Flur DG 50
10Wie viele Lampen im 7m langen Flur? 13
11Kontrollierte-Wohnraumlüftung auch im Flur? Haben wir nicht - stickig 11
12Treppe "ragt" in Flur hinein: Problematisch? 12
13Probleme bei der Flur-Möblierung, wer hat Ideen? - Seite 443
14Fehlender Lüftungsanlagen-Deckenauslass im Flur dramatisch? 12
15Bewegungsmelder im Flur/Dielenbereich - Seite 427
16Planung Einbaustrahler Flur und Garderobe - Tipps 62
17Flur und Wohn-/Essbereich selben Bodenbelag? 50
18Lichtberatung: Leuchtenidee für hohen Flur gesucht 18
19Parkett von Flur in Zimmer durchlegen 17
20Einbaumöbel für Flur etc. vom Küchenstudio? 17

Oben