Hausbau - Ratgeber
Bauherrenhilfe
- Bauherrenhilfe vor Vertragsabschluss
-- Warum einen unabhängigen Baubetreuer?
-- Vertragsgrundlagen
-- Bausumme
-- Zahlungsplan zur Kostenkontrolle
-- Pflichten des Bauherren vor Vertragsabschluss
-- Unterlagen beim Hausbau vor Vertragsabschluss
- Bauherrenhilfe nach Vertragsabschluss
-- Bauantrag bei Behörden
-- Bau-Genehmigungsverfahren bei Baubehörden
-- Bauspezifische Versicherungen
-- Bauzeitenplan
-- Baubeginn - die Letzten Pflichten der Bauherrschaft
- Bauherrenhilfe während der Bauzeit
- Gewährleistungsansprüche
- Bauabnahme
Baufinanzierung
- Baufinanzierung - Allgemeine Fragen
- Kreditarten
- Kredit-Konditionen
- Bausparen
- Staatliche Förderungen
- Verkehrswert
- Haushaltsrechnung und Bonität
Hausbau Planung
- Haustypen
- Hausbau Vorbereitungsarbeiten
- Das Baugrundstück
- Baugrund beim Hausbau
- Baurecht
- Gebäudeschutz
- Erdarbeiten und Wasserhaltung
- Stützmauern
- Einfriedung
- Untergeschoss
- Kanalisation
- Tragende Elemente
- Nichttragende Innenwände
- Fundation / Fundament
- Deckenkonstruktionen
- Dächer
- Kaminanlagen
- Treppen Rampen Leitern
- Dachbeläge und Spengler
- Fenster
- Sonnen und Wetterschutz
- Aussenputze
- Einbauten, Küchen, Türen
- Bodenbeläge und Unterlagsböden
- Parkett
- Gips, Wand, Decke
Haustechnik und Energie
- Heiztechnik
- Lüftung und Klimatechnik
- Sanitärtechnik
- Elektrotechnik
- Erneuerbare Energie
Whirlpools / Jacuzzi
Hausbau Magazin
- Baufinanzierung trotz Krise?
- Das Blockhaus
- Moderne Dämmstoffe im Vergleich
- Erker Vor- und Nachteile
- Glasflächen beim Hausbau
- Günstig ein Haus Bauen
- Mediterraner Hausbaustil
- Mehrgenerationenhaus
- Moderne Architektur
- Gartengestaltung leicht gemacht
- Traditioneller Ziegelbau
- Villa als höchster Traum
- Im Eigenheim Ruhestand geniessen
- Altbau sanieren
- Kauf einer Holzgarage
- Immobilienmakler
- Arbeitshandschuhe für den Winter
- Zuhause verschönern
- Outdoor-Plissees
- Schlafzimmer planen
- Terrassenüberdachung
- Wohngebäudeversicherung
- Zaunarten und Eigenschaften
- Hauseingang gestalten
- Der perfekte Grundriss
- Sparsamer heizen im Altbau
- Einfamilienhaus smart finanzieren
- Planung einer PV-Anlage
- Neues Haus
- Immobilienfinanzierung
- Installation einer Photovoltaikanlage
- Asbest erkennen und entfernen
- Gartenpflege im Frühling – worauf achten
- Sauna im Fokus - Wellness zuhause
- Erfolgreich vermieten
- Die perfekte Winterbekleidung
- Das Niedrigenergiehaus
- Der April und seine Stürme
- Architektonische Vielfalt
- Ökologisch und nachhaltig bauen
- Das perfekte Schlafzimmer
- Nachhaltige Energieversorgung
- Zukunftsorientiert bauen
- Nachhaltigkeit beim Hausbau
- Tiny Houses
- Wärmepumpen als nachhaltige Heizvariante
- Maßgeschneiderten Kleiderschrank
- Der richtige Baukredit
- Ratgeber für erfolgreichen Hausbau
- Haus als Altersvorsorge
Do-it-yourself Anleitungen
- Verlegeanleitung für Bodenbeläge und Parkett
- Bodenbeläge und Parkett reinigen und pflegen
- Malerarbeiten am Haus
- Garten Tipps
- Umzug und Reinigung

ᐅ Einfamilienhaus 220m2 - Welcher Grundriss? Feedback / Vorschläge?

Erstellt am: 29.04.18 16:36
H
HomeFinder
H
HomeFinder
29.04.18 16:36
Sehr geehrte Community,

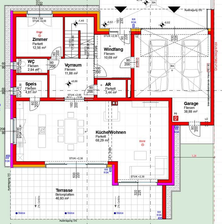
nach längeren Überlegungen habe ich nun endlich einen für mich recht guten Grundriss zusammengebastelt. Eingang ist nördlich. Straßenseite verläuft nur nördlich. Osten, Süden und Westen sind andere Einfamilienhäuser. Technik befindet sich im Keller. OG sind Kinderzimmer, Bad, WC, Hauswirtschaftsraum, Schlafzimmer.

Meine Frage:
Zu welchen EG Grundriss tendiert ihr? Mich stört der "kleine" Windfang, da dort wenig Platz für eine ausreichend große Garderobe ist. Hinzu kommt der recht schmale Durchgang in den Vorraum.

Eure Meinung ist gefragt:

Variation A:

2D-Hausgrundriss mit Küche, Wohnzimmer, Terrasse und Garage, detaillierte Raumaufteilung


Variation B:

Grundriss eines Hauses mit Büro, Küche/Wohnen, Terrasse und Garage


Danke im voraus an alle Beiträge,
HomeFinder
11ant30.04.18 00:45
HomeFinder schrieb:
Zu welchen EG Grundriss tendiert ihr?
Ich finde, das läßt sich erst nach Kenntnis auch des jeweils dazugehörigen OG qualifiziert beantworten.
https://www.instagram.com/11antgmxde/
https://www.linkedin.com/company/bauen-jetzt/
montessalet30.04.18 06:40
A finde ich deutlich besser. Die Speis hat eine optimale Lage zur Küche - was bei B eindeutig nicht gegeben ist.
Es gibt Räume und Flächen, bei denen es egal ist, wo die sind. Das sind z.B. Gäste-WC, Garderobe (wenn in Eingangsbereich), Treppe (falls es im OG passt).
kbt0930.04.18 07:07
Sehe ich wie 11ant ... keine qualifizierte Antwort ohne OG 😉, denn die Lage der Treppe ist da durchaus ausschlaggebend.

Ich frage mich, warum neben einer Speis im EG noch ein Abstellraum sein muss, wenn es auch noch einen Keller gibt.

Garderobe in Eingangsnähe ist ein wichtiger Faktor, idealerweise so, dass man wirklich die saisonale Kleidung / Schuhe einer 4-5-köpfigen Familie unterbringen kann.
M
Müllerin
30.04.18 08:06
Variante A mit folgenden Änderungen:
- Haustür nach links schieben und Durchgang von Garage zu Wohnhaus streichen, dann ist Platz für genug Garderobe
- Klo in Abstellraum rüber
- Wand zw jetzt freiem Klo zur Speis packen, aber Tür lassen
W
WilhelmRo
30.04.18 08:47
Weiß nicht ob das Raster 1m entspricht, aber ihr schaut TV aus 7m Entfernung?
garderobegrundrisskellerdurchgangtreppeabstellraumklo