M
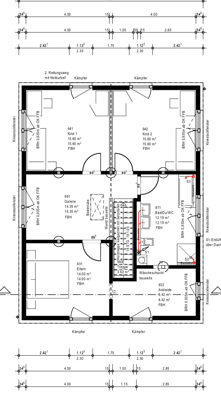
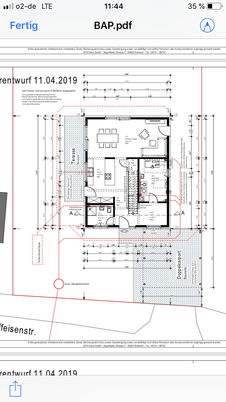
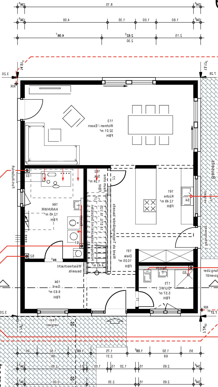
ManClaLen12.04.19 11:44Hallo wir haben einen Grundriss gefunden und umgesetzt nach unseren Wünschen.
Was meint Ihr?
Achtung: das kleine Fenster in der Ankleide entfällt und wird nicht verbaut!
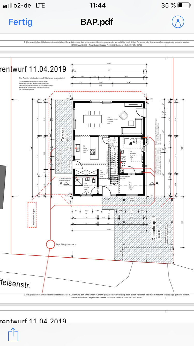
Haken am Grundstück einfahrt von Süden.
Nach hinten müssen 15 m eingehalten werden.
Größe des Grundstücks: 627 qm
Hang: Nein
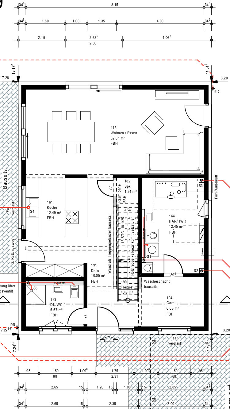
Anzahl Stellplatz: 2 müssen überdacht sein / Garage nicht erforderlich, neben Hauswirtschaftsraum ist Geräteraum geplant
Geschossigkeit: 2 Vollgeschosse Kniestock 2,15 m ab Oberkante Fertigfußboden
Dachform: Satteldach 28 Grad
Stilrichtung: modern
Anzahl der Personen: 4 Personen
Büro: Familiennutzung oder Homeoffice? In Galerie geplant
Hausentwurf
Von wem stammt die Planung:
-Planer eines Bauunternehmen
-Do-it-Yourself
Was gefällt besonders? Warum?
Wärmepumpe
Raffstore im gesamten Haus
Wenn Ihr verzichten müsst, auf welche Details/Ausbauten
-könnt Ihr verzichten:
-könnt Ihr nicht verzichten: Durchgang von Ankleide ins Bad - gerade Treppe
Warum ist der Entwurf so geworden, wie er jetzt ist?
Da die Einfahrt von Süden ist, war es eh nicht ganz optimal mit der Ausrichtung.
Wir wollten kein Wohnraum zur Straße, daher eher West Ausrichtung
Für das Bad im Og benötigen wir noch Ideen.
Was meint Ihr?





Was meint Ihr?
Achtung: das kleine Fenster in der Ankleide entfällt und wird nicht verbaut!
Haken am Grundstück einfahrt von Süden.
Nach hinten müssen 15 m eingehalten werden.
Größe des Grundstücks: 627 qm
Hang: Nein
Anzahl Stellplatz: 2 müssen überdacht sein / Garage nicht erforderlich, neben Hauswirtschaftsraum ist Geräteraum geplant
Geschossigkeit: 2 Vollgeschosse Kniestock 2,15 m ab Oberkante Fertigfußboden
Dachform: Satteldach 28 Grad
Stilrichtung: modern
Anzahl der Personen: 4 Personen
Büro: Familiennutzung oder Homeoffice? In Galerie geplant
Hausentwurf
Von wem stammt die Planung:
-Planer eines Bauunternehmen
-Do-it-Yourself
Was gefällt besonders? Warum?
Wärmepumpe
Raffstore im gesamten Haus
Wenn Ihr verzichten müsst, auf welche Details/Ausbauten
-könnt Ihr verzichten:
-könnt Ihr nicht verzichten: Durchgang von Ankleide ins Bad - gerade Treppe
Warum ist der Entwurf so geworden, wie er jetzt ist?
Da die Einfahrt von Süden ist, war es eh nicht ganz optimal mit der Ausrichtung.
Wir wollten kein Wohnraum zur Straße, daher eher West Ausrichtung
Für das Bad im Og benötigen wir noch Ideen.
Was meint Ihr?
ja, kann man was mit anfangen.
Zuerst mal würde ich es spiegeln und das Haus in den Osten schieben, damit man die Westsonne im Wohnraum und im Garten hat. Das ist aber absolute Geschmackssache - manche wollen lieber die Sonne zum Frühstück in der Küche.
Die Treppe scheint mir zu lang. Hat man ja selten, dass jemand zu viel Platz einplant. Aber 18 Steigungen? Echt jetzt? Wie hoch sollen denn die Räume werden? Wenn die an der Haustür kürzer wird, täte dem Eingang sowieso gut. Hab mal 2 Stufen weggenommen.
Die Tiefe des Wohnzimmers würde ich noch etwas vergrößern (Pfeile).

Das Schlafzimmer würde ich noch etwas verbreitern. Die Galerie ist mit 30cm weniger immer noch schön aber im Schlafzimmer habt Ihr dann Platz für ein schönes breites Bett und Luft zum Atmen.
Zuerst mal würde ich es spiegeln und das Haus in den Osten schieben, damit man die Westsonne im Wohnraum und im Garten hat. Das ist aber absolute Geschmackssache - manche wollen lieber die Sonne zum Frühstück in der Küche.
Die Treppe scheint mir zu lang. Hat man ja selten, dass jemand zu viel Platz einplant. Aber 18 Steigungen? Echt jetzt? Wie hoch sollen denn die Räume werden? Wenn die an der Haustür kürzer wird, täte dem Eingang sowieso gut. Hab mal 2 Stufen weggenommen.
Die Tiefe des Wohnzimmers würde ich noch etwas vergrößern (Pfeile).
Das Schlafzimmer würde ich noch etwas verbreitern. Die Galerie ist mit 30cm weniger immer noch schön aber im Schlafzimmer habt Ihr dann Platz für ein schönes breites Bett und Luft zum Atmen.
Tür und Fensterpositionen in der Garderobe und Ankleide machen diese Räume fast kaum möblierbar - zumindest nicht für die genannte bzw geplante Nutzung.
Man mag sagen, dass der Ankleideraum und das Gäste-WC die schönste Lage bekommen haben. Schöner wäre es, wenn die Kinderzimmer dort im Süden im OG lägen.
Man mag sagen, dass der Ankleideraum und das Gäste-WC die schönste Lage bekommen haben. Schöner wäre es, wenn die Kinderzimmer dort im Süden im OG lägen.
Insgesamt nicht schlecht, ein paar der Painpoints wurden schon genannt.
Mir würde insgesamt Stauraum fehlen für einen Vier-Personen-Haushalt.
Die Galerie ist schön und Luxus - die Frage ist, ob ihr euch diesen Luxus leisten könnt. Ich würde mir im OG zumindest eine kleine Abstellkammer gönnen und die der Galerie abknapsen. So eine Galerie verliert deutlich an Wirkung, wenn sie permanent zugemüllt ist.
Und auch ansonsten frage ich mich, wo ihr den Krempel für 4 Personen unterbringen wollt. Diverse Fahrgeräte der Kinder (und da sammelt sich einiges), ggf. Equipment für Hobbys, Gartengerät etc.
Kriegt ihr wenigstens noch ein Gartenhaus?
Galerie ist riesig, nachdem sie keinen Luftraum bietet, würde ich mir schon überlegen, ob das als Zimmer nicht mehr Sinn macht. Als HO nutzen? Wenn die Kinder da immer durch rennen in ihre Zimmer? Halte ich für einen sehr gewagten Ansatz.
Und für mich persönlich, macht so eine Galerie auch dann irgendwie als solche nur Sinn, wenn sie offen mit dem EG verbunden ist. Das hier würde ich nicht unbedingt als "Galerie" bezeichnen, sondern eher als sehr großen Flur im OG - und schon ist die schicke Attitüde dahin und dann sollte man sich wirklich überlegen, ob ein weiteres Zimmer nicht mehr Sinn macht. Aber, wie gesagt, das ist meine persönliche Vorstellung von Galerie und die, daß man nicht soviel qms für Verkehrsraum (=Flur) ausgeben sollte.
Und nochwas ist mir aufgefallen: hat der Wandstummel an der Kücheninsel einen Sinn? Ansonsten würde ich die Insel einfach so frei in den Raum stellen und mir diesen Stummel sparen.
Mir würde insgesamt Stauraum fehlen für einen Vier-Personen-Haushalt.
Die Galerie ist schön und Luxus - die Frage ist, ob ihr euch diesen Luxus leisten könnt. Ich würde mir im OG zumindest eine kleine Abstellkammer gönnen und die der Galerie abknapsen. So eine Galerie verliert deutlich an Wirkung, wenn sie permanent zugemüllt ist.
Und auch ansonsten frage ich mich, wo ihr den Krempel für 4 Personen unterbringen wollt. Diverse Fahrgeräte der Kinder (und da sammelt sich einiges), ggf. Equipment für Hobbys, Gartengerät etc.
Kriegt ihr wenigstens noch ein Gartenhaus?
Galerie ist riesig, nachdem sie keinen Luftraum bietet, würde ich mir schon überlegen, ob das als Zimmer nicht mehr Sinn macht. Als HO nutzen? Wenn die Kinder da immer durch rennen in ihre Zimmer? Halte ich für einen sehr gewagten Ansatz.
Und für mich persönlich, macht so eine Galerie auch dann irgendwie als solche nur Sinn, wenn sie offen mit dem EG verbunden ist. Das hier würde ich nicht unbedingt als "Galerie" bezeichnen, sondern eher als sehr großen Flur im OG - und schon ist die schicke Attitüde dahin und dann sollte man sich wirklich überlegen, ob ein weiteres Zimmer nicht mehr Sinn macht. Aber, wie gesagt, das ist meine persönliche Vorstellung von Galerie und die, daß man nicht soviel qms für Verkehrsraum (=Flur) ausgeben sollte.
Und nochwas ist mir aufgefallen: hat der Wandstummel an der Kücheninsel einen Sinn? Ansonsten würde ich die Insel einfach so frei in den Raum stellen und mir diesen Stummel sparen.
M
ManClaLen12.04.19 14:22Vielen Dank für Euer schnelle Feedback.
Garderobe ist unter dem Fenster eine Sitzbank geplant.
Eine Wand würde uns hier reichen zum Stellen.
t
Das mit dem Schlafzimmer habe ich gleich weiter gegeben.
Im Plan ist es jetzt nur 10 cm Breiter als bei uns aktuell. Denke die 30 cm sind hier gut zusätzlich. Danke!
In der Galerie ist nur eine Kommode / Aktenschrank mit Schreibtisch geplant.
Durch die Verschiebung der Wand vom Schlafzimmer ist das Fenster dann 30cm von der Wand entfernt, aber nicht schlimm da hier der Schreibtisch hin soll und da das Licht benötigt wird.
Auf der Gegenüber liegenden Seite sind dann 55 cm über.
Als Abstellraum haben wir noch den Dachboden.
Wenn wir die Wand zur Galerie schließen für ein zusätzliches Zimmer, haben wir kein Licht in der Treppe...
Die Treppe ist so lang im Plan, da 2,75 m hohe Decken unten. Oben 2,67 cm.
Der Treppenbauer macht Sie noch eine Stufe kürzer, dann haben wir im Eingang 1,45 m Durchgang zur Garderobe sollte ausreichend sein.
Die kleine Wand an der Küche benötigen wir wegen der Statik.
Und ist eine kleine Abtrennung zum Wohnraum. fanden wir nicht schlecht.
Hinter dem Carport auf der Grundstücksgrenze ist ein Geräte Raum mit 2 Schiebetüren geplant.
ca. 16 qm. Fahrräder usw.
Garderobe ist unter dem Fenster eine Sitzbank geplant.
Eine Wand würde uns hier reichen zum Stellen.
t
Das mit dem Schlafzimmer habe ich gleich weiter gegeben.
Im Plan ist es jetzt nur 10 cm Breiter als bei uns aktuell. Denke die 30 cm sind hier gut zusätzlich. Danke!
In der Galerie ist nur eine Kommode / Aktenschrank mit Schreibtisch geplant.
Durch die Verschiebung der Wand vom Schlafzimmer ist das Fenster dann 30cm von der Wand entfernt, aber nicht schlimm da hier der Schreibtisch hin soll und da das Licht benötigt wird.
Auf der Gegenüber liegenden Seite sind dann 55 cm über.
Als Abstellraum haben wir noch den Dachboden.
Wenn wir die Wand zur Galerie schließen für ein zusätzliches Zimmer, haben wir kein Licht in der Treppe...
Die Treppe ist so lang im Plan, da 2,75 m hohe Decken unten. Oben 2,67 cm.
Der Treppenbauer macht Sie noch eine Stufe kürzer, dann haben wir im Eingang 1,45 m Durchgang zur Garderobe sollte ausreichend sein.
Die kleine Wand an der Küche benötigen wir wegen der Statik.
Und ist eine kleine Abtrennung zum Wohnraum. fanden wir nicht schlecht.
Hinter dem Carport auf der Grundstücksgrenze ist ein Geräte Raum mit 2 Schiebetüren geplant.
ca. 16 qm. Fahrräder usw.
ManClaLen schrieb:
2,75 m hohe Decken untenWarum?Ähnliche Themen