Hallo zusammen,
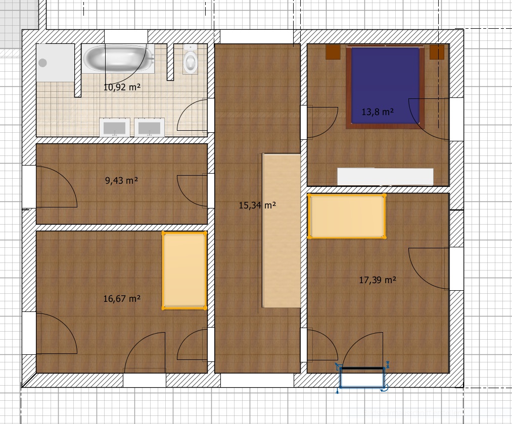
ich war die letzten Wochen "kreativ" und habe versucht, einen Grundriss aufs Papier zu bekommen. Aktuell ist es nicht wirklich eine Kopie eines fertig geplanten Hauses, sonderen eher Freestyle nach Gefühl heraus geplant. Und das macht mir etwas Angst, weil ich nicht ganz sicher bin, ob das so in der Art passen könnte. Bevor ich mit den ersten GUs in Kontakt treten, würde ich gerne schon mal einen halbwegs passende Grundriss-Basis haben.
Ich habe ziemlich viele Versionen mit allerlei Treppenformen und Hausausrichtungen durchgezeichnet, aktuell ist der angehängte Grundriss mein Favorit mit gerader Treppe und Ost-West-Ausrichtung. Ich weiß, dass der Raum sicher nicht mit maximaler Effektivität genutzt wird, mir ist vor allem ein großzügiges Raumgefühl wichtig. Aber bin da auch nicht ganz sicher, ob ni cht teilweise einfacht zu großzügig Raum verschenkt wird. Naja, ich bin auf eure Meinung gespannt.
Danke!
Bebauungsplan/Einschränkungen
Größe des Grundstücks 830 qm
Hang Nein
Grundflächenzahl 0,35
Geschossflächenzahl 0,60
Baufenster, Baulinie und -grenze
Randbebauung Nein
Anzahl Stellplatz 2
Geschossigkeit I+D oder II
Dachform alles wesentliche erlaubt
Stilrichtung -
Ausrichtung nicht vorgeschrieben
Maximale Höhen/Begrenzungen 10m
weitere Vorgaben Garage nur in den Baugrenzen erlaubt
Anforderungen der Bauherren
Stilrichtung, Dachform, Gebäudetyp Satteldach, Zwei Vollgeschosse
Keller, Geschosse kein Keller, zwei Vollgeschosse, Dachgeschoss als Lagerfläche
Anzahl der Personen, Alter 2 Erwachsene, 2 Kleinkinder
Raumbedarf im EG, OG ca. 80qm
Büro: Familiennutzung oder Homeoffice? Familiennutzung
Schlafgäste pro Jahr Wenige
offene oder geschlossene Architektur offen
konservativ oder moderne Bauweise modern
offene Küche, Kochinsel
Anzahl Essplätze 8
Kamin nein
Musik/Stereowand nein
Balkon, Dachterrasse nein
Garage, Carport Garage mit einem Stellplatz plus WerkstattNutzgarten, Treibhaus nein
weitere Wünsche/Besonderheiten/Tagesablauf, gern auch Begründungen, warum dieses oder das nicht sein soll
Hausentwurf
Von wem stammt die Planung: Do-it-Yourself
Was gefällt besonders? Warum? Treppe als Raumtrenner, abgetrenntes Wohnzimmer, Platz für Garderobe, Großzügiger und heller Flur oben
Was gefällt nicht? Warum? Eingangsbereich, Hauswirtschaftsraum mit Eck, Platz für Garderobe nicht ideal, Nicht wirklich effektive Platznutzung
Preisschätzung lt Architekt/Planer:
Persönliches Preislimit fürs Haus, inkl Ausstattung: 450.000
favorisierte Heiztechnik: Gas oder Grundwasser Wärmepumpe
Was ist die wichtigste/grundlegende Frage zum Grundriss in 130 Zeichen zusammengefasst?
Mich würde die generelle Meinung zum Grundriss interessieren, weil dieser eben nicht von einem Architekten stammt, sondern von mir als Laie. Das Ergebnis soll dann als Input für einen GU als Diskussionsgrundlage und Basis dienen. Davor würde ich gerne euere Meinung hören.

ich war die letzten Wochen "kreativ" und habe versucht, einen Grundriss aufs Papier zu bekommen. Aktuell ist es nicht wirklich eine Kopie eines fertig geplanten Hauses, sonderen eher Freestyle nach Gefühl heraus geplant. Und das macht mir etwas Angst, weil ich nicht ganz sicher bin, ob das so in der Art passen könnte. Bevor ich mit den ersten GUs in Kontakt treten, würde ich gerne schon mal einen halbwegs passende Grundriss-Basis haben.
Ich habe ziemlich viele Versionen mit allerlei Treppenformen und Hausausrichtungen durchgezeichnet, aktuell ist der angehängte Grundriss mein Favorit mit gerader Treppe und Ost-West-Ausrichtung. Ich weiß, dass der Raum sicher nicht mit maximaler Effektivität genutzt wird, mir ist vor allem ein großzügiges Raumgefühl wichtig. Aber bin da auch nicht ganz sicher, ob ni cht teilweise einfacht zu großzügig Raum verschenkt wird. Naja, ich bin auf eure Meinung gespannt.
Danke!
Bebauungsplan/Einschränkungen
Größe des Grundstücks 830 qm
Hang Nein
Grundflächenzahl 0,35
Geschossflächenzahl 0,60
Baufenster, Baulinie und -grenze
Randbebauung Nein
Anzahl Stellplatz 2
Geschossigkeit I+D oder II
Dachform alles wesentliche erlaubt
Stilrichtung -
Ausrichtung nicht vorgeschrieben
Maximale Höhen/Begrenzungen 10m
weitere Vorgaben Garage nur in den Baugrenzen erlaubt
Anforderungen der Bauherren
Stilrichtung, Dachform, Gebäudetyp Satteldach, Zwei Vollgeschosse
Keller, Geschosse kein Keller, zwei Vollgeschosse, Dachgeschoss als Lagerfläche
Anzahl der Personen, Alter 2 Erwachsene, 2 Kleinkinder
Raumbedarf im EG, OG ca. 80qm
Büro: Familiennutzung oder Homeoffice? Familiennutzung
Schlafgäste pro Jahr Wenige
offene oder geschlossene Architektur offen
konservativ oder moderne Bauweise modern
offene Küche, Kochinsel
Anzahl Essplätze 8
Kamin nein
Musik/Stereowand nein
Balkon, Dachterrasse nein
Garage, Carport Garage mit einem Stellplatz plus WerkstattNutzgarten, Treibhaus nein
weitere Wünsche/Besonderheiten/Tagesablauf, gern auch Begründungen, warum dieses oder das nicht sein soll
Hausentwurf
Von wem stammt die Planung: Do-it-Yourself
Was gefällt besonders? Warum? Treppe als Raumtrenner, abgetrenntes Wohnzimmer, Platz für Garderobe, Großzügiger und heller Flur oben
Was gefällt nicht? Warum? Eingangsbereich, Hauswirtschaftsraum mit Eck, Platz für Garderobe nicht ideal, Nicht wirklich effektive Platznutzung
Preisschätzung lt Architekt/Planer:
Persönliches Preislimit fürs Haus, inkl Ausstattung: 450.000
favorisierte Heiztechnik: Gas oder Grundwasser Wärmepumpe
Was ist die wichtigste/grundlegende Frage zum Grundriss in 130 Zeichen zusammengefasst?
Mich würde die generelle Meinung zum Grundriss interessieren, weil dieser eben nicht von einem Architekten stammt, sondern von mir als Laie. Das Ergebnis soll dann als Input für einen GU als Diskussionsgrundlage und Basis dienen. Davor würde ich gerne euere Meinung hören.
Montaron schrieb:
Geschossigkeit I+D oder IIGilt das tatsächlich alternativ im selben Baufeld ? (möglich mag es sein, aber dann könnte man eigentlich da gleich nur "II" schreiben)Montaron schrieb:
Das Ergebnis soll dann als Input für einen GU als Diskussionsgrundlage und Basis dienen.Ein GU baut Dir meist schamlos alles, was Du bezahlen kannst und was genehmigungsfähig ist.Es ist ein typischer Laiengrundriss: eine einfache Grundform in teilweise "Tetris"-Aufteilung (Speisekammer, blau vermute ich der HAR).
Lies ´mal ein bißchen quer durch´s Forum - über Planungssoftware für Laien habe ich mich dieser Tage schon ausführlich ausgelassen, ebenso in den letzten Wochen über einläufige gerade Treppen.
Wirklich schlimmes habe ich nicht entdeckt, aber man erkennt ja auch leider nicht viel. Planunterhalb des Bades soll wohl eine Ankleide sein ? - schreib´ mal ein bißchen mehr hinein, z.B. einige Durchgangsmaße.
Montaron schrieb:
ich war die letzten Wochen "kreativ" und habe versucht, einen Grundriss aufs Papier zu bekommen.Gibt es Zwischenstadien des Schöpfungsprozesses zu sehen, oder Ansichten ?https://www.instagram.com/11antgmxde/
https://www.linkedin.com/company/bauen-jetzt/
Der Elefant übertreibt ein wenig, würd ich sagen.
Ich finde den Entwurf für einen ersten Entwurf schon sehr gut. Problem ist tatsächlich, dass der GU Dir das gnadenlos baut, ohne selbst den Grips zu bemühen.
Hast Du Dir die Sache mal im 3D-Simulator angesehen? Knackpunkt Wohnzimmer-Eintritt. Das funktioniert zwar, aber ich finde das einfach nicht schön. Es wirkt ungemütlich und ungelenk. Man betritt den Raum an der Schokoseite. Ich kann das schwer beschreiben, man spürt es, wenn man es sieht, dass kein schönes Raumgefühl entsteht, obwohl die Räume eine ansprechende Größe und Form haben.
Gleiches Problem mit dem Treppenantritt. Dieser liegt knapp hinter der offenen Esszimmertür, welcher als Durchgang geplant ist. Da schmiegt sich nichts an oder wirkt einladend. Die Treppewirkt eher im Weg am Antritt. Man muss an ihr vorbei kommen. Obwohl das platztechnisch kein Problem ist, wirkt es aber unschön.
Im OG ist schade, dass das Schlafzimmer direkt an das Kinderzimmer grenzt, wegen Schallisolierung. Sehe ich aber noch als ok an, da Schrankwand dazwischen. Das Bad würde ich in den unbekannten Raum nach vorn ziehen und hinten einen komplett abgetrennten Elternbereich mit Ankleide schaffen.
Davon ab: mittlerweile hasse ich gerade Treppen. 😉
Sie zwingen den Grundriss immer in ein Korsett, welches die Schönheit und das Potential eines Hauses zerstört - vor allem, wenn es unter 230m² sind.
Ich finde den Entwurf für einen ersten Entwurf schon sehr gut. Problem ist tatsächlich, dass der GU Dir das gnadenlos baut, ohne selbst den Grips zu bemühen.
Hast Du Dir die Sache mal im 3D-Simulator angesehen? Knackpunkt Wohnzimmer-Eintritt. Das funktioniert zwar, aber ich finde das einfach nicht schön. Es wirkt ungemütlich und ungelenk. Man betritt den Raum an der Schokoseite. Ich kann das schwer beschreiben, man spürt es, wenn man es sieht, dass kein schönes Raumgefühl entsteht, obwohl die Räume eine ansprechende Größe und Form haben.
Gleiches Problem mit dem Treppenantritt. Dieser liegt knapp hinter der offenen Esszimmertür, welcher als Durchgang geplant ist. Da schmiegt sich nichts an oder wirkt einladend. Die Treppewirkt eher im Weg am Antritt. Man muss an ihr vorbei kommen. Obwohl das platztechnisch kein Problem ist, wirkt es aber unschön.
Im OG ist schade, dass das Schlafzimmer direkt an das Kinderzimmer grenzt, wegen Schallisolierung. Sehe ich aber noch als ok an, da Schrankwand dazwischen. Das Bad würde ich in den unbekannten Raum nach vorn ziehen und hinten einen komplett abgetrennten Elternbereich mit Ankleide schaffen.
Davon ab: mittlerweile hasse ich gerade Treppen. 😉
Sie zwingen den Grundriss immer in ein Korsett, welches die Schönheit und das Potential eines Hauses zerstört - vor allem, wenn es unter 230m² sind.
W
WilhelmRo22.07.18 10:33Küche in den Süden, damit man das essen direkt auf die Terrasse bringen kann.
L oder U Treppe weil im OG extrem Platz verschwendet wird.
Überlegen ob im OG dann eine waschküche Platz hat. Entstehung von Wäsche und deren Reinigung im selben Geschoss.
Mach erst mal das. Dann weiter schauen.
Mfg
L oder U Treppe weil im OG extrem Platz verschwendet wird.
Überlegen ob im OG dann eine waschküche Platz hat. Entstehung von Wäsche und deren Reinigung im selben Geschoss.
Mach erst mal das. Dann weiter schauen.
Mfg
Also so schlecht finde ich das jetzt nicht. An paar Ecken würde ich dennoch was ändern.
Was ich noch nicht verstanden oder überlesen habe...wie ist denn die Laufrichtung der Treppe?
Besteht ihr auf die Speise?
Ich könnte mir vorstellen das Gäste-Wc über dem HAR zu machen, dafür nicht so eine Ecke da rein. Die Diele bis zur Treppe verlängern. Und dort wo das Gäste-Wc war eine Garderobe hin
Was ich noch nicht verstanden oder überlesen habe...wie ist denn die Laufrichtung der Treppe?
Besteht ihr auf die Speise?
Ich könnte mir vorstellen das Gäste-Wc über dem HAR zu machen, dafür nicht so eine Ecke da rein. Die Diele bis zur Treppe verlängern. Und dort wo das Gäste-Wc war eine Garderobe hin
Danke Euch für das schnelle Feedback!
@11ant:
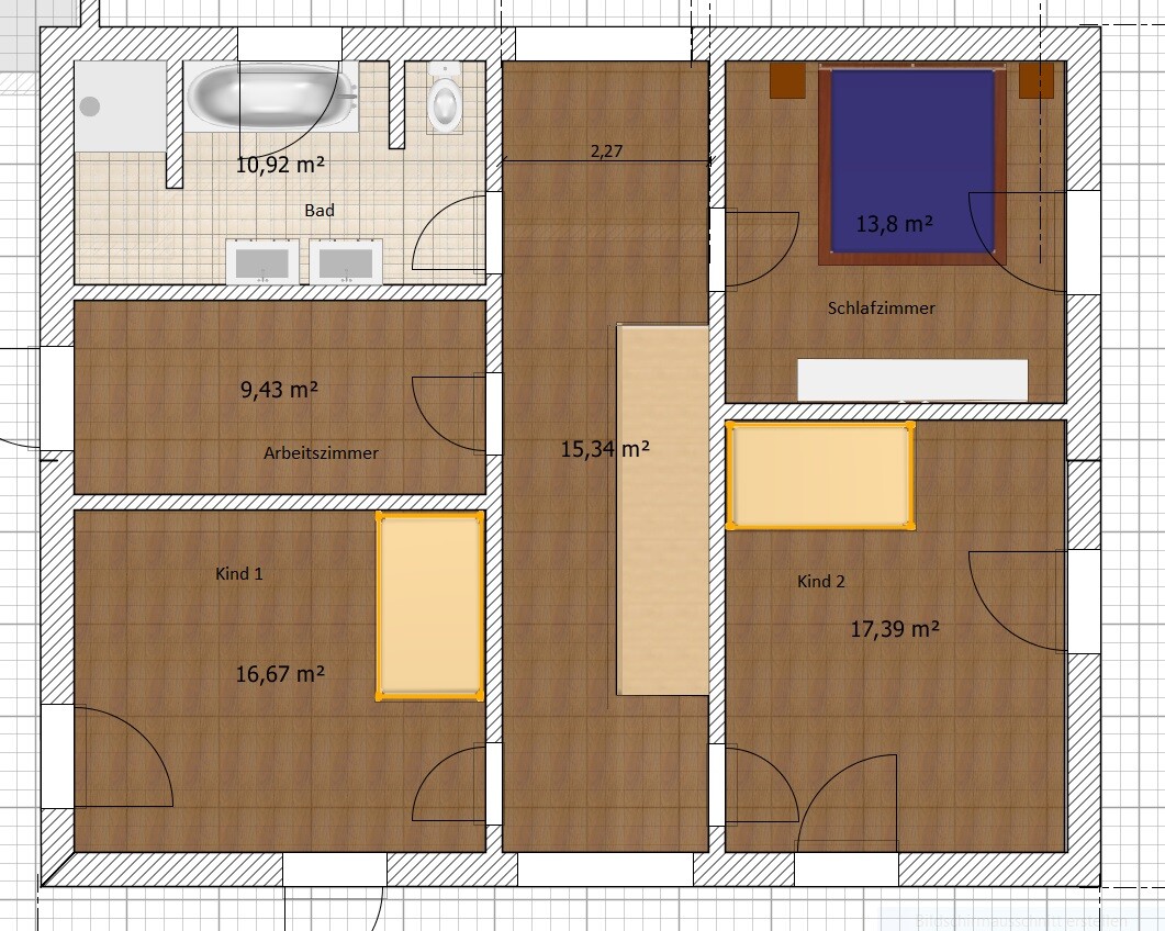
Ich habe den Grundriss nochmal mit den Zimmerbezeichnungen aktualisiert:
@kaho674: Ich finde den Punkt mit der Wirksamkeit beim Betreten des Wohnzimmers interessant, so hatte ich das noch nie betrachtet. Kann den Punkt nachvollziehen, danke für den Denkanstoß.
Ich bin grundsätzlich ein Fan einer Podesttreppe, hatte aber Probleme, die sinnvoll zu integrieren (siehe angehängte Alternativ-Grundrisse).
Anbei wie gewünscht noch ein paar Zwischenstadien und Alternativen. Hab nur die Erdgeschoss-Grundrisse hochgeladen, das OG bekommt man meiner Erfahrung nach dann schon in den Griff. Knackpunkt ist aus meiner Sicht immer das Zusammenspiel aus Treppe + Zugang Wohnzimmer, wie ihr auch festgestellt habt. Bei den Entwürfen mit Nord-Süd-Ausrichtung bleibt immer eine aus meiner Sicht recht unmotivierte Wand an der Südseite im Raum stehen, und der Eingang zum Wohnzimmer ist auch nicht ideal (Blick vom Sofa auf die Küche). Gleichzeitig befürchte ich, das etwas "Großzügigkeit" verloren geht. Vielleicht schätze ich das aber auch falsch ein.

Danke, Gruß,
Monty
@11ant:
Ich habe den Grundriss nochmal mit den Zimmerbezeichnungen aktualisiert:
@kaho674: Ich finde den Punkt mit der Wirksamkeit beim Betreten des Wohnzimmers interessant, so hatte ich das noch nie betrachtet. Kann den Punkt nachvollziehen, danke für den Denkanstoß.
Ich bin grundsätzlich ein Fan einer Podesttreppe, hatte aber Probleme, die sinnvoll zu integrieren (siehe angehängte Alternativ-Grundrisse).
Anbei wie gewünscht noch ein paar Zwischenstadien und Alternativen. Hab nur die Erdgeschoss-Grundrisse hochgeladen, das OG bekommt man meiner Erfahrung nach dann schon in den Griff. Knackpunkt ist aus meiner Sicht immer das Zusammenspiel aus Treppe + Zugang Wohnzimmer, wie ihr auch festgestellt habt. Bei den Entwürfen mit Nord-Süd-Ausrichtung bleibt immer eine aus meiner Sicht recht unmotivierte Wand an der Südseite im Raum stehen, und der Eingang zum Wohnzimmer ist auch nicht ideal (Blick vom Sofa auf die Küche). Gleichzeitig befürchte ich, das etwas "Großzügigkeit" verloren geht. Vielleicht schätze ich das aber auch falsch ein.
Danke, Gruß,
Monty
Ähnliche Themen