W
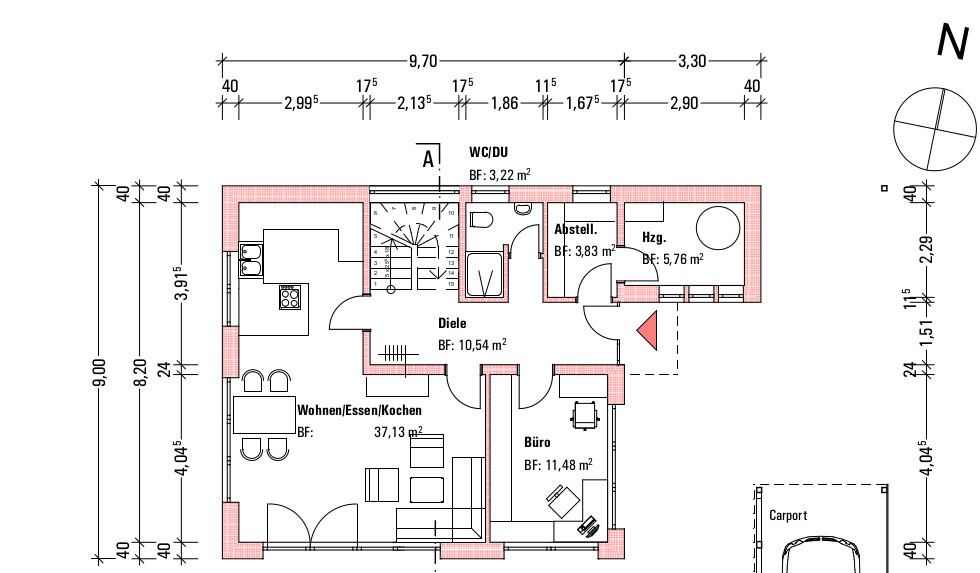
WilderSueden18.01.21 22:18So ihr lieben, da sich bei uns das Thema Baupartner so langsam auf die Zielgerade bewegt dachte ich wir fangen mal an ein bisschen den Grundriss zu optimieren. Auch wenn der ursprünglich nur als Grundlage für ein Angebot gedacht war, gefällt uns der eigentlich ganz gut. Von dem Haus gibt es zwei Varianten, unten ist es beides Mal gleich, oben gibt es einmal ein Halbgeschoss und einmal ein Vollgeschoss. Da ich kein Fan von Dachschrägen bin, der Preisunterschied noch im Rahmen ist und die Flexibiltät im Vollgeschoss größer ist, tendieren wir aktuell dazu den Entwurf mit Vollgeschoss zu bauen. (Halbgeschoss-Entwurf gibt es im anderen Thread zu sehen)
Etwas suboptimal an den Entwürfen ist dass die Räume oben im Vergleich zu den Räumen unten relativ groß sind, konkret das Kinderzimmer halb so groß ist wie der Allraum und das Schlafzimmer ist auch sehr groß. Auch wenn der Allraum an sich passen müsste (bei meinem Cousin habe ich einen mit fast den gleichen Abmessungen gesehen) ist das natürlich kein ideales Verhältnis. Deshalb werden wir auf jeden Fall die Wand zwischen Wohnzimmer und Büro als Trockenbau machen lassen damit man die im Zweifelsfall (oder falls das Büro nicht mehr benötigt wird) mit wenig Aufwand entfernen kann.
Im anderen Thread kam auch schon der Vorschlag das zweite Arbeitszimmer auch nach oben zu verlegen. Das habe ich ein bisschen versucht zu zeichnen (diverse Entwürfe mit Bleistift,im Anhang einer am PC gezeichnet), aber so richtig cool wird keiner der Entwürfe. Die Zimmer werden nicht nur sehr klein (~10qm) sondern bekommen auch sehr ungünstige Zuschnitte. Ich denke dafür ist das OG einfach ein bisschen zu klein
Ich habe auch mal noch ein Bild unserer groben Grundstücksplanung angehängt. Standort der Garage ergibt sich bei unserer Zufahrt fast automatisch, wir würden dann halb dahinter das Haus in die Nordost-Ecke rücken um Richtung Süden und Westen möglichst viel freien Platz zu lassen. Die 3 Grundstücke westlich von unserem Grundstück sind in Wahrheit ein großes zusammenhängendes Grundstück sodass es nach Westen sehr offen ist.
Bebauungsplan/Einschränkungen
Grundstück 17 im Plan
Größe des Grundstücks: 700qm
Hang: nein (übers ganze Grundstück maximal 50cm)
Grundflächenzahl: 0,4
Geschossflächenzahl -
Baufenster, Baulinie und -grenze: ganzes Grundstück unter Berücksichtigung der Grenzbebauung
Anzahl Stellplatz: 2
Geschossigkeit: max 2
Dachform: Satteldach, Walmdach, Krüppelwalmdach 30-45°, Pultdach 8-20°
Maximale Höhen/Begrenzungen: Gebäudehöhe = 6m Traufhöhe (kein Problem)
Anforderungen der Bauherren
Stilrichtung, Dachform, Gebäudetyp: Satteldach, Stil "normales Haus"
Keller, Geschosse: kein Keller da hohes Kostenrisiko durch potentielle Arsenbelastung, stattdessen großer Dachboden und Technikraum im Anbau. 1,5-2 Geschosse
Anzahl der Personen, Alter: 3 Personen, Er 33, Sie 41, Kind kommt in ca 4 Wochen, aktuell kein weiteres geplant
Raumbedarf im EG, OG: Unten Wohnen und Arbeiten, oben Schlafen und Kinderzimmer
Büro: 2 Arbeitszimmer, Er 3-4 Tage die Woche Home-Office, sie arbeitet als Lehrerin auch häufiger von zu Hause
Schlafgäste pro Jahr: bisher hauptsächlich zu Anlässen wie Geburtstagen da auch wenig Platz
offene oder geschlossene Architektur: etwas offener
konservativ oder moderne Bauweise: nicht altbacken aber auch nicht zwanghaft modern. Normales Haus eben 😉
offene Küche, Kochinsel: ja, kochfeld darf aber auch gerne an der Wand stehen
Anzahl Essplätze: max 4 im Normalbetrieb, Platz für ausgezogenen Tisch wenn Gäste da sind
Kamin: nein
Musik/Stereowand: nein
Balkon, Dachterrasse: nein, großer Garten
Garage, Carport: Tendenz aktuell zu Fertiggarage mit angebautem Carport (sie mag keine Garagen). Getrennt vom Haus damit die Einfahrt schön kurz bleibt
Nutzgarten, Treibhaus: ein paar kleinere Beete sonst einfacher Rasen. Vom Garten soll relativ viel zusammenhängend erhalten werden damit es sich auch nach Garten anfühlt und nicht nach Abstandsstreifen
weitere Wünsche/Besonderheiten/Tagesablauf, gern auch Begründungen, warum dieses oder das nicht sein soll:
zweites Bad im EG
Auf dem Grundstück muss noch ein Anhänger 2x6,5m abgestellt werden können.
Hausentwurf
Von wem stammt die Planung:
freier Ingenieur der mit dem GU zusammenarbeitet
Was gefällt besonders? Warum?
Viele große Fenster. Arbeitszimmer über Ecke beschattbar ohne im Dunkeln zu sitzen. Badezimmer ohne Badewanne (bitte nicht nochmal 15 Seite darüber diskutieren)
Was gefällt nicht? Warum?
Kinderzimmer und Schlafzimmer sind relativ groß im Vergleich zum Allraum, dafür ist das zweite Büro/Gästezimmer etwas knapp
Preisschätzung lt Architekt/Planer:
Angebot vom GU für ca 410 000€ Schlüsselfertig inklusive Böden, Maler, Photovoltaik und den meisten Baunebenkosten, ohne Küche
Persönliches Preislimit fürs Haus, inkl Ausstattung: etwa Höhe Angebot, Umplanung sollten also Kostenneutral sein.
favorisierte Heiztechnik: Sole-Wasser-Wärmepumpe über Fußbodenheizung
Wenn Ihr verzichten müsst, auf welche Details/Ausbauten
-könnt Ihr verzichten:
Ankleide kommt uns verzichtbar vor. Falls wir an den Wänden nichts ändern war eine Überlegung vielleicht den vom Bad zugänglich zu machen und eine Sauna reinzubauen
-könnt Ihr nicht verzichten:
ausreichende Abstellmöglichkeiten im Dachboden





Etwas suboptimal an den Entwürfen ist dass die Räume oben im Vergleich zu den Räumen unten relativ groß sind, konkret das Kinderzimmer halb so groß ist wie der Allraum und das Schlafzimmer ist auch sehr groß. Auch wenn der Allraum an sich passen müsste (bei meinem Cousin habe ich einen mit fast den gleichen Abmessungen gesehen) ist das natürlich kein ideales Verhältnis. Deshalb werden wir auf jeden Fall die Wand zwischen Wohnzimmer und Büro als Trockenbau machen lassen damit man die im Zweifelsfall (oder falls das Büro nicht mehr benötigt wird) mit wenig Aufwand entfernen kann.
Im anderen Thread kam auch schon der Vorschlag das zweite Arbeitszimmer auch nach oben zu verlegen. Das habe ich ein bisschen versucht zu zeichnen (diverse Entwürfe mit Bleistift,im Anhang einer am PC gezeichnet), aber so richtig cool wird keiner der Entwürfe. Die Zimmer werden nicht nur sehr klein (~10qm) sondern bekommen auch sehr ungünstige Zuschnitte. Ich denke dafür ist das OG einfach ein bisschen zu klein
Ich habe auch mal noch ein Bild unserer groben Grundstücksplanung angehängt. Standort der Garage ergibt sich bei unserer Zufahrt fast automatisch, wir würden dann halb dahinter das Haus in die Nordost-Ecke rücken um Richtung Süden und Westen möglichst viel freien Platz zu lassen. Die 3 Grundstücke westlich von unserem Grundstück sind in Wahrheit ein großes zusammenhängendes Grundstück sodass es nach Westen sehr offen ist.
Bebauungsplan/Einschränkungen
Grundstück 17 im Plan
Größe des Grundstücks: 700qm
Hang: nein (übers ganze Grundstück maximal 50cm)
Grundflächenzahl: 0,4
Geschossflächenzahl -
Baufenster, Baulinie und -grenze: ganzes Grundstück unter Berücksichtigung der Grenzbebauung
Anzahl Stellplatz: 2
Geschossigkeit: max 2
Dachform: Satteldach, Walmdach, Krüppelwalmdach 30-45°, Pultdach 8-20°
Maximale Höhen/Begrenzungen: Gebäudehöhe = 6m Traufhöhe (kein Problem)
Anforderungen der Bauherren
Stilrichtung, Dachform, Gebäudetyp: Satteldach, Stil "normales Haus"
Keller, Geschosse: kein Keller da hohes Kostenrisiko durch potentielle Arsenbelastung, stattdessen großer Dachboden und Technikraum im Anbau. 1,5-2 Geschosse
Anzahl der Personen, Alter: 3 Personen, Er 33, Sie 41, Kind kommt in ca 4 Wochen, aktuell kein weiteres geplant
Raumbedarf im EG, OG: Unten Wohnen und Arbeiten, oben Schlafen und Kinderzimmer
Büro: 2 Arbeitszimmer, Er 3-4 Tage die Woche Home-Office, sie arbeitet als Lehrerin auch häufiger von zu Hause
Schlafgäste pro Jahr: bisher hauptsächlich zu Anlässen wie Geburtstagen da auch wenig Platz
offene oder geschlossene Architektur: etwas offener
konservativ oder moderne Bauweise: nicht altbacken aber auch nicht zwanghaft modern. Normales Haus eben 😉
offene Küche, Kochinsel: ja, kochfeld darf aber auch gerne an der Wand stehen
Anzahl Essplätze: max 4 im Normalbetrieb, Platz für ausgezogenen Tisch wenn Gäste da sind
Kamin: nein
Musik/Stereowand: nein
Balkon, Dachterrasse: nein, großer Garten
Garage, Carport: Tendenz aktuell zu Fertiggarage mit angebautem Carport (sie mag keine Garagen). Getrennt vom Haus damit die Einfahrt schön kurz bleibt
Nutzgarten, Treibhaus: ein paar kleinere Beete sonst einfacher Rasen. Vom Garten soll relativ viel zusammenhängend erhalten werden damit es sich auch nach Garten anfühlt und nicht nach Abstandsstreifen
weitere Wünsche/Besonderheiten/Tagesablauf, gern auch Begründungen, warum dieses oder das nicht sein soll:
zweites Bad im EG
Auf dem Grundstück muss noch ein Anhänger 2x6,5m abgestellt werden können.
Hausentwurf
Von wem stammt die Planung:
freier Ingenieur der mit dem GU zusammenarbeitet
Was gefällt besonders? Warum?
Viele große Fenster. Arbeitszimmer über Ecke beschattbar ohne im Dunkeln zu sitzen. Badezimmer ohne Badewanne (bitte nicht nochmal 15 Seite darüber diskutieren)
Was gefällt nicht? Warum?
Kinderzimmer und Schlafzimmer sind relativ groß im Vergleich zum Allraum, dafür ist das zweite Büro/Gästezimmer etwas knapp
Preisschätzung lt Architekt/Planer:
Angebot vom GU für ca 410 000€ Schlüsselfertig inklusive Böden, Maler, Photovoltaik und den meisten Baunebenkosten, ohne Küche
Persönliches Preislimit fürs Haus, inkl Ausstattung: etwa Höhe Angebot, Umplanung sollten also Kostenneutral sein.
favorisierte Heiztechnik: Sole-Wasser-Wärmepumpe über Fußbodenheizung
Wenn Ihr verzichten müsst, auf welche Details/Ausbauten
-könnt Ihr verzichten:
Ankleide kommt uns verzichtbar vor. Falls wir an den Wänden nichts ändern war eine Überlegung vielleicht den vom Bad zugänglich zu machen und eine Sauna reinzubauen
-könnt Ihr nicht verzichten:
ausreichende Abstellmöglichkeiten im Dachboden
X
XxTankerxX19.01.21 10:25Ich finde die großen Räume im OG jedoch schon gut. Da hat man wenigstens Platz.
Wenn du das so umplanst wie in dem ersten Bild, dann wirst du das Schlafzimmer jedoch um 90 Grad drehen müssen und die Ankleide kannst du dann vergessen.
Bezüglich EG: Warum setzt du die Tür des WCs nicht zurück wie @ypg das schon gesagt hat. Finde ich auch besser.
Wenn du das so umplanst wie in dem ersten Bild, dann wirst du das Schlafzimmer jedoch um 90 Grad drehen müssen und die Ankleide kannst du dann vergessen.
Bezüglich EG: Warum setzt du die Tür des WCs nicht zurück wie @ypg das schon gesagt hat. Finde ich auch besser.
Finde auch dass das alles wirklich stimmig ist. Die 11-12m2 Büros sind auf jeden Fall groß genug.
Im EG würde ich auch diese Nische vorm WC entfernen und statt der massiven Wann dann eine Echtglas-Kabine bevorzugen. Dann ist das WC auch vernünftig nutzbar.
Von Abstell zu Heizung würde ich die Wand + Tür entfernen, die kaut euch nur Stellfläche und du musst jedes mal die erste Tür wieder schließen um in die Heizung zu kommen.
Im EG würde ich auch diese Nische vorm WC entfernen und statt der massiven Wann dann eine Echtglas-Kabine bevorzugen. Dann ist das WC auch vernünftig nutzbar.
Von Abstell zu Heizung würde ich die Wand + Tür entfernen, die kaut euch nur Stellfläche und du musst jedes mal die erste Tür wieder schließen um in die Heizung zu kommen.
Hattet Ihr die Heizung zunächst vergessen, oder wieso ist die angebaut ?
https://www.instagram.com/11antgmxde/
https://www.linkedin.com/company/bauen-jetzt/
https://www.instagram.com/11antgmxde/
https://www.linkedin.com/company/bauen-jetzt/
W
WilderSueden19.01.21 19:39Schon mal vielen Dank für die Anregungen. Morgen haben wir noch einen Termin mit dem Ingenieur, da werde ich das mal mitnehmen.
Die Nische im Bad unten fand ich eigentlich ganz cool da man dann nicht so viel Duschkabine putzen muss 😉
Aber wenn ich nochmal so drüber nachdenke macht es vermutlich Sinn da doch die Tür nach vorne zu ziehen und die Kabine einzubauen.
Die Wand zwischen Wohnzimmer und Flur ist als 24er eingezeichnet, also tragend. Da müsste man dann sicherlich mit Säulen arbeiten damit die Statik stimmt. Mir ist auch noch nicht ganz klar wieviel man dadurch wirklich gewinnt. Man könnte natürlich dann das sofa an die Säulen ranstellen und dann quasi nach draußen schauen. Wobei das natürlich auch mit Wand geht. Die Tür zwischen Wohnzimmer und Flur steht übrigens noch auf der Streichliste, wir sehen da wenig Sinn drin noch Platz für Tür und Erschließungsfläche zu verbrauchen wenn 2,5m nebendran die andere Tür ist.
Bei der Wand zwischen Heizung und Abstellraum ist auch 17 eingezeichnet also tragend. Eine Möglichkeit wäre da die Tür durch einen einfachen Bogen zu ersetzen.
Die Nische im Bad unten fand ich eigentlich ganz cool da man dann nicht so viel Duschkabine putzen muss 😉
Aber wenn ich nochmal so drüber nachdenke macht es vermutlich Sinn da doch die Tür nach vorne zu ziehen und die Kabine einzubauen.
Die Wand zwischen Wohnzimmer und Flur ist als 24er eingezeichnet, also tragend. Da müsste man dann sicherlich mit Säulen arbeiten damit die Statik stimmt. Mir ist auch noch nicht ganz klar wieviel man dadurch wirklich gewinnt. Man könnte natürlich dann das sofa an die Säulen ranstellen und dann quasi nach draußen schauen. Wobei das natürlich auch mit Wand geht. Die Tür zwischen Wohnzimmer und Flur steht übrigens noch auf der Streichliste, wir sehen da wenig Sinn drin noch Platz für Tür und Erschließungsfläche zu verbrauchen wenn 2,5m nebendran die andere Tür ist.
Bei der Wand zwischen Heizung und Abstellraum ist auch 17 eingezeichnet also tragend. Eine Möglichkeit wäre da die Tür durch einen einfachen Bogen zu ersetzen.
ypg schrieb:Stauraum für welche Art von Abstellen? Es gibt ja den Abstellraum für Nudeln, Getränke, etc., Staubsauger kann man auch entweder in den Raum stellen oder in den Heizungsraum. Da der Pufferspeicher raus ist sollte da eigentlich noch Platz sein. Dinge die man selten braucht können dann in den Dachboden. Bei ~32° DN ist der auch relativ groß. Und dann gibt es ja auch noch für manche Sachen das Gartenhaus.
Es fehlt erreichbarer und trockener Stauraum.
11ant schrieb:Als eine einfache Alternative zum Keller, die im Haus selbst keinen Platz wegnimmt. Ich finde, das schließt das Haus auch ganz nett in Richtung Einfahrt ab.
Hattet Ihr die Heizung zunächst vergessen, oder wieso ist die angebaut ?
Ähnliche Themen