ᐅ Eigenheimverwirklichung - Danke für eure Einschätzung / Feedback
Erstellt am: 15.10.18 12:33
G
Grot85Bebauungsplan/Einschränkungen
Größe des Grundstücks: 618 - 704qm
Hang: nein
Grundflächenzahl: 0,3
Anzahl Stellplatz: 2
Geschossigkeit: 1,5
Dachform: Satteldach
Anforderungen der Bauherren
Anzahl der Personen, Alter: 2 (33 + 26)
Büro: Familiennutzung oder Homeoffice? hauptsächlich privat, manchmal dienstlich
Schlafgäste pro Jahr: 5
offene oder geschlossene Architektur
konservativ oder moderne Bauweise
offene Küche, Kochinsel: nein
Anzahl Essplätze
Kamin: nein
Musik/Stereowand: nein
Balkon, Dachterrasse: nein
Garage, Carport: Doppelcarport
Nutzgarten, Treibhaus: nein
Hausentwurf
Von wem stammt die Planung:
-Do-it-Yourself
Persönliches Preislimit fürs Haus, inkl Ausstattung: 300.000
favorisierte Heiztechnik: Gastherme + Brauchwassererwärmung
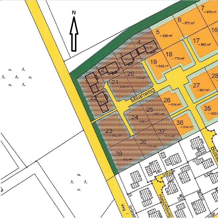
Wir haben uns auf die 5 Grundstücke beworben, in denen das Haus (grob und nicht maßstabsgetreu) im Lageplan eingezeichnet ist.
Vielen Dank für Eure Anregungen




Größe des Grundstücks: 618 - 704qm
Hang: nein
Grundflächenzahl: 0,3
Anzahl Stellplatz: 2
Geschossigkeit: 1,5
Dachform: Satteldach
Anforderungen der Bauherren
Anzahl der Personen, Alter: 2 (33 + 26)
Büro: Familiennutzung oder Homeoffice? hauptsächlich privat, manchmal dienstlich
Schlafgäste pro Jahr: 5
offene oder geschlossene Architektur
konservativ oder moderne Bauweise
offene Küche, Kochinsel: nein
Anzahl Essplätze
Kamin: nein
Musik/Stereowand: nein
Balkon, Dachterrasse: nein
Garage, Carport: Doppelcarport
Nutzgarten, Treibhaus: nein
Hausentwurf
Von wem stammt die Planung:
-Do-it-Yourself
Persönliches Preislimit fürs Haus, inkl Ausstattung: 300.000
favorisierte Heiztechnik: Gastherme + Brauchwassererwärmung
Wir haben uns auf die 5 Grundstücke beworben, in denen das Haus (grob und nicht maßstabsgetreu) im Lageplan eingezeichnet ist.
Vielen Dank für Eure Anregungen
kaho674 schrieb:
Ein Haus plant man, nachdem man das Grundstück hat, da man die Haupträume an den Himmelsrichtungen ausrichtet.
Ab davon, was wollt Ihr mit dem Mega Hauswirtschaftsraum? Da könnte locker ein Zimmer mehr raus springen.
Was ist mit der Familienplanung?Ich finde, dass das Haus so auf die angestrebten Grundstücke passt. Wo siehst Du die Probleme?
Wir planen keinen Keller und wollen uns so genug Abstellfläche generieren.
Kinder sind nicht geplant
Carport/Garage sitzt auf drei Grundstücken falsch. Die Hausausrichtung würde ich auch spiegeln.
Im EG würde ich ein Zimmer statt des HWRs generieren. Oben dann Wäsche und Abstellraum. Die Treppe vom Eingang weg. Küche ist zu breit für diese Konstellation des 2-Zeilers.
Auf Wanne würde ich nie verzichten. (a) Wiederverkaufswert, b) Sitz- und medizinische Bäder müssen auch von Nur-Duscher mal irgendwann gemacht werden)
Aber wenn keine Familienplanung ansteht, würde ich eh freier planen. Das geht auch mit GU 🙂
Sonne und Licht in den Aufenthaltsräumen!
Im EG würde ich ein Zimmer statt des HWRs generieren. Oben dann Wäsche und Abstellraum. Die Treppe vom Eingang weg. Küche ist zu breit für diese Konstellation des 2-Zeilers.
Auf Wanne würde ich nie verzichten. (a) Wiederverkaufswert, b) Sitz- und medizinische Bäder müssen auch von Nur-Duscher mal irgendwann gemacht werden)
Aber wenn keine Familienplanung ansteht, würde ich eh freier planen. Das geht auch mit GU 🙂
Grot85 schrieb:
Ich finde, dass das Haus so auf die angestrebten Grundstücke passt. Wo siehst Du die Probleme?
Sonne und Licht in den Aufenthaltsräumen!
Grot85 schrieb:
Ich finde, dass das Haus so auf die angestrebten Grundstücke passt. Wo siehst Du die Probleme?Werde jetzt nicht für jedes Grundstück alles erklären. Die Haupträume sollten Tageslicht haben und möglichst nicht nach Norden ausgerichtet sein. Am besten kommst Du nochmal, wenn Du Dich für eines der Grundstücke entscheiden sollst. 🙂Ähnliche Themen