ᐅ Doppelhaushälfte 130qm - So wird es ausschauen
Erstellt am: 13.04.19 11:57
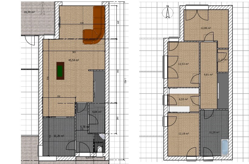
So wir hatten unser erstes Gespräch mit dem Architekten und wir kamen zum folgendem Ergebnis
Leider haben wir im Erdgeschoss einen Versatz, wo wir nicht draufbauen dürfen. Dies hat man uns erst im Gespräch gesagt, nachdem wir unterschrieben haben!
Wie nennt man das, wenn man dort nicht drauf bauen darf, weil dort etwas anderes vom Nachbargrundstück liegt?
Wir dachten, das wir im OG dies vielleicht verlängern können und somit ein kleines Dach im Garten hätten..
Oder ist dies nicht Zulässig..?

Leider haben wir im Erdgeschoss einen Versatz, wo wir nicht draufbauen dürfen. Dies hat man uns erst im Gespräch gesagt, nachdem wir unterschrieben haben!
Wie nennt man das, wenn man dort nicht drauf bauen darf, weil dort etwas anderes vom Nachbargrundstück liegt?
Wir dachten, das wir im OG dies vielleicht verlängern können und somit ein kleines Dach im Garten hätten..
Oder ist dies nicht Zulässig..?
lin0r87 schrieb:
Wie nennt man das, wenn man dort nicht drauf bauen darf, weil dort etwas anderes vom Nachbargrundstück liegt?1. Baulast2. Grunddienstbarkeit
oder beides
lin0r87 schrieb:
Oder ist dies nicht Zulässig..?Bei 1. ist dies nicht zulässig, bei 2. müsste man die beim Grundbuch hinterlegte Eintragungsbewilligung kennen.Für weitergehende Auskünfte wäre der amtliche Lageplan und der Bebauungsplan hilfreich.
lin0r87 schrieb:
Wäre denn eine Bebauung anhand einer Sondergenehmigung oberhalb möglich?Nein. lin0r87 schrieb:
Jemand Erfahrungen gemacht?Ja. Die Baulast belastet dein Grundstück. Sie stellt ja gerade sicher, dass dort nichts gebaut werden darf, auch nicht im OG. Bei Abstandsflächenbaulast wäre evt. eine unterirdische Bebauung noch möglich.Wenn die Nachbarn keine Fenster in der Wand haben, die zu deinem Grundstück weist, oder sich dort nur Räume befinden, deren Belichtung nicht so bedeutend ist, wie Bad oder Küche, könnte im Wege der Abweichung nach §69 Bauordnung NRW eventuell auf die Ecke in deinem Grundriss verzichtet werden, also auch im EG. Vermutlich hat das der Planer aber schon abgecheckt.
Hättest besser die andere Hälfte gekauft, wenn's Dich so stört.
Ähnliche Themen