
ares83
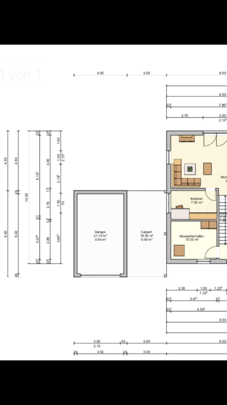
Du solltest uns spätestens jetzt eine Skizze geben. Wo ist dieser Auslass denn genau? Denn die 6m werden wohl auch nen Abstellraum etc beinhalten oder?
Ich schließe mich bei den 2,5m den Vorrednern an, das ist schon sehr beengt und ihr werdet euch dauerhaft über so eine Notlösung ärgern. Da bekommt ja kaum Kindersitz, KInd etc raus ohne dauernd ne Tür gegen eine Wand zu hauen.
Ich schließe mich bei den 2,5m den Vorrednern an, das ist schon sehr beengt und ihr werdet euch dauerhaft über so eine Notlösung ärgern. Da bekommt ja kaum Kindersitz, KInd etc raus ohne dauernd ne Tür gegen eine Wand zu hauen.