Soll der esstisch wirklich dort stehen wo er jetzt eingezeichnet ist?
[/QUOTE]
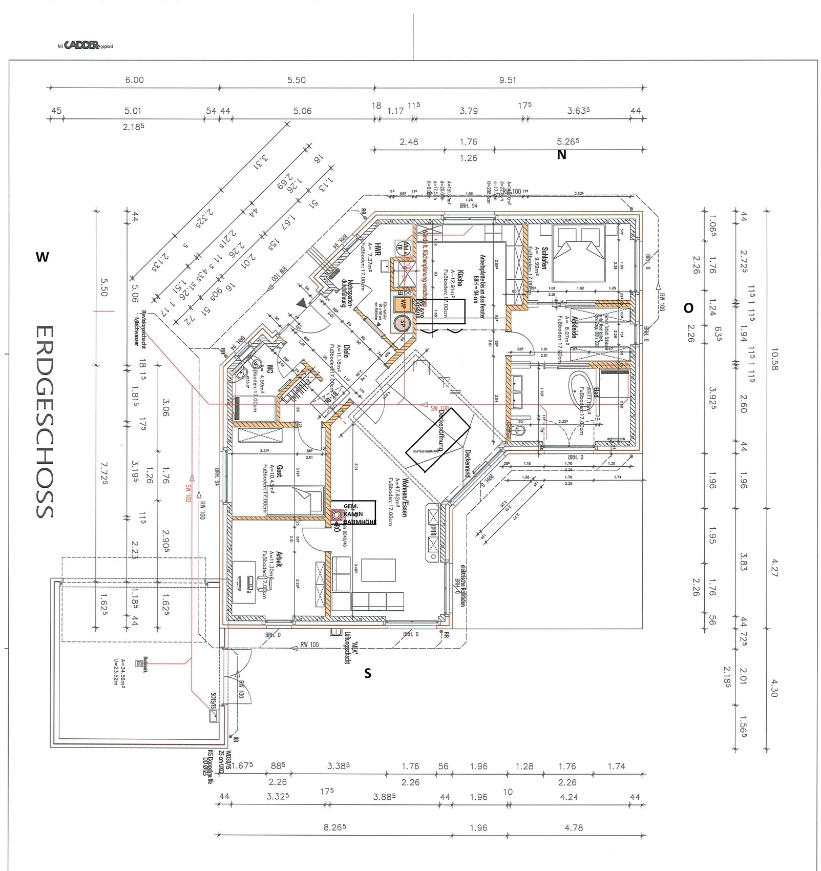
Nein, der große Esstisch mit 8 Stühlen ist in der Mitte des Raumes geplant. Eine Kücheninsel (1,80 m lang und 1,20 m tief) an der Wand trennt die Küche optisch von dem Wohnzimmer. Habe diese im Plan (ohne Bemaßung) eingezeichnet.
Der eingezeichnete Kamin dient ebenfalls als Raumtrenner.
Den Side By Side Kühlschrank konnte ich meinem Mann nicht ausreden. In die Küchenzeile mit Oberschränken hätte er nicht mehr gepasst, da dort der Ofen und Apothekerschrank keinen Platz mehr zuließen. Der Hauswirtschaftsraum mit 7,3 m² ist laut Architekt völlig ausreichend, da ich meine Bedenken geäußert habe.
Das Haus ist hauptsächlich an dem Lauf der Sonne ausgerichtet. Himmelsrichtungen habe ich eingezeichnet. Terrasse ist nicht Richtung Süden ausgerichtet, da dort eine Doppelhaushälfte steht.

[/QUOTE]
Nein, der große Esstisch mit 8 Stühlen ist in der Mitte des Raumes geplant. Eine Kücheninsel (1,80 m lang und 1,20 m tief) an der Wand trennt die Küche optisch von dem Wohnzimmer. Habe diese im Plan (ohne Bemaßung) eingezeichnet.
Der eingezeichnete Kamin dient ebenfalls als Raumtrenner.
Den Side By Side Kühlschrank konnte ich meinem Mann nicht ausreden. In die Küchenzeile mit Oberschränken hätte er nicht mehr gepasst, da dort der Ofen und Apothekerschrank keinen Platz mehr zuließen. Der Hauswirtschaftsraum mit 7,3 m² ist laut Architekt völlig ausreichend, da ich meine Bedenken geäußert habe.
Das Haus ist hauptsächlich an dem Lauf der Sonne ausgerichtet. Himmelsrichtungen habe ich eingezeichnet. Terrasse ist nicht Richtung Süden ausgerichtet, da dort eine Doppelhaushälfte steht.
Ala34 schrieb:
Den Side By Side Kühlschrank konnte ich meinem Mann nicht ausreden. Schwache Leistung. Kocht er dann wenigstens immer? Und holt er sich zumindest das Bier / den Wein am Abend, wenn man auf der Couch sitzt, selbsttätig?
Das ist ja eine halbe Tageswanderung um die Insel rum zum Kühlschrank... oder plant ihr dafür einen kleinen Kühlschrank direkt im Wohnzimmer?
Ich finde die Küche so unpratisch, die beiden Küchenzeilen haben viel zu viel Abstand voneinander, das ist kein Drehschritt von einer zur anderen, sondern auch hier eine kleine Wanderung. Aber das habe ich schon öfter hier gesehen, daß sich manche ihr Fitness-Programm mittels entsprechender Planung für den Rest des Lebens fest schreiben. Ich bin halt faul...
Auch das Wohnzimmer ist irgendwie verplant - wo ist der TV? In dem schrank gegenüber vom Ofen? Da kriegt man dann aber beim allabendlichen Tagesschaugucken einen steifen Hals, oder? Von längeren Fernsehsessions rate ich aus orthopädischen Gründen sowieso ab.
Viel Platz - aber suboptimal genutzt (freundlich formuliert).
Wie wäre es, Arbeiten dahin wo die Küche ist, die Trennwand zum privaten Bereich parallel zum Luftraum (ist das ein Luftraum oder nur Unterzüge über dem Essbereich?), Tisch bleibt, Küche dahin, wo jetzt Wohnzimmer ist und Wohnzimmer kuschelig in die Ecke, wo jetzt Arbeiten ist. Wo der Ofen dann hin soll, muß man sich noch überlegen. Ich mag zwar die Küche nicht so gerne zwischen Wohnzimmer und Essbereich, aber aufgrund des Schnittes hier fällt mir ad hoc nichts besseres ein.
Nur so wie es ist, finde ich es total unpraktisch und massig ungenutzter Raum, der das alles recht ungemütlich macht.
Das ist ja eine halbe Tageswanderung um die Insel rum zum Kühlschrank... oder plant ihr dafür einen kleinen Kühlschrank direkt im Wohnzimmer?
Ich finde die Küche so unpratisch, die beiden Küchenzeilen haben viel zu viel Abstand voneinander, das ist kein Drehschritt von einer zur anderen, sondern auch hier eine kleine Wanderung. Aber das habe ich schon öfter hier gesehen, daß sich manche ihr Fitness-Programm mittels entsprechender Planung für den Rest des Lebens fest schreiben. Ich bin halt faul...
Auch das Wohnzimmer ist irgendwie verplant - wo ist der TV? In dem schrank gegenüber vom Ofen? Da kriegt man dann aber beim allabendlichen Tagesschaugucken einen steifen Hals, oder? Von längeren Fernsehsessions rate ich aus orthopädischen Gründen sowieso ab.
Viel Platz - aber suboptimal genutzt (freundlich formuliert).
Wie wäre es, Arbeiten dahin wo die Küche ist, die Trennwand zum privaten Bereich parallel zum Luftraum (ist das ein Luftraum oder nur Unterzüge über dem Essbereich?), Tisch bleibt, Küche dahin, wo jetzt Wohnzimmer ist und Wohnzimmer kuschelig in die Ecke, wo jetzt Arbeiten ist. Wo der Ofen dann hin soll, muß man sich noch überlegen. Ich mag zwar die Küche nicht so gerne zwischen Wohnzimmer und Essbereich, aber aufgrund des Schnittes hier fällt mir ad hoc nichts besseres ein.
Nur so wie es ist, finde ich es total unpraktisch und massig ungenutzter Raum, der das alles recht ungemütlich macht.
Man könnte natürlich die große Schiebetür die jetzt im Essbereich ist auf die Wand daneben verlegen und dann die Küche dorthin, wo jetzt Essplatz ist, wieder zweizeilige Küche, aber Max. 130cm zwischen den Zeilen, dort auch eine Terrassentüre raus auf die Terrasse. Essbereich rutscht in den Süden (jetzt Wohnzimmer), vor die dann dort befindliche große Schiebetüre, Wohnzimmer da wo jetzt Arbeit. Hier wäre auch der direkte Terrassenzugang von der Küche ein großer Vorteil.
Ähnliche Themen