C
Chrisi190615.08.19 20:45kbt09 schrieb:
äh .. seitenweise weist du auf die besondere Problematik deiner lauten Subwoofer hin, auf die Lautstärken von Waschmaschinen/Trocknern usw. und dann willst du bei dem Vorschlag die Subwoofer wieder mitten zwischen die Schlafräume packen?Ich sage halt erst mal das was mir wichtig ist. Was ich nicht so schnell sagen kann ist was welche Prio hat. Das der Subwoofer wenn möglich nicht an ein Kinderzimmer angrenzt hat eine hohe Prio. Wenn das Wohnzimmer aber ganz weit von der Terrasse weg ist stört mich das noch mehr. Daher denke ich, Wohnzimmer in den Fall nach oben.
ypg schrieb:
Nein, das will er nicht.
Er will nämlich das WZ oben (hinten) haben
Mädels, wir spielen die Spiele. Aber es ist Euch bewusst, dass hier nichts umgesetzt werden wird?!
Chris möchte gern 150%, aber keine Kompromisse. Er ist ein Mann, der nicht weiter denkt, als abends von seinen Subs beschallt zu werden.
Die Frau ist fürs Wäschewaschen da, und noch für viel mehr. Aber aus irgendwelchen Gründen haben wir es hier mit Chris zu tun, der Gefahr um seinen Chillplatz hat, wenn das Haus hier logisch und praktisch entworfen wird, damit es innerhalb der Familie funktioniert.Jetzt mobbst du mich aber ganz schön dolle. Ich bin sehr wohl bereit Kompromisse einzugehen. Das habe ich z.B. schon gemacht in dem ich das Büro nach oben gelegt habe. Ich verbringe in der Regel 32h die Woche im Büro. 1 Tage fahre ich ggf. in die Firma. Wenn es einen Platz gibt an dem ich viel Zeit verbringe dann ist es das Büro. Leider ist es kein Chillplatz. :-(
11ant schrieb:
Wenn erst Subwoofer, Südkinder, Wäschetrockner und kurze Hausanschlüsse unter einen Hut gebracht werden müssen: dann nach meiner Einschätzung Warten auf Godot.
Das siehst Du falsch, vermutlich verwirrt Dich der großzügige Esstisch.
Das ist in der Realität weit weniger dramatisch als auf der Zeichnung, und auch bei Walm dezenter als bei Sattel gleicher Neigung.
Wie auch immer, auf jeden Fall mit einer genormten Garage - ein evtl. Parallelitätenversatz versendet sich im Carport dazwischen weit günstiger.
Ceterum censeo: ein Bungalow ist eine Hausform, deren Domäne - vom Sonderfall rollstuhlfahrendes Familienmitglied mal abgesehen - das Paar mit abgeschlossener Familienplanung ist (egal ob man kinderlos ist, Kinder schon aus dem Haus sind oder die Bereitschaft ist, bei Kindersegen das Objekt zu wechseln). Aber ein Kinderzimmer-Platzbedarf im Erdgeschoss bringt eben automatisch zusätzliche Dachgeschoss-Grundfläche mit sich und ist damit selbst sein stärkstes Argument gegen einen Nichtausbau des Daches. Bei so kleinen Kindern (2 Jahre / 7 Monate) sehe ich auch noch eine ganze Weile ein gemeinsames Zimmer ausreichen und die Option, sie später in getrennten Stockwerken einander aus dem Weg gehen zu lassen (oder dann das Schlafzimmer nach oben zu verlegen), als erwägenswert.Unsere Familienplanung ist abgeschlossen, meine Frau möchte zwar noch eins aber sie respektiert meinen Wunsch. Genau richtig gesagt, bei so kleinen Kindern kann es auch noch lange so sein das sie sich ein Zimmer teilen. Ich nehme erst mal ein Kinderzimmer als Büro.
kaho674 schrieb:
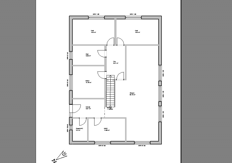
Hab die Variante noch mal auf 11,5 x 16 gezogen - nur so zum Spaß:

Der Grundriss gefällt mir jetzt richtig richtig gut. Die Idee mit dem 2. Abstellraum finde ich gar nicht übel. Kritikpunkte? Kinderzimmer sind etwas lang gezogen aber das ist nicht so schlimm! Subwoofer am Schlafzimmer? Damit kann ich leben! Ach ne, die Treppe fehlt. Die müssen wir noch irgendwie unterbringen. Wenn das Haus dadurch etwas länger wird wäre es nicht schlimm. 0,5m wäre okay wenn das reicht?
ypg schrieb:
Hab meins mal abgespeichert..
Subwoofer...check
Waschmaschine...check
Kurze Leitungen...check
Südkinder...checkGuter Grundriss aber die Variante von kaho674 gefällt mir besser.
C
Chrisi190615.08.19 21:02ypg schrieb:
Hab meins mal abgespeichert..

Subwoofer...check
Waschmaschine...check
Kurze Leitungen...check
Südkinder...checkDer ist auch echt gut... Jetzt fällt die Entscheidung schwer... Sorry hatte erst nicht so genau hingeschaut, daher ist der Kommentar mit besser nicht ganz richtig. Ich würde sagen gleich gut...
Du möchtest eben gern die Terrasse mit dem WZ oben zum Restgarten haben.
Wir (Kerstin und ich) legen Dir die Terrasse in den Süden, die dann abends nach Deiner Arbeit (Apropos, wir arbeiten auch 40 Std die Woche )
auch noch mit Sonne verwöhnt ist. Auch die Wohnräume sollen mit Sonne durchflutet werden. Das ist nicht der Fall, wenn man den Allraum nur in den Osten legt. Dann hat man als Berufstätiger wenig von der Sonne.
Wir (Kerstin und ich) legen Dir die Terrasse in den Süden, die dann abends nach Deiner Arbeit (Apropos, wir arbeiten auch 40 Std die Woche )
auch noch mit Sonne verwöhnt ist. Auch die Wohnräume sollen mit Sonne durchflutet werden. Das ist nicht der Fall, wenn man den Allraum nur in den Osten legt. Dann hat man als Berufstätiger wenig von der Sonne.
Ähnliche Themen