Bitte um Rückmeldung zu unserem Grundriss

4,80 Stern(e) 5 Votes
Zuletzt aktualisiert 03.12.2025
Sie befinden sich auf der Seite 2 der Diskussion zum Thema: Bitte um Rückmeldung zu unserem Grundriss
>> Zum 1. Beitrag <<

kbt09

kbt09

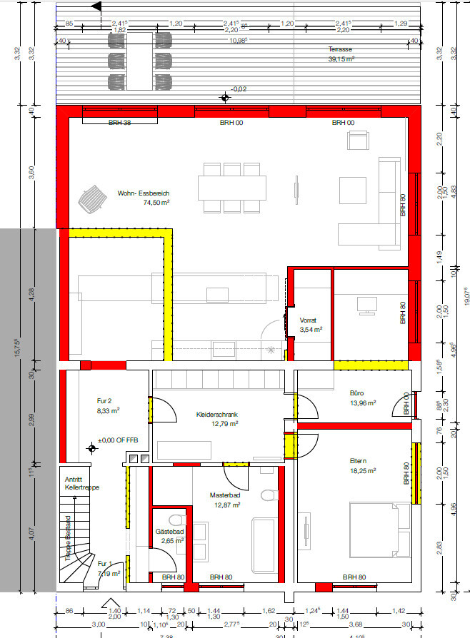
Naja ... was erwartest du denn von dem 1m extra? Planlinks entsteht viel freie Fläche ...nutzbar für was?
TV mitten in den Raum gezeichnet?
Büro nur durch den begehbaren Kleiderschrank?

Von allem rundum sieht man nichts. Man weiß noch nicht mal wo Norden ist. Wie das Grundstück liegt. In der 1 m verlängerten Version sind das gut 150 qm... was ist mit oben? Auch nochmal so groß? Wieviel Leute sollen denn dort wohnen (wenn du https://www.hausbau-forum.de/threads/grundriss-planung-unbedingt-vor-beitrag-erstellung-lesen.11714/ gelesen hättest, dann hätten wir ja den hier schon mehrfach nachgefragten Fragebogen ;) ).
 
A

AnneMarco

Bebauungsplan/Einschränkungen
Größe des Grundstücks: 800m2
Hang: Nein
Grundflächenzahl: ???
Geschossflächenzahl 0,2
Baufenster, Baulinie und -grenze

Blau getönter technischer Bauplan mit Rechtecken, Linien und Beschriftungen.
Randbebauung: Yepp
Anzahl Stellplatz: 2
Geschossigkeit: 1 Vollgeschoss
Dachform: Satteldach
Stilrichtung: alt
Ausrichtung. Haustür nach Norden, Lebensraum nach Süden.
Maximale Höhen/Begrenzungen: 1 Geschoss plus Dach
weitere Vorgaben

Anforderungen der Bauherren
Anzahl der Personen, Alter: 4, 2 Kindern im Obergeschoss, zwei Zimmer, eigenes Bad. Eltern unten.

Oben ist die alte Grundfläche, ca. 50m2

Büro: Homeoffice?
Schlafgäste pro Jahr: wenige

offene Küche mit Kochinsel
Anzahl Essplätze: 6
Kamin: Leider nicht möglich
Musik/Stereowand: TV, Fernsehecke als reine Fernsehecke à Couch, TV fertig.


Hausentwurf
Von wem stammt die Planung: Architektin MA.
-Architekt: JA
Was gefällt besonders? Warum? Thema ist „leben im Garten“, die nähe zum Garten ist uns wichtig.
Preisschätzung lt Architekt/Planer: Anbau&Ausbau 300.000
Persönliches Preislimit fürs Haus, inkl Ausstattung: 320.000
favorisierte Heiztechnik: Wärmepumpe usw.

Warum ist der Entwurf so geworden, wie er jetzt ist? ZB
Ein Gemisch aus vielen Beispielen aus div. Magazinen...
Was macht ihn in Euren Augen besonders gut oder schlecht?

Was ist die wichtigste/grundlegende Frage zum Grundriss in 130 Zeichen zusammengefasst?
Wie ist der „Lebensraum“ aus Küche, Aufenthalt, TV-Couch zu bewerten? Klappt dass?
 
Y

ypg

Bitte fülle den angepinnten Fragebogen aus und zeige den IST-Zustand sowie den Sollzustand aller Geschosse.
Und bitte die eingestellten Dateien in lesbarer Größe.
Danke.
Huhu, danke für die Rückmeldungen. Wo ist der "angepinnte Fragebogen"?
Siehe zb #8 oder einfach im Forum…
Und bitte alle Infos einstellen.
Erfahrungsgemäß ist ein Thread, wo man auf 2 Seiten nicht auf die wichtigsten Infos eingehen kann, verbrannt.

Edit: muss man _alles_ in Grossschrift setzen? Oder sind die Sätze auch so klar?… WIR KENNEN DAS HAUS NICHT!
 
kbt09

kbt09

Erfahrungsgemäß ist ein Thread, wo man auf 2 Seiten nicht auf die wichtigsten Infos eingehen kann, verbrannt.
Jetzt klickern wir hier wieder zwischen den Seiten hin und her, weil es dir nicht gelingt, in dem Beitrag mit dem Fragebogen auch noch die Grundrisse einzubinden ... sorry, so bringt es keinen Spaß. Ich frage mich immer, warum Forenkultur so den Berg runter läuft. Jeder denkt, man kann jede Frage einfach mal so los werden. Keiner macht sich die Mühe, in einem Forum erstmal etwas zu lesen, zu sehen, wie am besten man seinen Fragenkomplex los wird. Manchmal denke ich, es sollte einen Führerschein für Computer- und Internetnutzung geben ;).
 
Zuletzt aktualisiert 03.12.2025
Im Forum Grundrissplanung / Grundstücksplanung gibt es 2545 Themen mit insgesamt 88197 Beiträgen


Ähnliche Themen zu Bitte um Rückmeldung zu unserem Grundriss
Nr.ErgebnisBeiträge
1Wir planen einen Anbau - Seite 324
2Entwurf für Anbau/Umbau von Einfamilienhaus zu ZFS 17
3Grundrissfindung für Anbau 70er Jahre Bungalow - keine Aufstockung gewünscht 25
4Eckgrundstück mit Einliegerwohnung - Seite 19119
5Ideen Grundrissanpassung Haus mit Anbau am Westhang 13
6Stadtvilla ca 200qm mit Anbau 35
7Anbau an Altbau von 1965 mit Aufstockung 43
8Anbau für 4 köpfige Familie am Waldrand 24
9Planung Anbau für Haus der 60er - Seite 567
10Geplanter Anbau! Grundrissentwurf ok? Erfahrungen? 19
11Grundrissänderung Wohnung plus Anbau - Seite 318
12Grundriss-Ideen Einfamilienhaus als Anbau mit 3 Kinderzimmern und Büro - Seite 235
13Anbau-Planung / Änderung 72
14Planung Wohnraum & Küche eines Doppelhaushälfte in Nürnberg 13
15Probleme bei der aufteilung Küche, Essen , Wohnen - Seite 216
16Esstisch in einer kleinen Küche 49
17Grundrissplanung Wohnzimmer-Küche 18
18Garten-Landschaftsbauer Angebot ok oder doch eher total überzogen? - Seite 7103
19Bestandshaus umbauen - Mehr Platz für Küche und Bad - Ideen? - Seite 220
20Standort Küche und Wohnzimmer 55

Oben