Baulast umgehen durch alternative Platzierung des Bauvorhabens?

4,70 Stern(e) 3 Votes
Zuletzt aktualisiert 21.11.2025
Sie befinden sich auf der Seite 2 der Diskussion zum Thema: Baulast umgehen durch alternative Platzierung des Bauvorhabens?
>> Zum 1. Beitrag <<

E

Escroda

Der Geräteschuppen wird ein befestigter Hobbyraum (Fundament, Steinwände).
Das sieht in Deiner Bauzeichnung aber anders aus. Ein Hobbyraum löst außerdem immer Abstandsflächen aus.
Wir wollten ihn ungern im Garten platzieren.
Tja, und die Nachbarn wollen ungern eine Baulast übernehmen. Also Durchgang weglassen, Carport 7m breit, 6m lang, Fahrradgeräteraum 7m breit, 3m lang. Alternativ kann man auch den Raum für die Hobbygeräte und/oder den Fahrradraum in den Grenzabstand zum anderen Nachbarn setzen.

Edit: Es gibt nicht nur Abstandsflächenbaulasten sondern auch Anbaubaulasten; dann kann auch der Nachbar von einer längeren Grenzbebauung profitieren.
 
J

JayBee_1985

Zeigt doch mal den ganzen Hausentwurf. Ich hege den begründeten Verdacht, der Planer könne bei mehr als nur der Interpretation der Baulast verpeilt sein. Ich sehe die Baulast im übrigen auch nicht erst am dem zehnten Meter greifend.
Sehr gerne!

Bild 1, Ursprüngliche Planung
Bild 2, Wunschvorstellung mit Ausnahme, dass das Carport 5m lang werden soll, anstatt der hier geplanten 4m.

Grundriss eines Einfamilienhauses mit Terrasse, Carport, Zufahrt und Maßlinien


Grundriss: Carport/Nebenanlage mit Eingängen, Grenze, Baulast, Maßangaben (1:100).
 
J

JayBee_1985

Das sieht in Deiner Bauzeichnung aber anders aus. Ein Hobbyraum löst außerdem immer Abstandsflächen aus.

Edit: Es gibt nicht nur Abstandsflächenbaulasten sondern auch Anbaubaulasten; dann kann auch der Nachbar von einer längeren Grenzbebauung profitieren.
Stimme ich vollkommen zu! Es sei wohl „erstmal egal“ wie die Nebenanlage skizziert wird.

die Anbaulast klingt interessant. Muss denn mein Nachbar auf ganzer Länge dort anbauen? Oder kann er nur einen Teilabschnitt anbauen und ist somit seiner Pflicht nachgekommen? Die Nachbarn planen ebenfalls ein Carport an der Baugrenze aufzustellen.




Ich meinte mitnichten nur den Lageplan.

Ich würde never ever einen Carport nach der Kürze des aktuellen Kleinwagens planen.
Das ist auch auf keinen Fall unsere Absicht!

Grundriss Carport/Nebenanlage 1:100 mit Carport, Geräteraum, Fahrrad-Abstellplatz und Müllplatz


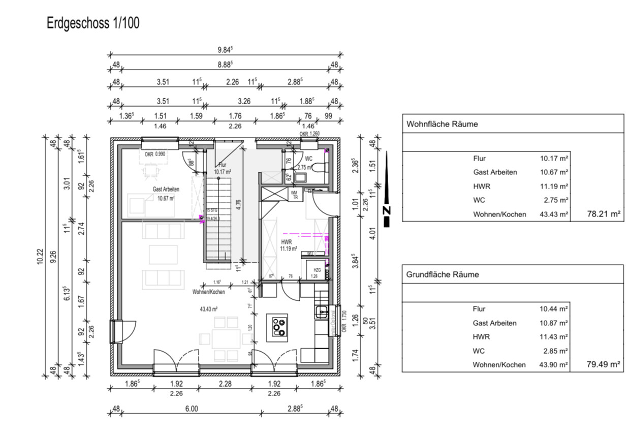
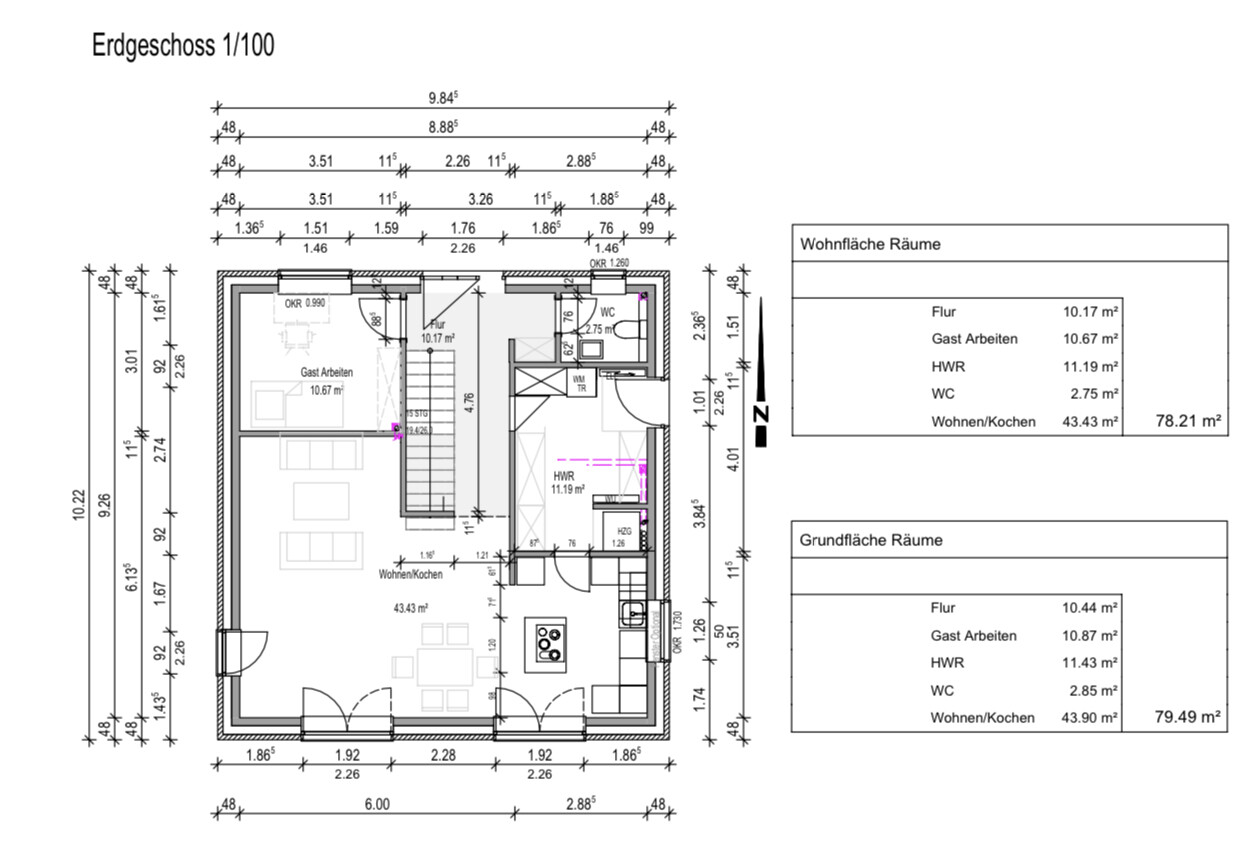
Erdgeschoss-Grundriss: Flur, Wohnen/Kochen, Gast Arbeiten, HWR, WC, Treppe.


Technische Zeichnung eines Satteldachhauses: Ost- und West-Ansicht mit Fenstern, Tür, Zaun und Maßen.


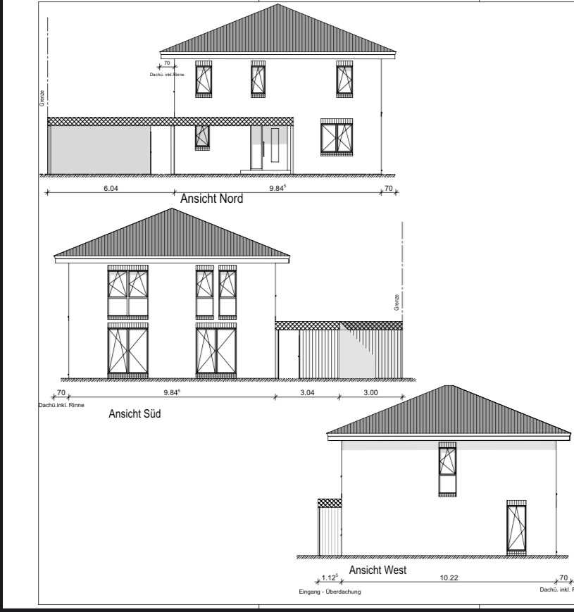
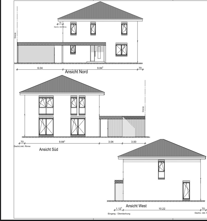
Zweistöckiges Haus mit Satteldach; Ansichten Nord, Süd und West.


Architektur-Schnitt durch ein mehrstöckiges Haus mit Treppe, Dachneigung und Maßangaben
 
E

Escroda

die Anbaulast klingt interessant.
Leider muss ich Dich gleich wieder enttäuschen, denn - vorbehaltlich der Kenntnis des vollständigen Bebauungsplans - zeigt Dein Anhang in #9 ein Baufenster mit allseitigem Grenzabstand. Ohne zusätzliche Befreiung vom Bebauungsplan sehe ich daher keine Chance, die 9m Grenze zu überschreiten. Übrigens auch nicht mit der Abstandsflächenbaulast, da §23, Abs. 5 Baunutzungsverordnung nur abstandsflächenlose Anlagen außerhalb der überbaubaren Fläche zulässt.
Falls Deine Baugenehmigungsbehörde eine Bauherrenberatung anbietet, empfehle ich die Vorstellung Deiner Pläne. Manche Behörden sind recht flexibel, manche sind nur auf Widerstand programmiert. Wie gedenkt Dein Planer Deine Wünsche zu erfüllen?

Edit: Ein Caddy ist mindestens 4,40m lang.
 
Zuletzt aktualisiert 21.11.2025
Im Forum Bauland / Baurecht / Baugenehmigung / Verträge gibt es 3159 Themen mit insgesamt 42905 Beiträgen


Ähnliche Themen zu Baulast umgehen durch alternative Platzierung des Bauvorhabens?
Nr.ErgebnisBeiträge
1Carport bauen. Statt Holzpfosten, Flacheisen möglich? - Seite 212
2Garage verlängert bzw. zusätzlichen Carport 10
3Bauen ohne Keller - Carport, Garage? - Seite 318
4Platzierung Stellplätze / Carport auf dem Grundstück 42
5Haus / Carport mit L-Steinen oder gibt es bessere Alternativen? - Seite 321
6Ist mein geplanter Carport noch Genehmigungsfrei? - Seite 321
7Baulast trotz Widmung möglich? 18
8Baulast für Garage eintragen - Vorteile / Nachteile? 15
9Baulast nachträglich auf das eigene Grundstück eintragen? 13
10Brauchts für Carport und Gerätehäuschen auch Baugenehmigung? 13
11Neubau Einfamilienhaus inkl. Carport und Garage - Reale Kostenschätzung? 11
12Kosteneinschätzung: Fertighaus, Keller, Carport, Einzelgarage 10
13Grenzbebauung Doppelgarage/Carport 6x9m Niedersachsen 29
14Doppelgarage massiv vs. Fertiggarage vs. Carport 46
15Carport mit Geräteraum: Bestellen oder selbst bauen? 10
16Carport aus Aluminium - Seite 229
17Carport mit Terrassendach gleich kombinieren - Rechtlich 13
18Carport aus dem Baumarkt? - Seite 636
19Garage genehmigt, aber Carport gebaut 23
20Bebaute Fläche: Gehören Garage / Carport zur bebauten Fläche? 19

Oben