Hallo,
vielleicht hat jemand noch einen guten Vorschlag für unser Bad.
Problem: wir möchten unbedingt eine große Wanne (190x90), da mein Mann sonst gar nicht rein passt. Außerdem haben wir eine Dusche geplant mit 140x100 zum reingehen. Die 2 Sachen sind uns wichtig. Nun wird es schon recht eng und WC + waschbecken sollen ja auch noch Platz haben. Das Waschbecken sollte Standard sein (so um die 60-65) und WC sowieso.
Die Zeichnerin hat ein überdimensionales Waschbecken eingezeichnet und eine Konsole dahinter. Dadurch wird der Platz auf dem Klo sehr schmal und man kann sich kaum noch drehen, wenn man drauf sitzt. Meine Überlegung war, die Konsole an die Längsseite der Wanne zu machen, dann wird der Platz für's Waschbecken aber immer knapper.
Ganz ohne Ablage ist aber auch schlecht. Wir haben schon darüber nachgedacht, Nischen in die Wand (Trockenbauwand) einzulassen.
Hat jemand noch ne Idee? Oder sollen wir komplett umplanen? 😕

vielleicht hat jemand noch einen guten Vorschlag für unser Bad.
Problem: wir möchten unbedingt eine große Wanne (190x90), da mein Mann sonst gar nicht rein passt. Außerdem haben wir eine Dusche geplant mit 140x100 zum reingehen. Die 2 Sachen sind uns wichtig. Nun wird es schon recht eng und WC + waschbecken sollen ja auch noch Platz haben. Das Waschbecken sollte Standard sein (so um die 60-65) und WC sowieso.
Die Zeichnerin hat ein überdimensionales Waschbecken eingezeichnet und eine Konsole dahinter. Dadurch wird der Platz auf dem Klo sehr schmal und man kann sich kaum noch drehen, wenn man drauf sitzt. Meine Überlegung war, die Konsole an die Längsseite der Wanne zu machen, dann wird der Platz für's Waschbecken aber immer knapper.
Ganz ohne Ablage ist aber auch schlecht. Wir haben schon darüber nachgedacht, Nischen in die Wand (Trockenbauwand) einzulassen.
Hat jemand noch ne Idee? Oder sollen wir komplett umplanen? 😕
B
Bauexperte14.08.13 10:41Hallo,
"Handtuchheizkörper" ist klar; "HKV soll ein Heizkörper sein?
Grüße, Bauexperte
"Handtuchheizkörper" ist klar; "HKV soll ein Heizkörper sein?
Grüße, Bauexperte
Bauexperte schrieb:
Hallo,"Handtuchheizkörper" ist klar; "HKV soll ein Heizkörper sein?Grüße, BauexperteHandtuchheizkörper und Heizkreisverteilung. B
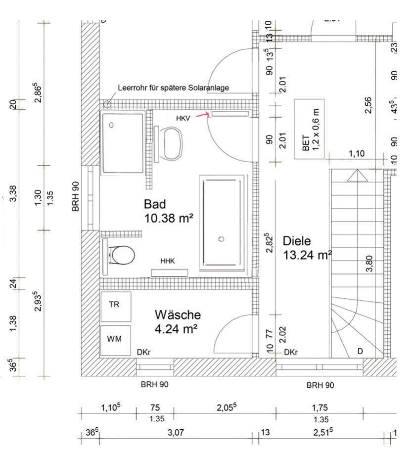
Bauexperte14.08.13 11:15Hallo,
So ähnlich, wie im angehängten Bild haben wir zuletzt ein Bad gebaut. Btw. auf die "Konsole", welche Du beschreibst, kannst Du imho nicht verzichten, da die sanitäre Installation als Vorwandmontage verbaut wird. Heißt, sowohl vor der Badewanne, als auch Waschbecken und WC wirst Du diese Ablageflächen wiederfinden.
Die bodentiefe Dusche würde ich auch immer offen lassen. Zum einen fröstelt es Dich dann nicht, wenn Du das Wasser abstellst, zum anderen ist sie leichter sauber zu halten.
Grüße, Bauexperte

kaho674 schrieb:Ah, ok - so groß ist das Teil ja nu auch wieder nicht ... die Innentüre kann also noch ein Stück Richtung nachgelagertem Raum wandern. Alternativ läßt sich die HKV auch zwischen WC und Türe oder den Flur setzen.
Handtuchheizkörper und Heizkreisverteilung.
So ähnlich, wie im angehängten Bild haben wir zuletzt ein Bad gebaut. Btw. auf die "Konsole", welche Du beschreibst, kannst Du imho nicht verzichten, da die sanitäre Installation als Vorwandmontage verbaut wird. Heißt, sowohl vor der Badewanne, als auch Waschbecken und WC wirst Du diese Ablageflächen wiederfinden.
Die bodentiefe Dusche würde ich auch immer offen lassen. Zum einen fröstelt es Dich dann nicht, wenn Du das Wasser abstellst, zum anderen ist sie leichter sauber zu halten.
Grüße, Bauexperte
Ähnliche Themen