Hallo zusammen,
wir sind gerade mit dem Architekten in der Planungsphase.
Am Plan mussten wir schon einige Kompromisse eingehen.
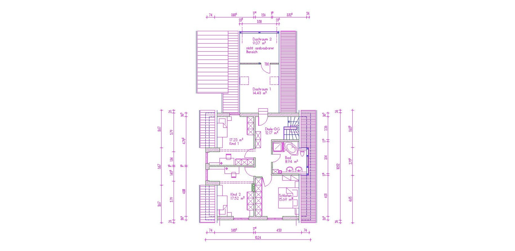
Bspw. hätten wir gerne die Treppe nicht an den Hauseingang gelegt. Dann lässt sich die ausgebaute Garage schlecht erreichen, oder das Bad wird sehr klein.
Gerade sind wir am überlegen, ob Podesttreppe oder halbgewendelte Treppe. Bei der Podesttreppe befürchten wir, dass es an der Einangstüre sehr eng wird.
Was haltet Ihr von dem Plan?
Über Anregungen wären wir sehr dankbar.
Hier die Daten:
Bebauungsplan/Einschränkungen: Satteldach, 45° DN, 50cm Kniestock
Größe des Grundstücks: ca. 800qm
Hang: nein
Anzahl Stellplatz: 2
Geschossigkeit: Keller, EG, OG
Ausrichtung: Firstrichtung N-S
Garage muss laut Bebauungsplan im Norden sein
Garage mit Satteldach
Anforderungen der Bauherren
Stilrichtung, Dachform, Gebäudetyp: wie Bebauungsplan
Raumbedarf im EG, OG: ca. 150qm
Büro: Familiennutzung oder Homeoffice?: Homeoffice
offene Küche, Kochinsel: nein, stattdessen abgeschlossen mit Essecke
Durchgang zum Garten für Fahrräder etc..
Heizung: Gas mit Solarthermie (nach Süden ausgerichtet am Zwerchhaus)
Kontrollierte-Wohnraumlüftung: nein
Dunstabzugshaube mit Abluft
Schwedenofen, evtl. gemauerter Ofen
Großes Ess-/Wohnzimmer
Erschließung des Spitzbodens Garage über OG





wir sind gerade mit dem Architekten in der Planungsphase.
Am Plan mussten wir schon einige Kompromisse eingehen.
Bspw. hätten wir gerne die Treppe nicht an den Hauseingang gelegt. Dann lässt sich die ausgebaute Garage schlecht erreichen, oder das Bad wird sehr klein.
Gerade sind wir am überlegen, ob Podesttreppe oder halbgewendelte Treppe. Bei der Podesttreppe befürchten wir, dass es an der Einangstüre sehr eng wird.
Was haltet Ihr von dem Plan?
Über Anregungen wären wir sehr dankbar.
Hier die Daten:
Bebauungsplan/Einschränkungen: Satteldach, 45° DN, 50cm Kniestock
Größe des Grundstücks: ca. 800qm
Hang: nein
Anzahl Stellplatz: 2
Geschossigkeit: Keller, EG, OG
Ausrichtung: Firstrichtung N-S
Garage muss laut Bebauungsplan im Norden sein
Garage mit Satteldach
Anforderungen der Bauherren
Stilrichtung, Dachform, Gebäudetyp: wie Bebauungsplan
Raumbedarf im EG, OG: ca. 150qm
Büro: Familiennutzung oder Homeoffice?: Homeoffice
offene Küche, Kochinsel: nein, stattdessen abgeschlossen mit Essecke
Durchgang zum Garten für Fahrräder etc..
Heizung: Gas mit Solarthermie (nach Süden ausgerichtet am Zwerchhaus)
Kontrollierte-Wohnraumlüftung: nein
Dunstabzugshaube mit Abluft
Schwedenofen, evtl. gemauerter Ofen
Großes Ess-/Wohnzimmer
Erschließung des Spitzbodens Garage über OG
Hmm, verstehe ich nicht. Die Treppe könnte doch prima ca. mittig sitzen. Die Speisekammer muss zusammen mit einer guten Küchenplanung eh überdacht werden, denn so wie die Küche einskizziert ist, ist sie zunächst mal recht unpraktisch.
Kann die Garage, die ja auf der Grenze steht, überhaupt so ausgebaut werden? Die muss ja dann auch einiges an Höhe haben. Wozu soll dieser Garagenausbau denn dienen?
Kann die Garage, die ja auf der Grenze steht, überhaupt so ausgebaut werden? Die muss ja dann auch einiges an Höhe haben. Wozu soll dieser Garagenausbau denn dienen?
Mir gefällt der dunkle Eingangsbereich nicht - also von außen unter dem Garagendach. Und was mich auch stören würde, dass man immer umständlich um den Esstisch laufen muss, um von der Küche auf die Terrasse zu kommen.
Außerdem wäre mir der Weg zwischen Auto und Speisekammer zu weit. Da sind 4 Türen dazwischen - beim schleppen von Einkaufskörben nicht gerade praktisch.
Die Kücheneinteilung ist auch alles andere als optimal. Der Kühlschrank hinter einer Tür ist da fehlplatziert und die Wege zu Spüle und Herd weit
Im DG könnte der Flur dunkel werden.
Dusche hinter einer Tür, sehe ich in letzter Zeit auch öfters, aber haben wollte ich das nicht. Wenn da einer steht und sich abtrocknet und ein anderer will rein..... Würde da auf alle Fälle die Tür weiter zur Schlafzimmerwand setzen.
Außerdem wäre mir der Weg zwischen Auto und Speisekammer zu weit. Da sind 4 Türen dazwischen - beim schleppen von Einkaufskörben nicht gerade praktisch.
Die Kücheneinteilung ist auch alles andere als optimal. Der Kühlschrank hinter einer Tür ist da fehlplatziert und die Wege zu Spüle und Herd weit
Im DG könnte der Flur dunkel werden.
Dusche hinter einer Tür, sehe ich in letzter Zeit auch öfters, aber haben wollte ich das nicht. Wenn da einer steht und sich abtrocknet und ein anderer will rein..... Würde da auf alle Fälle die Tür weiter zur Schlafzimmerwand setzen.
Erstmal danke für die Kritik!
kbt09:
Eine mittige Treppe würde das Bad im OG nach Norden verschieben. Die geplante Gaube könnte aber nicht in mitwandern, da nach Bebauungsplan ein Abstand von min. 1,5m zum Ortgang eingehalten werden muss. Dadurch würde das Bad in der Dachschräge liegen und an Raum einbüßen.
Mit dem Küchenplan hast du recht. Der ist auch nicht ganz richtig. Ich werde einen aktuellen Entwurf hier beifügen.
Das Garagendach (45° Satteldach) kommt nur über die Doppelgarage und den Durchgang. Der Geräteraum erhält ein "Flachdach".
Manu1976:
Die Flügeltüre im Durchgang bekommt Glaseinsätze, sodass es nicht allzu dunkel im Eingangsbereich werden sollte. Unser Wunsch war ein überdachter Eingang. Ich habe mir auch schon überlegt die Eingangstüre um 30° oder 45° Richtung Straße zu drehen um das ein bisschen aufzulockern. Das würde mich aber ca. 0,5m auf der Ost-Seite kosten. Die müssen erstmal aus den Räumen rausgeschnitten werden..
Ob der Esstisch nun da stehen wird ist offen. Aber es ist richtig, dass man durch das Esszimmer muss.
Der Weg zwischen Garage und Speise/Küche ist fast nicht zu ändern. Außer man tauscht Wohnzimmer mit Küche, aber das wollten wir nicht.
Der Flur im DG erhält ein Dachfenster im Treppenbereich und eine Türe mit Ornamentglas im Bad.
Die Türe im Bad wird noch verschoben. Das sehen wir auch so.

kbt09:
Eine mittige Treppe würde das Bad im OG nach Norden verschieben. Die geplante Gaube könnte aber nicht in mitwandern, da nach Bebauungsplan ein Abstand von min. 1,5m zum Ortgang eingehalten werden muss. Dadurch würde das Bad in der Dachschräge liegen und an Raum einbüßen.
Mit dem Küchenplan hast du recht. Der ist auch nicht ganz richtig. Ich werde einen aktuellen Entwurf hier beifügen.
Das Garagendach (45° Satteldach) kommt nur über die Doppelgarage und den Durchgang. Der Geräteraum erhält ein "Flachdach".
Manu1976:
Die Flügeltüre im Durchgang bekommt Glaseinsätze, sodass es nicht allzu dunkel im Eingangsbereich werden sollte. Unser Wunsch war ein überdachter Eingang. Ich habe mir auch schon überlegt die Eingangstüre um 30° oder 45° Richtung Straße zu drehen um das ein bisschen aufzulockern. Das würde mich aber ca. 0,5m auf der Ost-Seite kosten. Die müssen erstmal aus den Räumen rausgeschnitten werden..
Ob der Esstisch nun da stehen wird ist offen. Aber es ist richtig, dass man durch das Esszimmer muss.
Der Weg zwischen Garage und Speise/Küche ist fast nicht zu ändern. Außer man tauscht Wohnzimmer mit Küche, aber das wollten wir nicht.
Der Flur im DG erhält ein Dachfenster im Treppenbereich und eine Türe mit Ornamentglas im Bad.
Die Türe im Bad wird noch verschoben. Das sehen wir auch so.
Hat der Architekt das mit dem Satteldach und dem Raum über der Garage auf der Grundstücksgrenze abgesegnet?
Da wirst du doch höher als 300 cm - oder?
In der Küche ein G und dann noch einen Sitzplatz für 4 Personen und das alles auf ca. 470 cm Breite ... hmm, das wird ja eng. Und Manus Argumente mit dem Weg zur Terrasse aus der Küche heraus sind auch nicht von der Hand zu weisen.
Jetzt liegen im Bad doch auch BEreiche innerhalb der Dachschräge. Und, was soll denn nun im Raum über der Garage passieren?
Ich denke, da muss man vielleicht nochmal neu ansetzen.
Da wirst du doch höher als 300 cm - oder?
In der Küche ein G und dann noch einen Sitzplatz für 4 Personen und das alles auf ca. 470 cm Breite ... hmm, das wird ja eng. Und Manus Argumente mit dem Weg zur Terrasse aus der Küche heraus sind auch nicht von der Hand zu weisen.
Jetzt liegen im Bad doch auch BEreiche innerhalb der Dachschräge. Und, was soll denn nun im Raum über der Garage passieren?
Ich denke, da muss man vielleicht nochmal neu ansetzen.
Ähnliche Themen