140m2 Stadtvilla Grundrissplanung

4,40 Stern(e) 5 Votes
Zuletzt aktualisiert 13.10.2025
Sie befinden sich auf der Seite 3 der Diskussion zum Thema: 140m2 Stadtvilla Grundrissplanung
>> Zum 1. Beitrag <<

Y

ypg

Dann braucht man hier ehrlich gesagt auch gar nicht weitermachen.

Zudem hast Du Dein Profil gerade so eingeschränkt, dass man auf den anderen Thread nicht mehr zugreifen kann. Das macht mich wütend.
Es macht so einfach keinen Spaß, es fehlen grundlegende Informationen.
Was denkt man sich dabei, so einen Beitrag zu erstellen, und sich immer wieder Grundinformationen aus der Nase ziehen zu lassen, wenn es sie denn überhaupt gibt.
Ich bekomme hier keine Kohle für meine Hilfe. Insofern werde ich mir nach 3 leeren Beiträge jedes Threads, palimpalim-Drumrumgeeiere, auf unsichtbar stellen. Viel Spaß noch!
Ja, genau: mein Vorsatz fürs nächste Jahr: die Fragesteller mit ihren Fragen ohne Infos nicht beachten. Die Zeit besser nutzen!
 
kbt09

kbt09

Wir konnten uns auf Grund der Feiertage noch nicht erkundigen wo die Abwasserschächte liegen und danach richtet sich letztendlich ob das Haus im Osten oder Westen liegen soll.
Und danach soll man nun einen Schnellschuß bewerten ... sorry ... die Frage war im alten Thread schon (ich finde es übrigens auch besonders ätzend, wenn man nicht schauen kann, was ein Threaderöffner sonst schon so geschrieben hat), die Info erfolgt hier nicht, usw.

Ja @ypg, man sollte sich selbst an die Kandarre nehmen und Threads, die schon von Anfang an nicht wenigstens die Infos enthalten, auf die im Kopf des Forums hingewiesen wird, gleich ignorieren ;).
 
11ant

11ant

-Warum ist der Entwurf so geworden, wie er jetzt ist? Grober Entwurf vom Planer nach unseren Vorgaben zur Kostenschätzung
Möglicherweise hast Du meine Frage aus #7 nicht als solche erkannt, daher formuliere ich sie noch´mal neu:

Du hast einen Entwurf von zwei Geschoßgrundrissen bekommen. Offenbar ist der Eindruck nicht nur meiner, daß der Zweck dieses Entwurfes als "Kalkulationsdummy" auch gleich der einzige Zweck ist, dem das darin enthaltene planerische Herzblut gerecht wird.

Man baut ein Haus nicht, um sich darin zu erhängen, sondern um darin "nach Hause zu kommen", und für einen Wohnqualitätsgewinn um eine ganze Oktave gegenüber dem Mieterbleiben.

Für dieses Niveau genügt ein Kalkulationsdummy ganz klar nicht - und daraus ergibt sich eben die Frage: warum sollen wir diesen Entwurf dennoch zum Ausgangspunkt einer Verbesserungsdiskussion hernehmen ?

Da ich so meine fiesen kleinen Großmuttertricks habe, um Threads wiederzufinden, bitteschön @Yvonne&Kerstin: https://www.hausbau-forum.de/threads/welches-Grundstück-wuerdet-ihr-kaufen.29563/
 
Golfi90

Golfi90

Falls es den ein oder anderen doch noch interessieren sollte, hier einmal unsere soweit fertigen Planungen.

Das Haus wird sich, OHNE GARAGE, bei einem Festpreis Schlüsselfertig (incl. Klinkeranteil für 1000€ pro 1000 Stk.,Fliesen für 35€m², Vinyl 30€m², gespachtelt und weiß gestrichen), KFW55, überall Fußbodenheizung, überall el. Rollos, zentrale Kontrollierte-Wohnraumlüftung, Gas-Brennwert-Therme mit Solar für WW und Heizung von 245.000€ liegen.

Anbei ein paar Bilder.

Architekturzeichnung eines modernen Hauses mit Garage, dunklem Dach und Bäumen (Nord-Ost/Süd-West)


Architekturzeichnung zweier Hausansichten: Süd-Ost und Nord-West mit Bäumen.


Grundriss eines Hauses mit Garage, Küche, Wohnbereich und Gartenplan


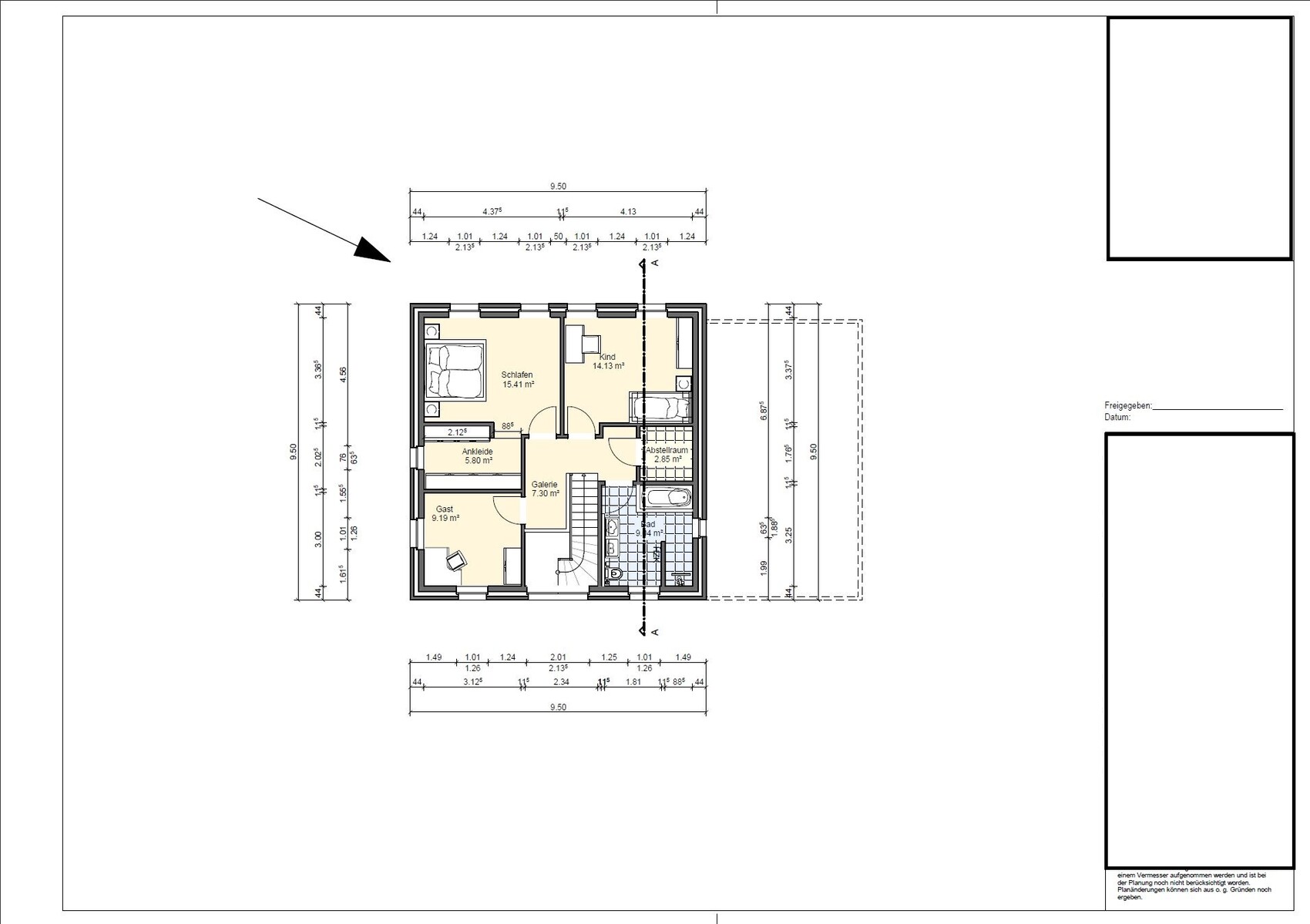
2D-Grundriss eines Mehrzimmer-Hauses mit Schlafzimmer, Gästezimmer, Bad und Treppe
 
Zuletzt aktualisiert 13.10.2025
Im Forum Grundrissplanung / Grundstücksplanung gibt es 2514 Themen mit insgesamt 87293 Beiträgen


Ähnliche Themen zu 140m2 Stadtvilla Grundrissplanung
Nr.ErgebnisBeiträge
1Optimierung Winkelbungalow 108 von Town & Country - Seite 421
2MHW Haas Wohnbau GmbH, Town & Country 45
3Town & Country Bocholt Erfahrungen von Forum 13
4Town & Country Haus in Heilbronn 11
5Town & Country, IBG-Haus, Die Baupartner 24
6Franchisenehmer von Town & Country Karlsruhe Erfahrungen? 11
7Town & Country in WDR-Fernsehen Beitrag 15
8Erfahrungen mit Town & Country in Köln 11
9Erfahrung mit der Matthias Wand Massivhaus GmbH (Town & Country)? 96
10Town & Country Görz GmbH, Rosenheim Wer kennt diesen Bauunternehmer? 15
11Town & Country Franchise Partner Wolfgang Rieche 26
12Town & Country Erfahrungen, Erfahrungsberichte 36
13Reaktion Town & Country normal? 26
14Town & Country in Willich Erfahrungen 11
15Town & Country Außenwand bei Energieeinsparverordnung 2016 Haus ausreichend? 33
16Bungalow 128 Town & Country nach Musterhaus 60
17Town & Country - Rotex Wärmepumpe 12
18Town & Country Flair Grunrissänderungen 24
19Hausbau Town & Country Stadtvilla 152 Kostenplanung 41
20Zusatzkosten Wandstärke Town & Country? 60

Oben