Hausbau - Ratgeber
Bauherrenhilfe
- Bauherrenhilfe vor Vertragsabschluss
-- Warum einen unabhängigen Baubetreuer?
-- Vertragsgrundlagen
-- Bausumme
-- Zahlungsplan zur Kostenkontrolle
-- Pflichten des Bauherren vor Vertragsabschluss
-- Unterlagen beim Hausbau vor Vertragsabschluss
- Bauherrenhilfe nach Vertragsabschluss
-- Bauantrag bei Behörden
-- Bau-Genehmigungsverfahren bei Baubehörden
-- Bauspezifische Versicherungen
-- Bauzeitenplan
-- Baubeginn - die Letzten Pflichten der Bauherrschaft
- Bauherrenhilfe während der Bauzeit
- Gewährleistungsansprüche
- Bauabnahme
Baufinanzierung
- Baufinanzierung - Allgemeine Fragen
- Kreditarten
- Kredit-Konditionen
- Bausparen
- Staatliche Förderungen
- Verkehrswert
- Haushaltsrechnung und Bonität
Hausbau Planung
- Haustypen
- Hausbau Vorbereitungsarbeiten
- Das Baugrundstück
- Baugrund beim Hausbau
- Baurecht
- Gebäudeschutz
- Erdarbeiten und Wasserhaltung
- Stützmauern
- Einfriedung
- Untergeschoss
- Kanalisation
- Tragende Elemente
- Nichttragende Innenwände
- Fundation / Fundament
- Deckenkonstruktionen
- Dächer
- Kaminanlagen
- Treppen Rampen Leitern
- Dachbeläge und Spengler
- Fenster
- Sonnen und Wetterschutz
- Aussenputze
- Einbauten, Küchen, Türen
- Bodenbeläge und Unterlagsböden
- Parkett
- Gips, Wand, Decke
Haustechnik und Energie
- Heiztechnik
- Lüftung und Klimatechnik
- Sanitärtechnik
- Elektrotechnik
- Erneuerbare Energie
Whirlpools / Jacuzzi
Hausbau Magazin
- Baufinanzierung trotz Krise?
- Das Blockhaus
- Moderne Dämmstoffe im Vergleich
- Erker Vor- und Nachteile
- Glasflächen beim Hausbau
- Günstig ein Haus Bauen
- Mediterraner Hausbaustil
- Mehrgenerationenhaus
- Moderne Architektur
- Gartengestaltung leicht gemacht
- Traditioneller Ziegelbau
- Villa als höchster Traum
- Im Eigenheim Ruhestand geniessen
- Altbau sanieren
- Kauf einer Holzgarage
- Immobilienmakler
- Arbeitshandschuhe für den Winter
- Zuhause verschönern
- Outdoor-Plissees
- Schlafzimmer planen
- Terrassenüberdachung
- Wohngebäudeversicherung
- Zaunarten und Eigenschaften
- Hauseingang gestalten
- Der perfekte Grundriss
- Sparsamer heizen im Altbau
- Einfamilienhaus smart finanzieren
- Planung einer PV-Anlage
- Neues Haus
- Immobilienfinanzierung
- Installation einer Photovoltaikanlage
- Asbest erkennen und entfernen
- Gartenpflege im Frühling – worauf achten
- Sauna im Fokus - Wellness zuhause
- Erfolgreich vermieten
- Die perfekte Winterbekleidung
- Das Niedrigenergiehaus
- Der April und seine Stürme
- Architektonische Vielfalt
- Ökologisch und nachhaltig bauen
- Das perfekte Schlafzimmer
- Nachhaltige Energieversorgung
- Zukunftsorientiert bauen
- Nachhaltigkeit beim Hausbau
- Tiny Houses
- Wärmepumpen als nachhaltige Heizvariante
- Maßgeschneiderten Kleiderschrank
- Der richtige Baukredit
- Ratgeber für erfolgreichen Hausbau
- Haus als Altersvorsorge
Do-it-yourself Anleitungen
- Verlegeanleitung für Bodenbeläge und Parkett
- Bodenbeläge und Parkett reinigen und pflegen
- Malerarbeiten am Haus
- Garten Tipps
- Umzug und Reinigung

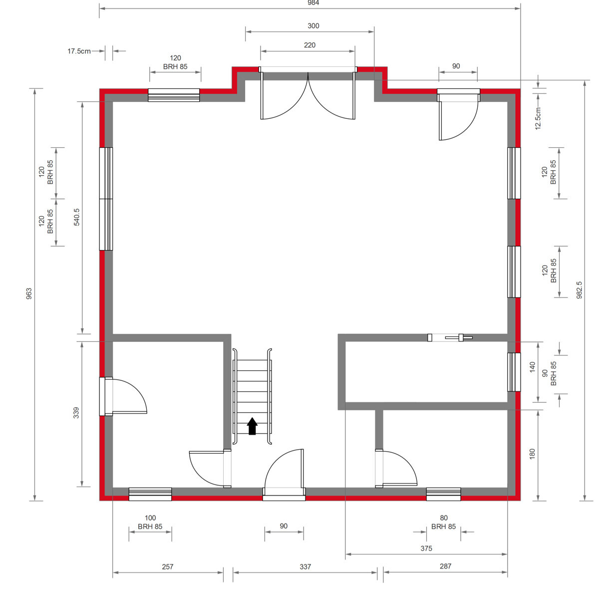
ᐅ 130m2 Haus 1 1/2 geschossig Verhältnis Nutz/Wohnfläche

Erstellt am: 02.07.17 17:26
H
Hausbau83
H
Hausbau83
02.07.17 17:26
Hallo zusammen,
wir sind uns nun schon einig wie unser Haus ungefähr aussehen soll, haben auch bereits einen Grundriss erstellt. Nun stellt sich jedoch die Frage wie groß ist das Haus tatsächlich.
Die eine Hausbaufirma spricht von Nutzfläche die andere von Wohnfläche oder bebaute Fläche.

In unseren Grundriss haben wir die Außenmaße von 9,63 x 9,82.5, ich habe in diesen Grundriss alle Wände abgezogen und zur Wohnfläche zu gerechnet, es soll also 130m2 entsprechen. Trifft das zu? Es erscheint mir etwas groß.

Kann mich da mal jemand aufklären? Uns ist es wichtig das wir den groben Grundriss schon haben, damit wir auch mit einen Preis rechen können.

Danke
Y
ypg
02.07.17 17:40

Grundriss eines Gebäudes: rote Außenwände, graue Innenwände, Türen, Treppen, Fenster.


Ich würde an dieser Skizze gar nichts berechnen oder ansagen wollen, da die Maße, wenn man durchschnittlichen Anspruch ans Wohnen hat, nicht realitätsnah sind. Da wird sich noch ganz viel ändern. Allein die Treppe stammt eher von einer Kinderrutsche, als von einem Einfamilienhaus.

Da Ihr ja ungefähr Eure Wohnvorstellungen schon in Musterhäusern etc. verglichen habt, so ungefähr +- 130qm haben möchtet, sollen die BUs und Häuslebauer an ihren Typenhäusern oder standardisierten Häusern (mehr kann man in der Skizze ja eh nicht sehen, ausser Geratewohl 2-geschossige Stadtvilla mit Walmdach?) errechnen, was Euch so ein Haus kosten wird. Es ist eh das gleiche: 2 Kinderzimmer, Schlafzimmer, Büro, Bad, Gäste-WC, WZ, Ess und Küche plus Hauswirtschaftsraum plus Flure. Im Mittelmaß kostet 1Qm gute 1800€, höherer Standard mehr, dazu Baunebenkosten, Außenanlage und EL sowie Garage/Carport.
Wenn Ihr dann doch 10 qm mehr haben wollt oder das ein oder andere geändert haben, dann kann man das leicht berechnen.
E
Eldea
02.07.17 17:43
Ich schätze eher es wird 150-160 qm, je nach Dachschräge.
Bei zwei Vollgeschosse wären es ja 180 qm
L
Lumpi_LE
02.07.17 18:38
Ein 1,5 Geschosser mit den Außenabmessungen hat grob 120-130 qm Wohnfläche
A
Alex85
02.07.17 19:22
und um die Reihe voll zu machen, ich sage ca. 140qm Wohnfläche.
H
Hausbau83
02.07.17 19:53
Wichtig für mich, was zählt in die Nutzfläche alles mit rein? Nur die reine Raumfläche oder? Die Wände wären logischerweise zusätzliche Fläche (bebaute Fläche)
grundrisswohnflächenutzflächewände