ᐅ Grundrissdiskussion generell / Situation Treppe ins DG / Gauben
Erstellt am: 25.03.26 13:35
P
phibe100525.03.26 13:35Hallo zusammen,
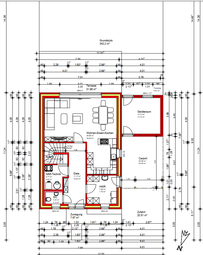
auf Tipp eines Users möchte ich unseren bisherigen Planungsstand freigeben. Wir hadern aktuell mit der Situation der Gauben, bzw. der Treppe ins Dachgeschoss. Aber vorab alle Eckdaten gem. Fragenkatalog.
Bebauungsplan/Einschränkungen
Niedersachsen, Landkreis Emsland
ca. 342,2 qm
keine Hanglage
ca. 130 qm Wohnfläche
zwei Vollgeschosse zzgl Dachgeschoss
Kettenhausbebauung, daher direkte Baugrenzbebauung
1 Stellplatz unter dem Carport, einer vor dem Carport
Satteldach 45 Grad Neigung
Ausrichtung siehe Plan
Traufenhöhe 6 - 6,5 m
Geschosshöhe 10 m
Oberkante des Fertigfußbodens (Oberkante Fertigfußboden) des Erdgeschosses in einer Höhe von mindestens 20,00 m ü. NHN. liegt
Anforderungen der Bauherren
Kettenhaus
ca. 130 qm
offener Wohn- Essbereich mit Küche, ein Büro / Gästezimmer, Elternzimmer, ein Kinderzimmer, Hauswirtschaftsraum, Gäste-WC ohne Dusche
Familie mit einem Kind, zweites Kind in ferner Planung
bei Kind 2 würden wir das Dachgeschoss teilweise ausbauen, um einen weiteren Raum zu schaffen
gelegentliche Schlafgäste (Schlafsofa im Büro
offene Küche
Anzahl Essplätze 6
kein Kamin
keine Musik/Stereowand
kein Balkon, Dachterrasse
Carport
Hausentwurf
Von wem stammt die Planung:
-Planer eines regionalen Bauunternehmers, der Schlüsselfertig baut
Was gefällt besonders? Warum?
--> das Grundstück / die Kettenhausbebauung lässt nicht ganz so viel zu. Die Hauskubatur ist daher einfach, was uns gefällt. Wir möchten ca. 130 qm Wohnfläche. Das war Vorgabe.
Was gefällt nicht? Warum?
Preisschätzung laut Architekt/Planer: 385.000 gem. Standardbaubeschreibung mit voll ausgebauten Dachgeschoss (was vorerst aber gar nicht geplant ist, aber trotzdem verpreist wurde, EXKLUSIVE Carport, Außenanlagen, Maler, Boden, Küche, Photovoltaik, Kontrollierte-Wohnraumlüftung
Uns gefallen die beiden Gauben nicht. Diese werden aktuell für die Höhensituation der Treppe benötigt.
Zudem muss es keine vollwertige Betontreppe sein. Das Dachgeschoss möchten wir perspektivisch für ein zweites Kinderzimmer oder ein Büro nutzen. Ansonsten soll es als Stauraum dienen. Daher können wir uns eine Raumspartreppe vorstellen. Uns fehlen aber die Ideen, wie man das lösen kann.
Preisvorstellung: Wir möchten so weit wie möglich einsparen.
favorisierte Heiztechnik: Luftwärmepumpe mit Fußbodenheizung
Wenn Ihr verzichten müsst, auf welche Details/Ausbauten
-könnt Ihr verzichten: vollwertige Treppe ins DG
-könnt Ihr nicht verzichten: Ausbauoption Dachgeschoss
Vielen Dank für eure Einschätzung und Ideen, wie man die Situations für den Treppenaufgang ins DG verbessern kann.





auf Tipp eines Users möchte ich unseren bisherigen Planungsstand freigeben. Wir hadern aktuell mit der Situation der Gauben, bzw. der Treppe ins Dachgeschoss. Aber vorab alle Eckdaten gem. Fragenkatalog.
Bebauungsplan/Einschränkungen
Niedersachsen, Landkreis Emsland
ca. 342,2 qm
keine Hanglage
ca. 130 qm Wohnfläche
zwei Vollgeschosse zzgl Dachgeschoss
Kettenhausbebauung, daher direkte Baugrenzbebauung
1 Stellplatz unter dem Carport, einer vor dem Carport
Satteldach 45 Grad Neigung
Ausrichtung siehe Plan
Traufenhöhe 6 - 6,5 m
Geschosshöhe 10 m
Oberkante des Fertigfußbodens (Oberkante Fertigfußboden) des Erdgeschosses in einer Höhe von mindestens 20,00 m ü. NHN. liegt
Anforderungen der Bauherren
Kettenhaus
ca. 130 qm
offener Wohn- Essbereich mit Küche, ein Büro / Gästezimmer, Elternzimmer, ein Kinderzimmer, Hauswirtschaftsraum, Gäste-WC ohne Dusche
Familie mit einem Kind, zweites Kind in ferner Planung
bei Kind 2 würden wir das Dachgeschoss teilweise ausbauen, um einen weiteren Raum zu schaffen
gelegentliche Schlafgäste (Schlafsofa im Büro
offene Küche
Anzahl Essplätze 6
kein Kamin
keine Musik/Stereowand
kein Balkon, Dachterrasse
Carport
Hausentwurf
Von wem stammt die Planung:
-Planer eines regionalen Bauunternehmers, der Schlüsselfertig baut
Was gefällt besonders? Warum?
--> das Grundstück / die Kettenhausbebauung lässt nicht ganz so viel zu. Die Hauskubatur ist daher einfach, was uns gefällt. Wir möchten ca. 130 qm Wohnfläche. Das war Vorgabe.
Was gefällt nicht? Warum?
Preisschätzung laut Architekt/Planer: 385.000 gem. Standardbaubeschreibung mit voll ausgebauten Dachgeschoss (was vorerst aber gar nicht geplant ist, aber trotzdem verpreist wurde, EXKLUSIVE Carport, Außenanlagen, Maler, Boden, Küche, Photovoltaik, Kontrollierte-Wohnraumlüftung
Uns gefallen die beiden Gauben nicht. Diese werden aktuell für die Höhensituation der Treppe benötigt.
Zudem muss es keine vollwertige Betontreppe sein. Das Dachgeschoss möchten wir perspektivisch für ein zweites Kinderzimmer oder ein Büro nutzen. Ansonsten soll es als Stauraum dienen. Daher können wir uns eine Raumspartreppe vorstellen. Uns fehlen aber die Ideen, wie man das lösen kann.
Preisvorstellung: Wir möchten so weit wie möglich einsparen.
favorisierte Heiztechnik: Luftwärmepumpe mit Fußbodenheizung
Wenn Ihr verzichten müsst, auf welche Details/Ausbauten
-könnt Ihr verzichten: vollwertige Treppe ins DG
-könnt Ihr nicht verzichten: Ausbauoption Dachgeschoss
Vielen Dank für eure Einschätzung und Ideen, wie man die Situations für den Treppenaufgang ins DG verbessern kann.
H
hanghaus202325.03.26 13:54Was sagt denn der Bebauungsplan zu Dachaufbauten?
3. oder 4. Giebel?
3. oder 4. Giebel?
P
phibe100525.03.26 14:54phibe1005 schrieb:
Standardbaubeschreibung mit voll ausgebauten Dachgeschoss (was vorerst aber gar nicht geplant istJa, aber da Ihr eh für die Böden und Wände zuständig seid, betrifft es die technischen Voraussetzungen. So ganz blöd ist das nicht. Zudem ist dann auch die Genehmigung als Wohnraum gewährleistet und in der Genehmigung mit drin. Später werdte Ihr Euch glücklich schätzen, nicht nochmal an den Innenausbau ranzumüssen.
Emsland ist, nehme ich an, wie Nordniedersachsen generell, eine recht günstige Baugegend.
Zur Treppe generell: es ist ja doch auch im EG möglich, diese weiter nach vorn zu versetzen, wie ich das schon im anderen Thread vorgeschlage habe.
Ist es denn erlaubt, dass der TK-Raum überbaut wird?
Mir persönlich wäre der Entwurf zu langweilig. Die Diele verhältnismäßig groß und ohne weiteren Wert. Ob man jetzt die Seitentür im Hauswirtschaftsraum braucht? Letztendlich wird dort die Wäsche gewaschen, muss man ja nicht noch diesen Raum mit Straßenschuhen begehen, zumindest nicht als Eingang und erweiterten Flur missbrauchen, wenn doch schon ein Flur mit Eingangstür geplant ist.
Anhand des Fragebogens ist leider nichts von Euch preisgegeben. Ich nehme wegen der in weiterer Ferne geplante Familienerweiterung an, dass Ihr noch sehr jung seid.
Habt Ihr keinen weiteren Anspruch als eine schlichte Qm-Zahl an Größe? Es muss ja gar kein besonderer Tagesablauf sein, aber Hobbys, Bedürfnisse der freien Entfaltung in dem Haus?
Ich würde als erstes die Treppe drehen, den Flur einkürzen, eventuell sogar Hauswirtschaftsraum auf die andere Seite legen.
phibe1005 schrieb:
Standardbaubeschreibung mit voll ausgebauten Dachgeschoss (was vorerst aber gar nicht geplant istJa, aber da Ihr eh für die Böden und Wände zuständig seid, betrifft es die technischen Voraussetzungen. So ganz blöd ist das nicht. Zudem ist dann auch die Genehmigung als Wohnraum gewährleistet und in der Genehmigung mit drin. Später werdte Ihr Euch glücklich schätzen, nicht nochmal an den Innenausbau ranzumüssen.
Emsland ist, nehme ich an, wie Nordniedersachsen generell, eine recht günstige Baugegend.
Zur Treppe generell: es ist ja doch auch im EG möglich, diese weiter nach vorn zu versetzen, wie ich das schon im anderen Thread vorgeschlage habe.
Ist es denn erlaubt, dass der TK-Raum überbaut wird?
Mir persönlich wäre der Entwurf zu langweilig. Die Diele verhältnismäßig groß und ohne weiteren Wert. Ob man jetzt die Seitentür im Hauswirtschaftsraum braucht? Letztendlich wird dort die Wäsche gewaschen, muss man ja nicht noch diesen Raum mit Straßenschuhen begehen, zumindest nicht als Eingang und erweiterten Flur missbrauchen, wenn doch schon ein Flur mit Eingangstür geplant ist.
Anhand des Fragebogens ist leider nichts von Euch preisgegeben. Ich nehme wegen der in weiterer Ferne geplante Familienerweiterung an, dass Ihr noch sehr jung seid.
Habt Ihr keinen weiteren Anspruch als eine schlichte Qm-Zahl an Größe? Es muss ja gar kein besonderer Tagesablauf sein, aber Hobbys, Bedürfnisse der freien Entfaltung in dem Haus?
Ich würde als erstes die Treppe drehen, den Flur einkürzen, eventuell sogar Hauswirtschaftsraum auf die andere Seite legen.
Ich sehe ein absolut ungelenk geplantes Haus und vermute, daß der GU es aus seiner Schonimmerso-Schublade gezogen und lediglich einen halben Meter "länger" gemacht hat.
Ganz ehrlich: ich würde hier überhaupt nichts ändern, sondern den Entwurf komplett in die Tonne kloppen. Wenn Euch tatsächlich ein 130 qm Haus genügt - was ich absolut vernünftig finde - dann baut doch auch konsequent ein 130 qm Haus, anstatt in einem an 160 qm Haus etwa ein Wohnzimmer-Flächenbudget auf übertriebene Burgmauern (wird EH40 gefordert, wofür Steinern oft nur Brute Force "einfällt" ?) zu verschwenden !
Hier wird ein eigentlich angemessenes Eigenheim (Wohnflächenklasse "Bescheiden plus") mit fetten Außenwänden und einem großzügigen Heuboden als Überabstellraum überladen. Die Treppenlage wäre für ein Haus dieser Breite genau richtig, wenn - ja, wenn ! - die Firstlage des Nebenfirstes diejenige des Hauptfirstes wäre.
Außer dieser Fehlkonzeption erzwingt nichts diesen ersten Quergiebel, und der zweite dient nur die Sümmetriehliebe. Das Alter von K1 (und mit welchem Abstand Ihr K2 nachschieben wollt) zu wissen wäre hilfreich. Wenn Ihr nicht schon so alt seid, daß im Zusammenhang mit Wunschkindbehandlungen die "Gefahr" besteht, daß aus K2 auch KK2 oder KKK2 werden, dann sehe ich Eure Raumreserven als weitaus zu üppig geraten an. Die eigentlich vernünftige Bemessung der Wohnflächenerwartung wird hier mehrfach und großzügigst überkompensiert: mit der Flächenverschwendung für die Burgmauern und dem regelrechten Großhandel an Raumreserven ibs. in der Scheune on top.
Ist der GU hier auch BT, und bestückt er den ganzen Kettenhausriegel mit seinen Häusern ?
Schaut Euch mal das Standard Doppelhaushälfte Modell der "üblichen Verdächtigen" an, welches ganze zwei und mehr Meter breiter ist (okay, nur fast zwei, wenn man es auf normale Außenwände umrechnet), etwa einen Meter "länger" ist und auf zwei Geradwandgeschossen plus SD35 140/145 qm bietet. Das hat zwar eine ganz andere Treppe, aber die hier gezeigte ist nicht wirklich merklich bequemer, und bietet eine (relativ wie absolut !) entschieden bessere Ausnutzung der teuren Grundfläche.
Wenn Euch eine einfache Kubatur gefällt, dann baut doch auch eine. Diese hier mit dem ich sachma Kreuzdach ist nicht für fünf Pfennig schlicht oder günstig, sondern ineffizient kompliziert (viel Baukosten ohne den geringsten gefühlten Architekturgenußwert, einfach nur teuer, ohne Spesen nichts gewesen).
Falls möglich, schickt außer dem Entwurf auch den Bauunternehmer in die Wüste !
Ihr seid hier übrigens nicht die ersten Kettenhäusler, der ähnlichste Fall ist wohl der von @Mbk84 siehe https://www.hausbau-forum.de/threads/kettenhaus-auf-240qm-Grundstück-grundsatzfragen-machbar.z1r2p1/ und https://www.hausbau-forum.de/threads/erster-grundriss-versuch-fuer-kettenhaus-auf-kleinem-Grundstück.j7z6p7/
https://www.instagram.com/11antgmxde/
https://www.linkedin.com/company/bauen-jetzt/
Ganz ehrlich: ich würde hier überhaupt nichts ändern, sondern den Entwurf komplett in die Tonne kloppen. Wenn Euch tatsächlich ein 130 qm Haus genügt - was ich absolut vernünftig finde - dann baut doch auch konsequent ein 130 qm Haus, anstatt in einem an 160 qm Haus etwa ein Wohnzimmer-Flächenbudget auf übertriebene Burgmauern (wird EH40 gefordert, wofür Steinern oft nur Brute Force "einfällt" ?) zu verschwenden !
Hier wird ein eigentlich angemessenes Eigenheim (Wohnflächenklasse "Bescheiden plus") mit fetten Außenwänden und einem großzügigen Heuboden als Überabstellraum überladen. Die Treppenlage wäre für ein Haus dieser Breite genau richtig, wenn - ja, wenn ! - die Firstlage des Nebenfirstes diejenige des Hauptfirstes wäre.
phibe1005 schrieb:
Uns gefallen die beiden Gauben nicht. Diese werden aktuell für die Höhensituation der Treppe benötigt.
Zudem muss es keine vollwertige Betontreppe sein. Das Dachgeschoss möchten wir perspektivisch für ein zweites Kinderzimmer oder ein Büro nutzen. Ansonsten soll es als Stauraum dienen. Daher können wir uns eine Raumspartreppe vorstellen. Uns fehlen aber die Ideen, wie man das lösen kann.
Außer dieser Fehlkonzeption erzwingt nichts diesen ersten Quergiebel, und der zweite dient nur die Sümmetriehliebe. Das Alter von K1 (und mit welchem Abstand Ihr K2 nachschieben wollt) zu wissen wäre hilfreich. Wenn Ihr nicht schon so alt seid, daß im Zusammenhang mit Wunschkindbehandlungen die "Gefahr" besteht, daß aus K2 auch KK2 oder KKK2 werden, dann sehe ich Eure Raumreserven als weitaus zu üppig geraten an. Die eigentlich vernünftige Bemessung der Wohnflächenerwartung wird hier mehrfach und großzügigst überkompensiert: mit der Flächenverschwendung für die Burgmauern und dem regelrechten Großhandel an Raumreserven ibs. in der Scheune on top.
Ist der GU hier auch BT, und bestückt er den ganzen Kettenhausriegel mit seinen Häusern ?
Schaut Euch mal das Standard Doppelhaushälfte Modell der "üblichen Verdächtigen" an, welches ganze zwei und mehr Meter breiter ist (okay, nur fast zwei, wenn man es auf normale Außenwände umrechnet), etwa einen Meter "länger" ist und auf zwei Geradwandgeschossen plus SD35 140/145 qm bietet. Das hat zwar eine ganz andere Treppe, aber die hier gezeigte ist nicht wirklich merklich bequemer, und bietet eine (relativ wie absolut !) entschieden bessere Ausnutzung der teuren Grundfläche.
phibe1005 schrieb:
Die Hauskubatur ist daher einfach, was uns gefällt.
Wenn Euch eine einfache Kubatur gefällt, dann baut doch auch eine. Diese hier mit dem ich sachma Kreuzdach ist nicht für fünf Pfennig schlicht oder günstig, sondern ineffizient kompliziert (viel Baukosten ohne den geringsten gefühlten Architekturgenußwert, einfach nur teuer, ohne Spesen nichts gewesen).
Falls möglich, schickt außer dem Entwurf auch den Bauunternehmer in die Wüste !
Ihr seid hier übrigens nicht die ersten Kettenhäusler, der ähnlichste Fall ist wohl der von @Mbk84 siehe https://www.hausbau-forum.de/threads/kettenhaus-auf-240qm-Grundstück-grundsatzfragen-machbar.z1r2p1/ und https://www.hausbau-forum.de/threads/erster-grundriss-versuch-fuer-kettenhaus-auf-kleinem-Grundstück.j7z6p7/
https://www.instagram.com/11antgmxde/
https://www.linkedin.com/company/bauen-jetzt/
Ähnliche Themen