ᐅ Grundriss Einfamilienhaus, leichte Hanglage, NW-Ausrichtung
Erstellt am: 23.05.25 18:30
kronos215 schrieb:
kein Freund von freistehenden TV-Wänden. Ist der Platz ausreichend, um grünen Entwurf, die Wand der Speis/Treppe zu nutzen und das Sofa gegenüber zu stellen?würde so aussehen, unter der Treppe nur Speis/AB, im TK auch Wäsche, Terrassentür in der Küche ist nahezu mittig (Erker)
K
kronos21518.03.26 14:44Danke für die Mühe. Wir haben das heute so besprochen. Ich poste die Tage das Ergebnis inkl Änderungen im OG
K
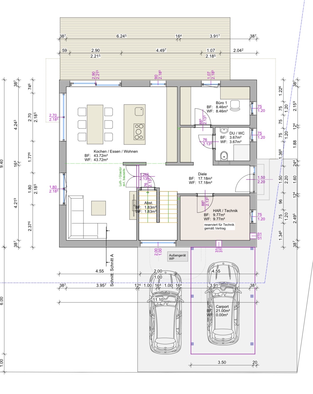
kronos21519.03.26 13:01Hier der neue Entwurf.
Etwas stört mich die Rückansicht. Die Gaube hat leider gezwungenermaßen das breite Fenster verloren. Sieht man hier Alternativen? Die gespiegelte Treppe wollen wir übernehmen, hat es aber nicht mehr in den Entwurf geschafft. Die Kochinsel würden wir wohl an die Außenwand Rücken und neben der Couch an der Außenwand noch ein Fenster platzieren.
Wie ist die allgemeine Kritik zum aktuellen Entwurf? Gibt es Vorteile wenn wir Wohnzimmer und Küche wieder tauschen würden? Sind uns hier unsicher was sich wohnlicher anfühlen würde… Passt der Kamin evtl doch wieder rein? Neben oder als Verlängerung an der Wand mit der Lofttür..?
Die Fenster wurden breiter und der Kniestock erhöht. Das Bauamt hat positive Signale gesendet aber erst die Voranfrage wird klären ob der etwas höhere Kniestock auch durchgeht.



Etwas stört mich die Rückansicht. Die Gaube hat leider gezwungenermaßen das breite Fenster verloren. Sieht man hier Alternativen? Die gespiegelte Treppe wollen wir übernehmen, hat es aber nicht mehr in den Entwurf geschafft. Die Kochinsel würden wir wohl an die Außenwand Rücken und neben der Couch an der Außenwand noch ein Fenster platzieren.
Wie ist die allgemeine Kritik zum aktuellen Entwurf? Gibt es Vorteile wenn wir Wohnzimmer und Küche wieder tauschen würden? Sind uns hier unsicher was sich wohnlicher anfühlen würde… Passt der Kamin evtl doch wieder rein? Neben oder als Verlängerung an der Wand mit der Lofttür..?
Die Fenster wurden breiter und der Kniestock erhöht. Das Bauamt hat positive Signale gesendet aber erst die Voranfrage wird klären ob der etwas höhere Kniestock auch durchgeht.
kronos215 schrieb:
Die Gaube hat leider gezwungenermaßen das breite Fenster verloren.kronos215 schrieb:
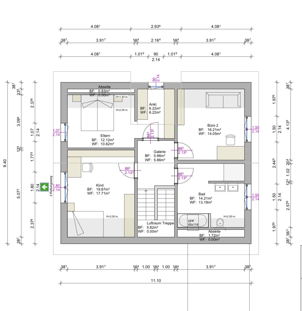
Sieht man hier Alternativen?Nein, für Schränke hast Du keine Alternativen.
kronos215 schrieb:
Sind uns hier unsicher was sich wohnlicher anfühlen würde….. für mich persönlich sehr gut optimiert. Kleinigkeiten fallen durch. Auch Bad hat gewonnen.
Ein Vergleich zu #77 ist für Dich oder Euch hilfreich;)
kronos215 schrieb:
Passt der Kamin evtl doch wieder rein?Ja.
K
kronos21520.03.26 10:00Was mir noch zu denken gibt: wir haben keinen Keller, keine Garage. Ist denn genug Abstellmöglichkeiten gegeben?
Schränke sind viele geplant aber es gibt Gegenstände die finden in Schränken keinen Platz. Als die Vorratskammer noch geplant war war hier genug Platz für größere Küchengeräte, Getränkekisten, Kühltruhe. Diese fällt weg, dafür ist die Küche größer. Allerdings wäre es hier schwierig den Gefrierschrank unterzubringen.
Dann sind mir unsere Fahrräder eingefallen, Winterreifen (8 Stk.) und der Technikraum ist gleichzeitig nicht wahnsinnig groß und beinhaltet schon einige Geräte (WP, zentrale Lüftungsanlage, Photovoltaik, Speicher, Trockner, Waschmaschine, Wäscheständer, ...). Hier wird kaum noch Platz für Reifen, Fahrräder, Gefrierschrank usw. sein. Oder denke ich falsch?
Schränke sind viele geplant aber es gibt Gegenstände die finden in Schränken keinen Platz. Als die Vorratskammer noch geplant war war hier genug Platz für größere Küchengeräte, Getränkekisten, Kühltruhe. Diese fällt weg, dafür ist die Küche größer. Allerdings wäre es hier schwierig den Gefrierschrank unterzubringen.
Dann sind mir unsere Fahrräder eingefallen, Winterreifen (8 Stk.) und der Technikraum ist gleichzeitig nicht wahnsinnig groß und beinhaltet schon einige Geräte (WP, zentrale Lüftungsanlage, Photovoltaik, Speicher, Trockner, Waschmaschine, Wäscheständer, ...). Hier wird kaum noch Platz für Reifen, Fahrräder, Gefrierschrank usw. sein. Oder denke ich falsch?