Zugang von der Garage in den Hauswirtschaftsraum

4,40 Stern(e) 5 Votes
Zuletzt aktualisiert 19.11.2025
Sie befinden sich auf der Seite 8 der Diskussion zum Thema: Zugang von der Garage in den Hauswirtschaftsraum
>> Zum 1. Beitrag <<

F

Fleckenzwerg

Bei uns ist der Weg von Garage zur Haustür schon länger:


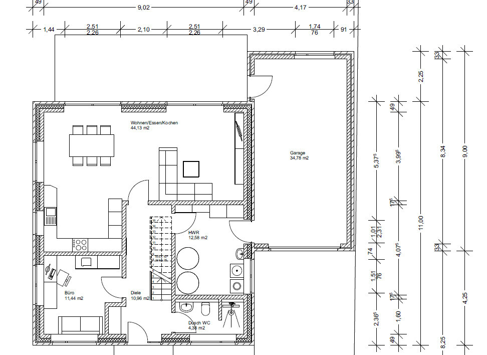
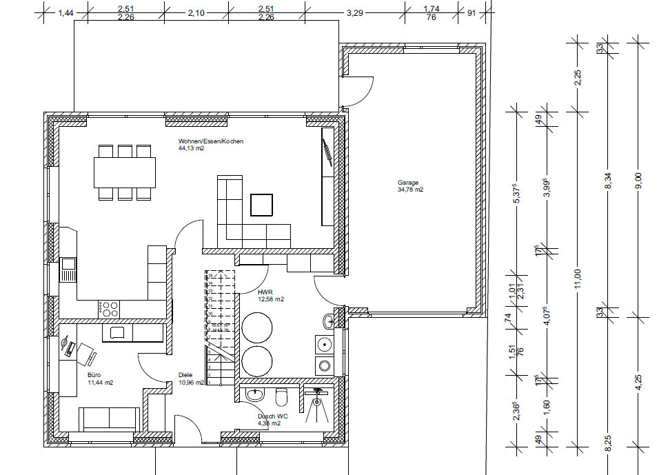
Beschreibung des Grundrisses: Offener Wohn-/Ess-/Kochbereich, Büro, Diele, HWR, Dusche/WC und Garage.


Aber wie bereits gesagt, ob das wirklich so genutzt wird wie gedacht, ist eine Alltags/Gewohnheitsfrage und das wird man merken, wenn man mind. 1 Jahr (alle Jahreszeiten einmal mitgemacht) drin ist.

Grundriss: Wohnen/Essen/Kochen, Büro, Diele, HWR, Dusche/WC, Garage.
 
11ant

11ant

Würdet ihr aus Gründen der Geräuschdämmung unten alle Wände aus KalkSandStein planen. Die Wand der Küche/Hauswirtschaftsraum macht mir zB noch etwas Sorgen (Thema Hängeschränke etc.)
Nicht wegen der Hängeschränke, Dübel gibt es vom Erfinder des Blitzwürfels für alles woraus man Wände bauen kann, aber: bei Dir steht im EG-Grundriss ja für alle nichttragenden Wände "Trockenbau" - das erscheint mir als Aprilscherz, an was für einen Billigheimer bist Du denn da geraten ?
Ich nähme da eher Gipsdielen, aber mit Kalksandstein machst Du auch nichts verkehrt.
 
S

SebastianH.

Nicht wegen der Hängeschränke, Dübel gibt es vom Erfinder des Blitzwürfels für alles woraus man Wände bauen kann, aber: bei Dir steht im EG-Grundriss ja für alle nichttragenden Wände "Trockenbau" - das erscheint mir als Aprilscherz, an was für einen Billigheimer bist Du denn da geraten ?
Ich nähme da eher Gipsdielen, aber mit Kalksandstein machst Du auch nichts verkehrt.
Wie gesagt ich bin nicht vom Fach. An unser Wunschgrundstück ist der Bauträger gekoppelt.
Die Frage ist ob wir jetzt alles umschmeißen sollen aufgrund deiner Aussage?? Der Antrag liegt beim Bauamt vor und wir waren eigentlich zufrieden. Nun klingt es eher nach "um Gottes Willen was habt ihr da gemacht"
 
11ant

11ant

Die Frage ist ob wir jetzt alles umschmeißen sollen aufgrund deiner Aussage?? Der Antrag liegt beim Bauamt vor und wir waren eigentlich zufrieden. Nun klingt es eher nach "um Gottes Willen was habt ihr da gemacht"
So weit kommt es noch, daß wegen meinem Geschwätz jemand die Welt anhält. Nein, keine Panik, nur nochmal kritisch die Leistungsbeschreibung lesen. Wenn die tragende Wand im EG aus Kalksandstein ist, nähme ich die anderen auch so, ansonsten wären mir da Gipsdielen ebenso gut. Die zu verarbeiten, sind Geschoßwohnungsbauer allerdings geübter als Einfamlienhausbauer.
 
Zuletzt aktualisiert 19.11.2025
Im Forum Garage / Carport gibt es 598 Themen mit insgesamt 6009 Beiträgen


Ähnliche Themen zu Zugang von der Garage in den Hauswirtschaftsraum
Nr.ErgebnisBeiträge
1feuchte Wände an Terrassentüren und Haustür - Seite 211
2Wände aus Styrodur oder Styropor? 10
3Was muß man beim Wände entfernen/versetzen beachten? 10
4Wände Neubau Einfamilienhaus, EG verlaufen schief, Fehlerbehebung Baumangel 19
5Wände vor den Fußböden fliesen? 11
6Wände im Neubau verputzen oder Vlies? 16
7Kosten für Innenausbau Bodenbeläge, Wände, Decken - Seite 224
8Grundrissänderung - Tragende Wände in Wohnung. Was tun? 14
9Garagenbau aus Beton! 3 Wände oder Hausanbau? Was meint ihr? 26
10Wände neu verputzen/verkleiden (mit Fotos) 12
11Mythos?! "Atmende Wände" Was ist dran? 54
12Wände Malervlies / Decke Kalkfarbe? 22
13Elektroosmose, um feuchte Wände zu sanieren 11
14Q2 Wände verputzen mit Rollputz oder andere Empfehlung? 27
15Dekorfliesen - 3d Fliesen - zeigt her eure besonderen Wände - Seite 234
16Fliesenmuster Wände im Badezimmer - Seite 326
17Verständnisfrage: Satteldach - tragende Wände - Grundriss 11

Oben