Zugang von der Garage in den Hauswirtschaftsraum

4,40 Stern(e) 5 Votes
Zuletzt aktualisiert 05.10.2025
Sie befinden sich auf der Seite 7 der Diskussion zum Thema: Zugang von der Garage in den Hauswirtschaftsraum
>> Zum 1. Beitrag <<

S

SebastianH.

War auch gar nicht negativ gemeint, mir haben die Diskussionen hier auch schon an der einen oder anderen Stelle geholfen. Wollte es dir nur noch mal bildlich darstellen.

Zu deinem ursprünglichen Gedanken: du musst trotzdem zwei Türen öffnen - ob Haustüre+Tor oder 2x Innentüre, da hast du aus meiner Sicht nichts gewonnen. Das Garagentor könntest du sogar von innen mit einem Taster öffnen, bevor du dir die Schuhe angezogen hast. Und wenn du die Haustüre öffnest, ist das Garagentor bereits offen.

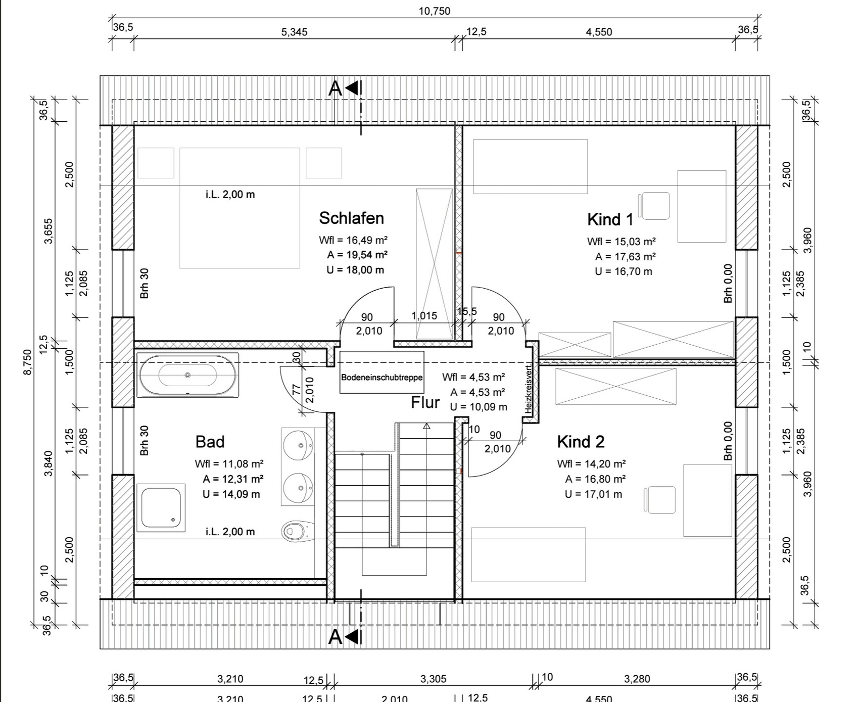
Jetzt bin ich neugierig, wie sieht denn der Grundriss im OG aus?
Bitte sehr.
Grundriss eines Wohnhauses: Schlafzimmer, Bad, Flur, Kind 1 und Kind 2 (Obergeschoss)
 
P

pagoni2020

Rein von der Befestigungsmöglichkeit gesehen ist Trockenbau problemlos möglich, nur dass dann betreffende Seiten doppelt bzw. anders beplankt werden sollten für Hängeschränke etc.
Das Thema Geräuschentwicklung muss je nach Lebens-/Wohnsituation betrachtet werden bzw. nach dem eigenen Empfinden was bzw. ab wann Dich etwas stört. Zudem wird Schall ja nicht nur durch die Wand befördert.
Mit Kalksandstein ist es gut mit gedämmtem Trockenbau genauso.
 
S

SebastianH.

Rein von der Befestigungsmöglichkeit gesehen ist Trockenbau problemlos möglich, nur dass dann betreffende Seiten doppelt bzw. anders beplankt werden sollten für Hängeschränke etc.
Das Thema Geräuschentwicklung muss je nach Lebens-/Wohnsituation betrachtet werden bzw. nach dem eigenen Empfinden was bzw. ab wann Dich etwas stört. Zudem wird Schall ja nicht nur durch die Wand befördert.
Mit Kalksandstein ist es gut mit gedämmtem Trockenbau genauso.
Ist KalkSandStein teurer als die von dir angesprochene gedämmte Trockenbau Variante?
 
Zuletzt aktualisiert 05.10.2025
Im Forum Garage / Carport gibt es 597 Themen mit insgesamt 6008 Beiträgen


Ähnliche Themen zu Zugang von der Garage in den Hauswirtschaftsraum
Nr.ErgebnisBeiträge
1Innenwände aus Trockenbau oder gemauert? - Seite 218
2Risse Trockenbau nach wenigen Monaten 15
3Innenwände Mauern oder Trockenbau? - Seite 217
4Massivhaus oder Trockenbau? 10
5Trockenbauwand mit Ziegelbauweise / Trockenbau Eigenschaften 14
6Begehbare Dusche, Trockenbau oder lieber mauern, alternativ Glaswand 20
7Trockenbau Vorratsraum / Hobbyraum, Tipps 69
8Porenbeton oder Poroton oder Kalksandstein? 10
9Außenwand Ziegel + Innenwände Kalksandstein 10
10Neubau Einfamilienhaus (KFW70)/Porenbeton vs. Kalksandstein/was verbauen? 71
11Kalksandstein 13
12Neubau mit Kalksandstein + WDVS - Kritik?! - Seite 232
13Kalksandstein, ähnliches oder Ytong? 12
14Außenwände Porenbeton, Innenwände Kalksandstein - Ja oder nein? 11
15Preisunterschied Kalksandstein - Porenbeton Innenwände 10
16Porenbeton oder Kalksandstein mit WDVS aus Polystyrol - Seite 229
17Kalksandstein vs. Bims für das Mauerwerk? 16
18Garage aus Kalksandstein oder Ytong - Seite 232
19Kalksandstein + WDVS, Ytong oder Kalksandstein 2 Schalig 14
20Innenwände aus Poroton oder Kalksandstein? 18

Oben