Guten Tag,
ich wende mich hier ans Forum um mittlerweile eine dritte Meinung einzuholen. Ich würde gerne im Zuge einiger Umbau arbeiten eine Wand in meinem Gebäude entfernen. Das Gebäude ist ca. von 1950. Wandstärke 11,5 cm. Ein befreundeter Maurermeister sagte mir das sei kein Problem eine 11,5 er Wand könne ich raus holen. Im 1.OG befindet sich eine Wand über dieser Wand, jedoch ist nochmal in Balken genau unter dieser. Die zu entfernende wand ist im Keller nicht vorhanden und geht nicht ins Fundament.
Auf dem einem Bild habe ich eine kleine Öffnung gemacht um zu sehen das ein Balken darüber ist, der in der Theorie die wand im OG stützen sollte.
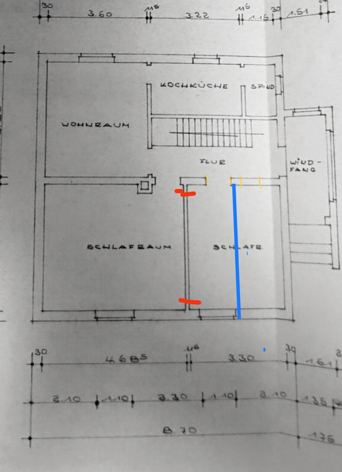
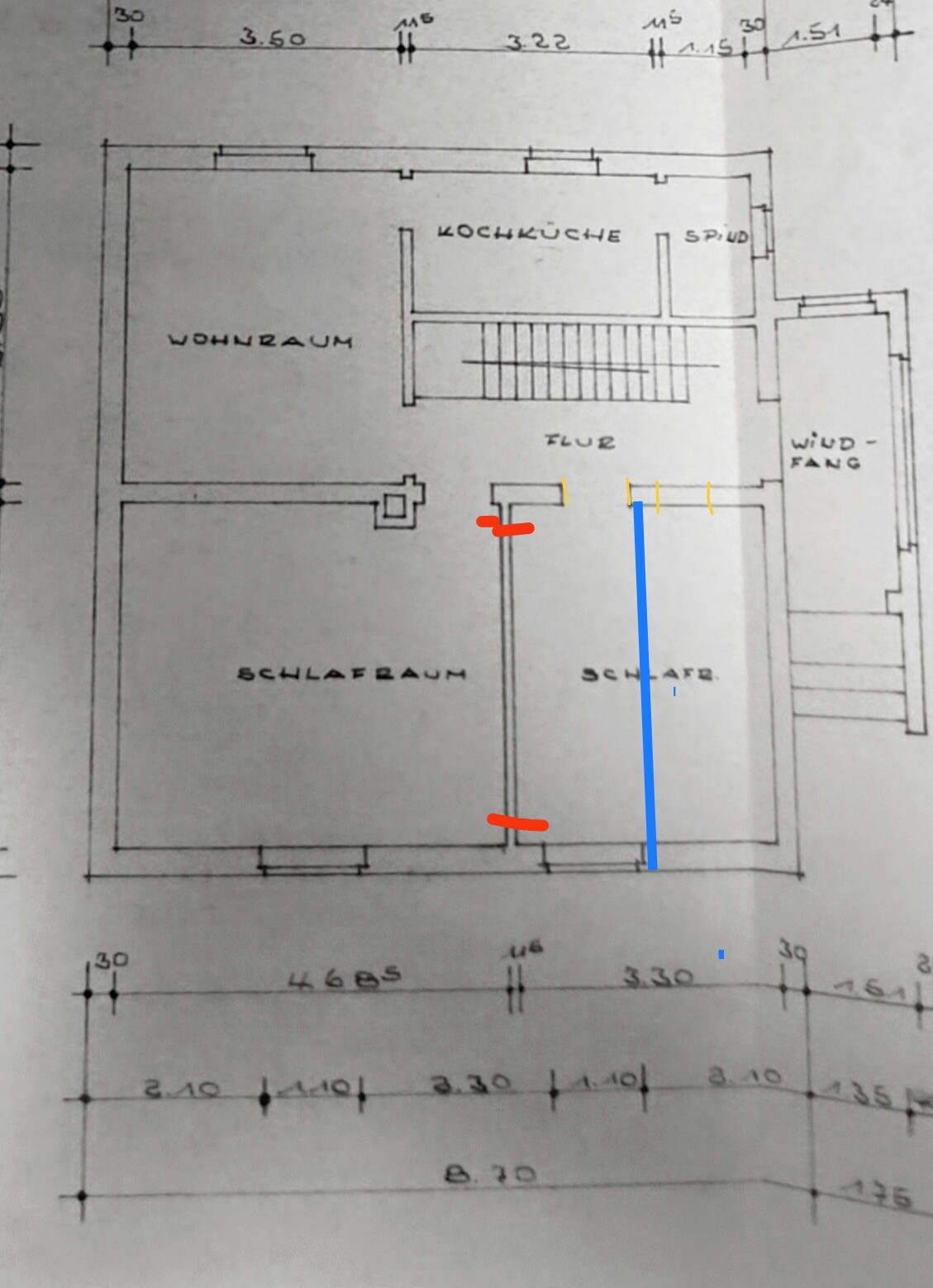
auf dem Anderen Bild in Rot die zu entfernende Wand im EG.
Eine Zusatzfrage seht ihr Schwierigkeiten darin den Türdurchbruch (gelb eingezeichnet zu verschließen und ein stück weiter nebendran wieder zu öffnen? Dabei handelt es sich definitiv um eine tragende Wand.
grüße


ich wende mich hier ans Forum um mittlerweile eine dritte Meinung einzuholen. Ich würde gerne im Zuge einiger Umbau arbeiten eine Wand in meinem Gebäude entfernen. Das Gebäude ist ca. von 1950. Wandstärke 11,5 cm. Ein befreundeter Maurermeister sagte mir das sei kein Problem eine 11,5 er Wand könne ich raus holen. Im 1.OG befindet sich eine Wand über dieser Wand, jedoch ist nochmal in Balken genau unter dieser. Die zu entfernende wand ist im Keller nicht vorhanden und geht nicht ins Fundament.
Auf dem einem Bild habe ich eine kleine Öffnung gemacht um zu sehen das ein Balken darüber ist, der in der Theorie die wand im OG stützen sollte.
auf dem Anderen Bild in Rot die zu entfernende Wand im EG.
Eine Zusatzfrage seht ihr Schwierigkeiten darin den Türdurchbruch (gelb eingezeichnet zu verschließen und ein stück weiter nebendran wieder zu öffnen? Dabei handelt es sich definitiv um eine tragende Wand.
grüße
jeykey93 schrieb:
Ein befreundeter Maurermeister sagte mir das sei kein Problem eine 11,5 er Wand könne ich raus holen. Im 1.OG befindet sich eine Wand über dieser Wand, jedoch ist nochmal in Balken genau unter dieser.Dann soll der Maurer seien Meisterbrief zurückgeben, die Aussage ist grob fahrlässsig.jeykey93 schrieb:
Auf dem einem Bild habe ich eine kleine Öffnung gemacht um zu sehen das ein Balken darüber ist, der in der Theorie die wand im OG stützen sollte.
auf dem Anderen Bild in Rot die zu entfernende Wand im EG.Auf dem einen Bild erkennt man nichts gescheit außer daß da irgendwie Narrenhände herumgefuhrwerkt haben, und es fehlen vor allem das dritte (Stockwerkgrundriß darüber) und vierte (Schnitt) Bild.jeykey93 schrieb:
Die zu entfernende wand ist im Keller nicht vorhanden und geht nicht ins Fundament.Die Decke zwischen KG und EG wird auch eher keine Balkendecke sein.Was ist denn überhaupt das Ziel der Maßnahme(n) ?
https://www.instagram.com/11antgmxde/
https://www.linkedin.com/company/bauen-jetzt/
11ant schrieb:
Dann soll der Maurer seien Meisterbrief zurückgeben, die Aussage ist grob fahrlässsig.
Auf dem einen Bild erkennt man nichts gescheit außer daß da irgendwie Narrenhände herumgefuhrwerkt haben, und es fehlen vor allem das dritte (Stockwerkgrundriß darüber) und vierte (Schnitt) Bild.
Die Decke zwischen KG und EG wird auch eher keine Balkendecke sein.
Was ist denn überhaupt das Ziel der Maßnahme(n) ?Also ich erkenne auf dem Bild ganz klar einen Holzbalken, zudem frage ich mich was die Anmerkung "Narrenhände" da soll? Gibt es jetzt spezielle Vorschriften wie man etwas Putz und Stein entfernt um zu sehen ob sich da ein Balken befindet? ( Bei einer Wand die ohnehin abgerissen werden soll)
Der Grundriss des 1.OG und Schnittbild, sind leider noch nicht verfügbar, original Baupläne sind beantragt. Der Grundriss im beigefügten Bild stammt aus einem Bauantrag der ein paar Jahre nach dem Bau gestellt wurde, der umfasst nur das EG.
Aber zur Info im betreffenden Bereich liegen die Mauern alle über den jeweiligen Mauern des EG.
Ja richtig die Decke zwischen KG und EG ist eine mit Stahlträgern.
Ziele der Maßnahmen sind wie folgt:
Im Grundriss benannte Küche ist jetzt eine Waschküche, die richtige Küche ist in den Raum daneben gewichen (Wohnraum), der linke Schlafraum ist das Wohnzimmer, in diesem soll mit dem Zugewinn an raum durch den Wandabriss, auch das Esszimmer sein. Die Wand in Blau trennt diesen das nochmals ab um ein Badezimmer im EG zu ermöglichen.
Grüße
jeykey93 schrieb:
Also ich erkenne auf dem Bild ganz klar einen Holzbalken, zudem frage ich mich was die Anmerkung "Narrenhände" da soll? Gibt es jetzt spezielle Vorschriften wie man etwas Putz und Stein entfernt um zu sehen ob sich da ein Balken befindet? ( Bei einer Wand die ohnehin abgerissen werden soll)"Narrenhände" weil es nach allem anderen als einer fachgerechten Bauteilöffnung aussieht. "Erkennen" kann man da nichts (höchstens wiedererkennen, wenn man weiß was das Bild zeigt). Vermuten kann man (mit Deiner Erläuterung) daß das Bild in/unter eine Decke schaut, und man eine ich sachma "Schilfmatte" als Deckenputzträger sieht, und das Dunkel ein Balken sein könnte, aha.Gut, dann warte ich mal auf die weiteren Bilder. Ich berate gern, aber seriös, und auf den bisher gesehenen Grundlagen läßt sich nur mit allermäßigster Zielsicherheit orakeln anstatt sauber zu diagnostizieren.
https://www.instagram.com/11antgmxde/
https://www.linkedin.com/company/bauen-jetzt/
Ähnliche Themen