Servus Zusammen,
nachdem die ersten Gespräche mit dem Architekten stattgefunden haben, wir aber noch nicht 100% zufrieden sind, möchte ich gerne das Forum nach Anregungen fragen.
Aktuell fühle ich mich wie in einer Sackgasse aus der es keinen Weg heraus gibt, da jede Idee nicht die gewünschten Effekte erzielt.
die Idee mit der Einliegerwohnung ist generell nicht schlecht, da bei uns in der Gegend Wohnraum sehr knapp ist.
Bebauungsplan/Einschränkungen
Größe des Grundstücks 4000qm, davon 800qm bebaubar
Hang, leichter Nordhang (ca. 1m auf 20m)
Dachform Flachdach
Stilrichtung Bauhaus
Bebauungsplan siehe Anhang
Anforderungen der Bauherren
Stilrichtung, Dachform, Gebäudetyp: Flachdach, modern
Keller, Geschosse: Keller, EG, 1.OG
Anzahl der Personen, Alter, zwei Erwachsene, Kind im Anmarsch, min 2 Kinder
Raumbedarf im EG, OG: 175qm2
Büro: Homeoffice
Schlafgäste pro Jahr: 15
offene oder geschlossene Architektur: offen
konservativ oder moderne Bauweise: Modern
Kochinsel
Anzahl Essplätze 8
Kamin: ja
Balkon, Dachterrasse: möglich, nicht geplant
Carport
Nutzgarten
Hausentwurf
Von wem stammt die Planung:
-Architekt
Was gefällt besonders? Warum?
das offene, 1. OG ist perfekt., Blick vom Wohn und Esszimmer sowie von der Küche ins Grüne
Was gefällt nicht? Warum?
Küche ins Treppenhaus, Speis im Süden, Treppe im Norden, Wohnzimmer im Nord-Osten
Preisschätzung lt Architekt/Planer: 550k
Persönliches Preislimit fürs Haus, inkl Ausstattung: 650k
favorisierte Heiztechnik: Wärmepumpe
Wenn Ihr verzichten müsst, auf welche Details/Ausbauten
-könnt Ihr verzichten: Kamin
-könnt Ihr nicht verzichten: Kochinsel
Warum ist der Entwurf so geworden, wie er jetzt ist? ZB
Entsprechende/Welche Wünsche wurden vom Architekten umgesetzt?
Der Blick von den verschiedenen Räumen ins Grüne war der große Wunsch.
Das Haus sollte in das Grundstück hineinfließen. Da es zudem am Rande eines HQ100 Gebiet liegt ist der Plan mit einer aufgeständerten Terrasse um den Eindruck eines Haus am See zu bekommen.
Der Keller wurde geplant aufgrund eines Nebengewerbes meiner Frau und aufgrund der Aussagen seitens des Architekten, dass das Auffüllen nicht so günstig sei und dadurch sich ein Keller schon fast wieder rechnet.
Was ist die wichtigste/grundlegende Frage zum Grundriss in 130 Zeichen zusammengefasst?
Wie kann man den Entwurf effizienter und freundlicher gestalten? (Treppe/Speis)
Macht das Wohnzimmer im Nordosten Sinn?




nachdem die ersten Gespräche mit dem Architekten stattgefunden haben, wir aber noch nicht 100% zufrieden sind, möchte ich gerne das Forum nach Anregungen fragen.
Aktuell fühle ich mich wie in einer Sackgasse aus der es keinen Weg heraus gibt, da jede Idee nicht die gewünschten Effekte erzielt.
die Idee mit der Einliegerwohnung ist generell nicht schlecht, da bei uns in der Gegend Wohnraum sehr knapp ist.
Bebauungsplan/Einschränkungen
Größe des Grundstücks 4000qm, davon 800qm bebaubar
Hang, leichter Nordhang (ca. 1m auf 20m)
Dachform Flachdach
Stilrichtung Bauhaus
Bebauungsplan siehe Anhang
Anforderungen der Bauherren
Stilrichtung, Dachform, Gebäudetyp: Flachdach, modern
Keller, Geschosse: Keller, EG, 1.OG
Anzahl der Personen, Alter, zwei Erwachsene, Kind im Anmarsch, min 2 Kinder
Raumbedarf im EG, OG: 175qm2
Büro: Homeoffice
Schlafgäste pro Jahr: 15
offene oder geschlossene Architektur: offen
konservativ oder moderne Bauweise: Modern
Kochinsel
Anzahl Essplätze 8
Kamin: ja
Balkon, Dachterrasse: möglich, nicht geplant
Carport
Nutzgarten
Hausentwurf
Von wem stammt die Planung:
-Architekt
Was gefällt besonders? Warum?
das offene, 1. OG ist perfekt., Blick vom Wohn und Esszimmer sowie von der Küche ins Grüne
Was gefällt nicht? Warum?
Küche ins Treppenhaus, Speis im Süden, Treppe im Norden, Wohnzimmer im Nord-Osten
Preisschätzung lt Architekt/Planer: 550k
Persönliches Preislimit fürs Haus, inkl Ausstattung: 650k
favorisierte Heiztechnik: Wärmepumpe
Wenn Ihr verzichten müsst, auf welche Details/Ausbauten
-könnt Ihr verzichten: Kamin
-könnt Ihr nicht verzichten: Kochinsel
Warum ist der Entwurf so geworden, wie er jetzt ist? ZB
Entsprechende/Welche Wünsche wurden vom Architekten umgesetzt?
Der Blick von den verschiedenen Räumen ins Grüne war der große Wunsch.
Das Haus sollte in das Grundstück hineinfließen. Da es zudem am Rande eines HQ100 Gebiet liegt ist der Plan mit einer aufgeständerten Terrasse um den Eindruck eines Haus am See zu bekommen.
Der Keller wurde geplant aufgrund eines Nebengewerbes meiner Frau und aufgrund der Aussagen seitens des Architekten, dass das Auffüllen nicht so günstig sei und dadurch sich ein Keller schon fast wieder rechnet.
Was ist die wichtigste/grundlegende Frage zum Grundriss in 130 Zeichen zusammengefasst?
Wie kann man den Entwurf effizienter und freundlicher gestalten? (Treppe/Speis)
Macht das Wohnzimmer im Nordosten Sinn?
kaho674 schrieb:
Find ich ungemütlich. Außerdem rennt man mit den Einkaufstüten immer erst um die Insel bis in die Speisdas ist mir auch als Erstes aufgefallen. da hätte ich aber den Vorschlag des 90 Grad Drehens der Insel gemacht...
Servus in die Oberpfalz,
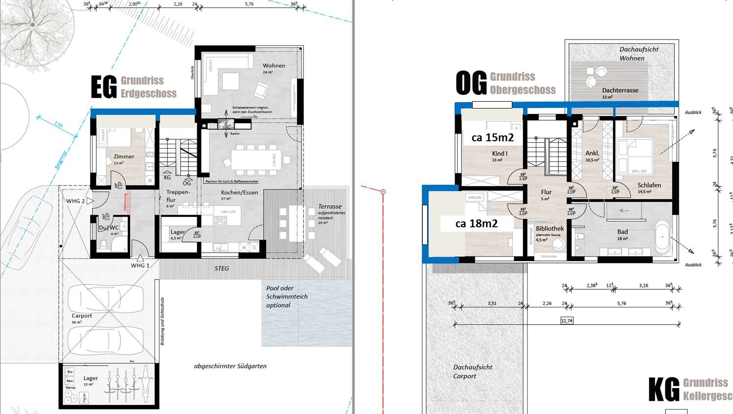
ich hab mal 2 Versuche unternommen das Haus so zu verändern, dass die Grundstruktur erhalten bleibt und nur die beiden Kinderzimmer größer werden.

In der Variante ist die Nordwand am Eck bis an die Baugrenze geschoben und das Kinderzimmer II im OG über den überdachten Eingangsbereich auskragend. Es ergeben sich Kinderzimmern mit ca. 15m2 und 18m2. Zusätzlich wird die Ankleide und das Schlafzimmer etwas größer und die Treppe kann etwas nach Norden um den Bereich vor der Küche großzügiger zu machen.

Variante 2 hat eine (im original Bauhaus ja nicht ungewöhnliche) Runde Wand im EG und vergrößert die Kinderzimmern im OG bis an die Baugrenze sowie die Überdachung. Sonst sind alle Wände gleich. Prinzipiell würde ich den Kinderzimmern Fenster in 2 Richtungen spendieren. Macht meiner Meinung nach einfach einen viel schöneren Raumeindruck.
Wenn man noch mal ganz zurück auf die Platzierung auf dem Grundstück geht, dürftet ihr Nebenanlagen (Carport, Schuppen) außerhalb des Baufensters bauen? Wäre für eine Platzierung der Garage im Norden oder Nordwesten hilfreich. Wobei ich die Idee des Architekten die Carports als Sichtschutz von der Straße auf den privaten Garten und Pool durchaus nachvollziehen kann.
Eure Preisschätzung kommt mir auch eher knapp vor. Das Haus ist ja von der Architektur eher extravagant. Wenn ihr in der Ausstattung ähnlich Aufwändig sein wollt, werden die 550k wohl sehr knapp werden.
ich hab mal 2 Versuche unternommen das Haus so zu verändern, dass die Grundstruktur erhalten bleibt und nur die beiden Kinderzimmer größer werden.
In der Variante ist die Nordwand am Eck bis an die Baugrenze geschoben und das Kinderzimmer II im OG über den überdachten Eingangsbereich auskragend. Es ergeben sich Kinderzimmern mit ca. 15m2 und 18m2. Zusätzlich wird die Ankleide und das Schlafzimmer etwas größer und die Treppe kann etwas nach Norden um den Bereich vor der Küche großzügiger zu machen.
Variante 2 hat eine (im original Bauhaus ja nicht ungewöhnliche) Runde Wand im EG und vergrößert die Kinderzimmern im OG bis an die Baugrenze sowie die Überdachung. Sonst sind alle Wände gleich. Prinzipiell würde ich den Kinderzimmern Fenster in 2 Richtungen spendieren. Macht meiner Meinung nach einfach einen viel schöneren Raumeindruck.
Wenn man noch mal ganz zurück auf die Platzierung auf dem Grundstück geht, dürftet ihr Nebenanlagen (Carport, Schuppen) außerhalb des Baufensters bauen? Wäre für eine Platzierung der Garage im Norden oder Nordwesten hilfreich. Wobei ich die Idee des Architekten die Carports als Sichtschutz von der Straße auf den privaten Garten und Pool durchaus nachvollziehen kann.
Eure Preisschätzung kommt mir auch eher knapp vor. Das Haus ist ja von der Architektur eher extravagant. Wenn ihr in der Ausstattung ähnlich Aufwändig sein wollt, werden die 550k wohl sehr knapp werden.
mit den Kinderzimmer gebe ich Recht. Idee ist wirklich die Saun/Bibliothek abzubauen bzw weg zu lassen und als Fläche für die Kids zu sehen.
Das Carport muss leider dort sein, da das die einzige Zufahrtsmöglichkeit ist....
Der separate Eingang dient für eine geplante Einliegerwohnung um z.B. auch höhere Förderungen zu erhalten.
Das Carport muss leider dort sein, da das die einzige Zufahrtsmöglichkeit ist....
Der separate Eingang dient für eine geplante Einliegerwohnung um z.B. auch höhere Förderungen zu erhalten.
Cayman schrieb:
Das Carport muss leider dort sein, da das die einzige Zufahrtsmöglichkeit ist....Schade
Cayman schrieb:
Der separate Eingang dient für eine geplante Einliegerwohnung um z.B. auch höhere Förderungen zu erhalten.Das ist aber keine Einliegerwohnung, da gibt es auch Vorschriften. Das, was das ist, ist ein Zimmer mit Bad.M
Matthew0306.08.19 15:33Kann ein richtig tolles Haus werden...mir würde da im Leben nicht einfallen Mieter einzubauen, lass die Einliegerwohnung weg!
Ähnliche Themen