Bebauungsplan/Einschränkungen
Größe des Grundstücks: Wir haben 2 Grundstücke und wollten eigtl. nur die 529 qm bebauen, dies reicht jedoch nicht aus sodass wir noch ein Teil der Doppelgarage auf die 413qm stellen müssen. und diese dann wenn wir es mal veräußern möchten wieder neu einmessen lassen müssen.
ebenerdig
Anzahl Stellplatz - 2-> Doppelgarage mit Geräteraum. 6x9m
Geschossigkeit - 2 Geschosse
Dachform - 25° Satteldach
wir waren bei der Gemeinde - es gibt für unsere Ortschaft keinen Bebauungsplan
Anforderungen der Bauherren
keinen Keller, EG + DG mit 2m Kniestock
Anzahl der Personen, Alter: 2 Erwachsene, 1 Kind (bei Einzug etwa 3 Jahre alt) 1 Kind in Planung
Haus 168,59qm Fertighaus in Holzständerbauweise mit einem Erker im Wohnbereich
Küche offen mit Kochinsel und kleiner Bar
Heiztechnik:
Luft-Wasser-Wärmepumpe mit kontrollierter Be- und Entlüftung
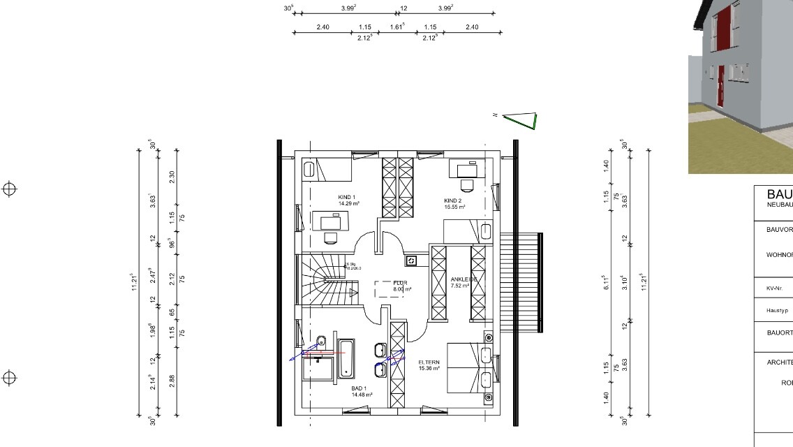
Dies ist der 1. Entwurf von unserem Architekten.Was könnte man anders machen. Das Gäste-WC ist nicht gut platziert. Der Grundriss im OG ist erst mal ok.
Wir sind über Tipps und Ideen im EG dankbar.

Größe des Grundstücks: Wir haben 2 Grundstücke und wollten eigtl. nur die 529 qm bebauen, dies reicht jedoch nicht aus sodass wir noch ein Teil der Doppelgarage auf die 413qm stellen müssen. und diese dann wenn wir es mal veräußern möchten wieder neu einmessen lassen müssen.
ebenerdig
Anzahl Stellplatz - 2-> Doppelgarage mit Geräteraum. 6x9m
Geschossigkeit - 2 Geschosse
Dachform - 25° Satteldach
wir waren bei der Gemeinde - es gibt für unsere Ortschaft keinen Bebauungsplan
Anforderungen der Bauherren
keinen Keller, EG + DG mit 2m Kniestock
Anzahl der Personen, Alter: 2 Erwachsene, 1 Kind (bei Einzug etwa 3 Jahre alt) 1 Kind in Planung
Haus 168,59qm Fertighaus in Holzständerbauweise mit einem Erker im Wohnbereich
Küche offen mit Kochinsel und kleiner Bar
Heiztechnik:
Luft-Wasser-Wärmepumpe mit kontrollierter Be- und Entlüftung
Dies ist der 1. Entwurf von unserem Architekten.Was könnte man anders machen. Das Gäste-WC ist nicht gut platziert. Der Grundriss im OG ist erst mal ok.
Wir sind über Tipps und Ideen im EG dankbar.
Nicht so dramatisch, wir bauen z.B. 40 m von der Straße... hab beim letzten EG noch mal die Tür zum Büro gesetzt und die Bezeichnung zum Hauswirtschaftsraum ergänzt hatte ich vergessen.
Im Zweifel den Planer fragen, ob er irgendwo Probleme sieht, am Besten auch gleich danach, ob er so Probleme mit der Entwässerung sieht bzw. dann beim Badplanen darauf achten.
Im Zweifel den Planer fragen, ob er irgendwo Probleme sieht, am Besten auch gleich danach, ob er so Probleme mit der Entwässerung sieht bzw. dann beim Badplanen darauf achten.
Ähnliche Themen