Unser Grundriss... bitte um Hilfe zur Optimierung..

4,70 Stern(e) 7 Votes
Zuletzt aktualisiert 08.10.2025
Sie befinden sich auf der Seite 6 der Diskussion zum Thema: Unser Grundriss... bitte um Hilfe zur Optimierung..
>> Zum 1. Beitrag <<

Y

ypg

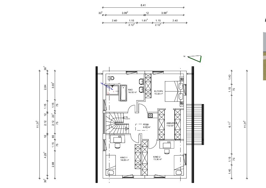
Mit Spiegeln mein ich unter Umständen eher die Lage der Räume. Toiletten übereinander, 1qm weniger macht dem Bad nichts aus. Das bekommt man bestimmt hin
 
Y

ypg

Geht doch
Ich würde noch versuchen, den Treppenlauf zu ändern, dann die Tür zum WC unter die Treppe und dann den Flur einkürzen. Garderobenschrank dann neben die Tür zum Büro.
 
Zuletzt aktualisiert 08.10.2025
Im Forum Grundrissplanung / Grundstücksplanung gibt es 2512 Themen mit insgesamt 87206 Beiträgen


Ähnliche Themen zu Unser Grundriss... bitte um Hilfe zur Optimierung..
Nr.ErgebnisBeiträge
1Anschlagrichtung und Position Tür im Bad OG 14
2Tür Haus/Garage: Nebeneingangstür als Brandschutztür? - Seite 327
3Abdichtung Terrassenaustritt / -Tür bei zweischaligem Mauerwerk 10
4Besta-Regal mit Tür und Schublade Inreda/IKEA, brauche Hilfe 11
5Schalter für Rollläden am Fenster oder an der Tür? 38
6Ausbesserung der Tür machte es noch "schlimmer" - Seite 225
7Tür Schiebeeinrichtung falschherum - Seite 221
8Hörmann T30 Tür zwischen Wohnhaus & Garage - U-Wert - Seite 211
9Tür nach innen oder außen aufgehend? Was ist normal? - Seite 432
10Pflastern bis an die Tür - wie Abschluss? 15
11Suche Gartenhaus 3x3 Meter mit hoher Tür 15
12Kann eine Hebeschiebetür so dicht sein wie eine normale Tür? - Seite 319
13Duschwanne 140+ cm lang: Tür dadurch einsparen? 24
14Einrichtung Ankleidezimmer Tür zum Badezimmer - Seite 234
15Badplanung - Dusche ohne Tür - Seite 210
16Ikea Faktum Eckhängeschrank - Tür / Scharniere - Seite 210
17Walk-In Dusche, Spritzwasser, brauche ich eine Tür? 35

Oben