Unser Grundriss... bitte um Hilfe zur Optimierung..

4,70 Stern(e) 7 Votes
Zuletzt aktualisiert 22.11.2025
Sie befinden sich auf der Seite 4 der Diskussion zum Thema: Unser Grundriss... bitte um Hilfe zur Optimierung..
>> Zum 1. Beitrag <<

L

Legurit

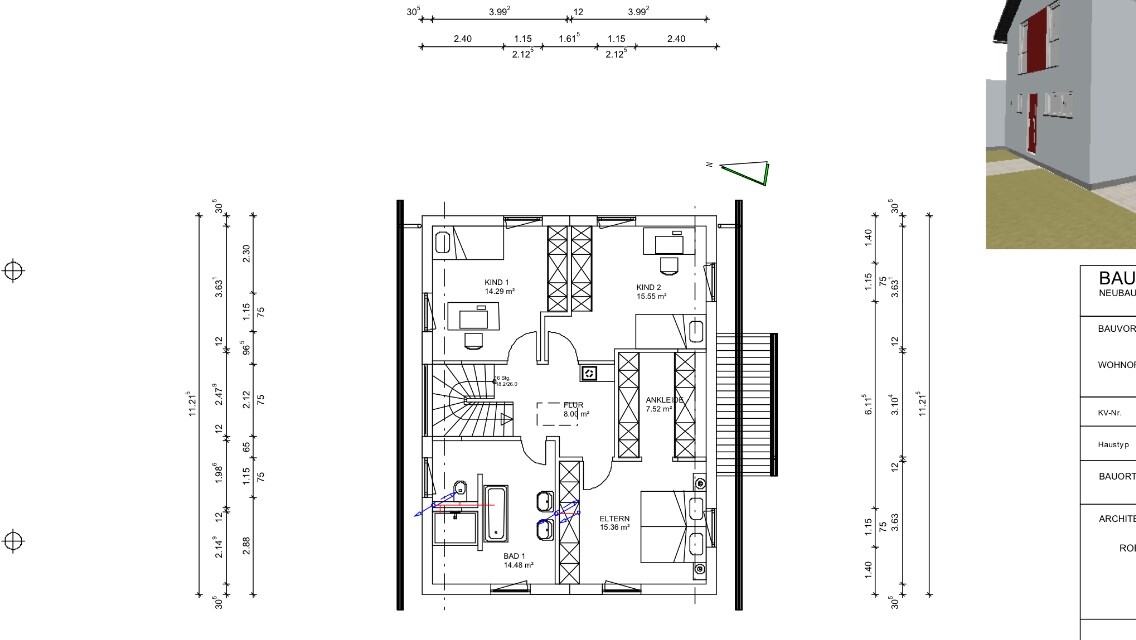
oder dazu noch eine EG-Variante mit Aufteilung etwas analoger zum Original (mit dem OG aus dem Vorgängerpost, Abstellraum unter der Treppe dazu denken):


2D-Grundriss eines Hauses mit Küche, Büro und Waschraum
 
B

Bmich@el

Die letzte EG Variante ist klasse....

Aber die Frage ist wie das mit den ganzen Anschlüssen in den Hauswirtschaftsraum ist, weil dieser soweit hinten ist.
 
L

Legurit

Nicht so dramatisch, wir bauen z.B. 40 m von der Straße... hab beim letzten EG noch mal die Tür zum Büro gesetzt und die Bezeichnung zum Hauswirtschaftsraum ergänzt hatte ich vergessen.
Im Zweifel den Planer fragen, ob er irgendwo Probleme sieht, am Besten auch gleich danach, ob er so Probleme mit der Entwässerung sieht bzw. dann beim Badplanen darauf achten.
 
Zuletzt aktualisiert 22.11.2025
Im Forum Grundrissplanung / Grundstücksplanung gibt es 2535 Themen mit insgesamt 87984 Beiträgen


Ähnliche Themen zu Unser Grundriss... bitte um Hilfe zur Optimierung..
Nr.ErgebnisBeiträge
1 2 Vollgeschosse, Durchgang Garage, Hauswirtschaftsraum unter Treppe 25
2Zugang von der Garage in den Hauswirtschaftsraum - Seite 349
3Kleinstmögliches Fenster für Lüftung Hauswirtschaftsraum 22
4Grundriss 170m2 - Hauswirtschaftsraum zu klein? Verbesserungsvorschläge? 42
5Planung HAR/Hauswirtschaftsraum - Technikpläne unbekannt 12
6Hauswirtschaftsraum Raum ohne Fenster - Lüftungsanlage ausreichend? - Seite 426
7Hauswirtschaftsraum im OG - Probleme mit Lärm? 27
8Fitness-Ecke im Hauswirtschaftsraum? 27
9Technik / Hauswirtschaftsraum im OG Meinungen? 27
10Zusätzlicher Hauswirtschaftsraum im OG für Waschmaschine etc. 13
11Fußbodenheizung auch im Technikraum / Hauswirtschaftsraum - Seite 319
12Reicht der Hauswirtschaftsraum auch als Abstellkammer aus? 22
13Heizungsanlage passt nicht wie geplant in den Hauswirtschaftsraum 27
14Schallschutztür im Hauswirtschaftsraum notwendig? Erfahrungen? 22
15Hauswirtschaftsraum streichen - Welche Farbe? Latexfarbe? - Seite 216
16Schrank für Hauswirtschaftsraum 21
17Leitungsführung vom Hauswirtschaftsraum zum Bad 23
18Wie Hauswirtschaftsraum im Keller sinnvoll in die thermische Hülle? 15
19Hausanschlusssäule im Garten vs. Hausanschluss direkt im Hauswirtschaftsraum 35
20Hauswirtschaftsraum mit Gipsputz streichen - Welche Farbe? 20

Oben