Hausbau - Ratgeber
Bauherrenhilfe
- Bauherrenhilfe vor Vertragsabschluss
-- Warum einen unabhängigen Baubetreuer?
-- Vertragsgrundlagen
-- Bausumme
-- Zahlungsplan zur Kostenkontrolle
-- Pflichten des Bauherren vor Vertragsabschluss
-- Unterlagen beim Hausbau vor Vertragsabschluss
- Bauherrenhilfe nach Vertragsabschluss
-- Bauantrag bei Behörden
-- Bau-Genehmigungsverfahren bei Baubehörden
-- Bauspezifische Versicherungen
-- Bauzeitenplan
-- Baubeginn - die Letzten Pflichten der Bauherrschaft
- Bauherrenhilfe während der Bauzeit
- Gewährleistungsansprüche
- Bauabnahme
Baufinanzierung
- Baufinanzierung - Allgemeine Fragen
- Kreditarten
- Kredit-Konditionen
- Bausparen
- Staatliche Förderungen
- Verkehrswert
- Haushaltsrechnung und Bonität
Hausbau Planung
- Haustypen
- Hausbau Vorbereitungsarbeiten
- Das Baugrundstück
- Baugrund beim Hausbau
- Baurecht
- Gebäudeschutz
- Erdarbeiten und Wasserhaltung
- Stützmauern
- Einfriedung
- Untergeschoss
- Kanalisation
- Tragende Elemente
- Nichttragende Innenwände
- Fundation / Fundament
- Deckenkonstruktionen
- Dächer
- Kaminanlagen
- Treppen Rampen Leitern
- Dachbeläge und Spengler
- Fenster
- Sonnen und Wetterschutz
- Aussenputze
- Einbauten, Küchen, Türen
- Bodenbeläge und Unterlagsböden
- Parkett
- Gips, Wand, Decke
Haustechnik und Energie
- Heiztechnik
- Lüftung und Klimatechnik
- Sanitärtechnik
- Elektrotechnik
- Erneuerbare Energie
Whirlpools / Jacuzzi
Hausbau Magazin
- Baufinanzierung trotz Krise?
- Das Blockhaus
- Moderne Dämmstoffe im Vergleich
- Erker Vor- und Nachteile
- Glasflächen beim Hausbau
- Günstig ein Haus Bauen
- Mediterraner Hausbaustil
- Mehrgenerationenhaus
- Moderne Architektur
- Gartengestaltung leicht gemacht
- Traditioneller Ziegelbau
- Villa als höchster Traum
- Im Eigenheim Ruhestand geniessen
- Altbau sanieren
- Kauf einer Holzgarage
- Immobilienmakler
- Arbeitshandschuhe für den Winter
- Zuhause verschönern
- Outdoor-Plissees
- Schlafzimmer planen
- Terrassenüberdachung
- Wohngebäudeversicherung
- Zaunarten und Eigenschaften
- Hauseingang gestalten
- Der perfekte Grundriss
- Sparsamer heizen im Altbau
- Einfamilienhaus smart finanzieren
- Planung einer PV-Anlage
- Neues Haus
- Immobilienfinanzierung
- Installation einer Photovoltaikanlage
- Asbest erkennen und entfernen
- Gartenpflege im Frühling – worauf achten
- Sauna im Fokus - Wellness zuhause
- Erfolgreich vermieten
- Die perfekte Winterbekleidung
- Das Niedrigenergiehaus
- Der April und seine Stürme
- Architektonische Vielfalt
- Ökologisch und nachhaltig bauen
- Das perfekte Schlafzimmer
- Nachhaltige Energieversorgung
- Zukunftsorientiert bauen
- Nachhaltigkeit beim Hausbau
- Tiny Houses
- Wärmepumpen als nachhaltige Heizvariante
- Maßgeschneiderten Kleiderschrank
- Der richtige Baukredit
- Ratgeber für erfolgreichen Hausbau
- Haus als Altersvorsorge
Do-it-yourself Anleitungen
- Verlegeanleitung für Bodenbeläge und Parkett
- Bodenbeläge und Parkett reinigen und pflegen
- Malerarbeiten am Haus
- Garten Tipps
- Umzug und Reinigung

ᐅ Umbau Siedlungshaus von 1960 mit Anbau - Feedback erwünscht*

Erstellt am: 28.09.18 09:15
C
ColeTrickle0
Climbee28.09.18 11:22
Und bitte nicht als pdf, sondern im Bildformat einstellen.
D
dertill
28.09.18 11:40
Bei solchen Maßnahmen: Durchgehende Gaube auf beiden Seiten und zusätzlicher knapp 50m² Anbau würde sogar ich über einen Abriss und Neubau nachdenken. Mit den Baumaßnahmen seit ihr in Summe auch über 50m² Wohnflächenerneuerung und es greifen Alle Anforderungen der Energieeinsparverordnung und des Erneuerbare-Energien-Wärmegesetz an Neubauten.

In den Plänen sind überall 24cm Wandstärke eingezeichnet. Das kann wohl nicht so bleiben. Bei der Summe und der Planung bleiben wahrscheinlich nur die Mauern und die auch nur teilweise,(noch Nichtmal der Dachstuhl) stehen. Da würde ich eher abreißen bis auf den Keller und von da neu hoch bauen.
C
ColeTrickle0
28.09.18 12:16
Der Anbau hat eine Netto-Grundfläche von knapp 21 m², nicht 50m². Bezüglich der Außenwände steht noch ein Termin mit einem Energieberater aus.
Das "Problem" des Neubaues war bisher für uns immer, dass der Bebauungsplan ein Haus, wie wir uns das vorstellen (Richtung Bauhaus) durch die Einschränkungen wie z.B. die Dachneigung oder die Anzahl der Vollgeschosse nicht ermöglicht. Heißt, das neue Haus würde grundsätzlich nicht viel anders aussehen, als das vorhandene und es kämen die Kosten des Abrisses hinzu.

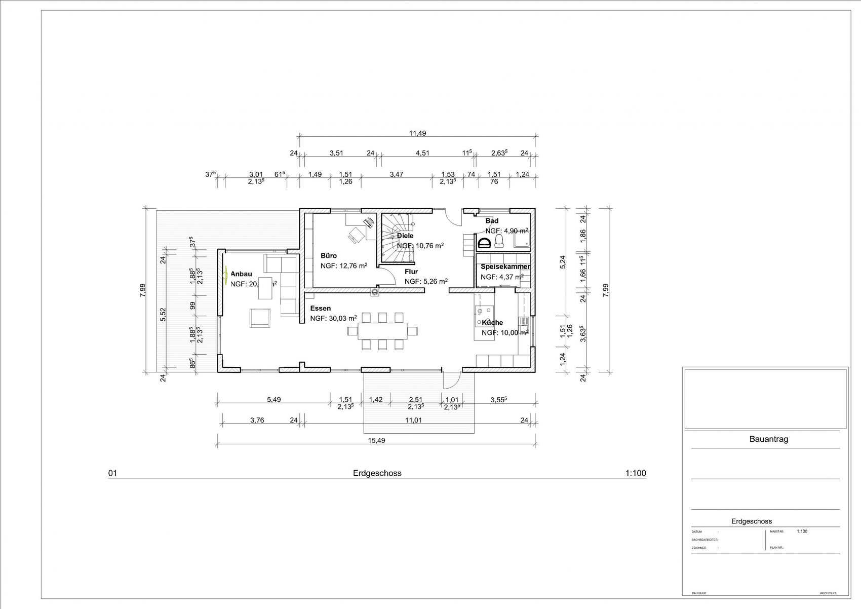
Pläne sind nun als Bilder gespeichert
kaho67428.09.18 12:48
Ich find die Sache nicht schlecht.
Ankleide und Eltern-Schlafzimmer oben sollten noch die Plätze tauschen.
Im Anbau sind die Fenster m.E. blöd angeordnet - wenn ich das richtig deute ein riesiges Nordfenster wo man eigentlich die Kuschelecke erwartet. Das würd ich noch mal überdenken.
Die Kücheninsel würde ich vermutlich gegenüber andocken, damit man auch mal schnell in die Speis kann, ohne jedes Mal nen Slalomlauf hinzulegen.
Fenster im Bad oben fehlen auch irgendwie.
C
ColeTrickle0
28.09.18 12:55
kaho674 schrieb:
Ich find die Sache nicht schlecht.
Ankleide und Eltern-Schlafzimmer oben sollten noch die Plätze tauschen.
Im Anbau sind die Fenster m.E. blöd angeordnet - wenn ich das richtig deute ein riesiges Nordfenster wo man eigentlich die Kuschelecke erwartet. Das würd ich noch mal überdenken.
Die Kücheninsel würde ich vermutlich gegenüber andocken, damit man auch mal schnell in die Speis kann, ohne jedes Mal nen Slalomlauf hinzulegen.
Fenster im Bad oben fehlen auch irgendwie.

Danke für´s Feedback. Wieso würdest du Schlafzimmer und Ankleide tauschen?

Der Anbau ist Richtung Süden, Küche liegt auf der Nordseite. Durch den Anbau geht´s dann auf die Terrasse. Hier ist angedacht, große Schiebetüren zu verbauen.

Kücheninsel gegenüber hatten wir aus dem Grund auch schon mal gedacht. Problem könnte nur sein, dass drei Hocker an der Insel stehen sollen. Dies könnte mit der Tür zur anderen Terrasse etwas eng werden. Diese Terrasse und die Tür sind aktuell schon vorhanden, weswegen es aufwendig wäre, hier die Tür zu versetzen.
kaho67428.09.18 14:21
ColeTrickle0 schrieb:
Danke für´s Feedback. Wieso würdest du Schlafzimmer und Ankleide tauschen?
Erstens brauchen die Kinderohren nicht wissen, was Mami und Papi im Schlafzimmer so treiben. Zweitens kann der Partner weiter schlafen, während sich der andere schon anzieht und das Haus verlässt.
ColeTrickle0 schrieb:

Der Anbau ist Richtung Süden, Küche liegt auf der Nordseite. Durch den Anbau geht´s dann auf die Terrasse. Hier ist angedacht, große Schiebetüren zu verbauen.
Ah, die Ausrichtung hätte man gern als Nordpfeil in der Grafik.
Die Einrichtung des Wohnzimmers wirkt nicht besonders kuschlig - was meinst Du? Ich würde eher in diese Richtung planen:


Grundriss Erdgeschoss eines Hauses mit Küche, Essen, Büro, Bad, Speisekammer, Flur.
ColeTrickle0 schrieb:

Kücheninsel gegenüber hatten wir aus dem Grund auch schon mal gedacht. Problem könnte nur sein, dass drei Hocker an der Insel stehen sollen. Dies könnte mit der Tür zur anderen Terrasse etwas eng werden. Diese Terrasse und die Tür sind aktuell schon vorhanden, weswegen es aufwendig wäre, hier die Tür zu versetzen.
Ach so, da sollen noch Hocker hin. Die Insel erzeugt ja auch noch einen Durchgang von nur 60(?) planunten. Das ist kackeschmal. Frag doch mal Kerstin (kbt09) zur Küche, sie hat voll Ahnung und Ideen.
anbaukücheninselschlafzimmerterrassetürankleidefenster