ᐅ Umbau Siedlungshaus von 1960 mit Anbau - Feedback erwünscht*
Erstellt am: 28.09.18 09:15
C
ColeTrickle0C
ColeTrickle028.09.18 09:15Hallo zusammen,
wir würden uns auf Feedback bezüglich unserer derzeitigen Pläne freuen.
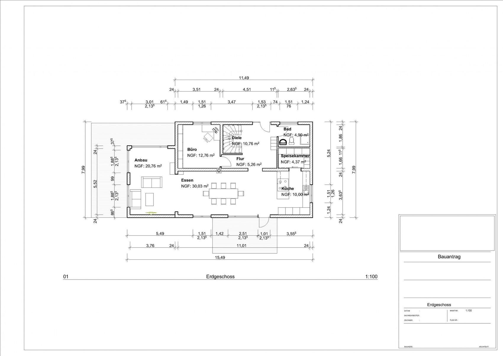
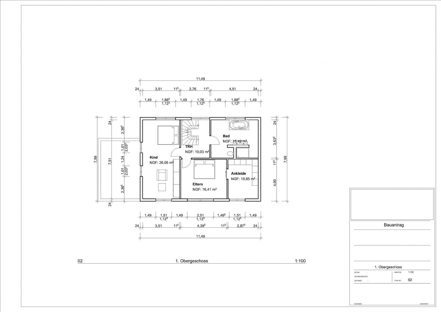
Geplant ist der Umbau eines Siedlungshauses von 1960 mit einem kleinen Anbau. Das Objekt soll kernsaniert werden, vom Keller bis zum Dach. Grundsätzlich ist unser Ziel, das Haus möglichst modern und offen umzubauen. Wir sind jedoch an gewisse bauliche Gegebenheiten gebunden, da es sich ja nicht um einen Neubau handelt.
Eine Badplanung wird noch erfolgen, im Plan ist lediglich standardmäßig alles drin was benötigt wird.
Bebauungsplan/Einschränkungen
Größe des Grundstücks: 700 m²
Hang: nein
Grundflächenzahl: 0,25
Geschossflächenzahl: 0,5
Anzahl Stellplatz: 2
Geschossigkeit: 1
Dachform: Satteldach
Stilrichtung: Siedlungshaus
Ausrichtung: Nord-Süd
Maximale Höhen/Begrenzungen: 9m
weitere Vorgaben: Dachneigung 35-50 Grad
Anforderungen der Bauherren
Keller, Geschosse: Keller ja, 1 Vollgeschoss, DG mit Gauben
Anzahl der Personen: 3
Büro: Familiennutzung
offene oder geschlossene Architektur: offen
konservativ oder moderne Bauweise: modern
offene Küche, Kochinsel: beides
Kamin: im Plan enthalten zwischen Esszimmer und Anbau
Balkon, Dachterrasse: nein
Carport: eventuell vorm Haus, könnte knapp werden wegen Küchenfenster
Hausentwurf
Von wem stammt die Planung: Architekt
Preisschätzung lt Architekt: 450.000 €
Persönliches Preislimit fürs Haus, inkl Ausstattung: 300.000 €
Haus gehört bereits uns, unser Preislimit wäre allein für den Um- und Anbau
Vielen Dank für euer Feedback!




wir würden uns auf Feedback bezüglich unserer derzeitigen Pläne freuen.
Geplant ist der Umbau eines Siedlungshauses von 1960 mit einem kleinen Anbau. Das Objekt soll kernsaniert werden, vom Keller bis zum Dach. Grundsätzlich ist unser Ziel, das Haus möglichst modern und offen umzubauen. Wir sind jedoch an gewisse bauliche Gegebenheiten gebunden, da es sich ja nicht um einen Neubau handelt.
Eine Badplanung wird noch erfolgen, im Plan ist lediglich standardmäßig alles drin was benötigt wird.
Bebauungsplan/Einschränkungen
Größe des Grundstücks: 700 m²
Hang: nein
Grundflächenzahl: 0,25
Geschossflächenzahl: 0,5
Anzahl Stellplatz: 2
Geschossigkeit: 1
Dachform: Satteldach
Stilrichtung: Siedlungshaus
Ausrichtung: Nord-Süd
Maximale Höhen/Begrenzungen: 9m
weitere Vorgaben: Dachneigung 35-50 Grad
Anforderungen der Bauherren
Keller, Geschosse: Keller ja, 1 Vollgeschoss, DG mit Gauben
Anzahl der Personen: 3
Büro: Familiennutzung
offene oder geschlossene Architektur: offen
konservativ oder moderne Bauweise: modern
offene Küche, Kochinsel: beides
Kamin: im Plan enthalten zwischen Esszimmer und Anbau
Balkon, Dachterrasse: nein
Carport: eventuell vorm Haus, könnte knapp werden wegen Küchenfenster
Hausentwurf
Von wem stammt die Planung: Architekt
Preisschätzung lt Architekt: 450.000 €
Persönliches Preislimit fürs Haus, inkl Ausstattung: 300.000 €
Haus gehört bereits uns, unser Preislimit wäre allein für den Um- und Anbau
Vielen Dank für euer Feedback!
ColeTrickle0 schrieb:
Preisschätzung lt Architekt: 450.000 €
Persönliches Preislimit fürs Haus, inkl Ausstattung: 300.000 €Verstehe ich nicht ... dachte das Haus gehört Euch!?!
C
ColeTrickle028.09.18 09:41RIchtig, Haus gehört uns und für den geplanten Um- und Anbau beträgt unser Budget 300.000 €
C
ColeTrickle028.09.18 09:44Ja, Grobkostenschätzung
Ähnliche Themen