Guten Morgen!
Wir stecken mitten in der Planung unseres Einfamilienhaus und haben ein Problem mit unserer Treppe.
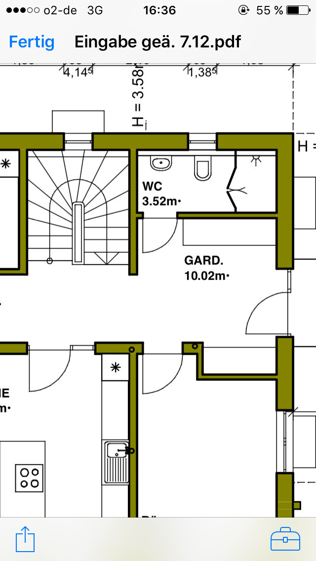
Die Architektin hat eine gegenläufige Podesttreppe empfohlen, damit wir genügend Kopffreiheit vom 1. OG ins DG haben. Dafür hat sie ein Podest mit 1,05 m eingeplant. je 16 Stufen sind mit 18/ 26 vom EG ins OG bzw. 17.4 / 26 vom OG ins DG geplant (Rohbauhöhen EG / OG sind unterschiedlich)
Die Treppe braucht natürlich einiges an Platz, der uns im Flur "fehlt"- die unterste Treppenstufe schließt derzeit mit der Wand ab. Flurbreite wäre damit aktuell 1,38, wir hätten gerne aus optischen Gründen aber um die 1,5 m (Flur wird Ca. 7 m lang- und nein, das lässt sich nicht vermeiden :-( )
Nun die Frage an alle mit Podesttreppe: wie tief ist euer Podest? braucht es 1,05 m oder reichen auch 95 cm?
oder habt ihr die unterste Stufe in den Flur reinragen lassen und die anschließenden Wände etwas zurückgesetzt? Wie habt ihr das dann optisch gelöst- sieht das noch hübsch aus?
Weitere Alternative wäre, das Podest nur minimal zu kürzen und stattdessen den Auftritt auf 25 zu verschmälern. das hört sich für mich allerdings auch nicht ideal an...
Würde mich über Anregungen und gerne auch Bilder sehr freuen!
Wir stecken mitten in der Planung unseres Einfamilienhaus und haben ein Problem mit unserer Treppe.
Die Architektin hat eine gegenläufige Podesttreppe empfohlen, damit wir genügend Kopffreiheit vom 1. OG ins DG haben. Dafür hat sie ein Podest mit 1,05 m eingeplant. je 16 Stufen sind mit 18/ 26 vom EG ins OG bzw. 17.4 / 26 vom OG ins DG geplant (Rohbauhöhen EG / OG sind unterschiedlich)
Die Treppe braucht natürlich einiges an Platz, der uns im Flur "fehlt"- die unterste Treppenstufe schließt derzeit mit der Wand ab. Flurbreite wäre damit aktuell 1,38, wir hätten gerne aus optischen Gründen aber um die 1,5 m (Flur wird Ca. 7 m lang- und nein, das lässt sich nicht vermeiden :-( )
Nun die Frage an alle mit Podesttreppe: wie tief ist euer Podest? braucht es 1,05 m oder reichen auch 95 cm?
oder habt ihr die unterste Stufe in den Flur reinragen lassen und die anschließenden Wände etwas zurückgesetzt? Wie habt ihr das dann optisch gelöst- sieht das noch hübsch aus?
Weitere Alternative wäre, das Podest nur minimal zu kürzen und stattdessen den Auftritt auf 25 zu verschmälern. das hört sich für mich allerdings auch nicht ideal an...
Würde mich über Anregungen und gerne auch Bilder sehr freuen!
Ja, den Flur finden wir immer noch zu schmal. Vielleicht ist unser Ziel nicht richtig rübergekommen: wir möchten die Gesamt-Treppentiefe auf das nötigste reduzieren.
Drum war die Ausgangsfrage ja auch auf die Stufen- und Podesttiefe bezogen. Und nicht, ob unsere Garderobenstellfläche reicht.
Drum war die Ausgangsfrage ja auch auf die Stufen- und Podesttiefe bezogen. Und nicht, ob unsere Garderobenstellfläche reicht.
Ohne die Exkursion mit dem Windfang hast Du ja dennoch Antworten bekommen.
Ich hab mal gegoogelt und festgestellt, dass ein Podest auch mit 79! Cm auskommt.
Würde ich allerdings nicht machen. Eventuell mal mit 85 durchspielen.
Bei deinen Maßen keinen Abzug von den Stufentiefen bitte.
Eine Podesttreppe ist eine Treppe, die sehr viel Luft in einem Flur bringt und auch sehenswert sein soll. Sie bietet viel Platz, um Möbel zu transportieren, verbraucht allerdings auch viel.
Ich habe auch gelesen, dass die Unfallgefahr erhöht sein soll, da der Gehrythmus unterbrochen wird. Ich würde bei einer bestimmten Hausgröße immer diese Variante vorziehen.
Ich hab mal gegoogelt und festgestellt, dass ein Podest auch mit 79! Cm auskommt.
Würde ich allerdings nicht machen. Eventuell mal mit 85 durchspielen.
Bei deinen Maßen keinen Abzug von den Stufentiefen bitte.
Eine Podesttreppe ist eine Treppe, die sehr viel Luft in einem Flur bringt und auch sehenswert sein soll. Sie bietet viel Platz, um Möbel zu transportieren, verbraucht allerdings auch viel.
Ich habe auch gelesen, dass die Unfallgefahr erhöht sein soll, da der Gehrythmus unterbrochen wird. Ich würde bei einer bestimmten Hausgröße immer diese Variante vorziehen.
S
Sebastian7919.08.16 08:40Wir haben 112cm an der schmalsten Stelle auf dem Podest - absolut ausreichend, luftig. Ich würde aber sehr ungern weniger haben wollen, denn wir haben beim Umzug und auch jetzt immer wieder gemerkt, wie wichtig Platz auf der Treppe ist.
Unter 100 würde ich nur sehr schwer gehen wollen...
Unter 100 würde ich nur sehr schwer gehen wollen...
Ich Kram mal meinen alten Thread raus, im kurz das Ergebnis zu skizzieren.
Letztendlich ist es bei einer U-Treppe geblieben, mit der ich insgesamt sehr zufrieden bin. Mir liegen einfach Podesttreppen nicht so sehr wegen des Richtungswechsels. Der Flur ist ca. 1,5 m breit und wirkt damit sehr großzügig. Ja, im fertigen Zustand habe ich mich gefragt, ob es diese Breite benötigt hat. Aber da ich weniger von meinen Eltern kenne und es spätestens mit Möbeln ZU WENIG finde, bin ich bisher mit der Entscheidung sehr zufrieden.
Was wir aber in Grundzügen übernommen haben und uns sehr darüber freuen: wir haben die Wand der Toilette um 90 Grad gedreht, so dass es keinen "separaten Raum" für die Garderobe gibt. Die Nische ins Büro ist geblieben und wird noch mit einem großen Schuh-/ Kleiderschrank gefüllt werden. Den Vorschlag, Büro- oder WC-Tür in die Raummitte zu nehmen, haben wir dagegen nicht umgesetzt, sondern wegen unserer Möblierungsvorstellung im Flur (lounchig mit kleiner Couch! ) planlinks belassen. Wirkt bisher im Klo doof, da sehr länglich und ohne Dusche mit viel überschüssigem Platz; mittelfristig soll dort aber ein Einbauschrank rein. Sobald halt Zeit ist für solchen "Kleinkram"...

Letztendlich ist es bei einer U-Treppe geblieben, mit der ich insgesamt sehr zufrieden bin. Mir liegen einfach Podesttreppen nicht so sehr wegen des Richtungswechsels. Der Flur ist ca. 1,5 m breit und wirkt damit sehr großzügig. Ja, im fertigen Zustand habe ich mich gefragt, ob es diese Breite benötigt hat. Aber da ich weniger von meinen Eltern kenne und es spätestens mit Möbeln ZU WENIG finde, bin ich bisher mit der Entscheidung sehr zufrieden.
Was wir aber in Grundzügen übernommen haben und uns sehr darüber freuen: wir haben die Wand der Toilette um 90 Grad gedreht, so dass es keinen "separaten Raum" für die Garderobe gibt. Die Nische ins Büro ist geblieben und wird noch mit einem großen Schuh-/ Kleiderschrank gefüllt werden. Den Vorschlag, Büro- oder WC-Tür in die Raummitte zu nehmen, haben wir dagegen nicht umgesetzt, sondern wegen unserer Möblierungsvorstellung im Flur (lounchig mit kleiner Couch! ) planlinks belassen. Wirkt bisher im Klo doof, da sehr länglich und ohne Dusche mit viel überschüssigem Platz; mittelfristig soll dort aber ein Einbauschrank rein. Sobald halt Zeit ist für solchen "Kleinkram"...
Ähnliche Themen