ᐅ 2 Vollgeschosse, Durchgang Garage, Hauswirtschaftsraum unter Treppe
Erstellt am: 19.08.15 21:39
G
GrymIch habe ja den Werdegang Eures Hauses etwas verfolgt, wenn auch nicht immer kommentiert.
Aber ich muss sagen: Er hat sich um mehrere Hundert Prozent verbessert.
Sicherlich ist die Qm-Zahl etwas gestiegen
Dennoch muss ich etwas kritisieren, was Du wirklich überdenken solltest und was dann wahrscheinlich wieder zu einer Änderung führen sollte:
Dein Hauswirtschaftsraum hat zwar nach Deiner Planung 9 qm, aber davon sind nicht alle reell zu benutzen.
Zum einen ist es doch eine teure und grosse Baumaßnahme, eine (eventuell tragende) Wand neben der Treppe in der Luft schweben zu lassen. Gut, wir nehmen mal an, das funktioniert. Die Heizung sollte ein Bedienpult haben, an dem man auch mal schauen und einstellen muss. Der Klempner wird den Kopf schütteln (unserer würde einfach die Heizung woanders hinbauen), die Waschmaschine sollte nicht davor stehen. Nun stehen sie davor, eine Ladung Wäsche drumrum (darauf geht ja nicht), dann wird da noch Weißwäsche gesammelt, und Du kommst jetzt an und willst den beengten Hauswirtschaftsraum zum Flur machen. Geplant hast Du einen breiten Flur (Neuffert freut sich ), den Du im Alltag nicht benutzen möchtest.
Sicherlich sieht man bei anderen sehr viel Schönes, man muss aber mal abwägen und ehrlich sein, ob die vorgefundenen Verhältnisse bei den anderen nicht etwas anders liegen als bei sich selbst. Euer Hauswirtschaftsraum muss noch ganz andere Dinge aufnehmen, Ihr braucht den Platz für Getränke, Besen, Feudel und co, da ist eine Hauptverkehrsfläche völlig unbrauchbar.
In der Summe aller Bedenken ist der Hauswirtschaftsraum nicht das, was er zur Zeit für Euch scheint.
Gruss
P.s. sicherlich ist das ein oder andere auch noch nicht super (Fenster zB), aber das lass ich mal den BU machen
Aber ich muss sagen: Er hat sich um mehrere Hundert Prozent verbessert.
Sicherlich ist die Qm-Zahl etwas gestiegen
Dennoch muss ich etwas kritisieren, was Du wirklich überdenken solltest und was dann wahrscheinlich wieder zu einer Änderung führen sollte:
Grym schrieb:
Der Rest der Garderobe, Idee wieder rum aus einem real bewohnten Privathaus, gerne auch eher bisschen Richtung Hauswirtschaftsraum als Durchgangszimmer zum Auto (und selbst als Durchgang zum Fahrrad).
Dein Hauswirtschaftsraum hat zwar nach Deiner Planung 9 qm, aber davon sind nicht alle reell zu benutzen.
Zum einen ist es doch eine teure und grosse Baumaßnahme, eine (eventuell tragende) Wand neben der Treppe in der Luft schweben zu lassen. Gut, wir nehmen mal an, das funktioniert. Die Heizung sollte ein Bedienpult haben, an dem man auch mal schauen und einstellen muss. Der Klempner wird den Kopf schütteln (unserer würde einfach die Heizung woanders hinbauen), die Waschmaschine sollte nicht davor stehen. Nun stehen sie davor, eine Ladung Wäsche drumrum (darauf geht ja nicht), dann wird da noch Weißwäsche gesammelt, und Du kommst jetzt an und willst den beengten Hauswirtschaftsraum zum Flur machen. Geplant hast Du einen breiten Flur (Neuffert freut sich ), den Du im Alltag nicht benutzen möchtest.
Sicherlich sieht man bei anderen sehr viel Schönes, man muss aber mal abwägen und ehrlich sein, ob die vorgefundenen Verhältnisse bei den anderen nicht etwas anders liegen als bei sich selbst. Euer Hauswirtschaftsraum muss noch ganz andere Dinge aufnehmen, Ihr braucht den Platz für Getränke, Besen, Feudel und co, da ist eine Hauptverkehrsfläche völlig unbrauchbar.
In der Summe aller Bedenken ist der Hauswirtschaftsraum nicht das, was er zur Zeit für Euch scheint.
Gruss
P.s. sicherlich ist das ein oder andere auch noch nicht super (Fenster zB), aber das lass ich mal den BU machen
Yep, das ist sogar als Schiebetür geplant. Steht im Plan, vermutlich zu klein.
Die Wand oberhalb Treppe über dem Hauswirtschaftsraum sollte keinesfalls tragend sein, das würde nie und nimmer klappen. Es ist m.W. eine Trockenbauwand, die hat richtig ausgeführt ja sogar ein besseres Schalldämmmaß als eine massive Wand. Es funktioniert definitiv, ich habe es live gesehen und es war ja auch die Idee von 2 Baufirmen (mehr oder minder gleichzeitig und unabhängig voneinander und ohne, dass ich die darauf gebracht habe).
Wenn man im EG ein Arbeitszimmer haben will, wird alles entweder sehr groß oder man muss sich solcher Platzsparlösungen beim Hauswirtschaftsraum bedienen, so waren vermutlich deren Überlegungen.
Getränkekisten finde Platz vor der Anschlussnische, evtl. auch einfach in der Garage. 2,1 Schrankmeter, raumhoch, wären theoretisch noch verfügbar für Putzzeug, Besen, etc.
Die Treppe, hmm...
Ein als sehr bequem geltende Treppe hat ein Steigungsmaß von 19cm bei 27cm Antritt. Wenn es statt 9 Stufen unten 10 Stufen werden, dann ist das Podest die 11. Steigung, hat also eine Höhe oben von 2,09m. Da sollte man unten drunter passen ohne Kopf einziehen, da könnte man diesen Bereich sogar noch anderweitig nutzen und selbst ein wenig Raum unter der unteren Treppe von unter dem Podest nutzen können. Da kommt die Waschmaschine und der Trockner natürlich etwas zur Seite.
Die Wand oberhalb Treppe über dem Hauswirtschaftsraum sollte keinesfalls tragend sein, das würde nie und nimmer klappen. Es ist m.W. eine Trockenbauwand, die hat richtig ausgeführt ja sogar ein besseres Schalldämmmaß als eine massive Wand. Es funktioniert definitiv, ich habe es live gesehen und es war ja auch die Idee von 2 Baufirmen (mehr oder minder gleichzeitig und unabhängig voneinander und ohne, dass ich die darauf gebracht habe).
Wenn man im EG ein Arbeitszimmer haben will, wird alles entweder sehr groß oder man muss sich solcher Platzsparlösungen beim Hauswirtschaftsraum bedienen, so waren vermutlich deren Überlegungen.
Getränkekisten finde Platz vor der Anschlussnische, evtl. auch einfach in der Garage. 2,1 Schrankmeter, raumhoch, wären theoretisch noch verfügbar für Putzzeug, Besen, etc.
Die Treppe, hmm...
Ein als sehr bequem geltende Treppe hat ein Steigungsmaß von 19cm bei 27cm Antritt. Wenn es statt 9 Stufen unten 10 Stufen werden, dann ist das Podest die 11. Steigung, hat also eine Höhe oben von 2,09m. Da sollte man unten drunter passen ohne Kopf einziehen, da könnte man diesen Bereich sogar noch anderweitig nutzen und selbst ein wenig Raum unter der unteren Treppe von unter dem Podest nutzen können. Da kommt die Waschmaschine und der Trockner natürlich etwas zur Seite.
Schließe mich Yvonne voll umfänglich an und habe auch die größten Bedenken beim Hauswirtschaftsraum wg. der Haustechnik und dem Auslagern von Garderobe. Die Technik solltet ihr als erstes prüfen lassen, denn, wenn die nicht klappt, muss grundsätzlich umgeplant werden.
Garderobe .. noch denkst du scheinbar nur für 2 Personen. Kritisch wird es dann mit den größer werdenden Kindern. Und, auch Kinderwagen sollte bedacht werden.
Ein Side By Side Kühlschrank kann so nicht direkt neben der Wand positioniert werden. Da paßt der Öffnungswinkel der Türen nicht.
Garderobe .. noch denkst du scheinbar nur für 2 Personen. Kritisch wird es dann mit den größer werdenden Kindern. Und, auch Kinderwagen sollte bedacht werden.
Ein Side By Side Kühlschrank kann so nicht direkt neben der Wand positioniert werden. Da paßt der Öffnungswinkel der Türen nicht.
Hallo Grym,
mein Grundriss sieht deinem nicht mal so unähnlich. Bin momentan auch noch in der Planung und werde erst in einigen Wochen mein erstes Gespräch mit dem Architekten führen um zu erfahren, wo bei uns noch Verbesserungspotenzial herrscht. Ich denke vor allem der Bereich Flur mit Garderobe geht noch um einiges eleganter.
Ich lade dir hier einfach mal unseren momentanen groben Entwurf hoch. Ich denke der bei uns vorhandene Erker würde dein Problem mit dem fehlenden Platz unten beheben.
Gruß
Michael


mein Grundriss sieht deinem nicht mal so unähnlich. Bin momentan auch noch in der Planung und werde erst in einigen Wochen mein erstes Gespräch mit dem Architekten führen um zu erfahren, wo bei uns noch Verbesserungspotenzial herrscht. Ich denke vor allem der Bereich Flur mit Garderobe geht noch um einiges eleganter.
Ich lade dir hier einfach mal unseren momentanen groben Entwurf hoch. Ich denke der bei uns vorhandene Erker würde dein Problem mit dem fehlenden Platz unten beheben.
Gruß
Michael
Wir wollten halt Wohnen, Essen, Küche nicht in einer Linie, d.h. schon offen, aber keine direkte Sichtbeziehung vom Wohnbereich in die Küche. Das macht es etwas komplizierter. Anbei noch mal die aktuellsten Zeichnungen:
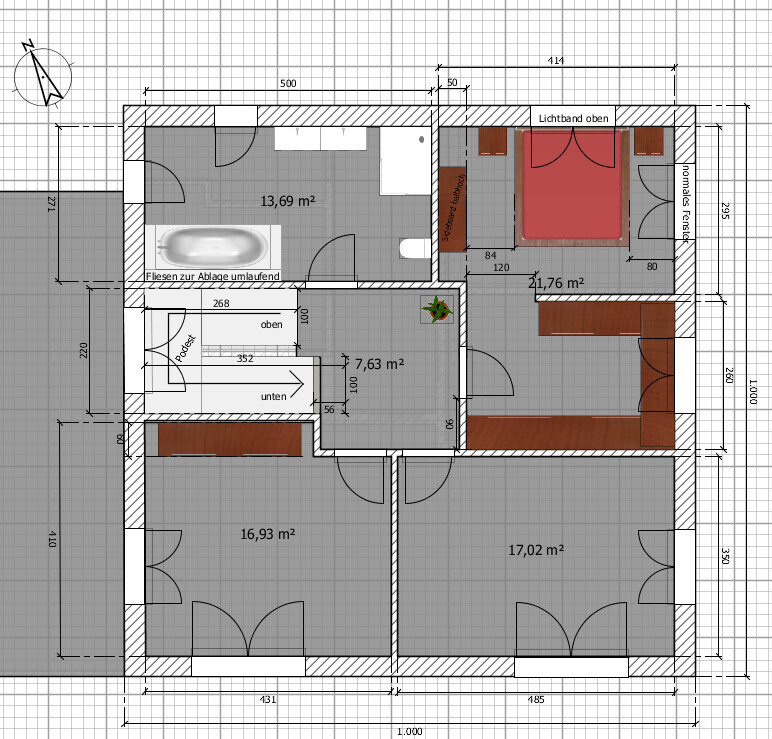
Es gibt jetzt also eine richtige 1,60m lange und 40cm tiefe Garderoben-Nische. Garderoben-Schränke sind ja meist nicht so tief (unser ist m.W. nur 35cm). Davor und unten drunter können Schuhe platziert werden. Der Eingangsbereich bleibt dann trotzdem 1,80m breit. Weiter hinten könnte man einen halbhohen Schrank (Sideboard) platzieren für weitere Anziehsachen wie Schals, Regenschirme und auf welchem man dann z.B. Schlüssel, Post, etc. ablagern kann.
Der Kühlschrank hat noch ein wenig mehr Platz bekommen, habe jetzt mit 90cm für einen Side By Side Kühlschrank gerechnet. Gibt aber auch welche mit 120cm. Aber was braucht man? Müssen wir uns wohl noch mal Kühlschränke ansehen gehen...
Es gibt jetzt also eine richtige 1,60m lange und 40cm tiefe Garderoben-Nische. Garderoben-Schränke sind ja meist nicht so tief (unser ist m.W. nur 35cm). Davor und unten drunter können Schuhe platziert werden. Der Eingangsbereich bleibt dann trotzdem 1,80m breit. Weiter hinten könnte man einen halbhohen Schrank (Sideboard) platzieren für weitere Anziehsachen wie Schals, Regenschirme und auf welchem man dann z.B. Schlüssel, Post, etc. ablagern kann.
Der Kühlschrank hat noch ein wenig mehr Platz bekommen, habe jetzt mit 90cm für einen Side By Side Kühlschrank gerechnet. Gibt aber auch welche mit 120cm. Aber was braucht man? Müssen wir uns wohl noch mal Kühlschränke ansehen gehen...
Ähnliche Themen