Hallo liebes Hausbauforum,
unsere Bauphase neigt sich langsam dem Ende zu und als nächstes steht der Ausbau der Terrasse auf dem Plan.
Aus Mangel an Erfahrung was gut funktioniert und was nicht, wollten wir auf die geballte Schwarmintelligenz in diesem Forum zurückgreifen, um einige Anregungen für die Terrassenplanung einzuholen.
Uns geht es in erster Linie um die Terrassenform und Größe. Weiterhin wäre noch interessant wie eventuell Hochbeete oder platziert werden könnten, um die Terrasse etwas aufzuwerten und gemütlicher zu gestalten.
Die Eckdaten zum Haus und ein aktueller Grundriss sind bereits in einem anderen Thread hier im Forum vorhanden:
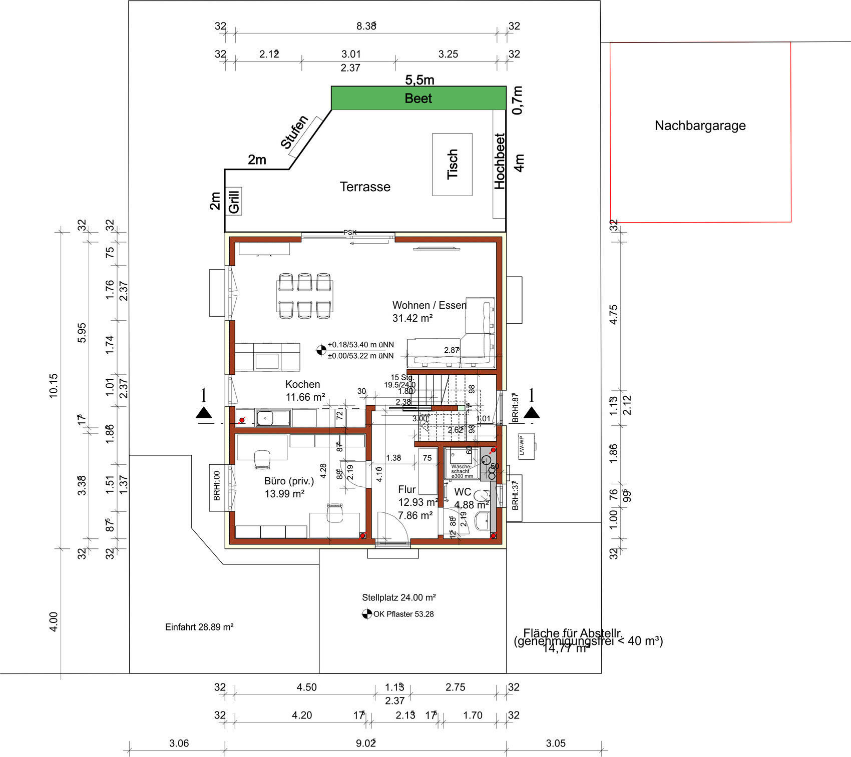
Grundriss
Eckdaten
Auf der Terrasse sollen ein Tisch mit 6 Sitzplätzen, ein Grill und ein sonnenschirm platz finden. Eine Liege wäre auch nett;) Weiterhin ist geplant, einen Teil der Terrasse in Zukunft zu überdachen. Das ist zwar noch Zeit, aber vielleicht kann oder muss man bereits bei der Planung diesen Umstand schon berücksichtigen?
Einen erste Skizze einer möglichen Terrassenform habe ich hier mal angehängt. Wir haben zunächst erstmal so geplant, dass die Terrassenbreite der Hausbreite (9m) entspricht.

Die Terrasse wird voraussichtlich etwas höher als das umliegende Gelände sein, und wird dann über eine Stufe betreten. Der Austritt aus dem Haus soll dann ebenerdig sein.
Anbei noch ein Foto des Hauses von der Westseite, also dort wo die Terrasse geplant ist. So bekommt man einen besseren Eindruck der Gegebenheiten vor Ort. Der kleine Weg, der am unteren Rand des Fotos zu sehen ist, stellt gleichzeitig die Grundstücksgrenze dar.

Schaut es Euch gerne an, tobt Euch aus. Sollten noch Angaben fehlen, lasst es mich wissen. Ansonsten freuen wir uns über jeden noch so kleinen Hinweis oder jede Anregung zur Terrassengestaltung hinsichtlich Form und Größe.
Vielen Dank schon mal und beste Grüße!
unsere Bauphase neigt sich langsam dem Ende zu und als nächstes steht der Ausbau der Terrasse auf dem Plan.
Aus Mangel an Erfahrung was gut funktioniert und was nicht, wollten wir auf die geballte Schwarmintelligenz in diesem Forum zurückgreifen, um einige Anregungen für die Terrassenplanung einzuholen.
Uns geht es in erster Linie um die Terrassenform und Größe. Weiterhin wäre noch interessant wie eventuell Hochbeete oder platziert werden könnten, um die Terrasse etwas aufzuwerten und gemütlicher zu gestalten.
Die Eckdaten zum Haus und ein aktueller Grundriss sind bereits in einem anderen Thread hier im Forum vorhanden:
Grundriss
Eckdaten
Auf der Terrasse sollen ein Tisch mit 6 Sitzplätzen, ein Grill und ein sonnenschirm platz finden. Eine Liege wäre auch nett;) Weiterhin ist geplant, einen Teil der Terrasse in Zukunft zu überdachen. Das ist zwar noch Zeit, aber vielleicht kann oder muss man bereits bei der Planung diesen Umstand schon berücksichtigen?
Einen erste Skizze einer möglichen Terrassenform habe ich hier mal angehängt. Wir haben zunächst erstmal so geplant, dass die Terrassenbreite der Hausbreite (9m) entspricht.
Die Terrasse wird voraussichtlich etwas höher als das umliegende Gelände sein, und wird dann über eine Stufe betreten. Der Austritt aus dem Haus soll dann ebenerdig sein.
Anbei noch ein Foto des Hauses von der Westseite, also dort wo die Terrasse geplant ist. So bekommt man einen besseren Eindruck der Gegebenheiten vor Ort. Der kleine Weg, der am unteren Rand des Fotos zu sehen ist, stellt gleichzeitig die Grundstücksgrenze dar.
Schaut es Euch gerne an, tobt Euch aus. Sollten noch Angaben fehlen, lasst es mich wissen. Ansonsten freuen wir uns über jeden noch so kleinen Hinweis oder jede Anregung zur Terrassengestaltung hinsichtlich Form und Größe.
Vielen Dank schon mal und beste Grüße!
ypg schrieb:
Dann nimm nochmal bitte den Lageplan/Skizze des Grundstücks und zeichne dort das Haus mit den Fenstern/Türen und Räumen ein. Ausrichtung nicht vergessen. Und bitte nicht nur die 9 Meter vermaßt, sondern auch das Grundstück, sowie Nachbarbebauung, Straße, Auffahrt und Carport.Hallo @ypg , besten Dank für die Rückmeldung und das Feedback. Ja das war vielleicht ein wenig Info. Hast absolut Recht. Ich habe nochmal zwei Ansichten erstellt. Die eine zeigt sowohl die Lage und Ausrichtung als auch die Abstände zu den Nachbargrundstücken auf.In der nächsten Ansicht habe ich den bereits gezeigten Grobentwurf der Terrasse mit dem Grundriss vom EG kombiniert.
Ich hoffe dadurch werden die Gegebenheiten vor Ort etwas deutlicher. Sollte noch etwas fehlen sagt gerne Bescheid.
Beste Grüße!
B
Buchsbaum06608.07.24 22:37Ich würde mir erstmal Gedanken über den Sonnenschutz machen. Auf der Westseite hast du ab dem frühen Nachmittag Vollsonne. Mit einem Sonnenschirm wird es da nicht getan sein.
Im Sommer wird es schnell unangenehm heiß. Bei uns wird der Wind auch immer mehr ein Thema. Meine Markise habe ich abgebaut weil sie immer durch den Windwächter eingefahren ist. also die Windlast zumindest hier in meiner Region wird immer höher.
Ich baue mir jetzt eine Überdachung mit Schiebewänden und Klimaanlage. Den Knick würde ich nicht reinbauen. 4,m Tiefe ist ausreichend, in der Breite würde ich auf 6 -7 m gehen. Ich baue meine Terrasse auch gerade größer. Hatte auch 5,50 m x 3,00m Das ist leider zu klein. Gehe nun auch auf 7 x 3,50 m.
Im Sommer wird es schnell unangenehm heiß. Bei uns wird der Wind auch immer mehr ein Thema. Meine Markise habe ich abgebaut weil sie immer durch den Windwächter eingefahren ist. also die Windlast zumindest hier in meiner Region wird immer höher.
Ich baue mir jetzt eine Überdachung mit Schiebewänden und Klimaanlage. Den Knick würde ich nicht reinbauen. 4,m Tiefe ist ausreichend, in der Breite würde ich auf 6 -7 m gehen. Ich baue meine Terrasse auch gerade größer. Hatte auch 5,50 m x 3,00m Das ist leider zu klein. Gehe nun auch auf 7 x 3,50 m.
In der Kürze: Ich würde zb das Hochbeet (Gemüse) an die Garagenwand des Nachbarn anlegen. Die Mauer gibt Schutz. Ggf diese verkleiden und in schön machen.
und ich würde die erste Terrasse mit Zugang zur Hauptterrasse von der Küche ausmachen. Zumindest sollte dort eine Sitzmöglichkeit geschaffen werden, die dann mit Hecke zur Grundstücksgrenze abgeschottet ist. Grill eher auch in die planrechte Hausseite (Grundrissfoto) einplanen.
und ich würde die erste Terrasse mit Zugang zur Hauptterrasse von der Küche ausmachen. Zumindest sollte dort eine Sitzmöglichkeit geschaffen werden, die dann mit Hecke zur Grundstücksgrenze abgeschottet ist. Grill eher auch in die planrechte Hausseite (Grundrissfoto) einplanen.
Ähnliche Themen