Schon besser, aber immer noch nicht gut
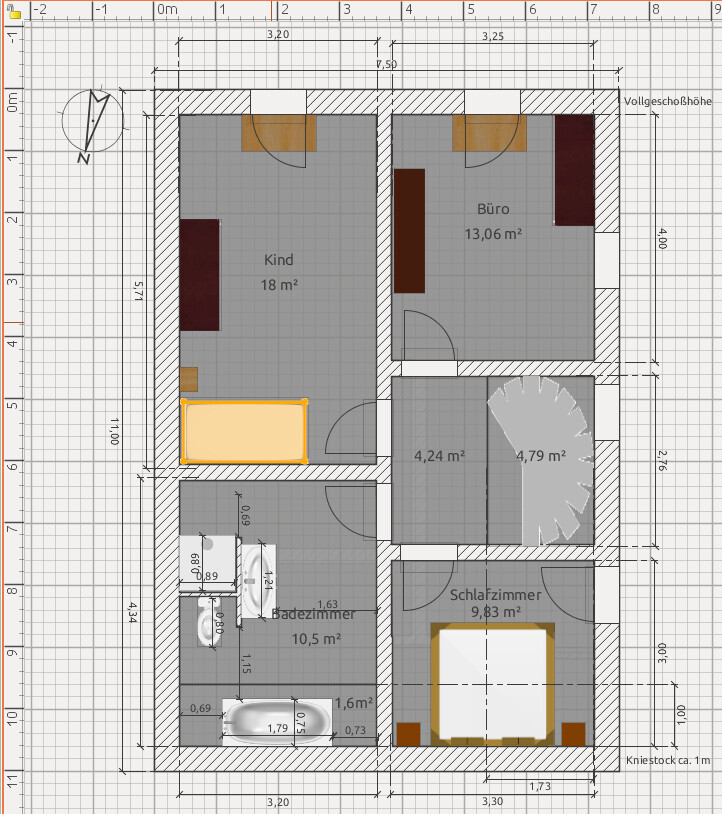
Ich glaube immer noch nicht, dass der Platz für deine Treppe ausreicht.
Das Mäuerchen an der Gadarobe würde ich weglassen. Schränkt dich bei deiner Gadarobenplanung nur ein.
Beim WC und Waschbecken musst du noch Platz für die Vorwandinstallation einplanen, da durch die 11er? Wand nicht noch die Rohre passen.
Wie sieht deine OG Planung aus?
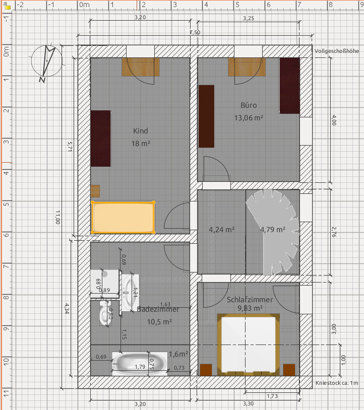
Ich glaube immer noch nicht, dass der Platz für deine Treppe ausreicht.
Das Mäuerchen an der Gadarobe würde ich weglassen. Schränkt dich bei deiner Gadarobenplanung nur ein.
Beim WC und Waschbecken musst du noch Platz für die Vorwandinstallation einplanen, da durch die 11er? Wand nicht noch die Rohre passen.
Wie sieht deine OG Planung aus?
Wieso hast du bedenken, daß der Platz für die Treppe nicht reicht? Die Maße habe ich von einem Treppenhersteller (als bequem begehbare halbgewendelte Treppe mit 90er Laufbreite 16 Stufen a 17.5cm)
Das Mäuerchen soll ein Sichtschutz für unsere chaotische Garderobe sein. Die kann auf keinen Fall offen sein, denn dann liegen alle Schuhe, Rucksäcke und andere Sachen quer verstreut im Eingangsbereich rum.
Das WC kann man auch vergrößern (17.5cm er Wand) damit die Installation passt, dann wird der Hauswirtschaftsraum vermutlich etwas kleiner.
Das Obergeschoss wird ungefähr so aussehen, ob das auf den cm passt glaube ich nicht. Hier habe ich auch noch eine kleinere Treppe gehabt. Das wird der Architekt dann schon passend machen. Breiter geht das Haus nicht mehr, nur noch länger.

Das Mäuerchen soll ein Sichtschutz für unsere chaotische Garderobe sein. Die kann auf keinen Fall offen sein, denn dann liegen alle Schuhe, Rucksäcke und andere Sachen quer verstreut im Eingangsbereich rum.
Das WC kann man auch vergrößern (17.5cm er Wand) damit die Installation passt, dann wird der Hauswirtschaftsraum vermutlich etwas kleiner.
Das Obergeschoss wird ungefähr so aussehen, ob das auf den cm passt glaube ich nicht. Hier habe ich auch noch eine kleinere Treppe gehabt. Das wird der Architekt dann schon passend machen. Breiter geht das Haus nicht mehr, nur noch länger.
Naja, die Maße finde ich sehr schmal. Aber ich muss eure Möbel ja nicht da hoch tragen.
Dein Elektriker wird Probleme bekommen die Kabel ins OG zu legen. Die steigen nämlich nach deinem Plan in das Badezimmer.
Welches Dach bekommt ihr? 1m Kniestock? Was bedeutet dann die 1m Linie im Schlafzimmer? Dachausrichtung und Steigung?
Dein Elektriker wird Probleme bekommen die Kabel ins OG zu legen. Die steigen nämlich nach deinem Plan in das Badezimmer.
Welches Dach bekommt ihr? 1m Kniestock? Was bedeutet dann die 1m Linie im Schlafzimmer? Dachausrichtung und Steigung?
Ich denke der Elektriker wird schon einen Weg nach oben finden. Evtl. muss der Stromkasten halt mehr zum Flur gesetzt werden, dann kommt man oben zwischen Schlafzimmer und Bad raus.
Satteldach 45° Dachneigung. Das mit dem Kniestock ist ein Problem ... Traufhöhe Max. 4m bis Oberkante Dach auf der Nordseite, da wird 1m Kniestock sehr eng werden. Die Linie zeigt wo 2m Raumhöhe beginnen. Auf der Südseite haben wir 6m.
Der First hat Ost-West Ausrichtung. Bett und Badewanne unter der Schräge. Dachfenster über der Badewanne.
Die Maße in dem Entwurf sind ja nicht 100%. Es geht eher um die Anordnung der Räume und den ungefähren Platzbedarf. 7,5m Außenmaße sind nun mal ein Problem wenn man nicht ewig in die Länge möchte damit der First nicht noch höher wird. Das Budget ist halt auch begrenzt.
Satteldach 45° Dachneigung. Das mit dem Kniestock ist ein Problem ... Traufhöhe Max. 4m bis Oberkante Dach auf der Nordseite, da wird 1m Kniestock sehr eng werden. Die Linie zeigt wo 2m Raumhöhe beginnen. Auf der Südseite haben wir 6m.
Der First hat Ost-West Ausrichtung. Bett und Badewanne unter der Schräge. Dachfenster über der Badewanne.
Die Maße in dem Entwurf sind ja nicht 100%. Es geht eher um die Anordnung der Räume und den ungefähren Platzbedarf. 7,5m Außenmaße sind nun mal ein Problem wenn man nicht ewig in die Länge möchte damit der First nicht noch höher wird. Das Budget ist halt auch begrenzt.
Ähnliche Themen