C
Christobal09.08.20 02:05Hallo 11ant,
Erstmal danke. Ich hab mit Kästchen und Papier begonnen. Zur Info: ich bin noch dipl.ing. in Maschinenbau und hab mal Solid works, catia etc gelernt. Daher ist zeichnen und bemaßen drin. Allerdings bin ich hausbau und Architektur Laie. Jedem seine Stärke.
Die Ideen sind natürlich ein Mix aus Favorit, Baumeister, Kern, etc. Inspirationen. Ich halte den Entwurf maximal für lösungsorientiert und gewöhnlich aber keinesfalls für innovativ.
Bitte lasst uns mal zum Thema zurück. Ich suche konstruktive Kritik und Verbesserungsvorschläge und weiß das ihr über Jahre hier Sinn und Unsinn gesehen habt.
Danke
Erstmal danke. Ich hab mit Kästchen und Papier begonnen. Zur Info: ich bin noch dipl.ing. in Maschinenbau und hab mal Solid works, catia etc gelernt. Daher ist zeichnen und bemaßen drin. Allerdings bin ich hausbau und Architektur Laie. Jedem seine Stärke.
Die Ideen sind natürlich ein Mix aus Favorit, Baumeister, Kern, etc. Inspirationen. Ich halte den Entwurf maximal für lösungsorientiert und gewöhnlich aber keinesfalls für innovativ.
Bitte lasst uns mal zum Thema zurück. Ich suche konstruktive Kritik und Verbesserungsvorschläge und weiß das ihr über Jahre hier Sinn und Unsinn gesehen habt.
Danke
H
hampshire09.08.20 08:40Wenn Du wirklich viel Licht magst, denke die Fenster größer und lasse Dich nicht von Geschossgrenzen und Symmetrie der Außenansicht begrenzen. Ziehe die großen Fenster zum Garten bis oben. Keine halben Sachen.

Vergrössere den Luftraum dahinterund gönne auch den Kinderzimmern Licht.

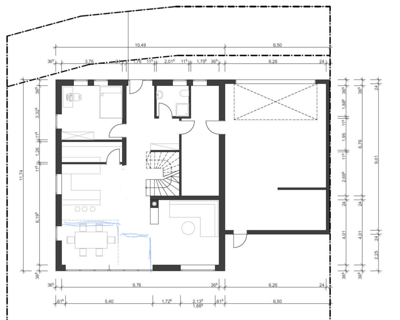
Lasse die Trennwand zwischen Küche und Treppe einfach weg.

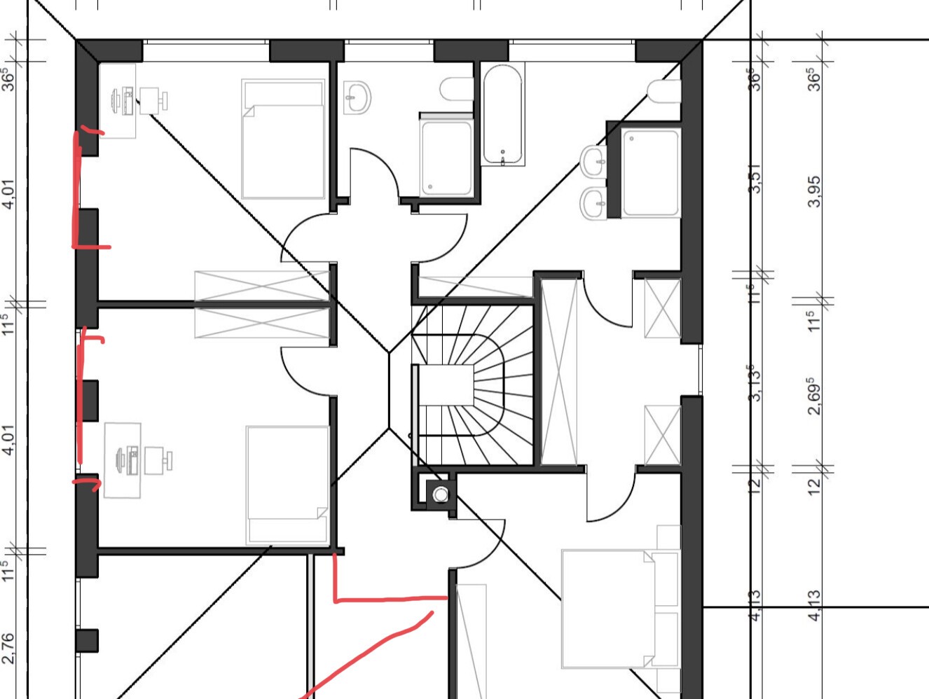
Speis und Positionierung Gäste-WC und Hauswirtschaftsraum gefallen mir noch nicht, Hab aber dazu keine Zündende Idee. Bad oben ebenfalls.
Ein quadrarische Grundriss ist in der Mitte eben nocht so doll für Effizienz, aber eben gesetzt.
Speis z schmal, Küchenaufteilung unpraktisch, auch da würde ich nochmal ran.
Vergrössere den Luftraum dahinterund gönne auch den Kinderzimmern Licht.
Lasse die Trennwand zwischen Küche und Treppe einfach weg.
Speis und Positionierung Gäste-WC und Hauswirtschaftsraum gefallen mir noch nicht, Hab aber dazu keine Zündende Idee. Bad oben ebenfalls.
Ein quadrarische Grundriss ist in der Mitte eben nocht so doll für Effizienz, aber eben gesetzt.
Speis z schmal, Küchenaufteilung unpraktisch, auch da würde ich nochmal ran.
Bei den großen Fenstern solltet Ihr aber unbedingt an Verschattung denken. Ansonsten würde ich die Garage hinten bündig setzen, so erhaltet Ihr vor dem Tor auch noch einen Stellplatz.
Die Speisekammer würde ich auch auflösen und der Küche zuschlagen. Denkt aber über eine Tür zum Wohnbereich nach.
Die Speisekammer würde ich auch auflösen und der Küche zuschlagen. Denkt aber über eine Tür zum Wohnbereich nach.
C
Christobal09.08.20 13:00Hallo Leute,
Danke für die Rückmeldungen.
Der Corona-Testlauf sagt eindeutig Ja.
Denkt meine Frau auch
Ich hatte selbst als Kind aber so einen "Spielbereich" auf der Galerie, daher ist es für mich kein reiner Flur zum mal runter schauen, sondern nutzbare Fläche.
Danke für die Anpassung zur Visualisierung für uns.
Überlege gerade wie ich die Breite Fensterfront mit doch einer Galeriefläche dahinter kombinieren kann. Eine Decke würde ja die Fenster trennen. Evtl. was mit Holzbalken als "Balkon" im Haus?
Warum haben wir keine Stahl-Glas Front um die Ecke geplant? Neben uns baut ja der Nachbar auf gleicher Höhe und der Ausblick wäre für uns auf eine Hauswand nach ca. 10m. Gleichzeitig können die uns zu viel reinschauen.
Verschattung ist fix geplant. Es ist ja die absolute Südseite.
Sonst wird man gegrillt.
Die Garage bleibt nicht auf gleicher Front wie das Haus. Wurde schon als Tipp gegeben um die Front vorne auch zu brechen.
WIr waren aber eher bei nach vorne ziehen um evtl. eine seitliche Tür einbauen zu können. Zugang von der Straße ohne durch das Tor zu gehen.
DIe halbe Wand in der Garage ist übrigens damit man versetzt parken kann zum Tür öffnen und auch ein Auto mal soweit durchfahren kann um im trocknen dahinter am Kofferraum Platz zu haben.
Alle Kommentare zu Küche, Speisekammer, Bad:
Speisekammer wird überdacht. Würde ohne auch mehr Hochschränke (wo die Tür zur SK ist) ermöglichen.
Dazu Frage an die Runde: Wie den Raum unter der gewendelten Treppe sinnvoll nutzen? Nach hinten zur Technik oder nach vorne evtl. als Speisekammer/Garderobe?
@ypg
Zum Bad oben - Genau richtig erkannt.
Ankleide wollten wir 3m Stellfläche. Daher wirft der uns 3,12 oder so als Rohbaumaß raus. Damit entsteht die Ecke im Bad. Haben dadurch im Bad diesen Raum an der Tür zum Flur für einen Schrank über?
Ich kann die Ecke natürlich genauso im Schlafzimmer erzeugen und im Bad eine gerade Wand gewinnen. Damit hab ich im Schlafzimmer hinter der Tür eine Einbauecke für Bettsachen etc.
Evtl. von Bad richtung Schlafzimmer planen. Hast ein gutes Auge, dass wir andersrum geplant haben.
Zusätzlich glaube ich die Idee ist aus einem Kern Centro? Da ist das Elternbad aber gefangen. Das gefällt nicht wegen dem Weg durchs Schlafzimmer und der Nutzbarkeit z.b. der Wanne auch für andere Familienmitglieder.
Danke für die Rückmeldungen.
Pinky0301 schrieb:
Wenn ihr beide Homeoffice macht, reicht euch denn dann ein einzelnes Büro, dass gleichzeitig auch noch Gästezimmer ist?
Der Corona-Testlauf sagt eindeutig Ja.
hampshire schrieb:
Wenn Du wirklich viel Licht magst, denke die Fenster größer und lasse Dich nicht von Geschossgrenzen und Symmetrie der Außenansicht begrenzen. Ziehe die großen Fenster zum Garten bis oben. Keine halben Sachen.
Denkt meine Frau auch
Ich hatte selbst als Kind aber so einen "Spielbereich" auf der Galerie, daher ist es für mich kein reiner Flur zum mal runter schauen, sondern nutzbare Fläche.
Danke für die Anpassung zur Visualisierung für uns.
Überlege gerade wie ich die Breite Fensterfront mit doch einer Galeriefläche dahinter kombinieren kann. Eine Decke würde ja die Fenster trennen. Evtl. was mit Holzbalken als "Balkon" im Haus?
Warum haben wir keine Stahl-Glas Front um die Ecke geplant? Neben uns baut ja der Nachbar auf gleicher Höhe und der Ausblick wäre für uns auf eine Hauswand nach ca. 10m. Gleichzeitig können die uns zu viel reinschauen.
Verschattung ist fix geplant. Es ist ja die absolute Südseite.
Sonst wird man gegrillt.
K1300S schrieb:
Ansonsten würde ich die Garage hinten bündig setzen, so erhaltet Ihr vor dem Tor auch noch einen Stellplatz.
Die Garage bleibt nicht auf gleicher Front wie das Haus. Wurde schon als Tipp gegeben um die Front vorne auch zu brechen.
WIr waren aber eher bei nach vorne ziehen um evtl. eine seitliche Tür einbauen zu können. Zugang von der Straße ohne durch das Tor zu gehen.
DIe halbe Wand in der Garage ist übrigens damit man versetzt parken kann zum Tür öffnen und auch ein Auto mal soweit durchfahren kann um im trocknen dahinter am Kofferraum Platz zu haben.
Alle Kommentare zu Küche, Speisekammer, Bad:
Speisekammer wird überdacht. Würde ohne auch mehr Hochschränke (wo die Tür zur SK ist) ermöglichen.
Dazu Frage an die Runde: Wie den Raum unter der gewendelten Treppe sinnvoll nutzen? Nach hinten zur Technik oder nach vorne evtl. als Speisekammer/Garderobe?
@ypg
Zum Bad oben - Genau richtig erkannt.
Ankleide wollten wir 3m Stellfläche. Daher wirft der uns 3,12 oder so als Rohbaumaß raus. Damit entsteht die Ecke im Bad. Haben dadurch im Bad diesen Raum an der Tür zum Flur für einen Schrank über?
Ich kann die Ecke natürlich genauso im Schlafzimmer erzeugen und im Bad eine gerade Wand gewinnen. Damit hab ich im Schlafzimmer hinter der Tür eine Einbauecke für Bettsachen etc.
Evtl. von Bad richtung Schlafzimmer planen. Hast ein gutes Auge, dass wir andersrum geplant haben.
Zusätzlich glaube ich die Idee ist aus einem Kern Centro? Da ist das Elternbad aber gefangen. Das gefällt nicht wegen dem Weg durchs Schlafzimmer und der Nutzbarkeit z.b. der Wanne auch für andere Familienmitglieder.
Ähnliche Themen