A
Annalena57919.06.24 13:58Hallo, wir haben ein Haus aus den 70er Jahren gekauft und wollen es nun modernisieren. Wir planen die Rohre und die Elektrik im Rohbau zu erneuern, genauso wie die Fenster. Tragende Wände werden durch Pfeiler ersetzt, sodass die Wände von mir größtenteils entfernt wurden. Allgemein gesagt, bleibt innen nichts wie es war. Jetzt habe ich viele Stunden mit dem Planen des Grundrisses verbracht und würde nun gerne Meinungen und Vorschläge zur Sinnhaftigkeit, aber auch gerne Optimierungsideen oder Ideen zu besonderen Highlights hören. Ich möchte, dass es ein individuelles Zuhause wird und nicht ein Haus wie aus dem Katalog. Ich freue mich sehr, wenn jemand Ideen für Besonderheiten hätte, die das ganze persönlich und besonders machen würden. Danke!


A
Annalena57919.06.24 14:39Schöne Sache, ein Haus zu entkernen und zu sanieren.
Aber was sieht man denn da jetzt?
Am besten, Du nimmst für neue Wände rot, für Abrisswände gelb. So macht man es, damit jeder es erkennt. Der ursprüngliche Entwurf ist natürlich farblos und dunkel, so wie jetzt auch.
Um eine Entkernung zu bewerten, sollte man extern schon wissen, wo zum jetzigen Zeitpunkt tragende Wände und Schächte verlaufen.
Das eigene Planen ist natürlich erlaubt. Dennoch ist ein Ausradieren aller tragenden Komponenten der falsche Weg. Du machst es Dir zu einfach. Ggf muss man iwo einen Meter stehen lassen, damit überhaupt ein Träger gehalten werden kann. Die Tragfähigkeit (Statik) ist fundamental.
Wenn man es so macht wie Du denkst, fällt das Haus in sich zusammen.
Vielleicht weißt Du es aber auch, nur kannst es eben für andere nicht umsetzen?!
Und damit man auch weiß, wer sich da später wohlfühlen soll, dann am besten den Fragebogen ausfüllen.
https://www.hausbau-forum.de/threads/grundriss-planung-unbedingt-vor-beitrag-erstellung-lesen.11714/
Aber was sieht man denn da jetzt?
Am besten, Du nimmst für neue Wände rot, für Abrisswände gelb. So macht man es, damit jeder es erkennt. Der ursprüngliche Entwurf ist natürlich farblos und dunkel, so wie jetzt auch.
Um eine Entkernung zu bewerten, sollte man extern schon wissen, wo zum jetzigen Zeitpunkt tragende Wände und Schächte verlaufen.
Das eigene Planen ist natürlich erlaubt. Dennoch ist ein Ausradieren aller tragenden Komponenten der falsche Weg. Du machst es Dir zu einfach. Ggf muss man iwo einen Meter stehen lassen, damit überhaupt ein Träger gehalten werden kann. Die Tragfähigkeit (Statik) ist fundamental.
Wenn man es so macht wie Du denkst, fällt das Haus in sich zusammen.
Vielleicht weißt Du es aber auch, nur kannst es eben für andere nicht umsetzen?!
Annalena579 schrieb:Ich kann jetzt und so, wie Du etwas eingezeichnet hast, beim besten Willen nicht erkennen, wo ein Träger gezogen wird oder was eine neue Wand ist.
sodass die Wände von mir größtenteils entfernt wurden.
Und damit man auch weiß, wer sich da später wohlfühlen soll, dann am besten den Fragebogen ausfüllen.
https://www.hausbau-forum.de/threads/grundriss-planung-unbedingt-vor-beitrag-erstellung-lesen.11714/
Annalena579 schrieb:
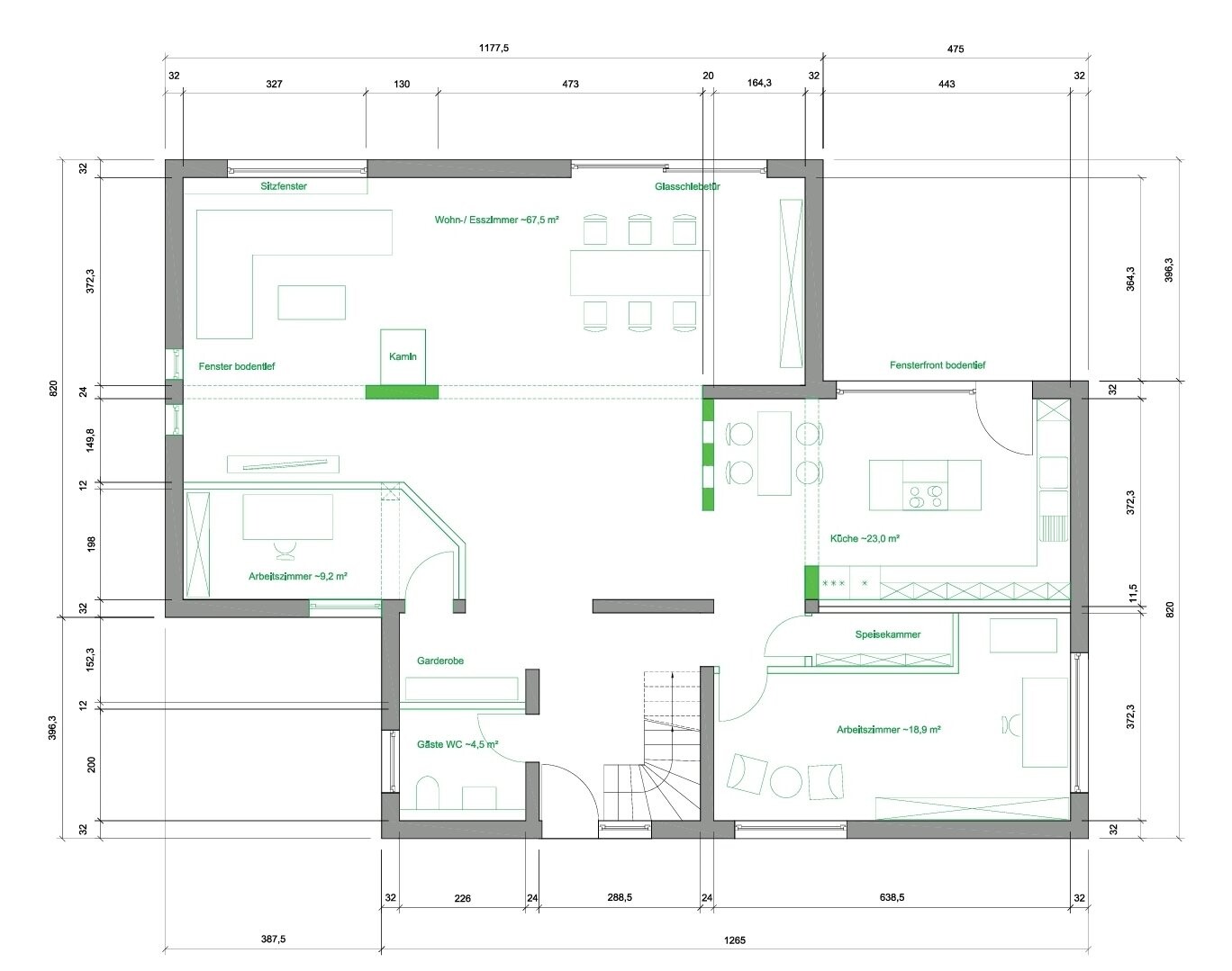
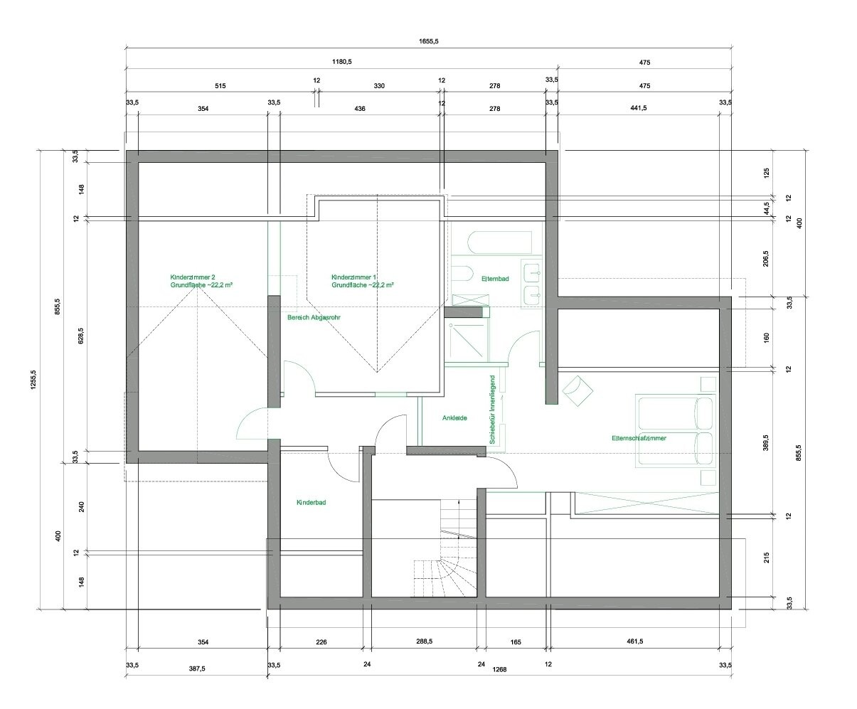
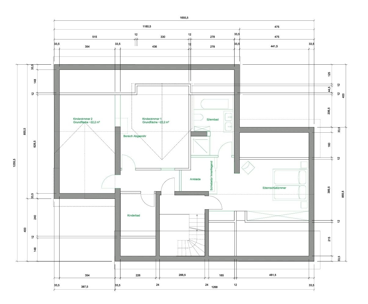
Das sind die Grundrisse des BestandesSind das alles Leichtbauwände, die scheinbar durchsichtigen Wände?Und ist das Haus als Bestand schon mit einem versetzten Anbau versehen?
A
Annalena57919.06.24 22:03Die grauen Wände, wie etwa die Außenwände, sind tragend und bleiben bestehen. Die ausgefüllten, grünen Wandteile sind ebenfalls tragend. Die grün gestrichelten Linien sind ehemalige tragende Wände und werden nun durch Träger ersetzt. Die durchsichtigen Wände sind Leichtbauwände.
Der Anbau existiert bereits seit Hausbau und wurde bisher als Einlegerwohnung genutzt.
Wir haben einen fachkundigen Bauherren, der auf Basis dieser Pläne mit dem Statiker spricht.
Ich wünsche mir kleine Kniffe oder Ideen, die das ganze individueller machen. Eben nicht einfach ein Haus mit vielen klassischen Räumen und fertig.
Der Anbau existiert bereits seit Hausbau und wurde bisher als Einlegerwohnung genutzt.
Wir haben einen fachkundigen Bauherren, der auf Basis dieser Pläne mit dem Statiker spricht.
Ich wünsche mir kleine Kniffe oder Ideen, die das ganze individueller machen. Eben nicht einfach ein Haus mit vielen klassischen Räumen und fertig.
A
Annalena57919.06.24 22:09Bauherren sind wir. Bauleiter natürlich
Ähnliche Themen